|
Поэтажные планы, разрезы и схемы к проектам трех финалистов конкурса.
Конкурс на концепцию нового здания ГЦСИ вызвал достаточно большой интерес. Напоминаем, что победителем в итоге стало ирландское бюро Heneghan Peng Architects и публикуем чертежи: планы и разрезы проектов трех финалистов. А также – комментарий гендиректора КБ «Стрелка», компании-консультанта конкурса,
Дениса Леонтьева: «Важно понимать, что Ходынское поле, место расположения будущего музея, является точкой планируемого масштабного нового строительства. Параллельно с музейно-выставочным комплексом ГЦСИ здесь возводятся и проектируются торговый центр, парк, гостиница, жилые и офисные здания. Создается гибридная среда, где смешиваются самые разные функции: культурные, коммерческие и жилые. Нередко подобное соседство является катализатором появления яркой и смелой архитектуры. Тому примером – созданное Ремом Колхасом пространство Гуггенхайм-Эрмитаж в Лас-Вегасе, помещенное в комплексе с отелем и казино. Конкурс на новый ГЦСИ – это стремление посмотреть на город, сочетание функций и архитектурных форм в современном духе.»
Heneghan Peng Architects/ Ирландия/ победитель конкурса
 Музейно-выставочный комплекс ГЦСИ. Heneghan Peng Architects. Материалы предоставлены пресс-службой ГЦСИ
Музейно-выставочный комплекс ГЦСИ. Конкурсный проект Heneghan Peng Architects. Материалы предоставлены пресс-службой ГЦСИ.
Музейно-выставочный комплекс ГЦСИ. Конкурсный проект Heneghan Peng Architects. Материалы предоставлены пресс-службой ГЦСИ.
Музейно-выставочный комплекс ГЦСИ. Конкурсный проект Heneghan Peng Architects. Материалы предоставлены пресс-службой ГЦСИ.
Музейно-выставочный комплекс ГЦСИ. Конкурсный проект Heneghan Peng Architects. Материалы предоставлены пресс-службой ГЦСИ.
Nieto Sobejano Arquitectos/ Испания/ финалист конкурса
Музейно-выставочный комплекс ГЦСИ. Конкурсный проект Nieto Sobejano Arquitectos. Материалы предоставлены пресс-службой ГЦСИ.
Музейно-выставочный комплекс ГЦСИ. Конкурсный проект Nieto Sobejano Arquitectos. Материалы предоставлены пресс-службой ГЦСИ.
Музейно-выставочный комплекс ГЦСИ. Конкурсный проект Nieto Sobejano Arquitectos. Материалы предоставлены пресс-службой ГЦСИ.
Музейно-выставочный комплекс ГЦСИ. Конкурсный проект Nieto Sobejano Arquitectos. Материалы предоставлены пресс-службой ГЦСИ.
Музейно-выставочный комплекс ГЦСИ. Конкурсный проект Nieto Sobejano Arquitectos. Материалы предоставлены пресс-службой ГЦСИ.
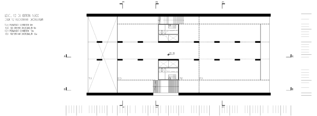
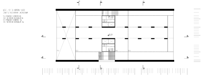
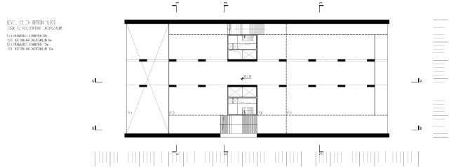
«Мел»/ Москва/ финалист конкурса
Музейно-выставочный комплекс ГЦСИ. Конкурсный проект ООО «Мел». Материалы предоставлены пресс-службой ГЦСИ.
Музейно-выставочный комплекс ГЦСИ. Конкурсный проект ООО «Мел». Материалы предоставлены пресс-службой ГЦСИ.
Музейно-выставочный комплекс ГЦСИ. Конкурсный проект ООО «Мел». Материалы предоставлены пресс-службой ГЦСИ.
Музейно-выставочный комплекс ГЦСИ. Конкурсный проект ООО «Мел». Материалы предоставлены пресс-службой ГЦСИ.
Музейно-выставочный комплекс ГЦСИ. Конкурсный проект ООО «Мел». Материалы предоставлены пресс-службой ГЦСИ.
Составила Настя Маврина
|