Размещено на портале Архи.ру (www.archi.ru)

24.12.2013

Университет в теплом цвете

Анна Мартовицкая
Объект:
Корпуса факультета права и администрации Венского экономического университета
Адрес:
Австрия, None, Вена.
Мастерская:
CRAB studio

В столице Австрии построен очередной корпус Венского экономического университета – здание юрфака по проекту Питера Кука и его бюро CRAB studio.

Комплекс зданий факультета права и администрации Венского экономического университета © Kurt Kuball
Комплекс зданий факультета права и администрации Венского экономического университета © Kurt Kuball
Это здание появилось на новом кампусе Венского экономического университета (WU). Общая площадь университетских владений составляет около 10 га, а генплан развития территории, расположившейся по соседству с парком Пратер, разработало венское бюро BUSarchitektur. В соответствии с этим проектом, центром всей композиции стало здание Библиотеки и Центра знаний (его автор – Заха Хадид), а вокруг него сосредоточены учебные корпуса различных факультетов.
Комплекс зданий факультета права и администрации Венского экономического университета © Kurt Kuball
Комплекс зданий факультета права и администрации Венского экономического университета © Kurt Kuball

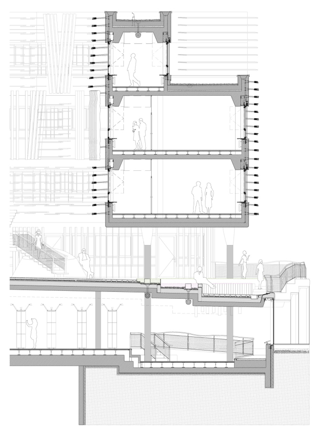
Здание факультета права и администрации университета вытянулось вдоль границы участка, оказавшись таким образом прямо напротив парка. Фактически CRAB studio предстояло придумать «парковый» фасад всего университета, особенно если учесть, что длина здания составляет чуть больше 200 метров. Переход от леса к урбанизированной среде архитекторы подчеркнули с помощью оболочки из деревянных жалюзи: ламели изготовлены из необструганных досок и размещены как вертикально, так и горизонтально, что придает фасадам комплекса интересный, постоянно меняющийся рисунок.
Комплекс зданий факультета права и администрации Венского экономического университета © Kurt Kuball
Комплекс зданий факультета права и администрации Венского экономического университета © Kurt Kuball

Если на парк здание смотрит единым протяженным фасадом, то к кампусу оно обращено целым ансамблем объемов, имеющих разную форму, длину и этажность. С помощью «западающих» и выдвинутых вперед частей здания архитекторы создают систему пешеходных площадей, «карманов» и террас, то есть общественных пространств разной степени камерности. Они, как надеются авторы проекта, создадут коммуникативную среду, столь необходимую для любого учебного процесса. Собрать в единую композицию этот сложный агломерат объемов помогает общая для всех частей здания мягкая пластика (острых углов здесь нет в принципе), а также яркая палитра, вобравшая в себя все оттенки теплой части спектра – от насыщенно-красного до солнечно-желтого. Таким же по своей архитектуре получилось и здание университетской администрации – формально это отдельный объем, в плане отдаленно напоминающий бумеранг, однако за счет своей формы он настолько точно «подогнан» к своему соседу, что кажется его частью.
Комплекс зданий факультета права и администрации Венского экономического университета © Kurt Kuball
Комплекс зданий факультета права и администрации Венского экономического университета © Kurt Kuball

Принцип многообразия общественных пространств положен и в основу внутренней планировки здания: аудитории и лектории здесь соседствуют с большим количество рекреаций, мест для комфортного общения и уединенных занятий. В дальнейшем проектом также предусмотрено озеленение фасадов здания и прилегающей к нему территории.
Комплекс зданий факультета права и администрации Венского экономического университета © Kurt Kuball
Комплекс зданий факультета права и администрации Венского экономического университета © Kurt Kuball
Комплекс зданий факультета права и администрации Венского экономического университета © Kurt Kuball
Комплекс зданий факультета права и администрации Венского экономического университета © Kurt Kuball
Комплекс зданий факультета права и администрации Венского экономического университета © Kurt Kuball
Комплекс зданий факультета права и администрации Венского экономического университета © Kurt Kuball
Комплекс зданий факультета права и администрации Венского экономического университета © Kurt Kuball
Комплекс зданий факультета права и администрации Венского экономического университета © Kurt Kuball
Комплекс зданий факультета права и администрации Венского экономического университета © Kurt Kuball
Комплекс зданий факультета права и администрации Венского экономического университета © Kurt Kuball
Комплекс зданий факультета права и администрации Венского экономического университета © Ronald Kreimel
Комплекс зданий факультета права и администрации Венского экономического университета © Ronald Kreimel
Комплекс зданий факультета права и администрации Венского экономического университета © Ronald Kreimel
Комплекс зданий факультета права и администрации Венского экономического университета © Ronald Kreimel
Комплекс зданий факультета права и администрации Венского экономического университета © Ronald Kreimel
Комплекс зданий факультета права и администрации Венского экономического университета © Ronald Kreimel
Комплекс зданий факультета права и администрации Венского экономического университета © Ronald Kreimel
Комплекс зданий факультета права и администрации Венского экономического университета © Ronald Kreimel
Комплекс зданий факультета права и администрации Венского экономического университета © Ronald Kreimel
Комплекс зданий факультета права и администрации Венского экономического университета © Ronald Kreimel
Комплекс зданий факультета права и администрации Венского экономического университета © Ronald Kreimel
Комплекс зданий факультета права и администрации Венского экономического университета © Ronald Kreimel
Комплекс зданий факультета права и администрации Венского экономического университета © Ronald Kreimel
Комплекс зданий факультета права и администрации Венского экономического университета © Ronald Kreimel
Комплекс зданий факультета права и администрации Венского экономического университета © Kurt Kuball
Комплекс зданий факультета права и администрации Венского экономического университета © Kurt Kuball
Комплекс зданий факультета права и администрации Венского экономического университета © Kurt Kuball
Комплекс зданий факультета права и администрации Венского экономического университета © Kurt Kuball
Комплекс зданий факультета права и администрации Венского экономического университета © Ronald Kreimel
Комплекс зданий факультета права и администрации Венского экономического университета © Ronald Kreimel
Комплекс зданий факультета права и администрации Венского экономического университета © Ronald Kreimel
Комплекс зданий факультета права и администрации Венского экономического университета © Ronald Kreimel
Комплекс зданий факультета права и администрации Венского экономического университета © Ronald Kreimel
Комплекс зданий факультета права и администрации Венского экономического университета © Ronald Kreimel
Комплекс зданий факультета права и администрации Венского экономического университета © Ronald Kreimel
Комплекс зданий факультета права и администрации Венского экономического университета © Ronald Kreimel
Комплекс зданий факультета права и администрации Венского экономического университета © Ronald Kreimel
Комплекс зданий факультета права и администрации Венского экономического университета © Ronald Kreimel
Комплекс зданий факультета права и администрации Венского экономического университета © Ronald Kreimel
Комплекс зданий факультета права и администрации Венского экономического университета © Ronald Kreimel
Комплекс зданий факультета права и администрации Венского экономического университета © Ronald Kreimel
Комплекс зданий факультета права и администрации Венского экономического университета © Ronald Kreimel
Комплекс зданий факультета права и администрации Венского экономического университета © Kurt Kuball
Комплекс зданий факультета права и администрации Венского экономического университета © Kurt Kuball
Комплекс зданий факультета права и администрации Венского экономического университета © Kurt Kuball
Комплекс зданий факультета права и администрации Венского экономического университета © Kurt Kuball
Комплекс зданий факультета права и администрации Венского экономического университета © Ronald Kreimel
Комплекс зданий факультета права и администрации Венского экономического университета © Ronald Kreimel
Комплекс зданий факультета права и администрации Венского экономического университета © Ronald Kreimel
Комплекс зданий факультета права и администрации Венского экономического университета © Ronald Kreimel
Комплекс зданий факультета права и администрации Венского экономического университета © Ronald Kreimel
Комплекс зданий факультета права и администрации Венского экономического университета © Ronald Kreimel
Комплекс зданий факультета права и администрации Венского экономического университета © Ronald Kreimel
Комплекс зданий факультета права и администрации Венского экономического университета © Ronald Kreimel
Комплекс зданий факультета права и администрации Венского экономического университета © Ronald Kreimel
Комплекс зданий факультета права и администрации Венского экономического университета © Ronald Kreimel
Комплекс зданий факультета права и администрации Венского экономического университета © Ronald Kreimel
Комплекс зданий факультета права и администрации Венского экономического университета © Ronald Kreimel
Комплекс зданий факультета права и администрации Венского экономического университета © Kurt Kuball
Комплекс зданий факультета права и администрации Венского экономического университета © Kurt Kuball
Комплекс зданий факультета права и администрации Венского экономического университета © Ronald Kreimel
Комплекс зданий факультета права и администрации Венского экономического университета © Ronald Kreimel
Комплекс зданий факультета права и администрации Венского экономического университета © Ronald Kreimel
Комплекс зданий факультета права и администрации Венского экономического университета © Ronald Kreimel
Комплекс зданий факультета права и администрации Венского экономического университета © Ronald Kreimel
Комплекс зданий факультета права и администрации Венского экономического университета © Ronald Kreimel
Комплекс зданий факультета права и администрации Венского экономического университета © Ronald Kreimel
Комплекс зданий факультета права и администрации Венского экономического университета © Ronald Kreimel
Комплекс зданий факультета права и администрации Венского экономического университета © Ronald Kreimel
Комплекс зданий факультета права и администрации Венского экономического университета © Ronald Kreimel
Комплекс зданий факультета права и администрации Венского экономического университета © Ronald Kreimel
Комплекс зданий факультета права и администрации Венского экономического университета © Ronald Kreimel
Комплекс зданий факультета права и администрации Венского экономического университета © Ronald Kreimel
Комплекс зданий факультета права и администрации Венского экономического университета © Ronald Kreimel
Комплекс зданий факультета права и администрации Венского экономического университета © CRAB studio
Комплекс зданий факультета права и администрации Венского экономического университета © CRAB studio
Комплекс зданий факультета права и администрации Венского экономического университета © CRAB studio
Комплекс зданий факультета права и администрации Венского экономического университета © CRAB studio
Комплекс зданий факультета права и администрации Венского экономического университета © CRAB studio
Комплекс зданий факультета права и администрации Венского экономического университета © CRAB studio
Комплекс зданий факультета права и администрации Венского экономического университета © CRAB studio
Комплекс зданий факультета права и администрации Венского экономического университета © CRAB studio
Комплекс зданий факультета права и администрации Венского экономического университета © CRAB studio
Комплекс зданий факультета права и администрации Венского экономического университета © CRAB studio
Комплекс зданий факультета права и администрации Венского экономического университета © CRAB studio
Комплекс зданий факультета права и администрации Венского экономического университета © CRAB studio
Комплекс зданий факультета права и администрации Венского экономического университета © CRAB studio
Комплекс зданий факультета права и администрации Венского экономического университета © CRAB studio
Комплекс зданий факультета права и администрации Венского экономического университета © CRAB studio
Комплекс зданий факультета права и администрации Венского экономического университета © CRAB studio
Комплекс зданий факультета права и администрации Венского экономического университета © CRAB studio
Комплекс зданий факультета права и администрации Венского экономического университета © CRAB studio
Комплекс зданий факультета права и администрации Венского экономического университета © CRAB studio
Комплекс зданий факультета права и администрации Венского экономического университета © CRAB studio
Комплекс зданий факультета права и администрации Венского экономического университета © CRAB studio
Комплекс зданий факультета права и администрации Венского экономического университета © CRAB studio
Комплекс зданий факультета права и администрации Венского экономического университета © CRAB studio
Комплекс зданий факультета права и администрации Венского экономического университета © CRAB studio
Комплекс зданий факультета права и администрации Венского экономического университета © CRAB studio
Комплекс зданий факультета права и администрации Венского экономического университета © CRAB studio
Комплекс зданий факультета права и администрации Венского экономического университета © CRAB studio
Комплекс зданий факультета права и администрации Венского экономического университета © CRAB studio
Комплекс зданий факультета права и администрации Венского экономического университета © CRAB studio
Комплекс зданий факультета права и администрации Венского экономического университета © CRAB studio
Комплекс зданий факультета права и администрации Венского экономического университета © CRAB studio
Комплекс зданий факультета права и администрации Венского экономического университета © CRAB studio