Размещено на портале Архи.ру (www.archi.ru)

18.12.2013

Творческое сотрудничество

Нина Фролова
Объект:
Манчестерская школа искусств
Адрес:
Великобритания, None, Манчестер.
Мастерская:
Feilden Clegg Bradley Studios

Бюро Feilden Clegg Bradley Studios построило новое здание Манчестерской школы искусств.

Манчестерская школа искусств © Hufton + Crow
Манчестерская школа искусств © Hufton + Crow

Новое здание дополняет комплекс из корпусов конца викторианской эпохи и послевоенного времени. Как и большинство современных построек для вузов, оно должно побуждать студентов разных специальностей к сотрудничеству с помощью разнообразных общественных пространств, открытых студий и выставочных зон. Но и сам его архитектурный проект стал образцом сотрудничества: ведь архитекторы работали с заказчиками творческих профессий над зданием, предназначенным для обучения художников и дизайнеров разных специальностей – от графиков до модельеров. Поэтому, как признаются его авторы, проект очень выиграл от этих живых дискуссий, «переделки» идей и разнообразных экспериментов и проверок.
Манчестерская школа искусств © Hufton + Crow
Манчестерская школа искусств © Hufton + Crow

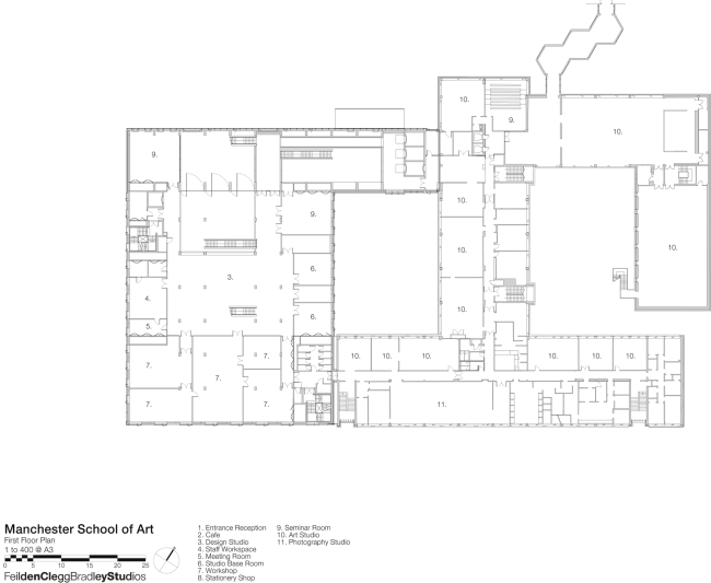
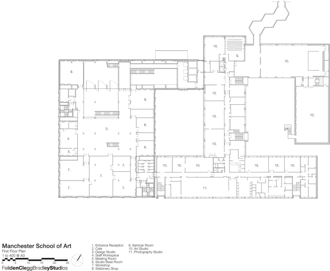
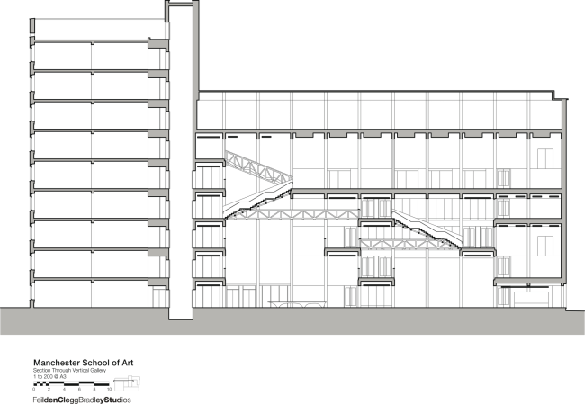
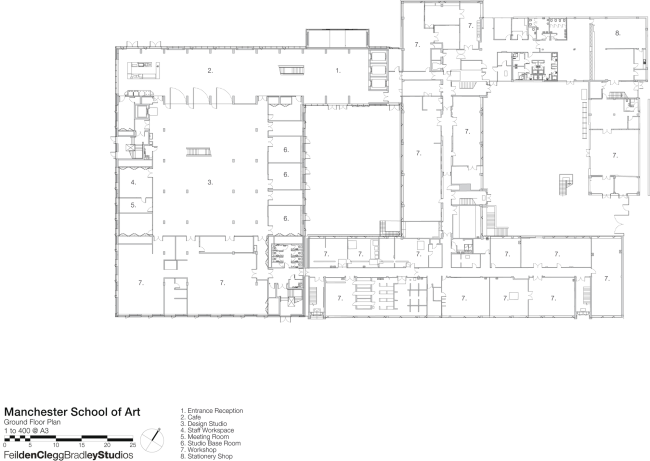
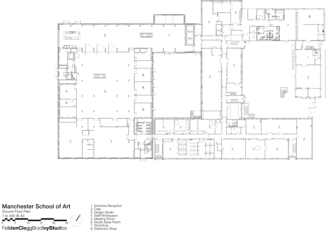
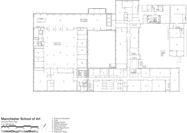
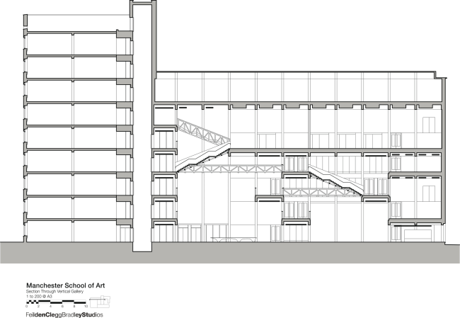
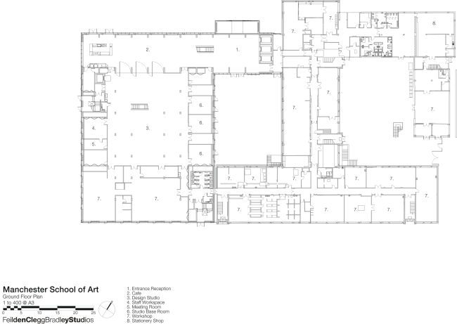
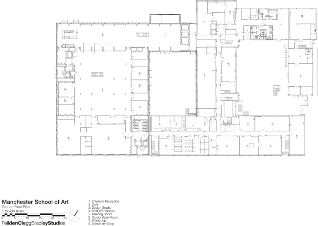
Новый корпус состоит из двух частей. Упомянутые открытые студии, мастерские и учебные помещения образуют «Дизайнерский ангар» (Design Shed), который с расположенным рядом многоэтажным корпусом 1960-х (его Feilden Clegg Bradley Studios обновили) соединяет «Вертикальная галерея» (Vertical Gallery), где студенты выставляют свои работы. Она также служит внешней «витриной» для всей Школы искусств.
Манчестерская школа искусств © Hufton + Crow
Манчестерская школа искусств © Hufton + Crow

В интерьере преобладает бетон четырех оттенков. В частности, некрашеный бетон с грубой поверхностью оставлен для служебных лестниц, а в центре здания четыре колонны получили рельефный узор, повторяющий орнамент обоев начала 20 века, созданный участником движения «Искусства и ремесла» Льюисом Форманом Дейем. В «Вертикальной галерее» бетонное окружение оттеняет древесина белого дуба, которой обшиты многочисленные лестницы и мостики.
Манчестерская школа искусств © Hufton + Crow
Манчестерская школа искусств © Hufton + Crow
Манчестерская школа искусств © Hufton + Crow
Манчестерская школа искусств © Hufton + Crow
Манчестерская школа искусств © Hufton + Crow
Манчестерская школа искусств © Hufton + Crow
Манчестерская школа искусств © Hufton + Crow
Манчестерская школа искусств © Hufton + Crow
Манчестерская школа искусств © Hufton + Crow
Манчестерская школа искусств © Hufton + Crow
Манчестерская школа искусств © Hufton + Crow
Манчестерская школа искусств © Hufton + Crow
Манчестерская школа искусств © Hufton + Crow
Манчестерская школа искусств © Hufton + Crow
Манчестерская школа искусств © Hufton + Crow
Манчестерская школа искусств © Hufton + Crow
Манчестерская школа искусств © Hufton + Crow
Манчестерская школа искусств © Hufton + Crow
Манчестерская школа искусств © Hufton + Crow
Манчестерская школа искусств © Hufton + Crow
Манчестерская школа искусств © Hufton + Crow
Манчестерская школа искусств © Hufton + Crow
Манчестерская школа искусств © Hufton + Crow
Манчестерская школа искусств © Hufton + Crow
Манчестерская школа искусств © Hufton + Crow
Манчестерская школа искусств © Hufton + Crow
Манчестерская школа искусств © Hufton + Crow
Манчестерская школа искусств © Hufton + Crow
Манчестерская школа искусств © Hufton + Crow
Манчестерская школа искусств © Hufton + Crow
Манчестерская школа искусств © Hufton + Crow
Манчестерская школа искусств © Hufton + Crow
Манчестерская школа искусств © Hufton + Crow
Манчестерская школа искусств © Hufton + Crow
Манчестерская школа искусств © Hufton + Crow
Манчестерская школа искусств © Hufton + Crow
Манчестерская школа искусств © Hufton + Crow
Манчестерская школа искусств © Hufton + Crow
Манчестерская школа искусств © Hufton + Crow
Манчестерская школа искусств © Hufton + Crow
Манчестерская школа искусств © Hufton + Crow
Манчестерская школа искусств © Hufton + Crow
Манчестерская школа искусств © Hufton + Crow
Манчестерская школа искусств © Hufton + Crow
Манчестерская школа искусств © Hufton + Crow
Манчестерская школа искусств © Hufton + Crow
Манчестерская школа искусств © Feilden Clegg Bradley Studios
Манчестерская школа искусств © Feilden Clegg Bradley Studios
Манчестерская школа искусств © Feilden Clegg Bradley Studios
Манчестерская школа искусств © Feilden Clegg Bradley Studios
Манчестерская школа искусств © Feilden Clegg Bradley Studios
Манчестерская школа искусств © Feilden Clegg Bradley Studios
Манчестерская школа искусств © Feilden Clegg Bradley Studios
Манчестерская школа искусств © Feilden Clegg Bradley Studios
Манчестерская школа искусств © Feilden Clegg Bradley Studios
Манчестерская школа искусств © Feilden Clegg Bradley Studios