Размещено на портале Архи.ру (www.archi.ru)

18.12.2013

Фабрика архитекторов

Анна Мартовицкая
Объект:
Высшая архитектурная школа Страсбурга
Адрес:
Франция, None, Страсбург.

По проекту Марка Мимрама в Страсбурге закончено строительство нового здания Высшей архитектурной школы.

Высшая архитектурная школа Страсбурга © Julien Lanoo
Высшая архитектурная школа Страсбурга © Julien Lanoo

Новое здание архитектурного вуза, уже получившее неформальное название La Fabrique («Фабрика»), расположилось через переулок от старого корпуса (прозванного Le Garage, «Гараж») и соединено с ним с помощью остекленного перехода на уровне 2-го этажа. Общая площадь возведенного объема – 4500 м2.
Высшая архитектурная школа Страсбурга © Julien Lanoo
Высшая архитектурная школа Страсбурга © Julien Lanoo

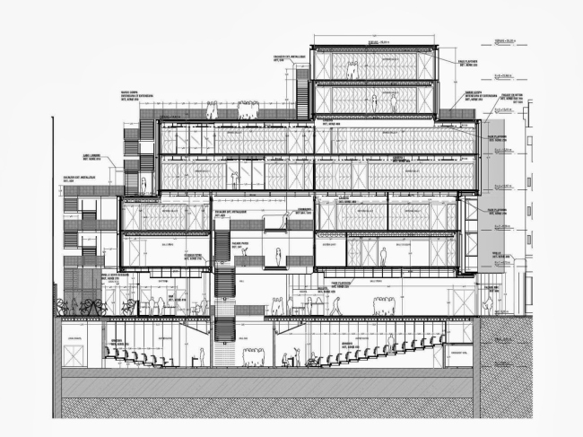
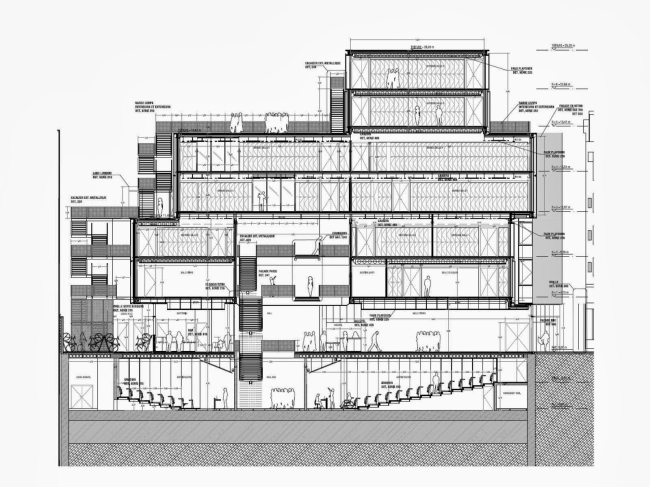
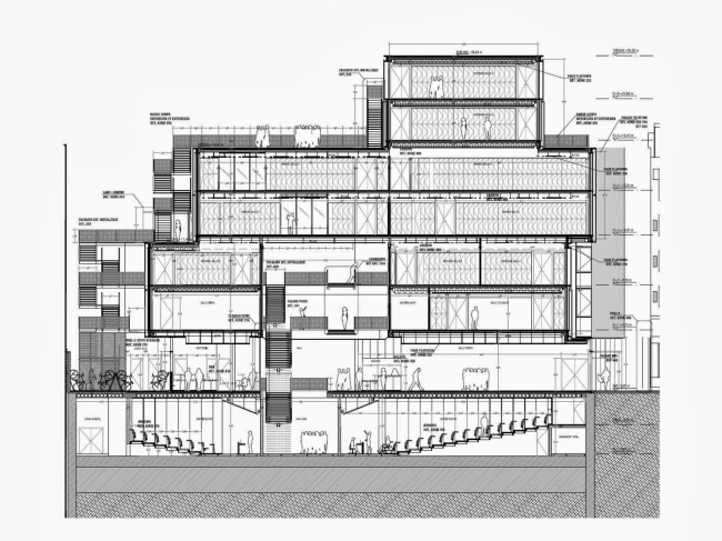
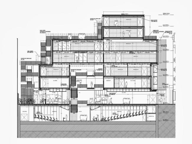
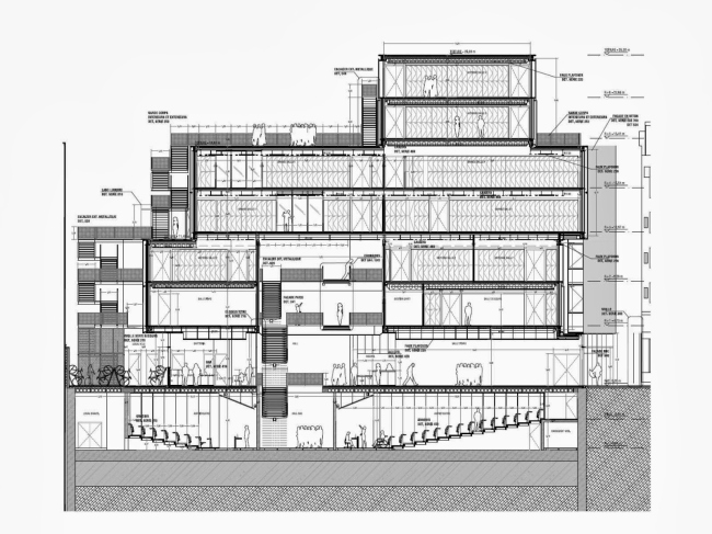
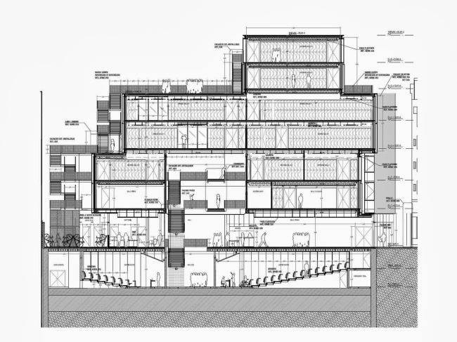
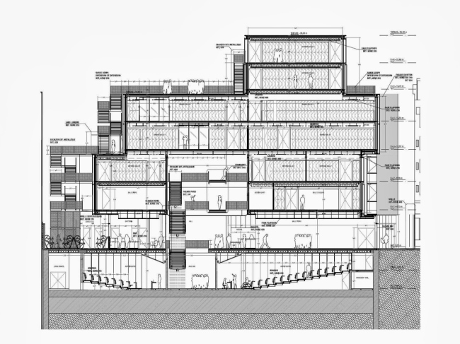
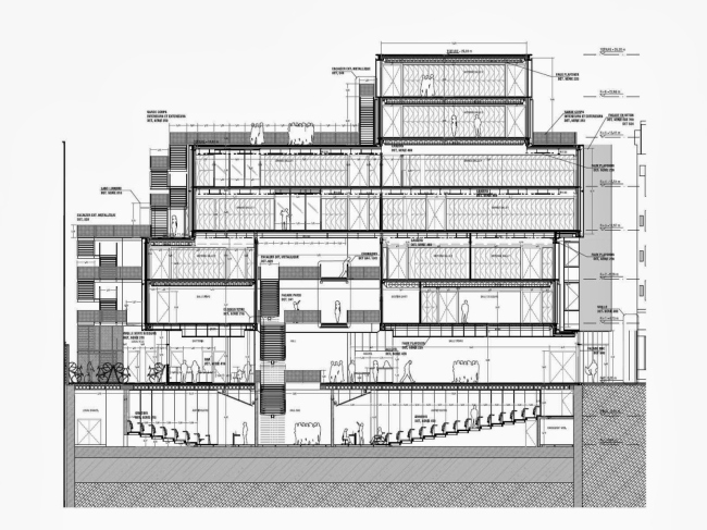
Новый учебный корпус имеет 7 этажей, но его истинная этажность скрадывается за счет оригинального решения фасадов, разработанного Мимрамом. «Фабрику» по выпуску архитекторов он трактовал как Г-образное в плане здание. Своим углом оно обращено к небольшому, но все же перекрестку, который архитектор фиксирует с помощью более активной тектоники фасада. На уровне первого этажа из «угла» вынимается часть объема для того, чтобы создать входную нишу, а выше монолитный объем расщепляется на несколько кубических блоков, которые сдвинуты не только относительно друг друга, но и по отношению к центральной оси. Высота каждого из них – два этажа.
Высшая архитектурная школа Страсбурга © Julien Lanoo
Высшая архитектурная школа Страсбурга © Julien Lanoo

Первый этаж комплекса полностью остеклен, а выше фасады сделаны полупрозрачными: в темное время суток они подсвечиваются изнутри, «обнажая» конструктивный каркас здания.
Высшая архитектурная школа Страсбурга © Julien Lanoo
Высшая архитектурная школа Страсбурга © Julien Lanoo

Старый корпус школы, «Гараж», сейчас реконструируется по проекту Мимрама и откроется через год, в декабре 2014. Его обновление и строительство «Фабрики» стоило в общей сложности 13,4 млн евро.
Высшая архитектурная школа Страсбурга © Julien Lanoo
Высшая архитектурная школа Страсбурга © Julien Lanoo
Высшая архитектурная школа Страсбурга © Julien Lanoo
Высшая архитектурная школа Страсбурга © Julien Lanoo
Высшая архитектурная школа Страсбурга © Julien Lanoo
Высшая архитектурная школа Страсбурга © Julien Lanoo
Высшая архитектурная школа Страсбурга © Julien Lanoo
Высшая архитектурная школа Страсбурга © Julien Lanoo
Высшая архитектурная школа Страсбурга © Julien Lanoo
Высшая архитектурная школа Страсбурга © Julien Lanoo
Высшая архитектурная школа Страсбурга © Julien Lanoo
Высшая архитектурная школа Страсбурга © Julien Lanoo
Высшая архитектурная школа Страсбурга © Julien Lanoo
Высшая архитектурная школа Страсбурга © Julien Lanoo
Высшая архитектурная школа Страсбурга © Julien Lanoo
Высшая архитектурная школа Страсбурга © Julien Lanoo
Высшая архитектурная школа Страсбурга © Julien Lanoo
Высшая архитектурная школа Страсбурга © Julien Lanoo
Высшая архитектурная школа Страсбурга © Julien Lanoo
Высшая архитектурная школа Страсбурга © Julien Lanoo
Высшая архитектурная школа Страсбурга © Julien Lanoo
Высшая архитектурная школа Страсбурга © Julien Lanoo
Высшая архитектурная школа Страсбурга © Julien Lanoo
Высшая архитектурная школа Страсбурга © Julien Lanoo
Высшая архитектурная школа Страсбурга © Julien Lanoo
Высшая архитектурная школа Страсбурга © Julien Lanoo
Высшая архитектурная школа Страсбурга © Julien Lanoo
Высшая архитектурная школа Страсбурга © Julien Lanoo
Высшая архитектурная школа Страсбурга © Julien Lanoo
Высшая архитектурная школа Страсбурга © Julien Lanoo
Высшая архитектурная школа Страсбурга © agence Marc Mimram
Высшая архитектурная школа Страсбурга © agence Marc Mimram
Высшая архитектурная школа Страсбурга © agence Marc Mimram
Высшая архитектурная школа Страсбурга © agence Marc Mimram
Высшая архитектурная школа Страсбурга © agence Marc Mimram
Высшая архитектурная школа Страсбурга © agence Marc Mimram