Размещено на портале Архи.ру (www.archi.ru)

13.12.2013

Эллинги-близнецы

Нина Фролова
Объект:
Здание FRAC Гран-Ларж региона О-де-Франс
Адрес:
Франция, None, Дюнкерк. 503 av. des Bancs de Flandres 59140 Dunkerque
Мастерская:
Lacaton & Vassal

На севере Франции открылся центр современного искусства FRAC, спроектированный бюро Lacaton & Vassal.

Здание FRAC Север – Па-де-Кале ©  Philippe Ruault
Здание FRAC Север – Па-де-Кале © Philippe Ruault

Двадцать три FRAC’a – Региональных фонда современного искусства – были созданы во Франции в начале 1980-х: они покупают произведения и используют в просветительских целях – для устройства выставок на своих и сторонних площадках и для сдачи в аренду общественным учреждениям, что тоже есть форма экспозиции. Этим летом здание FRAC по проекту Кенго Кума открылось в Марселе, а сейчас новую штаб-квартиру получил фонд региона Север – Па-де-Кале, базирующийся в Дюнкерке на границе с Бельгией.
Здание FRAC Север – Па-де-Кале ©  Philippe Ruault
Здание FRAC Север – Па-де-Кале © Philippe Ruault

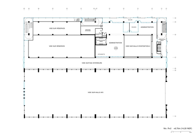
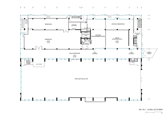
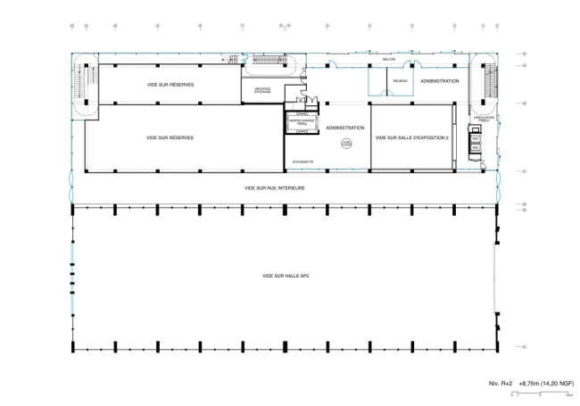
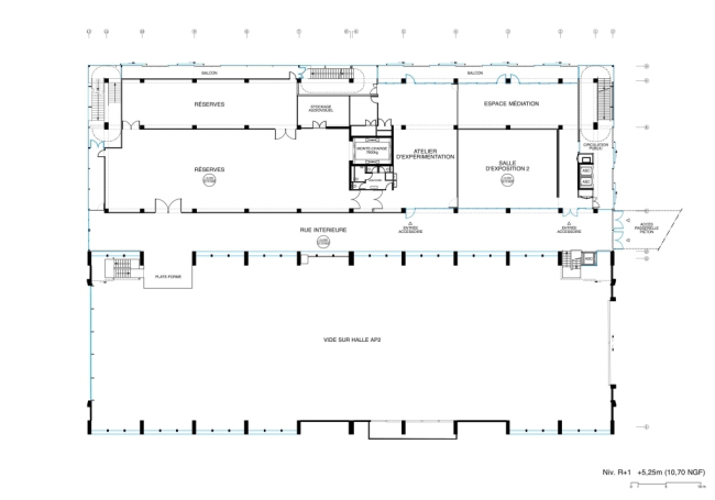
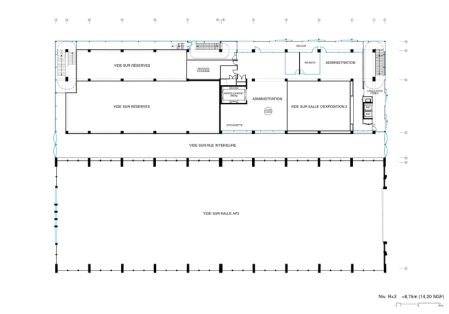
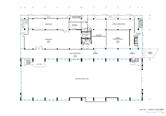
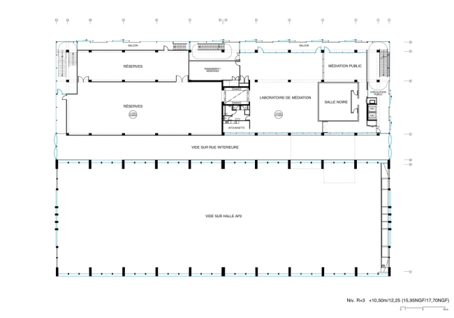
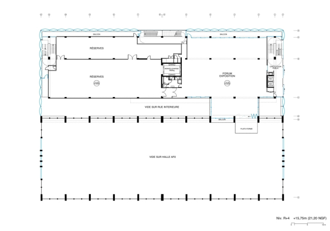
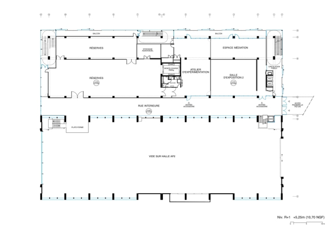
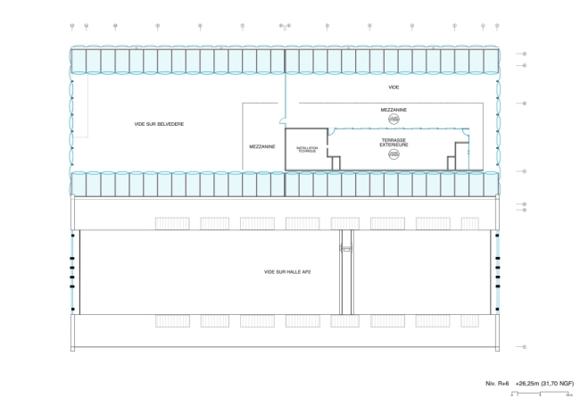
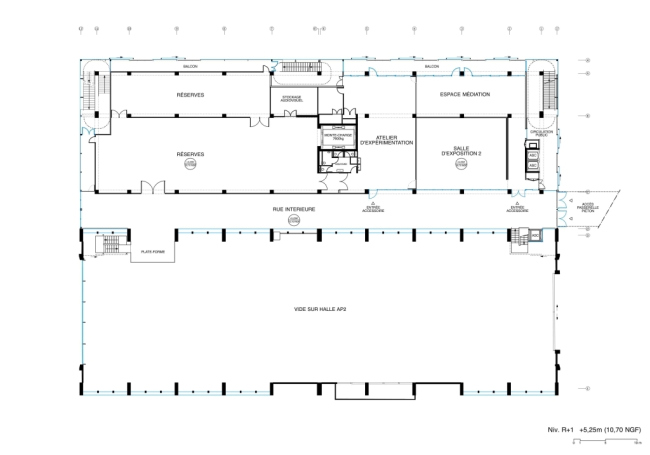
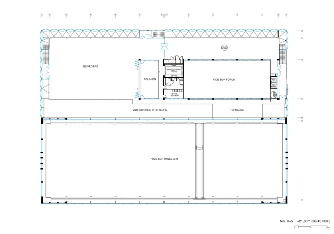
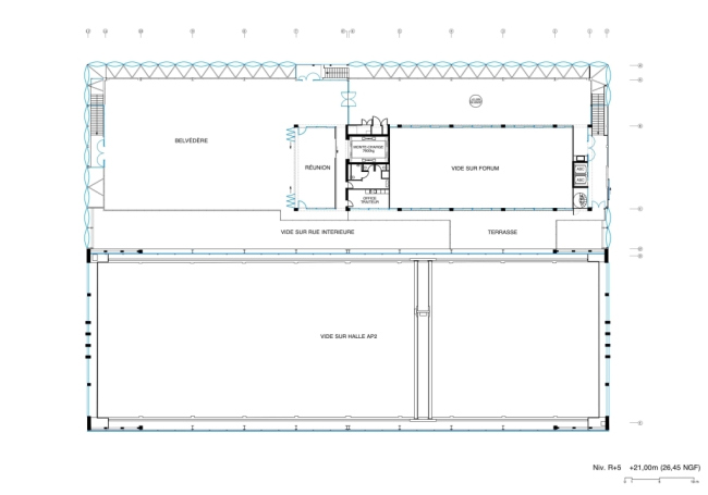
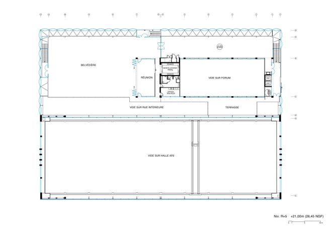
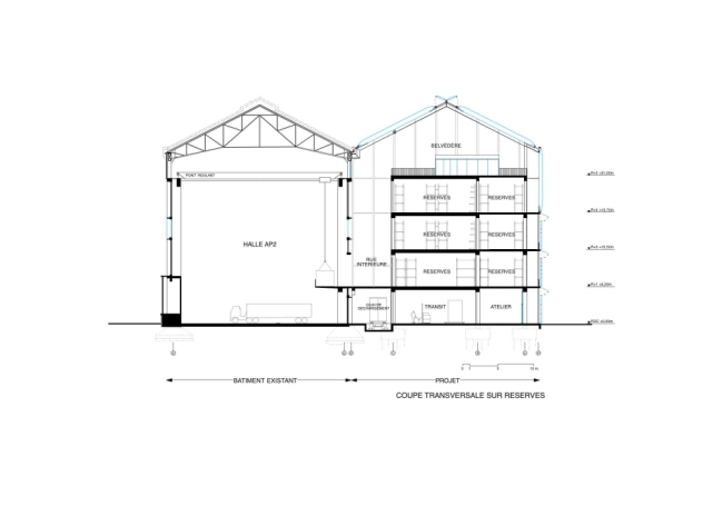
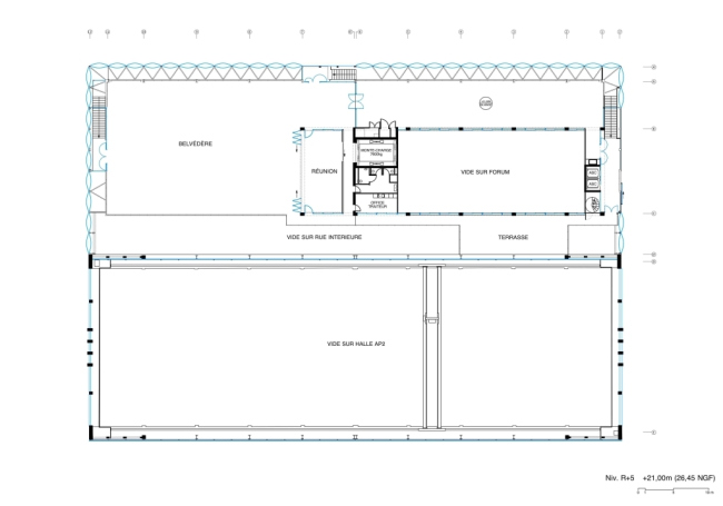
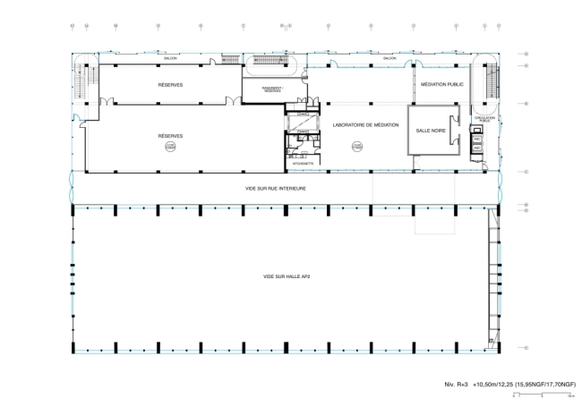
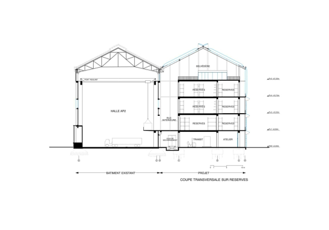
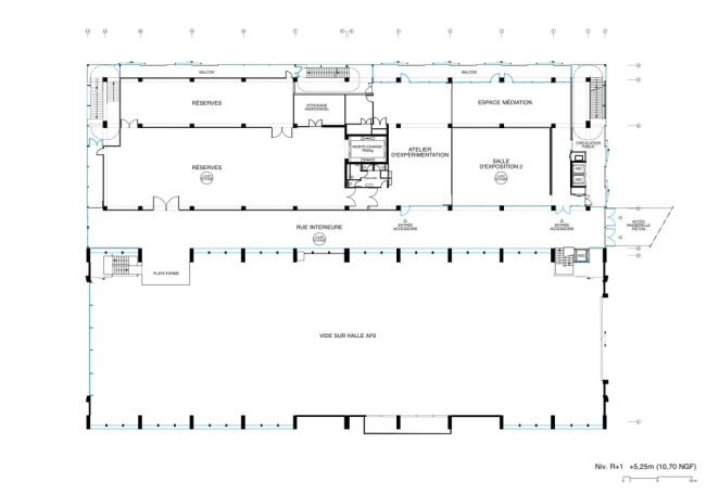
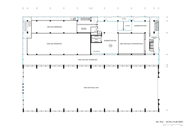
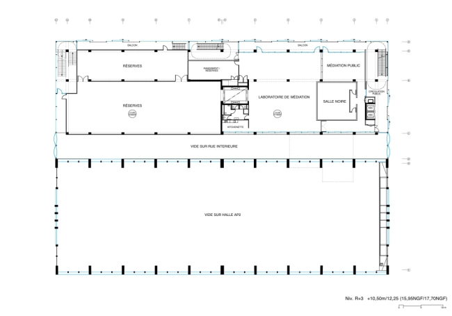
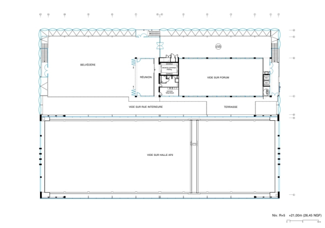
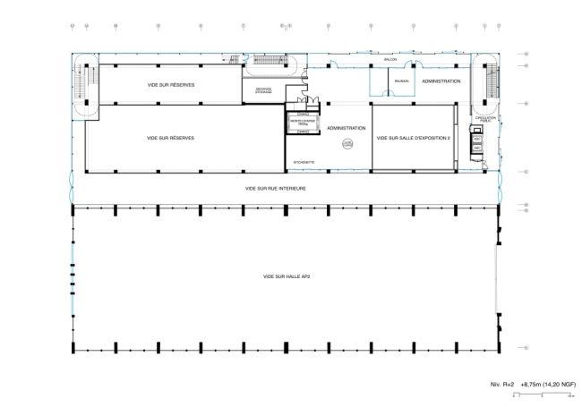
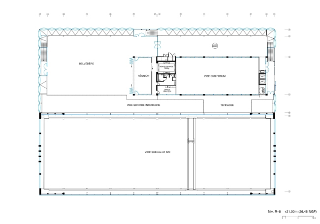
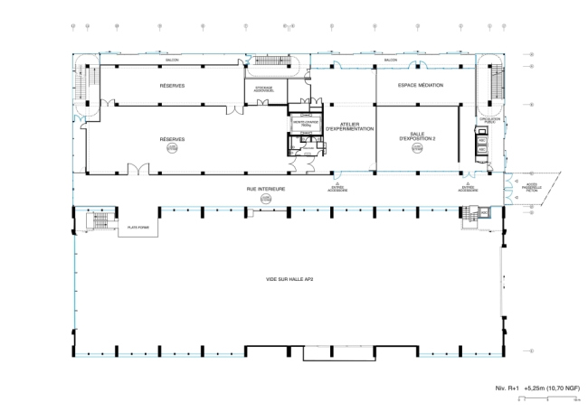
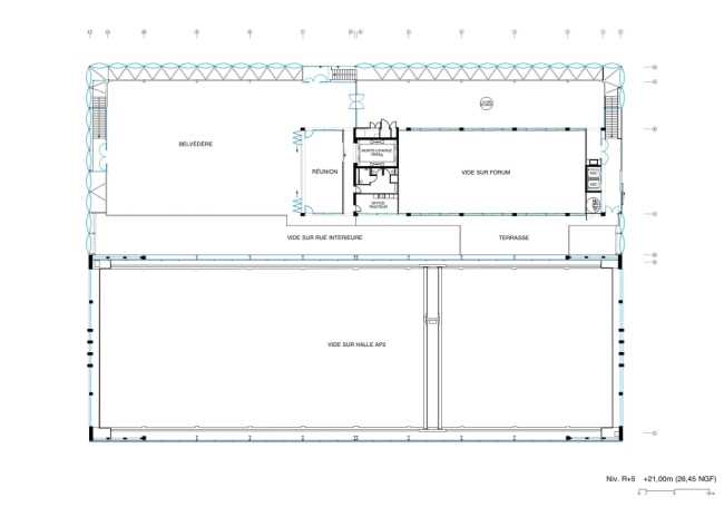
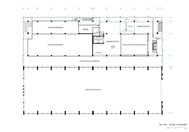
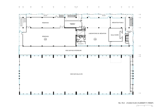
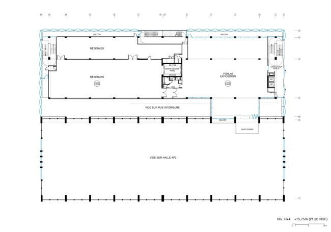
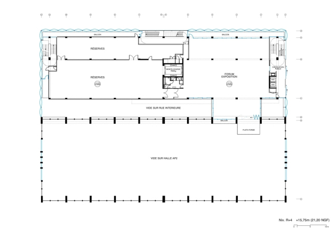
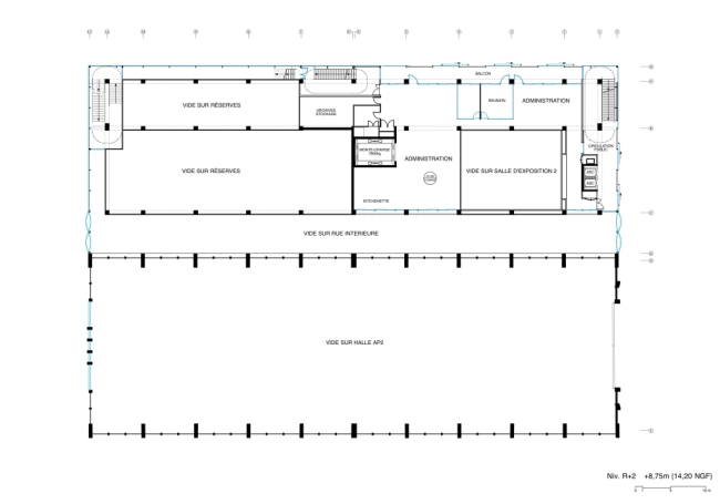
Новая постройка расположена совсем близко от пляжа. Ее основа – эллинг 35 метров в высоту, построенный в 1949 и прозванный местными жителями «собором». Когда на проект FRAC проводили конкурс в 2009, заказчики ждали от участников более или менее традиционной реконструкции, однако победители, Lacaton & Vassal, пожелали сохранить «храмовый» интерьер эллинга в неприкосновенности, а запасники, офисы сотрудников и образовательный центр разместить в пристроенном вплотную «близнеце» таких же габаритов.
Здание FRAC Север – Па-де-Кале ©  Philippe Ruault
Здание FRAC Север – Па-де-Кале © Philippe Ruault

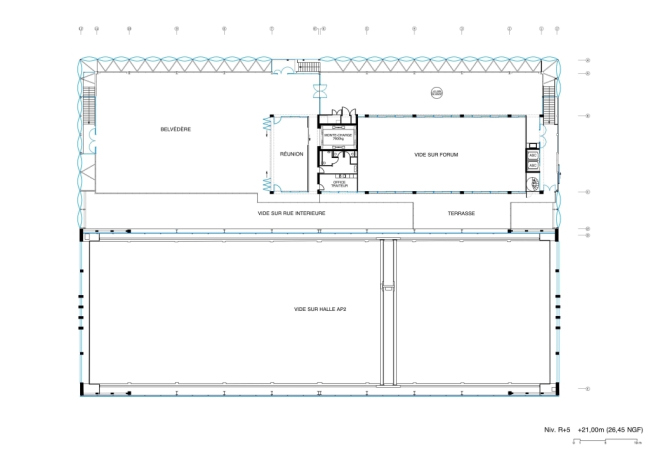
Эллинг превращен теперь в крытую «городскую площадь», всегда открытую для всех в дневное время. Он предназначен для крупных выставок и инсталляций, проведения концертов, спектаклей и даже цифровых представлений – под эгидой FRAC или сторонних организаторов. Образцом для авторов проекта был Турбинный зал лондонской Галереи Тейт Модерн бюро Herzog & de Meuron.
Здание FRAC Север – Па-де-Кале ©  Philippe Ruault
Здание FRAC Север – Па-де-Кале © Philippe Ruault

Решение «удвоить» эллинг, казалось бы, должно плачевно сказаться на бюджете, однако архитекторы, использовав самые дешевые стройматериалы и стандартные детали, потратили из изначального бюджета в 12,8 млн евро только 12 млн. Внешний слой фасада у нового корпуса – это рифленые поликарбонатные плиты, часть из которых можно раздвинуть, как ставни. Поэтому постройка кажется полупрозрачной, хотя на самом деле часть внутреннего слоя фасада сделана из сандвич-панелей: за ней скрываются запасники, где дневной свет не нужен. Остальные зоны остеклены.
Здание FRAC Север – Па-де-Кале ©  Philippe Ruault
Здание FRAC Север – Па-де-Кале © Philippe Ruault

Новый корпус разрезает вдоль «внутренняя улица»: в будущем она станет продолжением маршрута с пляжа, притягивающего летом массы туристов. А в верхней части постройки устроен «бельведер»: пространство без определенной программы, откуда сквозь мембрану из ETFE виднеются окрестности.
Здание FRAC Север – Па-де-Кале ©  Philippe Ruault
Здание FRAC Север – Па-де-Кале © Philippe Ruault

Lacaton & Vassal, авторы ресурсоэффективной реконструкции жилой башни на окраине Парижа, здесь также думали о «зеленой» стороне: хотя поликарбонат из-за влажного морского воздуха через 20 лет придется менять, он обеспечит во внутреннем пространстве температуру на 7 градусов выше, чем с обычным остеклением или ETFE – а это в прохладном климате Дюнкерка немаловажно.
Здание FRAC Север – Па-де-Кале ©  Philippe Ruault
Здание FRAC Север – Па-де-Кале © Philippe Ruault
Здание FRAC Север – Па-де-Кале ©  Philippe Ruault
Здание FRAC Север – Па-де-Кале © Philippe Ruault
Здание FRAC Север – Па-де-Кале ©  Philippe Ruault
Здание FRAC Север – Па-де-Кале © Philippe Ruault
Здание FRAC Север – Па-де-Кале ©  Philippe Ruault
Здание FRAC Север – Па-де-Кале © Philippe Ruault
Здание FRAC Север – Па-де-Кале ©  Philippe Ruault
Здание FRAC Север – Па-де-Кале © Philippe Ruault
Здание FRAC Север – Па-де-Кале ©  Philippe Ruault
Здание FRAC Север – Па-де-Кале © Philippe Ruault
Здание FRAC Север – Па-де-Кале ©  Philippe Ruault
Здание FRAC Север – Па-де-Кале © Philippe Ruault
Здание FRAC Север – Па-де-Кале ©  Philippe Ruault
Здание FRAC Север – Па-де-Кале © Philippe Ruault
Здание FRAC Север – Па-де-Кале ©  Philippe Ruault
Здание FRAC Север – Па-де-Кале © Philippe Ruault
Здание FRAC Север – Па-де-Кале ©  Philippe Ruault
Здание FRAC Север – Па-де-Кале © Philippe Ruault
Здание FRAC Север – Па-де-Кале ©  Philippe Ruault
Здание FRAC Север – Па-де-Кале © Philippe Ruault
Здание FRAC Север – Па-де-Кале ©  Philippe Ruault
Здание FRAC Север – Па-де-Кале © Philippe Ruault
Здание FRAC Север – Па-де-Кале ©  Philippe Ruault
Здание FRAC Север – Па-де-Кале © Philippe Ruault
Здание FRAC Север – Па-де-Кале ©  Philippe Ruault
Здание FRAC Север – Па-де-Кале © Philippe Ruault
Здание FRAC Север – Па-де-Кале ©  Philippe Ruault
Здание FRAC Север – Па-де-Кале © Philippe Ruault
Здание FRAC Север – Па-де-Кале ©  Philippe Ruault
Здание FRAC Север – Па-де-Кале © Philippe Ruault
Здание FRAC Север – Па-де-Кале ©  Philippe Ruault
Здание FRAC Север – Па-де-Кале © Philippe Ruault
Здание FRAC Север – Па-де-Кале. Вид эллинга до перестройки
Здание FRAC Север – Па-де-Кале. Вид эллинга до перестройки
© Lacaton & Vassal Architectes
Здание FRAC Север – Па-де-Кале. Вид эллинга до перестройки
Здание FRAC Север – Па-де-Кале. Вид эллинга до перестройки
© Lacaton & Vassal Architectes
Здание FRAC Север – Па-де-Кале. Вид эллинга до перестройки
Здание FRAC Север – Па-де-Кале. Вид эллинга до перестройки
© Lacaton & Vassal Architectes
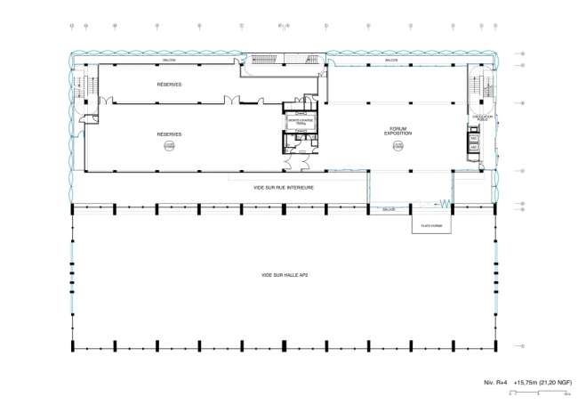
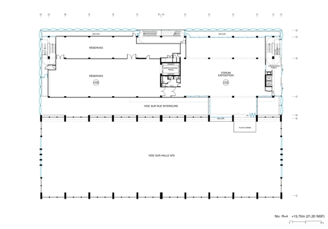
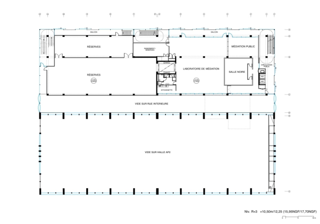
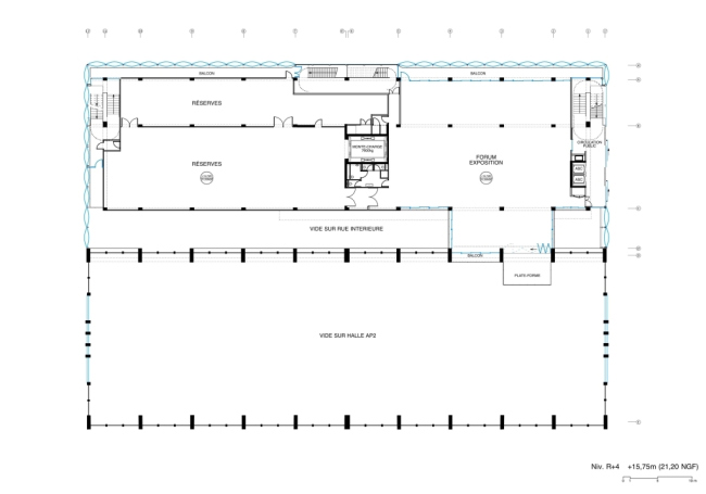
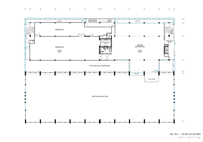
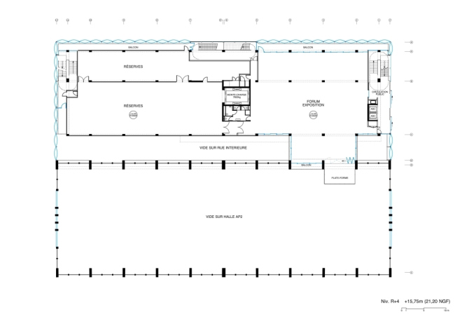
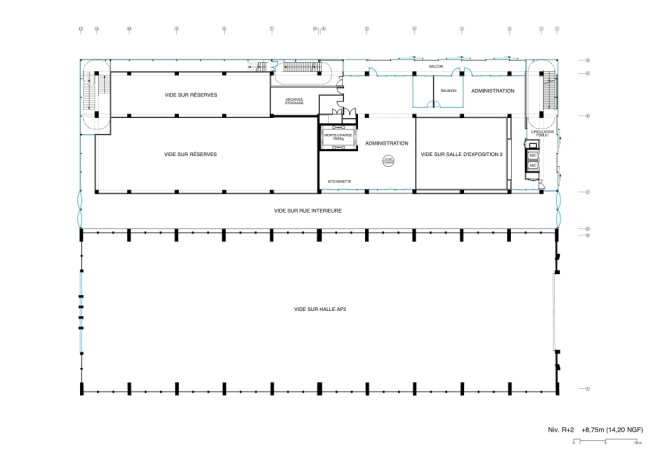
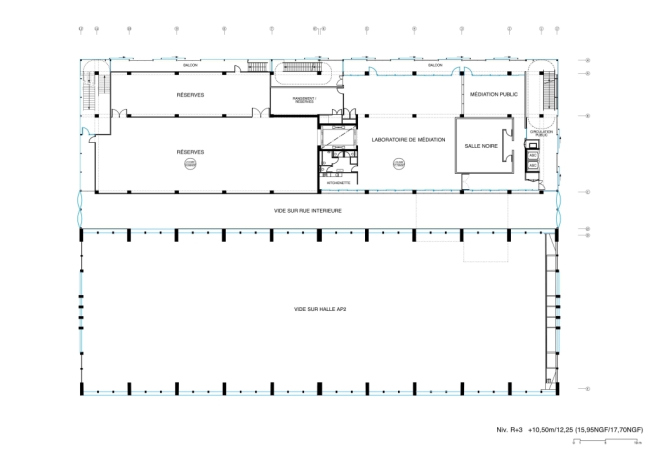
Здание FRAC Гран-Ларж региона О-де-Франс
Здание FRAC Гран-Ларж региона О-де-Франс
© Lacaton & Vassal Architectes
Здание FRAC Гран-Ларж региона О-де-Франс
Здание FRAC Гран-Ларж региона О-де-Франс
© Lacaton & Vassal Architectes
Здание FRAC Гран-Ларж региона О-де-Франс
Здание FRAC Гран-Ларж региона О-де-Франс
© Lacaton & Vassal Architectes
Здание FRAC Гран-Ларж региона О-де-Франс
Здание FRAC Гран-Ларж региона О-де-Франс
© Lacaton & Vassal Architectes
Здание FRAC Гран-Ларж региона О-де-Франс
Здание FRAC Гран-Ларж региона О-де-Франс
© Lacaton & Vassal Architectes
Здание FRAC Гран-Ларж региона О-де-Франс
Здание FRAC Гран-Ларж региона О-де-Франс
© Lacaton & Vassal Architectes
Здание FRAC Гран-Ларж региона О-де-Франс
Здание FRAC Гран-Ларж региона О-де-Франс
© Lacaton & Vassal Architectes
Здание FRAC Гран-Ларж региона О-де-Франс
Здание FRAC Гран-Ларж региона О-де-Франс
© Lacaton & Vassal Architectes
Здание FRAC Гран-Ларж региона О-де-Франс
Здание FRAC Гран-Ларж региона О-де-Франс
© Lacaton & Vassal Architectes
Здание FRAC Гран-Ларж региона О-де-Франс
Здание FRAC Гран-Ларж региона О-де-Франс
© Lacaton & Vassal Architectes
Здание FRAC Гран-Ларж региона О-де-Франс
Здание FRAC Гран-Ларж региона О-де-Франс
© Lacaton & Vassal Architectes