Размещено на портале Архи.ру (www.archi.ru)

12.12.2013

Бразильский размах

Нина Фролова
Объект:
Город искусств
Адрес:
Бразилия, None, Рио-де-Жанейро.

В Рио-де-Жанейро построен культурный центр «Город искусств», спроектированный Кристианом де Портзампарком.

Город искусств © Nelson Kon
Город искусств © Nelson Kon

Здание возведено на равнине Бара-да-Тижука, одного из молодых районов Рио. Его пространство, по замыслу автора генплана Бразилиа Лусиу Коста, организовывают две пересекающиеся автомагистрали, и в центре этого «креста» расположен «Город искусств».
Город искусств © Nelson Kon
Город искусств © Nelson Kon

Сложный объем из некрашеного бетона ограничивают две горизонтали – терраса и крыша с большим выносом, а между ними энергично изгибающиеся поверхности заключают в себе отдельные функциональные зоны. Такое решение напоминает о героическом бразильском модернизме 1960-х и вполне соответствует генплану Косты. Также здание не теряется ни рядом с крупномасштабной коммерческой застройкой, ни в ландшафте, включающем океан и горы – причем именно они послужили источником вдохновения для архитектора.
Город искусств © Nelson Kon
Город искусств © Nelson Kon

«Город искусств» общей площадью 90 тыс. м2 реализовывали с перерывами около десяти лет: этот амбициозный проект, призванный воплотить все лучшее в бразильской культуре, еле успели завершить к грядущему Чемпионату мира по футболу-2014 и Олимпийским играм-2016 (большинство их сооружений возводят как раз в Бара-да-Тижука).
Город искусств © Nelson Kon
Город искусств © Nelson Kon

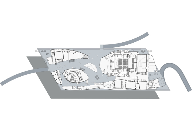
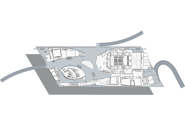
Постройка поднята над парком с тропической растительностью и водоемами: ее основной уровень, терраса, служащая также городской площадью – выше уровня земли на 10 метров. С этой террасы посетителю открыт доступ во все части «Города искусств», главная из которых – зал филармонии на 1800 мест, который можно использовать также для оперных спектаклей (конфигурация на 1300 мест) и драматических представлений.
Город искусств © Nelson Kon
Город искусств © Nelson Kon

Также там имеются зал камерной музыки (500 мест), электроакустический зал (180 мест), представительство Симфонического оркестра Бразилии, музыкальная школа, 10 репетиционных студий, медиатека, три кинозала, рестораны, магазины, административные помещения.
Город искусств © Nelson Kon
Город искусств © Nelson Kon

Изначально бразильский проект носил название «Город музыки», что роднит его с другой постройкой Портзампарка: одноименный комплекс со схожей программой он построил в Париже в начале 1990-х.
Город искусств © Nelson Kon
Город искусств © Nelson Kon
Город искусств © Nelson Kon
Город искусств © Nelson Kon
Город искусств © Nelson Kon
Город искусств © Nelson Kon
Город искусств.  Кристиан де Портзампарк. 2002-2007. Фотография © Nelson Kon
Город искусств. Кристиан де Портзампарк. 2002-2007. Фотография © Nelson Kon
Город искусств © Nelson Kon
Город искусств © Nelson Kon
Город искусств.  Кристиан де Портзампарк. 2002-2007. Фотография © Nelson Kon
Город искусств. Кристиан де Портзампарк. 2002-2007. Фотография © Nelson Kon
Город искусств © Nelson Kon
Город искусств © Nelson Kon
Город искусств © Andre Vieira
Город искусств © Andre Vieira
Город искусств. Фото: Revista Techné
Город искусств. Фото: Revista Techné
Город искусств © Nelson Kon
Город искусств © Nelson Kon
Город искусств © Nelson Kon
Город искусств © Nelson Kon
Город искусств © Nelson Kon
Город искусств © Nelson Kon
Город искусств © Nelson Kon
Город искусств © Nelson Kon
Город искусств © Nelson Kon
Город искусств © Nelson Kon
Город искусств © Nelson Kon
Город искусств © Nelson Kon
Город искусств © Nelson Kon
Город искусств © Nelson Kon
Город искусств.  Кристиан де Портзампарк. 2002-2007. Фотография © Nelson Kon
Город искусств. Кристиан де Портзампарк. 2002-2007. Фотография © Nelson Kon
Город искусств © Nelson Kon
Город искусств © Nelson Kon
Город искусств © Nelson Kon
Город искусств © Nelson Kon
Город искусств © Nelson Kon
Город искусств © Nelson Kon
Город искусств © Nelson Kon
Город искусств © Nelson Kon
Город искусств © Nelson Kon
Город искусств © Nelson Kon
Город искусств © Nelson Kon
Город искусств © Nelson Kon
Город искусств © Nelson Kon
Город искусств © Nelson Kon
Город искусств © Nelson Kon
Город искусств © Nelson Kon
Город искусств © Nelson Kon
Город искусств © Nelson Kon
Город искусств © Nelson Kon
Город искусств © Nelson Kon
Город искусств © Nelson Kon
Город искусств © Nelson Kon
Город искусств © Nelson Kon
Город искусств © Nelson Kon
Город искусств © Nelson Kon
Город искусств © Nelson Kon
Город искусств © Nelson Kon
Город искусств © Nelson Kon
Город искусств © Nelson Kon
Город искусств © Nelson Kon
Город искусств © Nelson Kon
Город искусств © Nelson Kon
Город искусств © Nelson Kon
Город искусств © Nelson Kon
Город искусств © Andre Vieira
Город искусств © Andre Vieira
Город искусств © Nelson Kon
Город искусств © Nelson Kon
Город искусств © Nelson Kon
Город искусств © Nelson Kon
Город искусств © Nelson Kon
Город искусств © Nelson Kon
Город искусств © Nelson Kon
Город искусств © Nelson Kon
Город искусств © Nelson Kon
Город искусств © Nelson Kon
Город искусств © Nelson Kon
Город искусств © Nelson Kon
Город искусств © Nelson Kon
Город искусств © Nelson Kon
Город искусств © Nelson Kon
Город искусств © Nelson Kon
Город искусств © Nelson Kon
Город искусств © Nelson Kon
Город искусств © Atelier Christian de Portzamparc
Город искусств © Atelier Christian de Portzamparc
Город искусств © Atelier Christian de Portzamparc
Город искусств © Atelier Christian de Portzamparc
Город искусств © Atelier Christian de Portzamparc
Город искусств © Atelier Christian de Portzamparc
Город искусств © Atelier Christian de Portzamparc
Город искусств © Atelier Christian de Portzamparc
Город искусств © Atelier Christian de Portzamparc
Город искусств © Atelier Christian de Portzamparc
Город искусств © Atelier Christian de Portzamparc
Город искусств © Atelier Christian de Portzamparc
Город искусств © Atelier Christian de Portzamparc
Город искусств © Atelier Christian de Portzamparc
Город искусств © Atelier Christian de Portzamparc
Город искусств © Atelier Christian de Portzamparc