Размещено на портале Архи.ру (www.archi.ru)

10.12.2013

Трогать обязательно!

Елизавета Эбнер

Рассказ о Научном центре Коперника в Варшаве мастерской Rar2 Laboratorium Architektury.

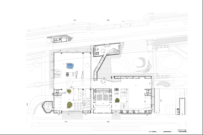
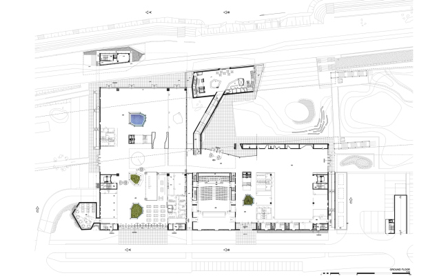
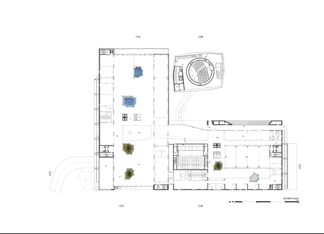
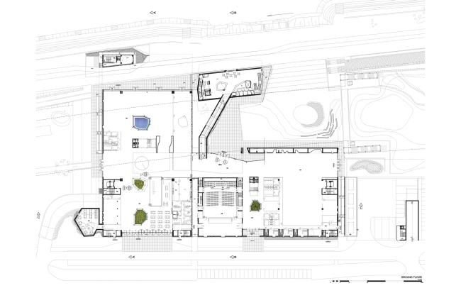
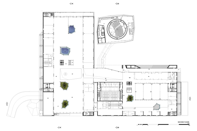
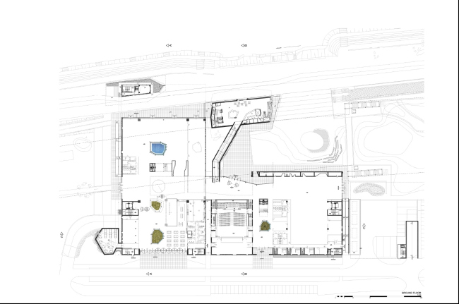
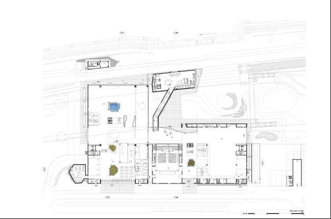
Научный центр Коперника. Изображение предоставлено RAr2 Laboratorium Architektury
Научный центр Коперника. Изображение предоставлено RAr2 Laboratorium Architektury

Что мы знаем о современной польской архитектуре? Крайне мало. Лично я интересоваться ею начала из-за польских друзей-архитекторов и врожденной любви к этой стране. Друзья стали ими не сразу: сначала они робко пытались мне доказать, что русские не любят поляков, и держали вежливую дистанцию. Может быть, кто-то и не любил, но определенно не я. Так получилось, что в детстве я часто бывала в Польше, и она всегда для меня была очень интересным местом, а польскую литературу я вообще обожала. Что же касается архитектуры… Кажется, что все, кроме «родной» исторической застройки, было «благоприобретено» через принадлежность Польши к соцлагерю. Со временем, конечно, начала появляться интересная современная архитектура – как принято говорить, более «европейская». За сталинской высоткой Дворца культуры и науки в центре Варшавы, подарком Советского Союза, понемногу вырастал торговый центр с волнообразной стеклянной крышей, тогда казавшийся по-настоящему новаторским проектом. Какими глазами я посмотрю на него сегодня – сказать не могу, но очень многое в современной архитектуре Польши кажется мне достойным обсуждения.
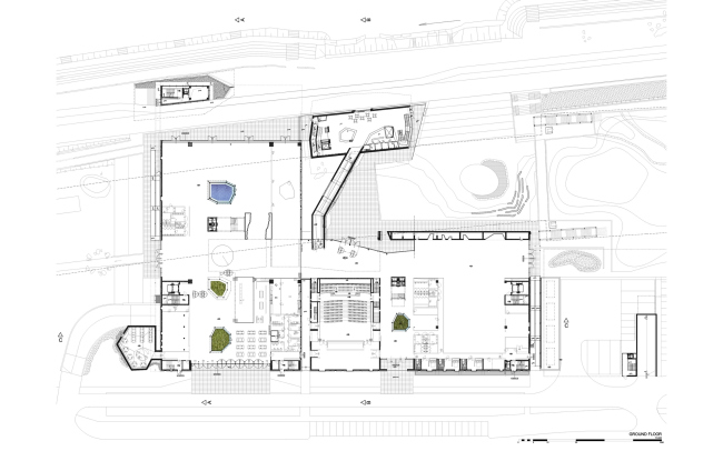
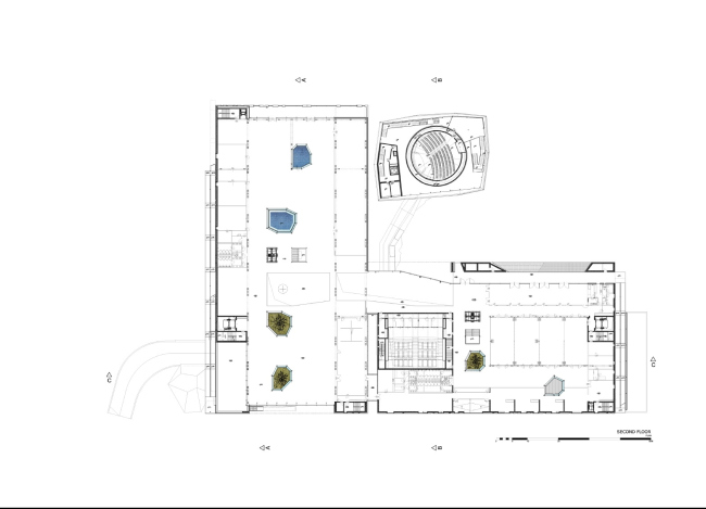
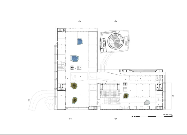
Научный центр Коперника. Изображение предоставлено RAr2 Laboratorium Architektury
Научный центр Коперника. Изображение предоставлено RAr2 Laboratorium Architektury

Поляки гордятся многими соотечественниками, но особенно – Николаем Коперником. Именем этого ученого эпохи Ренессанса сегодня названы музеи, торговые центры и даже городские часы, его портрет помещают на чашки, плакаты, пряники и так далее. А вот теперь в центре Варшавы появился научный центр его имени.
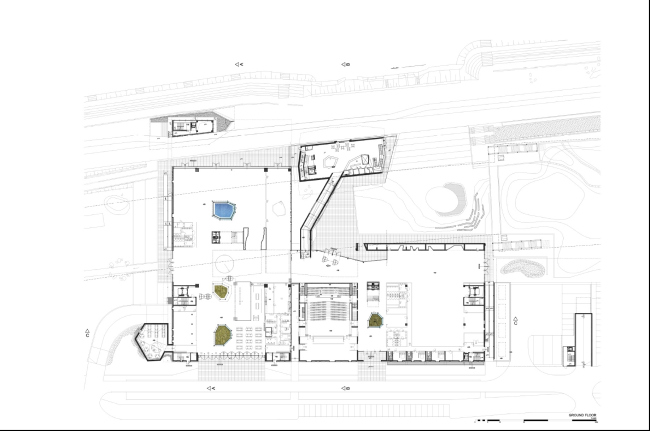
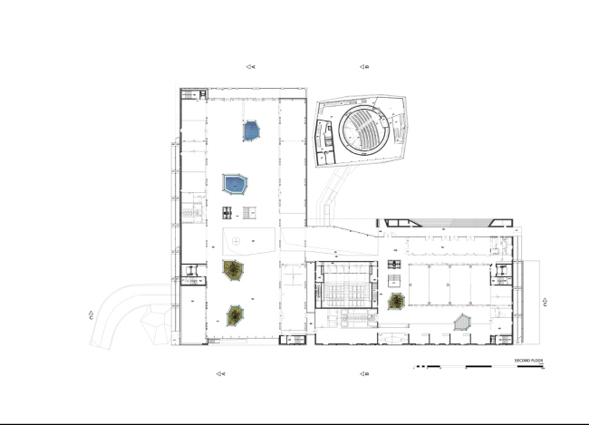
Научный центр Коперника. Изображение предоставлено RAr2 Laboratorium Architektury
Научный центр Коперника. Изображение предоставлено RAr2 Laboratorium Architektury

В Варшаве проводятся два главных научно-популярных события: «Фестиваль науки» и «Пикник науки». В 1997 организаторы этих фестивалей получили премию Хуго Штейнхауса и решили создать институцию, совмещающую функции музея и образовательного центра, где бы доступно объяснялись естественнонаучные процессы. В результате, в 2005 был объявлен конкурс на проект научно-исследовательского центра. Неожиданно для всех победило практически неизвестное на территории Польши, но уже прославившееся за рубежом бюро из города Руда-Слёнская – RAr2 Laboratorium Architektury.
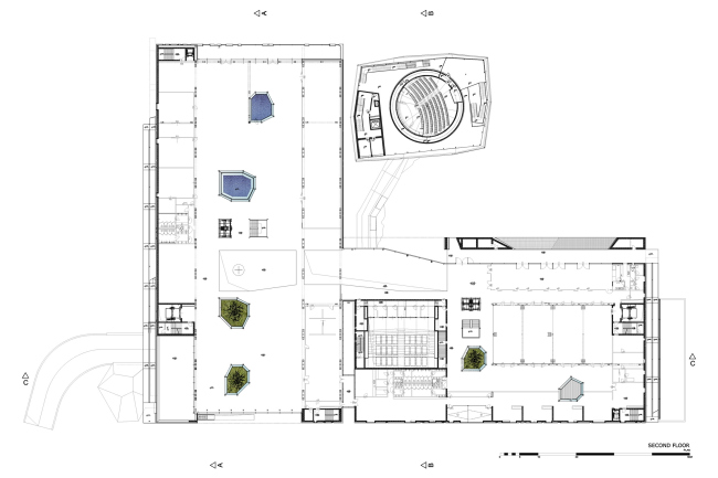
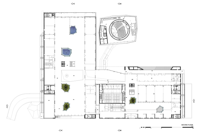
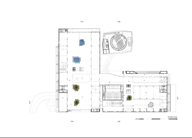
Научный центр Коперника. Изображение предоставлено RAr2 Laboratorium Architektury
Научный центр Коперника. Изображение предоставлено RAr2 Laboratorium Architektury

У этих архитекторов тогда было уже много интересных проектов, но мало реализаций, поэтому выиграть конкурс на объект в центре Варшавы, на берегу Вислы, стало для них большой удачей. Свой сделанный единодушно выбор жюри обосновало так: «Концепция, предложенная студией RAr2, идеально вписывалась в ландшафт и отвечала градостроительному контексту этой части Варшавы».
Научный центр Коперника. Изображение предоставлено RAr2 Laboratorium Architektury
Научный центр Коперника. Изображение предоставлено RAr2 Laboratorium Architektury

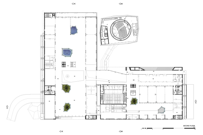
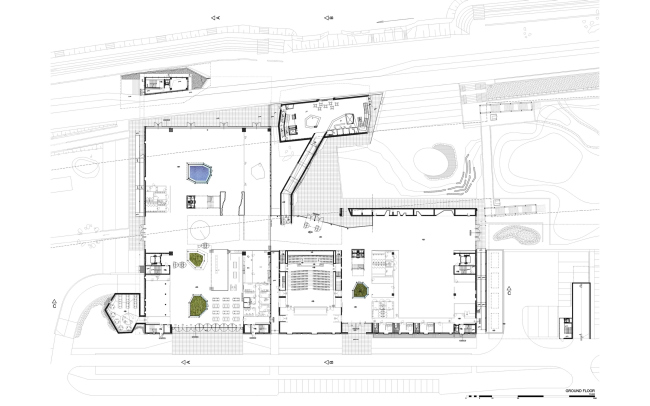
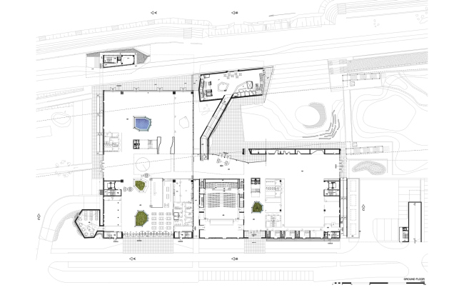
Со стороны научный центр, как и задумали архитекторы, напоминает вулкан. Этому способствуют подобранные ландшафтными архитекторами, инженерами, художниками и геологами фиброцементные плиты разных оттенков красного и коричневого, стекло с напылением в виде красных точек, издалека напоминающим перфорацию, окна-фонари, вызывающие ассоциации с вулканическими кратерами. Здание продолжается в ландшафте: вокруг него расположен «Парк исследователей», очень полюбившийся горожанам, а на крыше разбит «Парк Геологии».
Научный центр Коперника. Изображение предоставлено RAr2 Laboratorium Architektury
Научный центр Коперника. Изображение предоставлено RAr2 Laboratorium Architektury

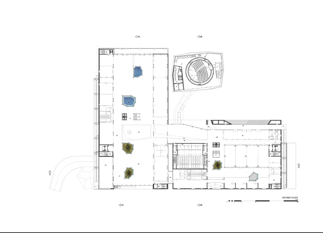
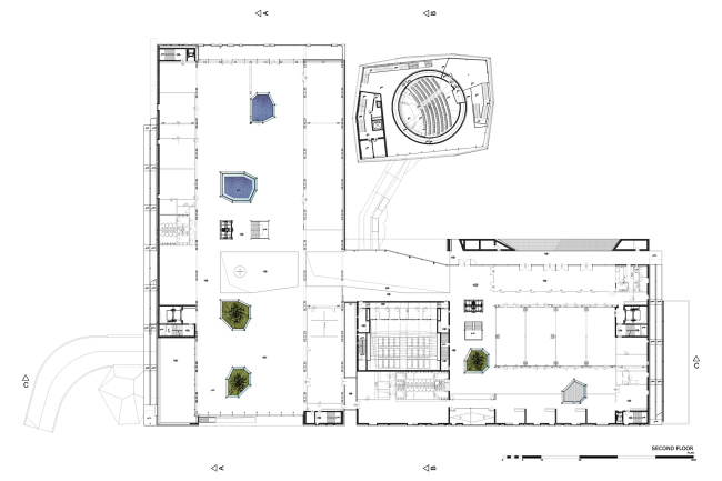
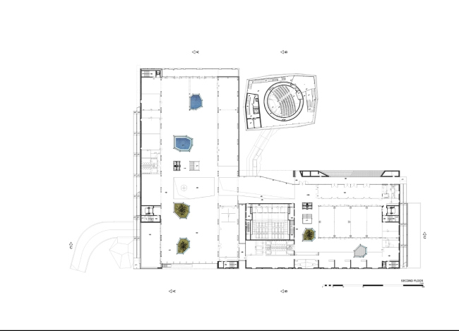
В самом центре можно посмотреть и поучаствовать в множестве интерактивных научных экспозиций для взрослых и детей, а также посетить расположенный в выделенном объеме планетарий. Тематические экспозиции называются «Мир в движении», «Человек и окружающая среда», «Корни цивилизации», «Зона света», а  для самых маленьких, только начинающих познавать мир, устроена выставка «Bzzz!». Все экспонаты можно и даже нужно трогать, а также соревноваться с другими посетителями центра в перемещении шариков по столу силой мысли, записываться в лабораторию для проведения химических опытов и носить специальные защитные очки, чтобы почувствовать себя настоящим исследователем. Здесь не нужно бояться экспериментов – ведь никто не сможет поставить двойку за неверный ответ, наоборот: сотрудники центра будут всячески помогать вам в получении знаний. Для тех, кто проголодался, есть кафе с «земными» бутербродами, кофе и уголок отдыха.
Научный центр Коперника. Изображение предоставлено RAr2 Laboratorium Architektury
Научный центр Коперника. Изображение предоставлено RAr2 Laboratorium Architektury

Надо сказать, что время, прошедшее после открытия центра в ноябре 2010, Висла периодически выходила из берегов и проверяла Центр Коперника на прочность. Однако он успешно выстоял и был номинирован на главную архитектурную награду Евросоюза – Премию Мис ван дер Роэ.
Научный центр Коперника. Изображение предоставлено RAr2 Laboratorium Architektury
Научный центр Коперника. Изображение предоставлено RAr2 Laboratorium Architektury

Мои друзья – польские архитекторы единодушно рекомендовали здание Центра Коперника в качестве прекрасного примера современной польской архитектуры. Вопрос об отношении к ним русских со временем исчез сам собой, и они с удовольствием приезжали в Москву, где им очень понравился сталинский ампир и русские девушки, так искусно передвигающиеся на высоких каблуках.
Научный центр Коперника. Изображение предоставлено RAr2 Laboratorium Architektury
Научный центр Коперника. Изображение предоставлено RAr2 Laboratorium Architektury
Научный центр Коперника. Изображение предоставлено RAr2 Laboratorium Architektury
Научный центр Коперника. Изображение предоставлено RAr2 Laboratorium Architektury
Научный центр Коперника. Изображение предоставлено RAr2 Laboratorium Architektury
Научный центр Коперника. Изображение предоставлено RAr2 Laboratorium Architektury
Научный центр Коперника. Изображение предоставлено RAr2 Laboratorium Architektury
Научный центр Коперника. Изображение предоставлено RAr2 Laboratorium Architektury
Научный центр Коперника. Изображение предоставлено RAr2 Laboratorium Architektury
Научный центр Коперника. Изображение предоставлено RAr2 Laboratorium Architektury
Научный центр Коперника. Изображение предоставлено RAr2 Laboratorium Architektury
Научный центр Коперника. Изображение предоставлено RAr2 Laboratorium Architektury
Научный центр Коперника. Изображение предоставлено RAr2 Laboratorium Architektury
Научный центр Коперника. Изображение предоставлено RAr2 Laboratorium Architektury
Научный центр Коперника. Изображение предоставлено RAr2 Laboratorium Architektury
Научный центр Коперника. Изображение предоставлено RAr2 Laboratorium Architektury
Научный центр Коперника. Изображение предоставлено RAr2 Laboratorium Architektury
Научный центр Коперника. Изображение предоставлено RAr2 Laboratorium Architektury
Научный центр Коперника. Изображение предоставлено RAr2 Laboratorium Architektury
Научный центр Коперника. Изображение предоставлено RAr2 Laboratorium Architektury
Научный центр Коперника. Изображение предоставлено RAr2 Laboratorium Architektury
Научный центр Коперника. Изображение предоставлено RAr2 Laboratorium Architektury
Научный центр Коперника. Изображение предоставлено RAr2 Laboratorium Architektury
Научный центр Коперника. Изображение предоставлено RAr2 Laboratorium Architektury
Научный центр Коперника. Изображение предоставлено RAr2 Laboratorium Architektury
Научный центр Коперника. Изображение предоставлено RAr2 Laboratorium Architektury
Научный центр Коперника. Изображение предоставлено RAr2 Laboratorium Architektury
Научный центр Коперника. Изображение предоставлено RAr2 Laboratorium Architektury
Научный центр Коперника. Изображение предоставлено RAr2 Laboratorium Architektury
Научный центр Коперника. Изображение предоставлено RAr2 Laboratorium Architektury
Научный центр Коперника. Изображение предоставлено RAr2 Laboratorium Architektury
Научный центр Коперника. Изображение предоставлено RAr2 Laboratorium Architektury
Научный центр Коперника. Изображение предоставлено RAr2 Laboratorium Architektury
Научный центр Коперника. Изображение предоставлено RAr2 Laboratorium Architektury
Научный центр Коперника. Изображение предоставлено RAr2 Laboratorium Architektury
Научный центр Коперника. Изображение предоставлено RAr2 Laboratorium Architektury
Научный центр Коперника. Изображение предоставлено RAr2 Laboratorium Architektury
Научный центр Коперника. Изображение предоставлено RAr2 Laboratorium Architektury
Научный центр Коперника. Изображение предоставлено RAr2 Laboratorium Architektury
Научный центр Коперника. Изображение предоставлено RAr2 Laboratorium Architektury
Научный центр Коперника. Изображение предоставлено RAr2 Laboratorium Architektury
Научный центр Коперника. Изображение предоставлено RAr2 Laboratorium Architektury
Научный центр Коперника. Изображение предоставлено RAr2 Laboratorium Architektury
Научный центр Коперника. Изображение предоставлено RAr2 Laboratorium Architektury
Научный центр Коперника. Изображение предоставлено RAr2 Laboratorium Architektury
Научный центр Коперника. Изображение предоставлено RAr2 Laboratorium Architektury
Научный центр Коперника. Изображение предоставлено RAr2 Laboratorium Architektury
Научный центр Коперника. Изображение предоставлено RAr2 Laboratorium Architektury
Научный центр Коперника. Изображение предоставлено RAr2 Laboratorium Architektury
Научный центр Коперника. Изображение предоставлено RAr2 Laboratorium Architektury
Научный центр Коперника. Изображение предоставлено RAr2 Laboratorium Architektury
Научный центр Коперника. Изображение предоставлено RAr2 Laboratorium Architektury
Научный центр Коперника. Изображение предоставлено RAr2 Laboratorium Architektury
Научный центр Коперника. Изображение предоставлено RAr2 Laboratorium Architektury
Научный центр Коперника. Изображение предоставлено RAr2 Laboratorium Architektury
Научный центр Коперника. Изображение предоставлено RAr2 Laboratorium Architektury
Научный центр Коперника. Изображение предоставлено RAr2 Laboratorium Architektury
Научный центр Коперника. Изображение предоставлено RAr2 Laboratorium Architektury
Научный центр Коперника. Изображение предоставлено RAr2 Laboratorium Architektury
Научный центр Коперника. Изображение предоставлено RAr2 Laboratorium Architektury
Научный центр Коперника. Изображение предоставлено RAr2 Laboratorium Architektury
Научный центр Коперника. Изображение предоставлено RAr2 Laboratorium Architektury
Научный центр Коперника. Изображение предоставлено RAr2 Laboratorium Architektury
Научный центр Коперника. Изображение предоставлено RAr2 Laboratorium Architektury