Размещено на портале Архи.ру (www.archi.ru)

11.12.2013

Виды с высокого берега

Анна Мартовицкая
Объект:
Жилой комплекс «Олимпийская деревня Новогорск. Квартиры»
Адрес:
Россия, Химки.
Мастерская:
Архитектуриум
Авторский коллектив:
Руководитель авторского коллектива: Биндеман В.Н.
Главный архитектор проекта: Бородин О.О., Буйнов Ф.В.
Архитекторы: Федорова М.В., Игумнова К.М., Шкулева Е.Ю., Тополев В.О., при участии Ковалева А. Л. 
Конструкции, инженерия: Проектная группа «КТС»
Главный конструктор: Дугин А.Л.
Инженеры: Федоров В.В., Кальчук В.Г., Шинкаренко Н.Н.

В ближайшем Подмосковье, на берегу Сходни по проекту мастерской «Архитектуриум» строится жилой комплекс «Олимпийская деревня Новогорск. Квартиры», в состав которого войдут школа единоборств «Самбо-70» и центр театральных искусств.

Жилой комплекс «Олимпийская деревня Новогорск. Квартиры». Проект, 2011 © Архитектуриум
Жилой комплекс «Олимпийская деревня Новогорск. Квартиры». Проект, 2011 © Архитектуриум
Этот проект строит тот же девелопер, что и собственно «Олимпийскую деревню Новогорск», реализуя в «Квартирах» схожую бизнес-идею – жилье соседствует с развитым спортивно-культурным комплексом, который обеспечит подрастающему поколению возможность всестороннего развития в шаговой доступности от дома. Изменился лишь класс самого жилья: если в «Олимпийской деревне» преобладают коттеджи и таунхаусы, то новый квартал всецело состоит из многоквартирных домов. Участок общей площадью 6,2 га застраивается семиэтажными секционными домами, в которых есть квартиры и для одиноких людей, и для молодых пар, и для больших семей.
Жилой комплекс «Олимпийская деревня Новогорск. Квартиры». Вид сверху. Проект, 2011 © Архитектуриум
Жилой комплекс «Олимпийская деревня Новогорск. Квартиры». Вид сверху. Проект, 2011 © Архитектуриум

Расположен новый комплекс сразу за Куркино, на склоне между Куркинским шоссе и рекой Сходня. Фактически это юго-запад Химок, хотя городской застройки здесь нет и никогда не было: единственным «элементом урбанизма», нарушающим идиллический пейзаж, до сих пор являлись дороги – уже упомянутое шоссе и Юровская улица, ведущая от шоссе через мост на заречную территорию и дальше в Куркино. Мост очень старый и будет реконструирован одновременно со строительством квартала, что же касается улицы, то она разрезает участок на две неравные части, причем это деление многократно усилено за счет расположения в излучине реки: фактически проезжая часть проходит по «сгибу» территории застройки.
Жилой комплекс «Олимпийская деревня Новогорск. Квартиры». Проект, 2011 © Архитектуриум
Жилой комплекс «Олимпийская деревня Новогорск. Квартиры». Проект, 2011 © Архитектуриум

То, что участок фактически распадается на два, коренным образом сказалось на планировке района. Прежде всего, потому что между собой участки совсем не похожи. Тот, что поменьше (если ехать со стороны Куркино, от Юровской улицы он оказывается справа), характеризуется довольно резким перепадом рельефа (около 10 метров), кроме того, именно к нему лес подступает вплотную. Площадь второго участка в два с половиной раза больше (4,4 га против 1,8 га), а сам он имеет более спокойный рельеф и весь ориентирован вдоль реки. Разнятся участки и тем, на какую именно заречную территорию они смотрят: напротив большего из них – живописный лесисто-равнинный пейзаж, за которым виднеется «Олимпийская деревня», тогда как меньший обращен к гольф-полю. Последнее, по мнению девелоперов, «гарантирует высокий социальный статус проживающих», и архитекторы ответили на это длинным пятичастным домом повышенной комфортности, который фактически «экспроприирует» панорамы на пространство элитного спорта.
Жилой комплекс «Олимпийская деревня Новогорск. Квартиры». Проект, 2011 © Архитектуриум
Жилой комплекс «Олимпийская деревня Новогорск. Квартиры». Проект, 2011 © Архитектуриум

Вообще для каждого кусочка этой территории команда «Архитектуриума» придумала свой собственный тип домов. Те, что максимально удалены от реки, но зато соседствуют с лесополосой, получили название «лесных», на первой линии, в свою очередь, расположены «речные», а в самом широком месте участка, где вдоль шоссе размещается главный инфраструктурный объект района – спортивно-культурный центр, – еще три жилых объема решены как многопалубные корабли. Каскады террас обрамляют смысловой центр района, поддерживая его динамичную форму. Стилистическое и пластическое единство этих домов и центра, над которым они возвышаются, подчеркнуто с помощью общего стилобата сложной формы.
Жилой комплекс «Олимпийская деревня Новогорск. Квартиры». Проект, 2011 © Архитектуриум
Жилой комплекс «Олимпийская деревня Новогорск. Квартиры». Проект, 2011 © Архитектуриум

Все дома квартала решены в одной палитре, но сильно различаются по форме, пластике и фасадным элементам. Как рассказывает Владимир Биндеман, в мастерской разными типами домов специально занимались разные архитекторы – одну бригаду возглавлял Олег Бородин, второй руководил Федор Буйнов: в условиях довольно стесненной застройки авторы проекта стремились к максимально возможному разнообразию. «Лесные» дома решены в более крупном масштабе: почти квадратные в плане башенки украшены вставными угловыми «рамами», словно подчеркивающими лучшие виды на шумящий рядом лес. В угоду инсоляции крылья каждого дома чуть-чуть раздвинуты, но своего апогея эта тема достигает в облике «речных» домов, центральная часть главного фасада которых сделана полукруглой, и по обе стороны от нее «разъезжаются» эркеры. Они еще и заострены, – ловят виды и солнце, – а их площадь постепенно уменьшается к верхним этажам, наделяя речные фасады эффектными пышными «юбками».
Жилой комплекс «Олимпийская деревня Новогорск. Квартиры». Проект, 2011 © Архитектуриум
Жилой комплекс «Олимпийская деревня Новогорск. Квартиры». Проект, 2011 © Архитектуриум
Жилой комплекс «Олимпийская деревня Новогорск. Квартиры». Проект, 2011 © Архитектуриум
Жилой комплекс «Олимпийская деревня Новогорск. Квартиры». Проект, 2011 © Архитектуриум

В «гольф-доме» эти темы сошлись: к реке дом обращен рамами, а к лесу – треугольными эркерами. Правда, и рамы здесь высотой всего в один этаж, и эркеры не так сильно выдаются из основного объема. Объединяя по 3-4 этажа, последние визуально компенсируют протяженность фасада, уподобляя его механизму, который словно вот-вот придет в движение. А со стороны набережной эту роль берут на себя остекленные хребты лестничных блоков – прозрачные вертикали отбивают секции друг от друга, не позволяя «рамам» выстраиваться в слишком длинные строчки.
Жилой комплекс «Олимпийская деревня Новогорск. Квартиры». Проект, 2011 © Архитектуриум
Жилой комплекс «Олимпийская деревня Новогорск. Квартиры». Проект, 2011 © Архитектуриум
Жилой комплекс «Олимпийская деревня Новогорск. Квартиры». Проект, 2011 © Архитектуриум
Жилой комплекс «Олимпийская деревня Новогорск. Квартиры». Проект, 2011 © Архитектуриум

Крупнее всего решены террасные дома, причем во многом именно за счет того, что архитекторы не осмелились оставить балконы открытыми. Побоявшись, что жильцы в будущем остеклят их кто во что горазд, они пустили наклонное остекление, за которое вылетают лишь лаконичные скобы-перголы. Тему диагоналей и динамичных скосов авторы активно развивают и в облике стилобата, и в сращенном с ним здании спортивной школы. Последнее по своей архитектуре вообще, пожалуй, наиболее экспрессивно – «визитная карточка» всего района, оно завораживает игрой плоскостей, сочленений и граней, которая проявляется буквально во всем, начиная от рельефной эмблемы в виде схематично изображенных двух борцов (автор – Олег Бородин), и заканчивая вспарывающими кровлю фонарями верхнего света.
Жилой комплекс «Олимпийская деревня Новогорск. Квартиры». Проект, 2011 © Архитектуриум
Жилой комплекс «Олимпийская деревня Новогорск. Квартиры». Проект, 2011 © Архитектуриум
Жилой комплекс «Олимпийская деревня Новогорск. Квартиры». Проект, 2011 © Архитектуриум
Жилой комплекс «Олимпийская деревня Новогорск. Квартиры». Проект, 2011 © Архитектуриум
Жилой комплекс «Олимпийская деревня Новогорск. Квартиры». Проект, 2011 © Архитектуриум
Жилой комплекс «Олимпийская деревня Новогорск. Квартиры». Проект, 2011 © Архитектуриум

Своего рода антитезой этому динамизму должна стать благоустроенная набережная Сходни, полностью свободная от машин и предназначенная для отдыха жильцов. Оно будет иметь три уровня: нижний, т.н. пляжный, который даст жителям возможность подойти к воде, верхний – собственно благоустроенный променад, и промежуточный, где также появятся камерные прогулочные площадки. Между собой ярусы будут соединены сходами и пандусами, которые превратят высокий берег Сходни в комфортное общественное пространство, способное предложить обитателям нового района множество сценариев отдыха у реки.
Жилой комплекс «Олимпийская деревня Новогорск. Квартиры». Проект, 2011 © Архитектуриум
Жилой комплекс «Олимпийская деревня Новогорск. Квартиры». Проект, 2011 © Архитектуриум
Жилой комплекс «Олимпийская деревня Новогорск. Квартиры». Проект, 2011 © Архитектуриум
Жилой комплекс «Олимпийская деревня Новогорск. Квартиры». Проект, 2011 © Архитектуриум
Жилой комплекс «Олимпийская деревня Новогорск. Квартиры». Проект, 2011 © Архитектуриум
Жилой комплекс «Олимпийская деревня Новогорск. Квартиры». Проект, 2011 © Архитектуриум
Жилой комплекс «Олимпийская деревня Новогорск. Квартиры». Проект, 2011 © Архитектуриум
Жилой комплекс «Олимпийская деревня Новогорск. Квартиры». Проект, 2011 © Архитектуриум
Жилой комплекс «Олимпийская деревня Новогорск. Квартиры». Проект, 2011 © Архитектуриум
Жилой комплекс «Олимпийская деревня Новогорск. Квартиры». Проект, 2011 © Архитектуриум
Жилой комплекс «Олимпийская деревня Новогорск. Квартиры». Проект, 2011 © Архитектуриум
Жилой комплекс «Олимпийская деревня Новогорск. Квартиры». Проект, 2011 © Архитектуриум
Жилой комплекс «Олимпийская деревня Новогорск. Квартиры». Проект, 2011 © Архитектуриум
Жилой комплекс «Олимпийская деревня Новогорск. Квартиры». Проект, 2011 © Архитектуриум
Жилой комплекс «Олимпийская деревня Новогорск. Квартиры». Генеральный план © Архитектуриум
Жилой комплекс «Олимпийская деревня Новогорск. Квартиры». Генеральный план © Архитектуриум
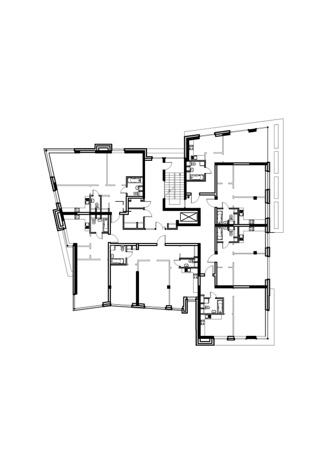
Жилой комплекс «Олимпийская деревня Новогорск. Квартиры». План © Архитектуриум
Жилой комплекс «Олимпийская деревня Новогорск. Квартиры». План © Архитектуриум
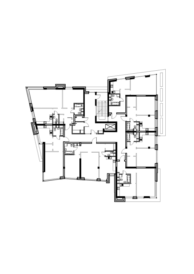
Жилой комплекс «Олимпийская деревня Новогорск. Квартиры». План © Архитектуриум
Жилой комплекс «Олимпийская деревня Новогорск. Квартиры». План © Архитектуриум
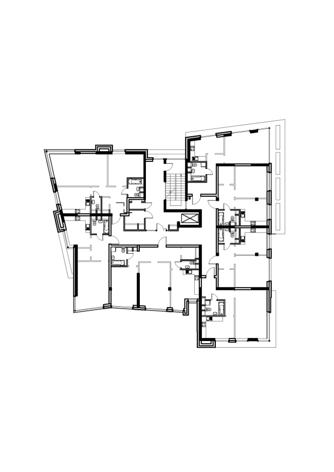
Жилой комплекс «Олимпийская деревня Новогорск. Квартиры». План © Архитектуриум
Жилой комплекс «Олимпийская деревня Новогорск. Квартиры». План © Архитектуриум
Жилой комплекс «Олимпийская деревня Новогорск. Квартиры». План © Архитектуриум
Жилой комплекс «Олимпийская деревня Новогорск. Квартиры». План © Архитектуриум
Жилой комплекс «Олимпийская деревня Новогорск. Квартиры». Реализация, 2015 © Архитектуриум
Жилой комплекс «Олимпийская деревня Новогорск. Квартиры». Реализация, 2015 © Архитектуриум
Жилой комплекс «Олимпийская деревня Новогорск. Квартиры». Реализация, 2015 © Архитектуриум
Жилой комплекс «Олимпийская деревня Новогорск. Квартиры». Реализация, 2015 © Архитектуриум