Размещено на портале Архи.ру (www.archi.ru)

27.11.2013

«Зеленый» треугольник

Нина Фролова

Здание холдинга Raiffeisen в Вене стало первой в мире офисной башней с сертификатом PassivHaus.

Башня RHW.2. Фото: Manfred Burger © ARGE Atelier Hayde/ Maurer & Partner ZT GmbH
Башня RHW.2. Фото: Manfred Burger © ARGE Atelier Hayde/ Maurer & Partner ZT GmbH

Проект разработали архитектурные мастерские Atelier Hayde и Architektur Maurer, а за инженерную составляющую, включая все аспекты ресурсосбережения, отвечало бюро Vasko + Partner. Несмотря на то, что на приведение 77-метровой башни к стандарту PassivHaus ушло 3,6 млн евро (бюджет в целом составил 84 млн, около 2 000 евро/м2 общей площади), и окупятся эти затраты лишь через 14 лет, заказчики пошли на это в рамках своей инициативы защиты климата (Raiffeisen Climate Protection Initiative).
Башня RHW.2. Фото: Manfred Burger © ARGE Atelier Hayde/ Maurer & Partner ZT GmbH
Башня RHW.2. Фото: Manfred Burger © ARGE Atelier Hayde/ Maurer & Partner ZT GmbH

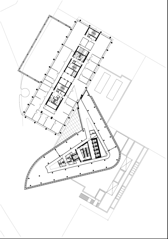
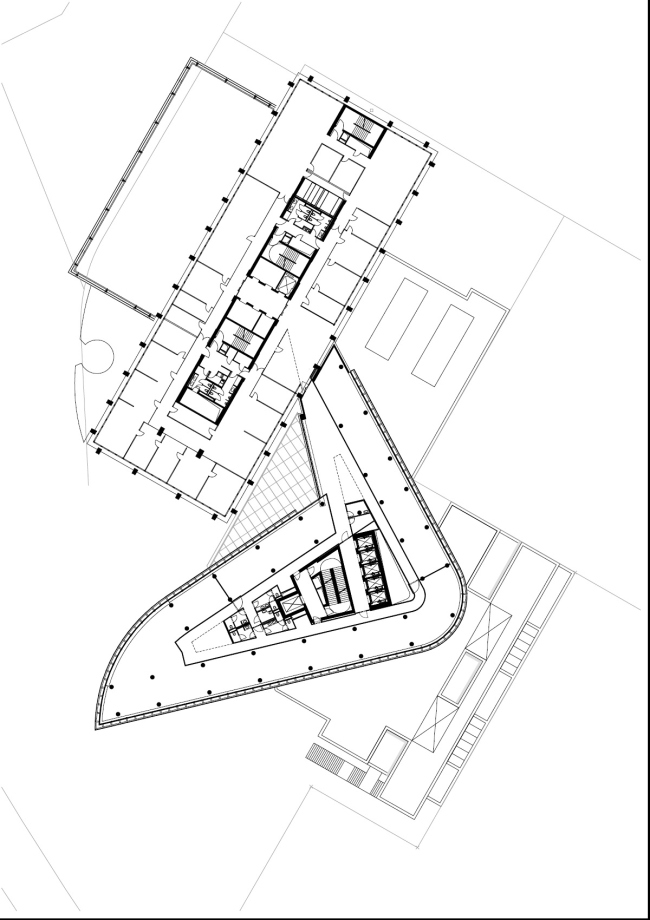
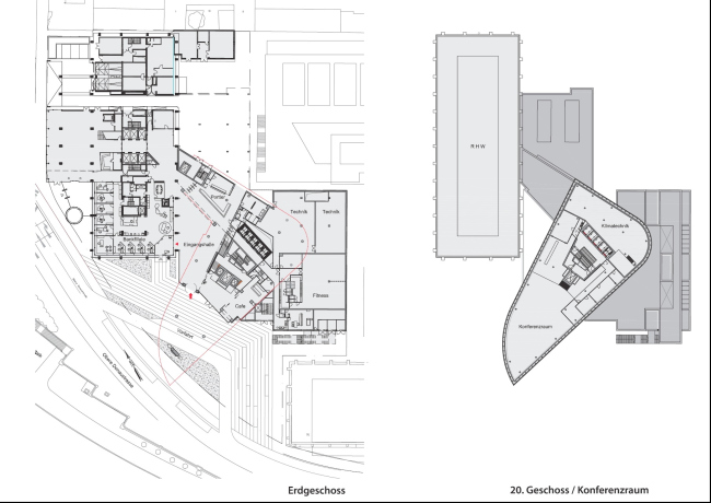
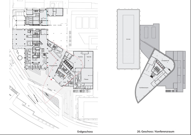
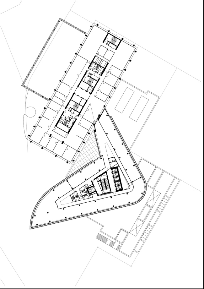
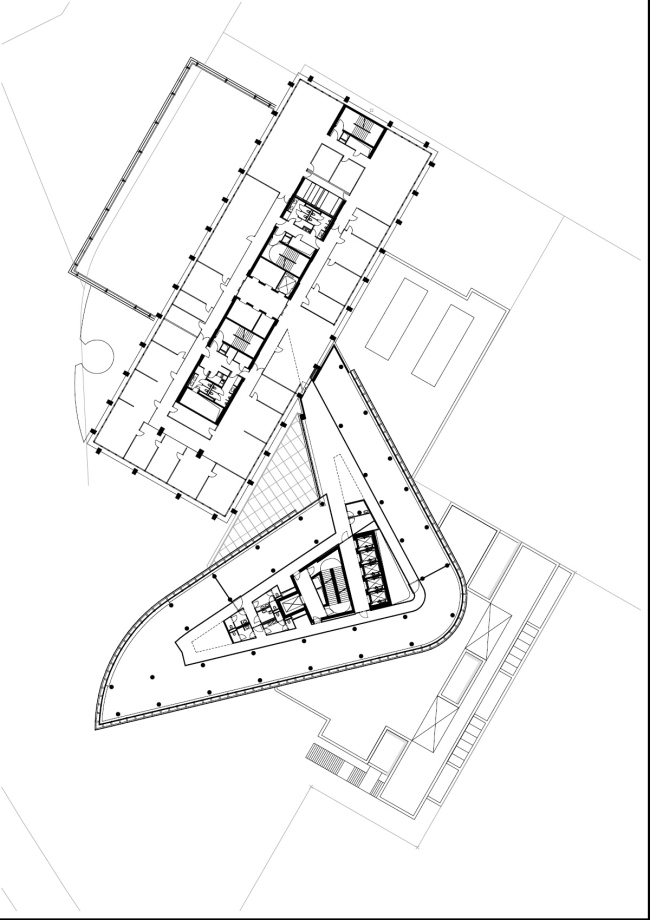
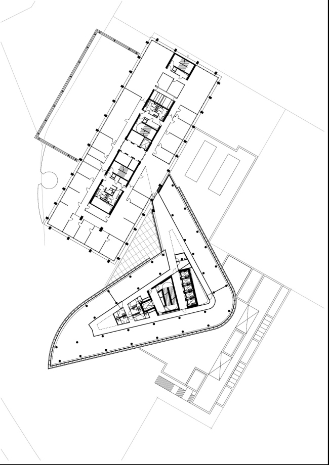
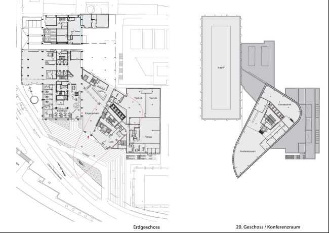
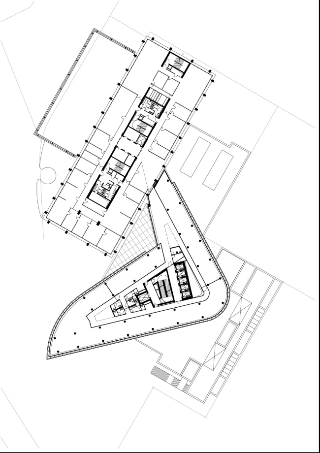
«Зеленая» башня построена на берегу Дунайского канала, в округе Леопольдштадт в центре Вены – на месте снесенного представительства ОПЕК, что весьма символично. Рядом уже находилось одно здание Raiffeisen, поэтому новое получило название RHW.2 (Raiffeisenhaus Wien 2). С другой стороны расположен центр хранения и обработки данных IBM, и это соседство оказалось для новостройки очень выгодным. Силуэт башни, кроме соображений эффектности, определили ограничения: нельзя было влиять на естественное освещение и затенение фасадов окружающих зданий. На треугольном в плане участке размещена трапециевидная база, при этом сама башня в плане напоминает треугольник и одной «вершиной» далеко выступает за пределы базы, образуя опирающийся на колонны «козырек» перед входом в здание.
Башня RHW.2. Фото: Manfred Burger © ARGE Atelier Hayde/ Maurer & Partner ZT GmbH
Башня RHW.2. Фото: Manfred Burger © ARGE Atelier Hayde/ Maurer & Partner ZT GmbH

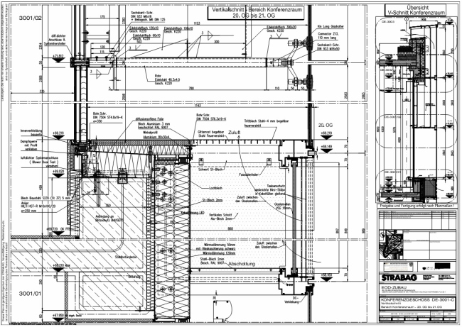
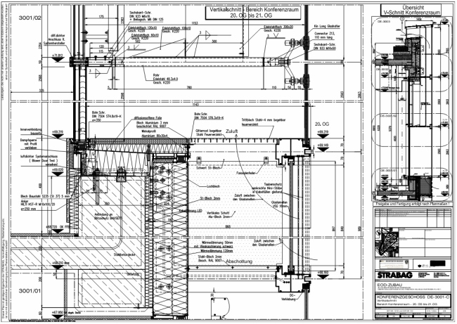
 21-этажная постройка почти полностью занята офисами, при этом в базе располагаются доступные всем 3-этажный атриум-вестибюль с кафе и отделение банка Raiffeisen, также имеются медицинский и фитнес-центры, столовая для сотрудников и детский сад с отдельным входом, открытый не только для детей банковских работников, но и для жителей прилегающих кварталов. Кроме того, на двух верхних этажах устроен конференц-центр, главное помещение которого – зал с панорамным остеклением, откуда открывается эффектный вид на Вену.
Башня RHW.2. Фото: Manfred Burger © ARGE Atelier Hayde/ Maurer & Partner ZT GmbH
Башня RHW.2. Фото: Manfred Burger © ARGE Atelier Hayde/ Maurer & Partner ZT GmbH

Со стороны набережной канала, под «козырьком» устроена «плаза», а также имеется открытый всем желающим лифт, позволяющий с удобством спуститься с уровня улицы до идущего вдоль воды променада. Также в RHW.2 есть 6-ярусная подземная парковка на 259 машин (общая подземная площадь здания составляет 14 550 м2, надземная – 27 600 м2).
Башня RHW.2. Фото: Manfred Burger © ARGE Atelier Hayde/ Maurer & Partner ZT GmbH
Башня RHW.2. Фото: Manfred Burger © ARGE Atelier Hayde/ Maurer & Partner ZT GmbH

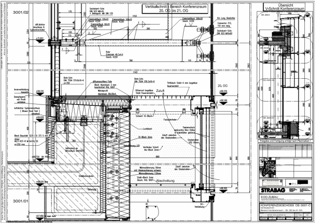
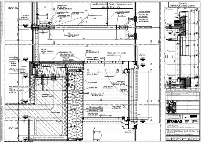
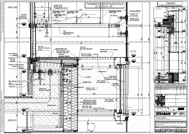
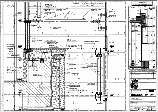
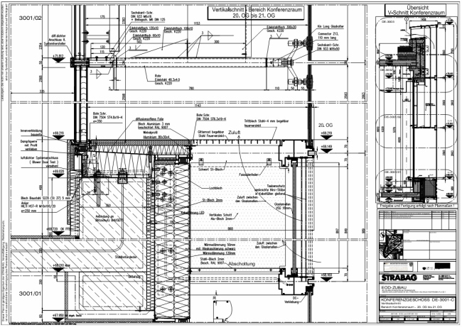
Каркас башни выполнен из железобетона: нагрузку несут круглые колонны, в центре расположен «стержень» с коммуникациями. Компактный объем работает на уменьшение теплопотерь. Так как фасады остеклены, главной задачей в деле достижения стандарта PassivHaus было предотвратить перегрев интерьера из-за солнечного жара, так как башня обращена на запад. Поэтому постройку снабдили двойным фасадом: его внутренний слой состоит из открывающихся окон Schüco с тройным остеклением (50/75 мм), далее, в зазоре шириной 625 мм, установлены солнцезащитные экраны (ими управляет автоматическая система), а внешний слой образован остеклением из ламинированных панелей со стеклянными ламелями (16 мм).
Башня RHW.2. Фото: Нина Фролова
Башня RHW.2. Фото: Нина Фролова

Следующей целью инженеров Vasko + Partner было снижение энергопотребления на 50% по сравнению с типичным офисным зданием таких же габаритов. Это сделало необходимостью организацию производства энергии в самом здании. Основой для этого стала собственная расположенная ниже уровня земли тригенерационная ТЭЦ на биогазе, обеспечивающая RHW.2 теплом (40%) и электричеством (60%). Также для этой цели используются солнечные батареи на крыше (1% электричества) и геотермальный тепловой насос (7% отопления), но гораздо важнее тепло, вырабатываемое серверами IBM в соседнем здании: они покрывают 38% потребностей башни. На 28% охлаждение помещений обеспечивается водой Дунайского канала, с остальными 72% справляются различные охлаждающие установки. Впрочем, естественная вентиляция через открытые вручную окна помогает сократить эти затраты. В итоге, лишь 39% электричества и 15% тепла поступает из городских сетей. Среди использованных систем – активация бетонного ядра и механическая вентиляция с высокоэффективной рекуперацией тепла.
Башня RHW.2. Фото: Manfred Burger © ARGE Atelier Hayde/ Maurer & Partner ZT GmbH
Башня RHW.2. Фото: Manfred Burger © ARGE Atelier Hayde/ Maurer & Partner ZT GmbH

Чтобы сэкономить идущее на освещение электричество, в коридорах и гараже были установлены светодиоды (это дало экономию в 50%), а в офисах использованы эффективные светильники с высоким уровнем направленного освещения. Инженеры занялись даже такими «неважными» деталями, как источники бесперебойного питания: современные модели позволили сэкономить 50 000 кВт/ч в год по сравнению с обычными. Не менее важным фронтом работ оказались кофемашины, которые потребляют в режиме ожидания в среднем 200 кВт/ч в год каждая. Применив таймеры, это количество снизили до 35 кВт/ч в год. Также повсеместно были использованы освещение «по требованию», торможение вентиляционных систем в нерабочие часы, и так далее.
Башня RHW.2. Фото: Manfred Burger © ARGE Atelier Hayde/ Maurer & Partner ZT GmbH
Башня RHW.2. Фото: Manfred Burger © ARGE Atelier Hayde/ Maurer & Partner ZT GmbH

Мониторинг всех систем и всех потребителей (возможный с помощью приложения для смартфона) проходит в реальном времени, причем особое внимание уделяется анализу ошибок и контролю за зданием ночью и в выходные. Также предусмотрено сравнение с другими проектами.
Башня RHW.2. Фото: Нина Фролова
Башня RHW.2. Фото: Нина Фролова

По данным австрийского института OIB, сданная в 2012 башня Raiffeisen потребляет 21 кВт/час/метр общей площади/год, что соответствует классу энергопотребления A++. Однако такие показатели, включая полученный летом 2013 сертификат PassivHaus, вряд ли пока удастся массово внедрить для нового строительства как в Австрии, так и за ее пределами. Инженеры Vasko + Partner столкнулись с множеством проблем в ходе реализации своего проекта, и не последняя из них – недостаточно высокое качество строительства. Так, когда подрядчики доложили о готовности оболочки здания, в ходе тестов выяснилось, что в ней имеются метровые зазоры, а ведь ее максимально возможная герметичность – основа всей концепции PassivHaus. Безусловно, эти и другие недочеты были затем успешно устранены, но пока ясно: RHW.2 – это преодоление важного рубежа, однако окончательная победа стандарта PassivHaus в офисном строительстве – еще впереди.
Башня RHW.2. Фото: Manfred Burger © ARGE Atelier Hayde/ Maurer & Partner ZT GmbH
Башня RHW.2. Фото: Manfred Burger © ARGE Atelier Hayde/ Maurer & Partner ZT GmbH
Башня RHW.2. Фото: Manfred Burger © ARGE Atelier Hayde/ Maurer & Partner ZT GmbH
Башня RHW.2. Фото: Manfred Burger © ARGE Atelier Hayde/ Maurer & Partner ZT GmbH
Башня RHW.2. Фото: Manfred Burger © ARGE Atelier Hayde/ Maurer & Partner ZT GmbH
Башня RHW.2. Фото: Manfred Burger © ARGE Atelier Hayde/ Maurer & Partner ZT GmbH
Башня RHW.2. Фото: Roland Rudolph
Башня RHW.2. Фото: Roland Rudolph
Башня RHW.2. Фото: Manfred Burger © ARGE Atelier Hayde/ Maurer & Partner ZT GmbH
Башня RHW.2. Фото: Manfred Burger © ARGE Atelier Hayde/ Maurer & Partner ZT GmbH
Башня RHW.2. Фото: Manfred Burger © ARGE Atelier Hayde/ Maurer & Partner ZT GmbH
Башня RHW.2. Фото: Manfred Burger © ARGE Atelier Hayde/ Maurer & Partner ZT GmbH
Башня RHW.2. Фото: Manfred Burger © ARGE Atelier Hayde/ Maurer & Partner ZT GmbH
Башня RHW.2. Фото: Manfred Burger © ARGE Atelier Hayde/ Maurer & Partner ZT GmbH
Башня RHW.2. Фото: Нина Фролова
Башня RHW.2. Фото: Нина Фролова
Башня RHW.2. Фото: Manfred Burger © ARGE Atelier Hayde/ Maurer & Partner ZT GmbH
Башня RHW.2. Фото: Manfred Burger © ARGE Atelier Hayde/ Maurer & Partner ZT GmbH
Башня RHW.2. Фото: Manfred Burger © ARGE Atelier Hayde/ Maurer & Partner ZT GmbH
Башня RHW.2. Фото: Manfred Burger © ARGE Atelier Hayde/ Maurer & Partner ZT GmbH
Башня RHW.2. Фото: Manfred Burger © ARGE Atelier Hayde/ Maurer & Partner ZT GmbH
Башня RHW.2. Фото: Manfred Burger © ARGE Atelier Hayde/ Maurer & Partner ZT GmbH
Башня RHW.2. Фото: Manfred Burger © ARGE Atelier Hayde/ Maurer & Partner ZT GmbH
Башня RHW.2. Фото: Manfred Burger © ARGE Atelier Hayde/ Maurer & Partner ZT GmbH
Башня RHW.2. Фото: Manfred Burger © ARGE Atelier Hayde/ Maurer & Partner ZT GmbH
Башня RHW.2. Фото: Manfred Burger © ARGE Atelier Hayde/ Maurer & Partner ZT GmbH
Башня RHW.2. Фото: Manfred Burger © ARGE Atelier Hayde/ Maurer & Partner ZT GmbH
Башня RHW.2. Фото: Manfred Burger © ARGE Atelier Hayde/ Maurer & Partner ZT GmbH
Башня RHW.2 © ARGE Atelier Hayde/ Maurer & Partner ZT GmbH
Башня RHW.2 © ARGE Atelier Hayde/ Maurer & Partner ZT GmbH
Башня RHW.2 © ARGE Atelier Hayde/ Maurer & Partner ZT GmbH
Башня RHW.2 © ARGE Atelier Hayde/ Maurer & Partner ZT GmbH
Башня RHW.2 © ARGE Atelier Hayde/ Maurer & Partner ZT GmbH
Башня RHW.2 © ARGE Atelier Hayde/ Maurer & Partner ZT GmbH
Башня RHW.2 © ARGE Atelier Hayde/ Maurer & Partner ZT GmbH
Башня RHW.2 © ARGE Atelier Hayde/ Maurer & Partner ZT GmbH
Башня RHW.2 © ARGE Atelier Hayde/ Maurer & Partner ZT GmbH
Башня RHW.2 © ARGE Atelier Hayde/ Maurer & Partner ZT GmbH
Башня RHW.2 © ARGE Atelier Hayde/ Maurer & Partner ZT GmbH
Башня RHW.2 © ARGE Atelier Hayde/ Maurer & Partner ZT GmbH
Башня RHW.2 © ARGE Atelier Hayde/ Maurer & Partner ZT GmbH
Башня RHW.2 © ARGE Atelier Hayde/ Maurer & Partner ZT GmbH
Башня RHW.2 © ARGE Atelier Hayde/ Maurer & Partner ZT GmbH
Башня RHW.2 © ARGE Atelier Hayde/ Maurer & Partner ZT GmbH
Башня RHW.2 © ARGE Atelier Hayde/ Maurer & Partner ZT GmbH
Башня RHW.2 © ARGE Atelier Hayde/ Maurer & Partner ZT GmbH
Башня RHW.2 © ARGE Atelier Hayde/ Maurer & Partner ZT GmbH
Башня RHW.2 © ARGE Atelier Hayde/ Maurer & Partner ZT GmbH
Башня RHW.2. Предоставлено Vasko&Partner
Башня RHW.2. Предоставлено Vasko&Partner
Башня RHW.2. Предоставлено Vasko&Partner
Башня RHW.2. Предоставлено Vasko&Partner