Размещено на портале Архи.ру (www.archi.ru)

18.11.2013

Копье, пронзающее небо

Анна Сансиева
Объект:
Исследовательский и посетительский центр Paläon
Адрес:
Германия, None, Шёнинген.
Мастерская:
Holzer Kobler Architekturen

В центре Paläon, построенном в Саксонии по проекту бюро Holzer Kobler Architekturen, выставлено древнейшее в истории человечества оружие.

Исследовательский и посетительский центр Paläon. Фото: Jan Bitter © Holzer Kobler Architekturen
Исследовательский и посетительский центр Paläon. Фото: Jan Bitter © Holzer Kobler Architekturen

На окраине городка Шёнинген открылся исследовательский и посетительский центр, посвященный археологии. Его расположение буквально в чистом поле, рядом с карьером, где добывают бурый уголь, совсем не случайно. Именно в этом месте в 1994–1998 гг. археологи обнаружили множество костей древних животных и обломки орудий Гейдельбергского человека (Homo heidelbergensis). Но самой важной находкой 13 лет назад стали 8 деревянных копий, возраст которых – 300 000 лет. Так называемые «Шёнингенские копья» совершили переворот в археологии: их обнаружение доказало, что Гейдельбергский человек занимался охотой. Помимо прочего, на сегодняшний день это древнейшее найденное археологами оружие.
Исследовательский и посетительский центр Paläon. Фото: Jan Bitter © Holzer Kobler Architekturen
Исследовательский и посетительский центр Paläon. Фото: Jan Bitter © Holzer Kobler Architekturen

Благодаря такому сокровищу Шёнинген получил всемирную известность и даже прозвище «Город копий». Однако все обнаруженные предметы хранились не там, а в музее Ганновера, пока в 2009 не было принято решение построить посетительский и исследовательский центр на месте археологических раскопок и перенести туда все находки, включая уникальные копья.
Исследовательский и посетительский центр Paläon. Фото: Jan Bitter © Holzer Kobler Architekturen
Исследовательский и посетительский центр Paläon. Фото: Jan Bitter © Holzer Kobler Architekturen

Работой над проектом занялась швейцарская мастерская Holzer Kobler Architekturen, известная не только своими постройками, но и оформлением выставок. В Шёнингене они работали совместно с берлинскими ландшафтными архитекторами Topotek 1. Задач оказалось немало: здание музея необходимо было связать с окружающей средой, точнее – поставить его посреди поля так, чтобы это не смотрелось странно. Кроме того, архитектурное решение центра Paläon должно было отразить его программу, то есть как-то намекать на археологию и мир наших предков.
Исследовательский и посетительский центр Paläon. Фото: Jan Bitter © Holzer Kobler Architekturen
Исследовательский и посетительский центр Paläon. Фото: Jan Bitter © Holzer Kobler Architekturen

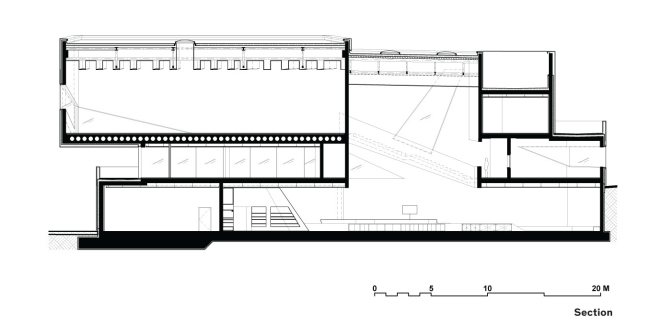
Трехэтажное здание Paläon как будто состоит из пересекающихся блоков, которые. делят фасады на ярусы, а внутри образуют отдельные помещения. Кроме того, их острые ребра напоминают пронзающие небосвод копья.
Исследовательский и посетительский центр Paläon. Фото: Jan Bitter © Holzer Kobler Architekturen
Исследовательский и посетительский центр Paläon. Фото: Jan Bitter © Holzer Kobler Architekturen

Центр полностью облицован полированными алюминиевыми панелями, где как в зеркале отражается окружающий ландшафт. В результате кажется, как будто на поле ничего нет: постройка полностью сливается с природой. Архитекторы называют эту оболочку «камуфляжем» и «абстрактно-реалистическим отражением пейзажа». На фоне неба заметны только «копья»-ребра стен и затемненные ленты окон. Алюминиевые панели толщиной всего 4 мм  установлены на пластиковом каркасе, который, в свою очередь, крепится на поверхности фасадов. Панели расположены под разным углом, поэтому имеют разную ширину – 1 м или 1,25 м, но одинаковую длину – 3 м. Зеркальная поверхность делает Paläon частью ландшафта и скрадывает имманентную тяжесть металла.
Исследовательский и посетительский центр Paläon. Фото: Jan Bitter © Holzer Kobler Architekturen
Исследовательский и посетительский центр Paläon. Фото: Jan Bitter © Holzer Kobler Architekturen

Интерьерами и дизайном экспозиции также занимались Holzer Kobler Architekturen. Ядром, вокруг которого организованы все помещения, служит огромный зал (600 м2) высотой в три этажа. В вестибюле выставлены, в основном, кости древних животных и изображения флоры и фауны эпохи между двумя ледниковыми периодами, к которой принадлежат находки. Здесь же находится 30-метровая картина с фантазиями на тему мира Гейдельбергского человека. Но «гвоздь программы» – это выставленные в отдельном зале семь «Шёнингенских копий»: восьмая уникальная находка из этой серии осталась в музее Ганновера.
Исследовательский и посетительский центр Paläon.
Исследовательский и посетительский центр Paläon.
Фото: Jan Bitter © Holzer Kobler Architekturen

На втором и третьем этажах находятся действующие и демонстрационные лаборатории археологов и лекционные аудитории, причем любой посетитель может «поучаствовать» в исследованиях. Маршрут осмотра Paläon представляет собой интерактивный путь от знакомства с жизнью древнего человека до участия в работе ученых. На верхнем этаже располагаются смотровые точки с видами на карьер, лес и поле с пасущимися там лошадьми Пржевальского, которые тоже – часть экспозиции: здесь были найдены останки особей этого вида, живших тут 300–400 тысяч лет назад.
Исследовательский и посетительский центр Paläon.
Исследовательский и посетительский центр Paläon.
Фото: Jan Bitter © Holzer Kobler Architekturen

В центре Paläon посетителя погружают в мир древнего человека не только музейные залы и лаборатории, но также флора и фауна разбитого здесь огромного парка, да и весь окружающий ландшафт в целом. Споры о том, стоило ли тратить на строительство такого объекта 15 млн евро в Нижней Саксонии идут до сих пор, но невозможно отрицать, что Holzer Kobler Architekturen оригинально решило все поставленные перед ним задачи. Архитектура растворяется в пейзаже, наглядно демонстрируя главенство природы в те далекие времена, когда предки современного человека полностью зависели от нее, а не пытались подчинить себе, как сейчас – с известным результатом.
Исследовательский и посетительский центр Paläon. Фото: Jan Bitter © Holzer Kobler Architekturen
Исследовательский и посетительский центр Paläon. Фото: Jan Bitter © Holzer Kobler Architekturen
Исследовательский и посетительский центр Paläon
Исследовательский и посетительский центр Paläon
Фото: Jan Bitter © Holzer Kobler Architekturen
Исследовательский и посетительский центр Paläon. Фото: Jan Bitter © Holzer Kobler Architekturen
Исследовательский и посетительский центр Paläon. Фото: Jan Bitter © Holzer Kobler Architekturen
Исследовательский и посетительский центр Paläon. Фото: Jan Bitter © Holzer Kobler Architekturen
Исследовательский и посетительский центр Paläon. Фото: Jan Bitter © Holzer Kobler Architekturen
Исследовательский и посетительский центр Paläon.
Исследовательский и посетительский центр Paläon.
Фото: Jan Bitter © Holzer Kobler Architekturen
Исследовательский и посетительский центр Paläon.
Исследовательский и посетительский центр Paläon.
Фото: Jan Bitter © Holzer Kobler Architekturen
Исследовательский и посетительский центр Paläon.
Исследовательский и посетительский центр Paläon.
Фото: Jan Bitter © Holzer Kobler Architekturen
Исследовательский и посетительский центр Paläon.
Исследовательский и посетительский центр Paläon.
Фото: Jan Bitter © Holzer Kobler Architekturen
Исследовательский и посетительский центр Paläon. Фото: Jan Bitter © Holzer Kobler Architekturen
Исследовательский и посетительский центр Paläon. Фото: Jan Bitter © Holzer Kobler Architekturen
Исследовательский и посетительский центр Paläon. Фото: Jan Bitter © Holzer Kobler Architekturen
Исследовательский и посетительский центр Paläon. Фото: Jan Bitter © Holzer Kobler Architekturen
Исследовательский и посетительский центр Paläon. Фото: Jan Bitter © Holzer Kobler Architekturen
Исследовательский и посетительский центр Paläon. Фото: Jan Bitter © Holzer Kobler Architekturen
Исследовательский и посетительский центр Paläon. Фото: Jan Bitter © Holzer Kobler Architekturen
Исследовательский и посетительский центр Paläon. Фото: Jan Bitter © Holzer Kobler Architekturen
Исследовательский и посетительский центр Paläon. Фото: Jan Bitter © Holzer Kobler Architekturen
Исследовательский и посетительский центр Paläon. Фото: Jan Bitter © Holzer Kobler Architekturen
Исследовательский и посетительский центр Paläon. Фото: Jan Bitter © Holzer Kobler Architekturen
Исследовательский и посетительский центр Paläon. Фото: Jan Bitter © Holzer Kobler Architekturen
Исследовательский и посетительский центр Paläon. Фото: Jan Bitter © Holzer Kobler Architekturen
Исследовательский и посетительский центр Paläon. Фото: Jan Bitter © Holzer Kobler Architekturen
Исследовательский и посетительский центр Paläon. Фото: Jan Bitter © Holzer Kobler Architekturen
Исследовательский и посетительский центр Paläon. Фото: Jan Bitter © Holzer Kobler Architekturen
Исследовательский и посетительский центр Paläon. Фото: Jan Bitter © Holzer Kobler Architekturen
Исследовательский и посетительский центр Paläon. Фото: Jan Bitter © Holzer Kobler Architekturen
Исследовательский и посетительский центр Paläon. Фото: Jan Bitter © Holzer Kobler Architekturen
Исследовательский и посетительский центр Paläon. Фото: Jan Bitter © Holzer Kobler Architekturen
Исследовательский и посетительский центр Paläon. Фото: Jan Bitter © Holzer Kobler Architekturen
Исследовательский и посетительский центр Paläon. Фото: Jan Bitter © Holzer Kobler Architekturen
Исследовательский и посетительский центр Paläon. Фото: Jan Bitter © Holzer Kobler Architekturen
Исследовательский и посетительский центр Paläon. Фото: Jan Bitter © Holzer Kobler Architekturen
Исследовательский и посетительский центр Paläon. Фото: Jan Bitter © Holzer Kobler Architekturen
Исследовательский и посетительский центр Paläon. Фото: Jan Bitter © Holzer Kobler Architekturen
Исследовательский и посетительский центр Paläon. Фото: Jan Bitter © Holzer Kobler Architekturen
Исследовательский и посетительский центр Paläon. Фото: Jan Bitter © Holzer Kobler Architekturen
Исследовательский и посетительский центр Paläon. Фото: Jan Bitter © Holzer Kobler Architekturen
Исследовательский и посетительский центр Paläon. Фото: Jan Bitter © Holzer Kobler Architekturen
Исследовательский и посетительский центр Paläon. Фото: Jan Bitter © Holzer Kobler Architekturen
Исследовательский и посетительский центр Paläon. Фото: Jan Bitter © Holzer Kobler Architekturen
Исследовательский и посетительский центр Paläon. Фото: Jan Bitter © Holzer Kobler Architekturen
Исследовательский и посетительский центр Paläon. Фото: Jan Bitter © Holzer Kobler Architekturen
Исследовательский и посетительский центр Paläon. Фото: Jan Bitter © Holzer Kobler Architekturen
Исследовательский и посетительский центр Paläon. Фото: Jan Bitter © Holzer Kobler Architekturen
Исследовательский и посетительский центр Paläon. Фото: Jan Bitter © Holzer Kobler Architekturen
Исследовательский и посетительский центр Paläon. Фото: Jan Bitter © Holzer Kobler Architekturen
Исследовательский и посетительский центр Paläon. Фото: Jan Bitter © Holzer Kobler Architekturen
Исследовательский и посетительский центр Paläon. Фото: Jan Bitter © Holzer Kobler Architekturen
Исследовательский и посетительский центр Paläon. Фото: Jan Bitter © Holzer Kobler Architekturen
Исследовательский и посетительский центр Paläon. Фото: Jan Bitter © Holzer Kobler Architekturen
Исследовательский и посетительский центр Paläon © Holzer Kobler Architekturen
Исследовательский и посетительский центр Paläon © Holzer Kobler Architekturen
Исследовательский и посетительский центр Paläon © Holzer Kobler Architekturen
Исследовательский и посетительский центр Paläon © Holzer Kobler Architekturen
Исследовательский и посетительский центр Paläon © Holzer Kobler Architekturen
Исследовательский и посетительский центр Paläon © Holzer Kobler Architekturen
Исследовательский и посетительский центр Paläon © Holzer Kobler Architekturen
Исследовательский и посетительский центр Paläon © Holzer Kobler Architekturen
Исследовательский и посетительский центр Paläon © TOPOTEK 1
Исследовательский и посетительский центр Paläon © TOPOTEK 1
Исследовательский и посетительский центр Paläon © Holzer Kobler Architekturen
Исследовательский и посетительский центр Paläon © Holzer Kobler Architekturen