Размещено на портале Архи.ру (www.archi.ru)

18.11.2013

Игорь Шварцман: «Мы стараемся делать все для того, чтобы проект состоялся от и до»

Анна Мартовицкая
Объект:
Pallau RB: Административно-деловой центр, 1-й км Рублево-Успенского шоссе
Адрес:
Россия, Московская область, Барвихинский С. О., 1-й км Рублево-Успенского шоссе
Жилой квартал «Волжская-LIFE»
Адрес:
Россия, Москва. РУ «Текстильщики», кв. 109
Жилой комплекс V-House
Адрес:
Россия, Москва. Электролитный проезд, 16
Интерьеры общественных зон жилого комплекса «Литератор»
Адрес:
Россия, Москва. ул. Льва Толстого, вл. 23/7, стр.1
Конкурсный проект многофункционального центра на Сущевском валу
Адрес:
Россия, Москва. Сущевский вал, 49
Многофункциональный общественно-деловой комплекс в Митино
Адрес:
Россия, Москва. ул.Митинская, 16
Архитектор:
Игорь Шварцман
Мастерская:
АМ Сергей Киселев и Партнеры
Авторский коллектив:
И.З.Шварцман, А.А.Хомякова, В.Х.Джантимирова, Е.С.Палей, Е.С.Клюева

Руководитель архитектурной мастерской «Сергей Киселев и Партнеры» о новых проектах и реализациях компании.

Игорь Шварцман. Фото предоставлено ООО «Архитектурная мастерская «Сергей Киселев и Партнеры»
Игорь Шварцман. Фото предоставлено ООО «Архитектурная мастерская «Сергей Киселев и Партнеры»


Архи.ру:
– Игорь Зиновьевич, в декабре будет два года как Вы и Ваш коллектив переехали в новый офис. Как складывается ваша профессиональная жизнь в новом доме? Чем сейчас занята архитектурная мастерская? 

Игорь Шварцман:
– Мы довольно плотно заняты своей основной деятельностью – разработкой собственно проектов на разных стадиях и разной сложности, сопровождаем их до окончательной реализации. И если два года назад мы нередко сокрушенно качали головами и говорили, что вынуждены довольно много заниматься концептуальными конкурсами, т.к. реальной работы немного, то теперь ситуация, к счастью, изменилась: работа есть, работы много, и все наши бригады максимально загружены.

– Эти проекты возникли именно за последние два года, или вы дорабатываете то, что было начато еще до кризиса?

– По разному. Есть проекты, которые были начаты 3-4 года назад и даже раньше, а теперь реанимированы и доводятся до ума, и это дает приятное ощущение, что наши наработки не были сделаны впустую. Но есть и абсолютно новые заказы, которые были получены нами в ходе тендеров или напрямую от инвесторов. Иными словами, мы ведем полноценную профессиональную жизнь: участвуем в конкурсах, доводим до реализации уже разработанные проекты, ищем компромисс между своим видением того или иного объекта и пожеланиями заказчиков. Вы знаете, у нас в компании никогда не занимались просто эскизированием, мы стараемся делать все от нас зависящее для того, чтобы проект состоялся от и до.

– Насколько я знаю, у вас сейчас идет и несколько крупных реализаций. Например, строится жилой комплекс «Литератор».

– Да, сейчас мы ведем там авторский надзор и, думаю, уже в следующем году этот комплекс будет сдан в эксплуатацию. Не так давно мы также разработали для него проект интерьеров общественных зон. Сначала сделали их весьма лаконичными, работая на контрасте и единстве качества дерева и камня в присущей нам современной стилистике, а потом видоизменили проект, т.к. заказчик захотел интерьеры «чуть более теплые» и близкие к «литературной» тематике. Признаюсь, процесс поиска компромисса не был легким: скатываться в откровенную литературность нам не хотелось, это слишком прямолинейно и, если угодно, попсово. Прежде всего, мы воздержались от идеи каждый корпус жилого комплекса ассоциировать с каким-то литератором, героем и вообще двигаться в подобном направлении. Ввели в интерьеры другие светильники, сделали более мелким масштаб вертикальных членений деревянной стены, оформляющей лаунж-зону, а пластику каменной поверхности обогатили за счет разных по форме и размеру ниш, обрамленных натуральным деревом. Вот в эти ниши и можно при желании ввести «литературу» – фотографии писателей, какие-то статуэтки, книги. Но сама стилистика пространства осталась подчеркнуто современной – для нас это был принципиальный момент.
Интерьеры общественных зон ЖК «Литератор». Первоначальный вариант. ГАП: А.Медведев. © «Архитектурная мастерская «Сергей Киселев и Партнеры»
Интерьеры общественных зон ЖК «Литератор». Первоначальный вариант. ГАП: А.Медведев. © «Архитектурная мастерская «Сергей Киселев и Партнеры»
Интерьеры общественных зон ЖК «Литератор». Реализуемый вариант. ГАП: А.Медведев. © ООО «Архитектурная мастерская «Сергей Киселев и Партнеры»
Интерьеры общественных зон ЖК «Литератор». Реализуемый вариант. ГАП: А.Медведев. © ООО «Архитектурная мастерская «Сергей Киселев и Партнеры»

– А в объемном проектировании как часто удается заразить заказчика своей уверенностью в правильности ваших решений?

– В этом смысле хорошим примером является наш еще один давний объект, который наконец достраивается, – административно-деловой центр на 1-м км Рублево-Успенского шоссе. Основным автором проекта, разработанного еще в 2007 году, был Сергей Киселев, и именно ему принадлежит главная образная идея – здание как будто обернуто широкой лентой вдоль корпусов. Для нас было очень важно сохранить и первоначальное композиционное решение, и пластику фасадов этого комплекса. За прошедшие годы заказчик не раз пытался уговорить нас спрямить торцы корпусов и выпрямить кровлю, но мы смогли убедить его в том, что банальные параллелепипеды здесь не уместны и не интересны, и очень благодарны ему за готовность прислушиваться к мнению архитекторов. Да, мы отказались от некоторых излишеств докризисной роскоши, но не потеряли выразительный облик здания. 
Административно-деловой центр на 1-м км Рублево-Успенского шоссе. ГАП: В.Бармин, А.Хомякова © ООО «Архитектурная мастерская «Сергей Киселев и Партнеры»
Административно-деловой центр на 1-м км Рублево-Успенского шоссе. ГАП: В.Бармин, А.Хомякова © ООО «Архитектурная мастерская «Сергей Киселев и Партнеры»

– Еще один проект-«долгожитель» – это реконструкция квартала 109 в Текстильщиках, где также Сергей Киселев, по его же образному выражению успел «насвистеть мелодию». 

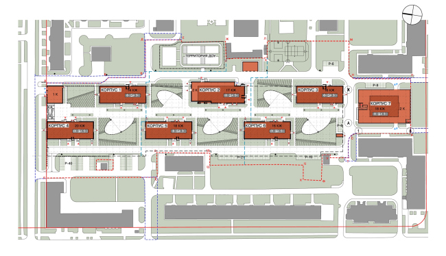
– Этот проект, получивший от ГК «Пионер» название «Волжская-life», в процессе реализации менялся не раз, хотя первоначальную идею структурной решетки, сегменты которой заполнены облицовочными плитами различных цветов, нам удалось сохранить. На двух корпусах добавились этажи, в одном из корпусов изменилась функция первых этажей. Кроме того в состав комплекса был включен еще один дом, причем новый объем фактически возглавил колонну из шести уже почти построенных зданий.
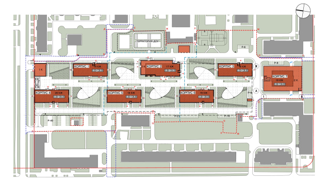
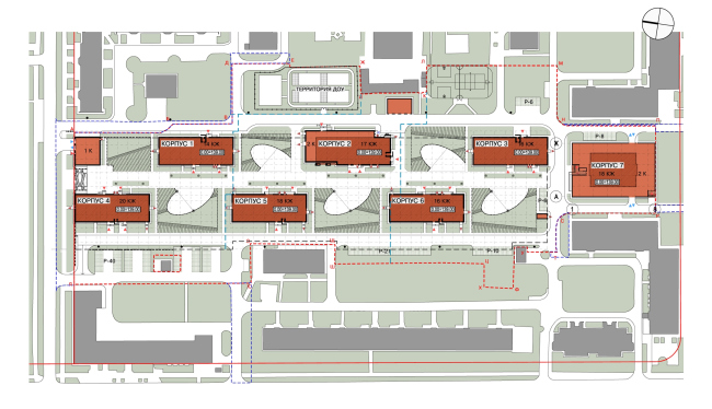
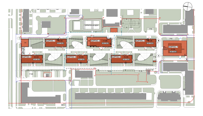
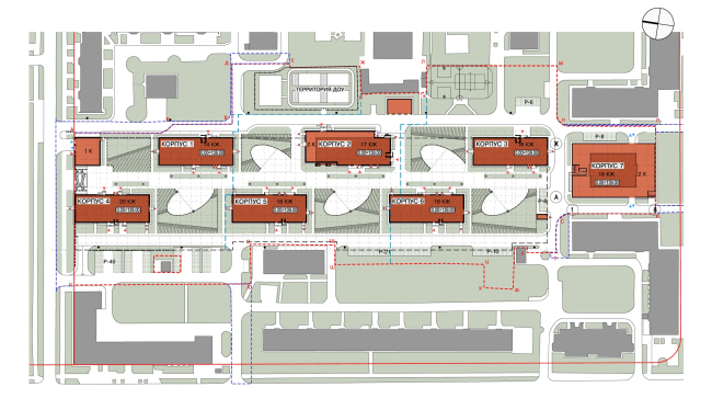
Жилой квартал в Текстильщиках. Генплан. ГАП: В.Швецов. © ООО «Архитектурная мастерская «Сергей Киселев и Партнеры»
Жилой квартал в Текстильщиках. Генплан. ГАП: В.Швецов. © ООО «Архитектурная мастерская «Сергей Киселев и Партнеры»

И вот дилемма: проектировать новую башню в той же стилистике или визуально переподчинить ей застройку всего квартала. Было разработано очень много вариантов, какие-то из них больше нравились нам, какие-то заказчику, и последнее слово сказала Москомархитектура, порекомендовав весьма сдержанный из предложенных нами компромиссных вариантов. В облике этого дома также доминирует решетка, но с учетом расположения и габаритов здания ее ячейки укрупнены, вертикальные членения подчеркнуты, а фасады выкрашены в два разных цвета, что создает ощущение вывернутой наизнанку шкуры. 
Жилой район в Текстильщиках. Фрагмент построенного дома. ГАП: В.Швецов. © ООО «Архитектурная мастерская «Сергей Киселев и Партнеры»
Жилой район в Текстильщиках. Фрагмент построенного дома. ГАП: В.Швецов. © ООО «Архитектурная мастерская «Сергей Киселев и Партнеры»
Жилой район в Текстильщиках. 7-й корпус. ГАП: В.Швецов. © ООО «Архитектурная мастерская «Сергей Киселев и Партнеры»
Жилой район в Текстильщиках. 7-й корпус. ГАП: В.Швецов. © ООО «Архитектурная мастерская «Сергей Киселев и Партнеры»

– Архитекторы вашей мастерской вообще очень любят работать с цветом, отдавая предпочтение ярким тонам и эффектным сочетаниям, как, например, получивший широкое признание дом «Авангард». 

– Яркие цвета – не самоцель, а одно из средств создания гармоничной среды обитания. И мы отнюдь не всегда стремимся сделать фасады наших объектов максимально яркими и жизнерадостными. В каком-то смысле эта тема прослеживается в нашем новом проекте для компании «Пионер» – многофункциональном центре на Митинской, 16. Это два объема – 10-ти этажный бизнес-центр с развитой общественной зоной и 23-этажный апарт-отель на общем стилобате, в котором расположены торговые помещения, фитнес-центр и парковка, – сама типология объекта коммерческой недвижимости для этого района Москвы совершенно новая. Мы разработали очень много вариантов еще на предпроектной стадии, это касалось и объемно-планировочных, и функциональных решений и фасадов. 
Многофункциональный комплекс на Митинской, 16. Генплан. ГАП: А.Хомякова. © ООО «Архитектурная мастерская «Сергей Киселев и Партнеры»
Многофункциональный комплекс на Митинской, 16. Генплан. ГАП: А.Хомякова. © ООО «Архитектурная мастерская «Сергей Киселев и Партнеры»
Многофункциональный комплекс на Митинской, 16. © ООО «Архитектурная мастерская «Сергей Киселев и Партнеры»
Многофункциональный комплекс на Митинской, 16. © ООО «Архитектурная мастерская «Сергей Киселев и Партнеры»

И это как раз тот случай, когда нам казалось уместным сделать палитру фасадов более спокойной и холодной, и, в то же время немного вызывающе–контрастирующей с привычным окружением. Но заказчик выбрал иное колористическое решение, которое, как он считает, более гармонирует с окружающей застройкой и приближено к «корпоративной» цветовой гамме будущего сетевого отеля. И хотя сама наша образная идея – более проницаемый офисный фасад и более пиксельный отельный – была сохранена, но аргументация выбора цвета нам не представляется убедительной. 
Многофункциональный комплекс на Митинской, 16. Первоначальный вариант. ГАП: А.Хомякова. © ООО «Архитектурная мастерская «Сергей Киселев и Партнеры»
Многофункциональный комплекс на Митинской, 16. Первоначальный вариант. ГАП: А.Хомякова. © ООО «Архитектурная мастерская «Сергей Киселев и Партнеры»
Многофункциональный комплекс на Митинской, 16. Утвержденный вариант. ГАП: А.Хомякова. © ООО «Архитектурная мастерская «Сергей Киселев и Партнеры»
Многофункциональный комплекс на Митинской, 16. Утвержденный вариант. ГАП: А.Хомякова. © ООО «Архитектурная мастерская «Сергей Киселев и Партнеры»

– Получается, сегодня меняется сама структура заказа, с которым вы работаете, и вы меньше занимаетесь элитным жильем и все больше работаете в сегменте эконом-класса? Насколько это интересно?

– Сейчас это принято называть «комфорт-классом», и лично мне такое определение нравится гораздо больше эконом-класса и тем более выражения «доступное жилье». Доступное жилье в Москве – это уже штамп, за которым чаще всего скрывается быстровозводимое панельное жилье, лишающее город какого-либо выражения и характера. Кто-то очень точно сказал, что городу нужно не доступное жилье, а достойное, и класс «комфорт» позволяет добиться оптимального соотношения цены и качества, и в то же время выразительности и индивидуальности. Нам этот жанр очень интересен – это как варить кашу из топора: и результат всех устраивает, и затраты приемлемые, и каждый участник считает себя умнее другого. В общем, с удовольствием беремся за подобные проекты.

– Не секрет, что часто подобные благие намерения девелоперов заканчиваются ровно в тот момент, когда он близок к завершению проекта или, даже готов выходить на площадку. Как тут не вспомнить ваш же проект «Марфино», который был отложен в дальний угол, а девелопер вместо этого построил огромный квартал панельных жилых домов.

– Да, «Марфино» довольно грустный и обидный для нас пример. Но, знаете, время все расставляет на свои места: девелопер в итоге понял, что ставка только на панельное жилье по определению проигрышна. Несколько лет спустя после «Марфино» «Ведис Групп» снова обратились к нам. Сейчас они занимаются строительством жилого квартала в Электролитном проезде в Москве, и понимают, что сделать его интересным с помощью только типовых панельных серий не получится, поэтому заказали нам два дома, которые, выделяясь на фоне всей застройки, этажностью, формой и отделкой, станут, надеемся, своего рода флагманами обновляемого района. Это монолитные здания, в плане имеющие выразительную трапециевидную форму. Причем такое решение плана выбрано не ради «скульптурности» объема, а по совокупности факторов: сложившаяся градостроительная ситуация, инсоляция, жестко заданная квартирография. А образ фасадов сложился у архитекторов хоть и в результате перебора вариантов, но вполне естественно и закономерно: на мой взгляд здесь сочетается тактичное присутствие в предлагаемых обстоятельствах и здоровые амбиции. То, что Сергей Киселев характеризовал как два «У»: уместность и умелость. Здесь, кстати, мы сознательно отказались от ярких цветастых тонов, сделав ставку на беспроигрышную выразительность сочетания черный-белый. 
Жилой комплекс в Электролитном проезде. Генплан. ГАП: А.Никифоров. © ООО «Архитектурная мастерская «Сергей Киселев и Партнеры»
Жилой комплекс в Электролитном проезде. Генплан. ГАП: А.Никифоров. © ООО «Архитектурная мастерская «Сергей Киселев и Партнеры»
Жилой комплекс в Электролитном проезде. Общий вид. ГАП: А.Никифоров. © ООО «Архитектурная мастерская «Сергей Киселев и Партнеры»
Жилой комплекс в Электролитном проезде. Общий вид. ГАП: А.Никифоров. © ООО «Архитектурная мастерская «Сергей Киселев и Партнеры»

– Как вам удалось согласовать проект жилого дома средней ценовой категории почти без балконов и лоджий?

– Тут есть общественные лоджии незадымляемой лестницы, на которых мы предлагаем разместить блоки кондиционеров, плюс от нескольких приквартирных лоджий нам не удалось отбиться под напором маркетологов. В этой теме имеет место, конечно, некоторая стереотипность: с балконом, а тем более с лоджией квартира стоит дороже, для российского человека они стали неотъемлемой частью организации быта, и изменить это чрезвычайно сложно. Не буду говорить за всех, но подавляющее большинство жителей норовят присоединить эти площади к теплому контуру, тем самым увеличивая полезную площадь квартиры. Так почему бы не сделать это сразу, тем более что при двух эвакуационных лестницах нормы это позволяют, а сами  «холодные элементы» продаются все равно по той же цене? Вообще две этих темы – балконы и кондиционеры – едва ли не главная беда современного российского домостроения, то поле, на котором соображения эстетики и интересы будущих жильцов вступают в непримиримое противоречие. Например, в домах в Текстильщиках мы предусмотрели места для установки блоков кондиционеров – специальные ниши на лоджиях. И что вы думаете? Народная смекалка подталкивает жильцов вешать наружные блоки прямо на фасад, аргументируя это тем, что «оплаченные» ниши они приспособят под что-нибудь более для них полезное, а воздушное пространство за плоскостью фасада можно использовать бесплатно.
Жилой комплекс в Электролитном проезде. Вид с высоты птичьего полета. ГАП: А.Никифоров. © ООО «Архитектурная мастерская «Сергей Киселев и Партнеры»
Жилой комплекс в Электролитном проезде. Вид с высоты птичьего полета. ГАП: А.Никифоров. © ООО «Архитектурная мастерская «Сергей Киселев и Партнеры»

– Мастерская «Сергей Киселев и Партнеры» вошла в число финалистов конкурса на концепцию жилого комплекса на Рублевском шоссе. Принимаете ли вы участие в других громких конкурсах последнего времени? 

– Не во всех подряд, конечно, но участвуем. Выбираем состязания, тематика которых близка нам по духу и интересна с профессиональной точки зрения. Например, участвовали в первом туре конкурса на проект Международного финансового центра в Рублево-Архангельском – это место нам хорошо знакомо, здесь мы проектировали на двух участках в проекте застройки для предыдущего инвестора. Подавали заявку и на участие в конкурсе на проект парка в Зарядье, а сейчас ждем итогов первого тура конкурса на проект реконструкции территории завода «Серп и Молот». Ранее участвовали в заказном конкурсе на торговый центр на площади Тверской заставы. Не отказываемся от менее пафосных и амбициозных «камерных» конкурсов. Так, недавно закончили конкурсный проект реорганизации бывшей промзоны на Сущевском валу, не выиграли, но подобный тип конкурсов уже сам по себе конкретная работа и является очередной добавкой в копилку опыта.
Конкурсный проект на Сущевском валу. ГАП: В.Лабутин. © «Архитектурная мастерская «Сергей Киселев и Партнеры»
Конкурсный проект на Сущевском валу. ГАП: В.Лабутин. © «Архитектурная мастерская «Сергей Киселев и Партнеры»
Конкурсный проект на Сущевском валу. ГАП: В.Лабутин. © «Архитектурная мастерская «Сергей Киселев и Партнеры»
Конкурсный проект на Сущевском валу. ГАП: В.Лабутин. © «Архитектурная мастерская «Сергей Киселев и Партнеры»
Конкурсный проект на Сущевском валу. ГАП: В.Лабутин. © «Архитектурная мастерская «Сергей Киселев и Партнеры»
Конкурсный проект на Сущевском валу. ГАП: В.Лабутин. © «Архитектурная мастерская «Сергей Киселев и Партнеры»


– Реконструкция промышленных территорий всегда была одной из специализаций вашей мастерской. Даже в нашем недавнем обзоре московских проектов развития бывших промзон «СКиП» упоминается едва ли не чаще всего… 

– Это действительно одна из наших любимых сфер приложения профессиональных усилий. Мы и сейчас работаем над несколькими проектами многофункциональных комплексов на месте бывших производств, включая комплексное благоустройство и создание общественных рекреационных пространств. Говорить об этом еще рано, будет повод продолжить разговор на эту тему позже, когда появится возможность оценить результат. Продолжается и наше сотрудничество с «Красной Розой» – сейчас мы делаем там сразу три объекта в формате «маленьких домиков» в рамках разработанной нашей компанией еще в 2003 году концепцией развития территории, уже с учетом сегодняшних реалий.
беседовала: Анна Мартовицкая