Размещено на портале Архи.ру (www.archi.ru)

05.11.2013

Окна для любого роста

Нина Фролова
Объект:
Международная школа Икаст-Бранне
Адрес:
Дания, None, Икаст-Бранне.

В датском городе Икаст-Бранне бюро C. F. Møller построило новый корпус Международной школы.

Международная школа Икаст-Бранне © Martin Schubert
Международная школа Икаст-Бранне © Martin Schubert

Международная школа, где преподавание ведется исключительно на английском языке, очень популярна, и всех желающих там учиться старое здание вместить не могло, поэтому в некотором отдалении построили еще одно, и теперь в школе свободно разместятся ее 130 учеников – с возможностью в будущем увеличить их число до 200.
Международная школа Икаст-Бранне © Julian Weyer
Международная школа Икаст-Бранне © Julian Weyer

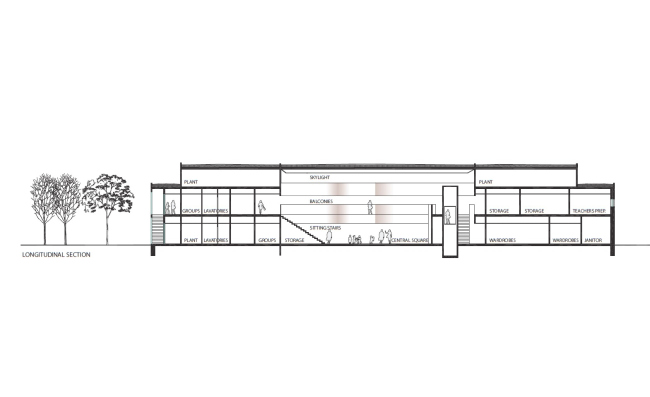
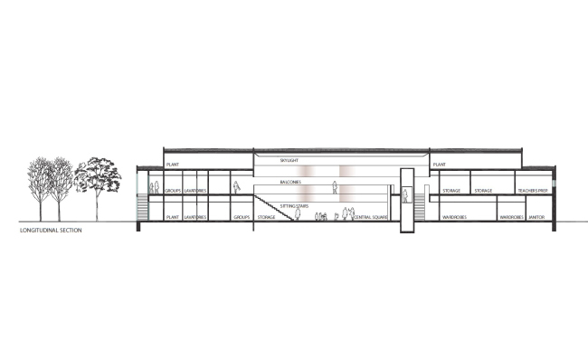
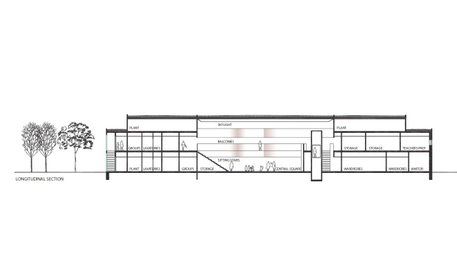
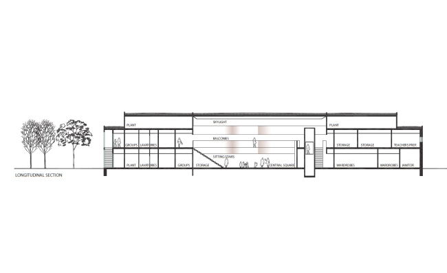
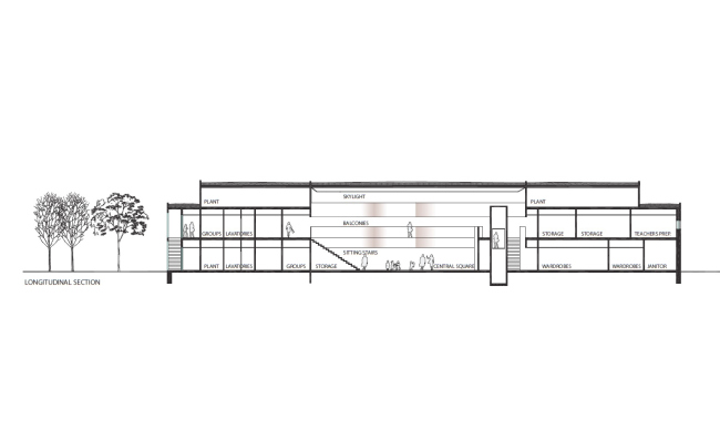
Несмотря на то, что постройка C. F. Møller дополняет имеющееся здание, оно трактовано как самодостаточный объект – маленький город с центральной площадью–атриумом и улочками-коридорами. Светлые стены из кирпича прорезаны асимметрично расположенными окнами – они различаются как по размеру, так и по расстоянию от подоконника до пола. Благодаря этому, любоваться видами смогут и учителя, и ученики любого возраста, тем более что новый корпус вмещает в себя не только школьные классы и помещения для группы продленного дня, но и детский сад. Также многочисленные окна обеспечивают естественное освещение интерьера.
Международная школа Икаст-Бранне © Martin Schubert
Международная школа Икаст-Бранне © Martin Schubert

Центральный атриум сложного плана окаймляют изгибающиеся галерии. Это пространство с лестницей-трибунами не только служит для общения учеников, но также и для занятий музыкой, спектаклей, обедов и лекций.
Международная школа Икаст-Бранне © Martin Schubert
Международная школа Икаст-Бранне © Martin Schubert

Школу окружает оформленная теми же C. F. Møller территория: в напоминающем тенистый лес парке разбросаны игровые и спортивные площадки, также имеется территория для прогулок малышей из детского сада.
Международная школа Икаст-Бранне © Julian Weyer
Международная школа Икаст-Бранне © Julian Weyer
Международная школа Икаст-Бранне © Julian Weyer
Международная школа Икаст-Бранне © Julian Weyer
Международная школа Икаст-Бранне © Martin Schubert
Международная школа Икаст-Бранне © Martin Schubert
Международная школа Икаст-Бранне © Martin Schubert
Международная школа Икаст-Бранне © Martin Schubert
Международная школа Икаст-Бранне © Martin Schubert
Международная школа Икаст-Бранне © Martin Schubert
Международная школа Икаст-Бранне © Martin Schubert
Международная школа Икаст-Бранне © Martin Schubert
Международная школа Икаст-Бранне © Martin Schubert
Международная школа Икаст-Бранне © Martin Schubert
Международная школа Икаст-Бранне © Martin Schubert
Международная школа Икаст-Бранне © Martin Schubert
Международная школа Икаст-Бранне © Martin Schubert
Международная школа Икаст-Бранне © Martin Schubert
Международная школа Икаст-Бранне © Martin Schubert
Международная школа Икаст-Бранне © Martin Schubert
Международная школа Икаст-Бранне © Martin Schubert
Международная школа Икаст-Бранне © Martin Schubert
Международная школа Икаст-Бранне © Martin Schubert
Международная школа Икаст-Бранне © Martin Schubert
Международная школа Икаст-Бранне © C. F. Møller
Международная школа Икаст-Бранне © C. F. Møller
Международная школа Икаст-Бранне © C. F. Møller
Международная школа Икаст-Бранне © C. F. Møller
Международная школа Икаст-Бранне © C. F. Møller
Международная школа Икаст-Бранне © C. F. Møller
Международная школа Икаст-Бранне © C. F. Møller
Международная школа Икаст-Бранне © C. F. Møller
Международная школа Икаст-Бранне © C. F. Møller
Международная школа Икаст-Бранне © C. F. Møller
Международная школа Икаст-Бранне © C. F. Møller
Международная школа Икаст-Бранне © C. F. Møller