Размещено на портале Архи.ру (www.archi.ru)

30.10.2013

Одеяло для пассивной школы

Евгения Буданова
Мастерская:
Architype

Репортаж из Лондона о «зеленых» архитекторах Architypе.

Школа Бушбери-Хилл. Фото © Leigh Simpson. Предоставлено Architype
Школа Бушбери-Хилл. Фото © Leigh Simpson. Предоставлено Architype

Немногие архитекторы в Великобритании могут похвастаться тем, что они прислушиваются к консультантам по экологическим вопросам, конструкторам или обитателям своих уже реализованных объектов. А тех, кто учится на своих ошибках и использует полученный опыт в последующих проектах, вообще впору заносить в Красную книгу.

Architypе, представители нового поколения архитекторов-энтузиастов, построили первые в Великобритании школы, соответствующие немецкому стандарту Passivhaus. Своей работой они доказали, что школа может быть не только красивой постройкой, но и зданием, где комфортно учиться благодаря его продуманности и энергоэффективности.

«Энергия чем-то похожа на отходы: всегда хорошо, если их можно переработать, но лучше просто производить их меньше. Также и с энергией: можно использовать ее возобновляемые источники, солнечные панели, а можно просто меньше ее потреблять».
Джонатан Хайнс, директор бюро Architypе

Что такое стандарт Passivhaus?

Напомним, что этот немецкий стандарт энергоэффективности зданий, разработанный PassivhausInstitut – показатель низкого энергопотребления, комфорта во внутреннем пространстве и архитектурного качества объекта. Многие совершенно напрасно считают, что он применим только к жилью: в переводе с немецкого «Haus» означает не только дом, но и любое строение, и стандарт подходит к зданию любой типологии. О его прогрессивности говорят цифры: стандартное энергопотребление обычной школы в Англии – 100 кВтч/м2 в год, а здание, построенное по стандарту Passivhaus, должно потреблять не больше 15 кВтч/м2 в год. В отличие от других стандартов, Passivhaus способствует снижению энергопотребления путем оптимизации проектных решений – таких, как поиск наиболее компактной формы, наилучшей ориентации здания и т. д.

Стандарт Passivhaus нечасто можно встретить в Англии, поскольку местные нормы энергоэффективности работают по совершенно противоположной схеме. По сравнению с Passivhaus, популярный в Англии и лоббируемый правительством «зеленый» стандарт BREEAM имеет многочисленные критерии оценки, которые часто не имеют никакого отношения к энергопотреблению: например, баллы можно получить, если расстояние между проектируемым зданием и ближайшим почтовым ящиком меньше 500 метров. Кроме того, BREEAM ориентирован скорее не на снижение количества потребляемой, а на производство дополнительной энергии от возобновляемых источников.

Как действует архитектор, придерживающийся принципов Passivhaus?

Во-первых, он максимально снижает теплопроводность стен, крыш, перекрытий и дверей. Во-вторых, он заботится о термальной герметичности здания: все «мостики холода» (участки теплопотерь, чаще всего встречающиеся на стыках конструктивных элементов здания) должны быть сведены на нет или минимизированы. Помимо этого, уже на начальном этапе проектирования здание моделируют при помощи программного обеспечения PHDP (Passive House Design Package). Однако британские архитекторы обычно сначала полностью вычерчивают здание, продумывают планировки и только потом отдают для расчета энергозатрат инженерам. Те пытаются что-то оптимизировать, но вероятность исправить ошибки в готовом проекте крайне мала. Поэтому куда эффективней думать об этом на более ранних этапах работы, когда проект можно существенно изменить, если это требуется, например, для сохранения тепла.

Самое сложное в стандарте Passivhaus – это проверка объекта на соответствие, где показателями являются не только расчетные данные инженеров-проектировщиков, но и реальные измерения в уже построенном и эксплуатируем доме. А построить в точности так, как было спроектировано – известная головная боль для всех архитекторов.
Школа Бушбери-Хилл. Фото © Leigh Simpson. Предоставлено Architype
Школа Бушбери-Хилл. Фото © Leigh Simpson. Предоставлено Architype

Кто такие архитекторы Architype?

Architypе – это архитектурная мастерская нового образца, появившаяся 29 лет назад и заслужившая за эти годы завидную репутацию проектировщиков качественных энергоэффективных зданий. Их оригинальный подход продиктован стремлением вовлечь заказчиков и будущих жильцов в процесс проектирования. Опытным путем они наработали багаж технических решений, повышающий качество «производимого продукта».

За время своего существования коллектив Architypе увеличился с пяти до 53 человек, несмотря на это им удалось сохранить свежий творческий подход к проектированию, включающий частый анализ и обсуждение проектов. Годовой оборот компании составляет 3 млн фунтов в год.
Школа Бушбери-Хилл. Фото © Leigh Simpson. Предоставлено Architype
Школа Бушбери-Хилл. Фото © Leigh Simpson. Предоставлено Architype

Почему Architype решили применить стандарт Passivhaus в Англии?

Около пяти лет назад Architypе в сотрудничестве с Oxford Brooks University (один из крупнейших институтов, занимающихся изысканиями в области энергоэффективных технологий) собрали и проанализировали информацию о «работе» школьных зданий, построенных этим бюро. В результате выяснилось, что, несмотря на различные энергоэффективные стратегии, эти школы потребляли огромное количество энергии, поскольку зимой в них открывались окна. И в этот момент адаптация стандарта Passivhaus для британских реалий заинтересовала Architypе, потому что, благодаря механической вентиляции и термальной герметичности, построенные по этому стандарту здания потребляли значительно меньше энергии и генерировали меньше СО2. Дополнительным плюсом стала реальная возможность изучить то, как «работает» здание, и какие именно проектные решения больше всего помогают повысить энергоэффективность.

Многие архитекторы опасаются, что стандарт Passivhaus ограничит полет их фантазии. Но архитекторы Architypе утверждают, что именно заданные им жесткие рамки запускают полноценный творческий процесс в их головах.

За счет применения в своих недавних проектах методов Passivhaus Architypе достигли радикального упрощения форм и деталей, оптимизировали процесс проектирования и даже архитектурный надзор. Желаемых результатов им удается достигать, продумывая шаг за шагом каждое решение и проверяя его работоспособность на практике. По словам директора бюро Джонатана Хайнса, самым главным уроком для Architypе стало осознание важности упрощения проекта в целом и конструктивных деталей в частности.
Школа Бушбери-Хилл. Фото © Leigh Simpson. Предоставлено Architype
Школа Бушбери-Хилл. Фото © Leigh Simpson. Предоставлено Architype

Поскольку типология здания не была решающим фактором, Architypе были готовы опробовать стандарт Passivhaus на любом проекте. Cейчас, накопив опыт работы в этой сфере, они проектируют по принципам этого стандарта университет, здание архива, поселок на 150 домов, церковь и несколько частных домов. Однако пять лет назад их специализацией были школьные здания, поэтому они и стали для них первым Passivhaus-полигоном. Единственным существенным требованием заказчика пяти школ, совета округа Вулвергемптон, было придерживаться рамок весьма скромного бюджета.


На сегодняшний день Architypе полностью закончили строительство двух учебных заведений – начальной школы Оукмидоу (Oakmeadow) и школы Бушбери-Хилл (Bushbury Hill), а в ноябре 2013 достраивается третье – начальная школа  Суиллингтон (Swillington). Все они заменили устаревшие и потому снесенные школьные здания, а  своим появлением они обязаны нынешней правительственной инициативе. Однако Джонатан Хайнс считает, что дальнейшее распространение «пассивных» школ в Англии – под большим вопросом как раз из-за трудностей с государственным финансированием. Поэтому Architypе надеются, что такие проекты будут пользоваться большим спросом, например, в Уэльсе, где система госфинансирования отличается от английской.
Школа Бушбери-Хилл. Фото © Leigh Simpson. Предоставлено Architype
Школа Бушбери-Хилл. Фото © Leigh Simpson. Предоставлено Architype

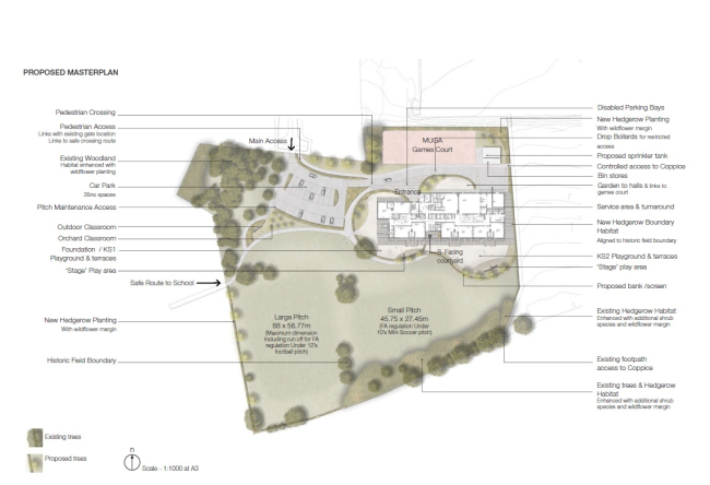
Архитектурные особенности «пассивных» школ

Процесс их проектирования начался с поиска оптимальной формы, этажности, глубины и ориентации здания при помощи уже упомянутой программы динамического моделирования PHDP. В результате первоначальных исследований стало ясно, насколько важна для снижения энергопотребления компактность здания. Минимизация площади поверхности здания по отношению к площади пола позволила уже на этапе концепции достигнуть оптимизации энергозатрат. Для обеих уже построенных школ в итоге была выбрана композиция из простых прямоугольных 2-этажных объемов с центральным пространством, которое служит рекреацией.
Школа Оукмидоу. Генплан © Architype
Школа Оукмидоу. Генплан © Architype
Школа Бушбери-Хилл. Генплан © Architype
Школа Бушбери-Хилл. Генплан © Architype

Здание спроектировано так, чтобы солнечному свету был обеспечен доступ во все школьные помещения, чтобы там как можно меньше использовали искусственное освещение. Чтобы снизить возможность перегрева в летние месяцы, количество окон, ориентированных на запад и восток, сведено к нулю, поскольку солнечные лучи, падающие под низким углом, всегда сложнее затемнить, и потому окна выходят на север и на юг.
Школа Бушбери-Хилл. План 1-го этажа © Architype
Школа Бушбери-Хилл. План 1-го этажа © Architype
Школа Бушбери-Хилл. План 2-го этажа © Architype
Школа Бушбери-Хилл. План 2-го этажа © Architype

Все помещения имеют перекрестную вентиляцию, которая в основном используется летом и в межсезонье. Кроме того, в теплые месяцы в качестве дополнительной меры центральная рекреация превращается в «вытяжную трубу», где, благодаря перепаду высот и эффекту самотяги, теплый воздух поднимается и выходит через верхние окна. Для зимы предусмотрена вентиляция с системой рекуперации тепла. Что и говорить, по сравнению со школами, где в холодное время года для вентиляции открывают окна, такая система значительно снижает теплопотери. От стандартной рекуперационной системы она отличается тем, что поступающий в помещение свежий воздух нагревается за счет тепла от обработанного воздуха из центральной рекреации. В этом пространстве воздух пассивно нагревается от солнечного излучения и внутреннего тепловыделения, в том числе и от бегающих на переменах школьников.
Схема летней и зимней стратегиями вентиляции школы Бушбери-Хилл © Architype
Схема летней и зимней стратегиями вентиляции школы Бушбери-Хилл © Architype
Схема летней и зимней стратегиями вентиляции школы Оукмидоу © Architype
Схема летней и зимней стратегиями вентиляции школы Оукмидоу © Architype

Большое внимание в проекте «пассивных» школ уделено вопросам тепловой герметичности здания и минимизации уже упомянутых «мостиков холода» – проблемы, о которой в Англии часто забывают. Больше всего таких «мостиков» образуется в области фундамента, поскольку он непосредственно контактирует с землей, и на стыках конструктивных элементов. Архитекторы нашли оригинальный ответ на этот вопрос, предложив конструкторам спроектировать фундамент, который был бы полностью теплоизолированным и не касался бы почвы напрямую. Вначале британские конструкторы – партнеры Architypе заявили, что это невозможно с технической точки зрения, несмотря на то, что в Германии и Австрии такой метод широко применяется при строительстве «пассивных» зданий, но позже Architypе все-таки удалось их переубедить. В конечном итоге, такое решение оказалось даже дешевле, чем обычный ленточный фундамент, поскольку примененный метод потребовал меньше земляных работ. Когда такая система была  реализована, количество «мостиков холода» в области фундамента было сведено к нулю.
Школа Бушбери-Хилл. Теплоизоляция фундамента. Фото предоставлено Architype
Школа Бушбери-Хилл. Теплоизоляция фундамента. Фото предоставлено Architype
Школа Бушбери-Хилл. Теплоизоляция фундамента. Фото предоставлено Architype
Школа Бушбери-Хилл. Теплоизоляция фундамента. Фото предоставлено Architype

Для избавления от «мостиков холода» на стыках конструктивных элементов архитекторы придумали разделить конструкцию здания на внутреннюю и внешнюю части. Вся внутренняя часть конструкции целиком обернута слоем теплоизоляции, названным «одеяло», и потому полностью герметична. Более того, теплоизоляция фундамента примыкает к теплоизоляции стен, создавая замкнутый контур, что позволило полностью разрешить проблему «мостиков холода». Однако из-за такого решения козырьки, навесы и подобные им фасадные элементы пришлось крепить на дополнительные наружные конструкции, не соединенные с основным каркасом.
Школа Бушбери-Хилл. Узел стыка фундамента и стены © Architype
Школа Бушбери-Хилл. Узел стыка фундамента и стены © Architype

Особое внимание было уделено упрощению конструктивных узлов. Проектной группе пришлось потратить немало усилий на поиск баланса между теплопотерями через окна и важным для пассивного отопления солнечным излучением, что в итоге привело к строгому контролю за всеми окнами и дверями в здании.


Все использованные при строительстве школ материалы – экологически чистые и в большинстве своем были произведены в самой Англии, что минимизировало выбросы СО2 от перевозки материалов. Также использовалась Warmcell – теплоизоляция из переработанной газетной бумаги.

В первые полтора месяца с момента окончания строительства архитекторы посещали свои школы каждую неделю (затем – раз в две недели и раз в месяц) для того, чтобы проследить за функционированием всех систем и понять, как в здании себя чувствуют его обитатели. Помимо замеров количества потребленной энергии, уровня СО2, температуры и влажности, Architypе попросили всех сотрудников школы делать записи о том, как здание «работает» и как они себя в нем чувствуют. Вся эта информация собирались и обсуждались на встречах с подрядчиками для того, чтобы усовершенствовать будущие проекты.

Так, в одном из первых школьных проектов было обнаружено, что уровень потребленной первичной энергии существенно превышает норму. Это было вызвано наличием отопления в помещении спринклерного насоса, которое не было теплоизолировано. С другой стороны, в ходе мониторинга архитекторы выяснили, что система вентиляции с рекуперацией тепла способствует тому, что дети более внимательны на уроках, поскольку они дышат свежим воздухом.

Поскольку здание прекрасно теплоизолировано и герметично, для его отопления достаточно одного домашнего бойлера, какими в Англии обычно отапливают квартиры, но при проектировании школьная техническая служба попросила установить второй, дополнительный бойлер – который впоследствии, конечно, оказался лишним. Комиссия, проверявшая здание, обратила внимание на то, что, несмотря на холодную погоду, оба бойлера были выключены – так как и без отопления внутри здания сохранялась комфортная температура.

На протяжении всего периода мониторинга, длившегося год, архитекторы рассказывали сотрудникам своих школ, как грамотно пользоваться освещением, вентиляцией и прочими системами в столь необычном здании и даже выпустили иллюстрированное «руководство пользователя». Также Architypе провели немало времени, объясняя ученикам, зачем нужна энергия, где ее брать и – главное – как ее экономить. Также школьникам разрешили делать замечания учителям, если те, к примеру, забывали выключить свет. Дети пришли от такой перспективы в полный восторг, чего нельзя сказать об педагогах.
Школа Бушбери-Хилл. «Руководство пользователя» © Architype
Школа Бушбери-Хилл. «Руководство пользователя» © Architype
Школа Бушбери-Хилл. «Руководство пользователя» © Architype
Школа Бушбери-Хилл. «Руководство пользователя» © Architype

По итогам года мониторинга выяснилось, что «пассивные» школьные здания Architypе действительно потребляют не более 14–15 кВтч/м2в год, в то время как более ранние школы тех же архитекторов потребляли 40–50 кВтч/м2 в год; впрочем, обычные школы в Англии вовсе расходуют 100 кВтч/м2 в год.


Анализируя весь процесс создания и реализации проекта, можно сделать вывод, что успех во многом обусловлен слаженной работой всей команды: заказчика, с которым Architypе сотрудничает на протяжении многих лет, подрядчика, архитекторов и конструкторов. Многочисленные встречи и переговоры позволили всем членам команды с самого начала ясно понимать, что и зачем делается. Также было проведено огромное количество проверок и испытаний, включая дымовой тест, определяющий герметичность здания.
Школа Бушбери-Хилл. Фото © Leigh Simpson. Предоставлено Architype
Школа Бушбери-Хилл. Фото © Leigh Simpson. Предоставлено Architype

Бюро Architypе удалось достигнуть поразительных результатов, использовав стандарт Passivhaus как инструмент проектирования и вообще не затратив дополнительных средств на энергоэффективные технологии (хотя обычно здания Passivhaus и так окупаются довольно быстро: в среднем за 5–10 лет в зависимости от цен на энергоносители). Основывая рабочий процесс на наблюдениях за тем, что и как «работает» в постройке, эти архитекторы борются за качество путем упрощения самого здания и его деталей, доказывая при этом, что энергоэффективность не противоречит красоте и элегантности. Как сказал музыкант Чарльз Мингус, «Усложнение простоты – это банальность. А упрощение сложности – это и есть творчество»: именно этой философии придерживается мастерская Architypе.