Размещено на портале Архи.ру (www.archi.ru)

25.10.2013

Два в одном

Анна Сансиева
Объект:
Выставочный центр PEX
Адрес:
Франция, None, Страсбург.
Дворец музыки и конгрессов – реконструкция
Адрес:
Франция, None, Страсбург.
Мастерская:
Dietrich Untertrifaller

Дворец музыки и конгрессов в Страсбурге, перестраиваемый бюро Dietrich | Untertrifaller, дополнит выставочный комплекс PEX по проекту Дитмара Файхтингера.

Дворец музыки и конгрессов - реконструкция © Dietrich | Untertrifaller Architekten
Дворец музыки и конгрессов - реконструкция © Dietrich | Untertrifaller Architekten

Если сходу спросить «Где находится Страсбург?» собеседник нередко перед ответом задумается, а иногда вообще выпалит: «В Германии». И действительно: это уникальный французский город в Эльзасе с немецким названием. Так же, как встречаются здесь Германия и Франция, в Страсбурге прекрасно уживаются богатое наследие Средневековья и современная архитектура.
Дворец музыки и конгрессов - реконструкция © Dietrich | Untertrifaller Architekten
Дворец музыки и конгрессов - реконструкция © Dietrich | Untertrifaller Architekten
Дворец музыки и конгрессов - реконструкция © Dietrich | Untertrifaller Architekten
Дворец музыки и конгрессов - реконструкция © Dietrich | Untertrifaller Architekten
Дворец музыки и конгрессов - реконструкция © Dietrich | Untertrifaller Architekten
Дворец музыки и конгрессов - реконструкция © Dietrich | Untertrifaller Architekten

В итоге, город стал и культурным, и дипломатическим, и бизнес-центром: туристы спешат в первую очередь посетить знаменитый готический собор, а делегации со всего мира съезжаются во Дворец музыки и конгрессов в окраинном районе Вакен. Но если собор в центре города манит своей историей, то для места деловых встреч намного важнее функциональность, что учли австрийские архитекторы Dietrich | Untertrifaller, выигравшие в июне 2011 конкурс на перестройку Дворца. Работы над реализацией их проекта начались в конце 2012 и должны завершиться к 2016.
Дворец музыки и конгрессов - реконструкция © Dietrich | Untertrifaller Architekten
Дворец музыки и конгрессов - реконструкция © Dietrich | Untertrifaller Architekten
Дворец музыки и конгрессов - реконструкция © Dietrich | Untertrifaller Architekten
Дворец музыки и конгрессов - реконструкция © Dietrich | Untertrifaller Architekten
Дворец музыки и конгрессов - реконструкция © Dietrich | Untertrifaller Architekten
Дворец музыки и конгрессов - реконструкция © Dietrich | Untertrifaller Architekten

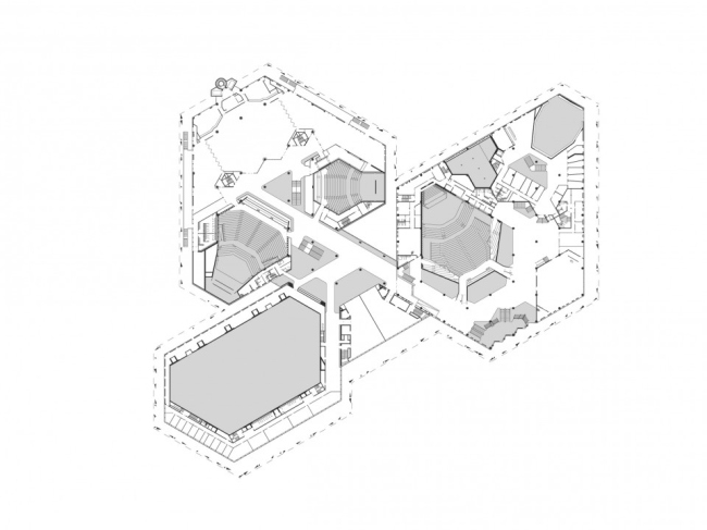
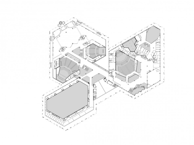
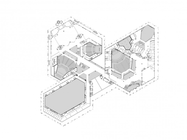
К зданию 1975 года, состоящему из двух объемов, решено пристроить третий – конференц-зал на 600 мест. Существующие залы также увеличены, и один из них будет использоваться исключительно для проведения концертов. С культурными мероприятиями также связаны новый репетиционный зал для оркестра и огромное (3000м2) многофункциональное помещение с хорошей акустикой. Связующим звеном для трех корпусов Дворца станет центральное фойе.
Дворец музыки и конгрессов - реконструкция © Dietrich | Untertrifaller Architekten
Дворец музыки и конгрессов - реконструкция © Dietrich | Untertrifaller Architekten
Дворец музыки и конгрессов - реконструкция © Dietrich | Untertrifaller Architekten
Дворец музыки и конгрессов - реконструкция © Dietrich | Untertrifaller Architekten
Дворец музыки и конгрессов - реконструкция © Dietrich | Untertrifaller Architekten
Дворец музыки и конгрессов - реконструкция © Dietrich | Untertrifaller Architekten
Дворец музыки и конгрессов - реконструкция © Dietrich | Untertrifaller Architekten
Дворец музыки и конгрессов - реконструкция © Dietrich | Untertrifaller Architekten

Что касается архитектурного решения, Хельмут Дитрих и Михаил Унтертрифаллер предпочли взять за основу используемую здесь с самого начала форму равностороннего треугольника с обрезанными углами. Весь комплекс объединит протяженная колоннада вдоль фасадов, поддерживающая общую кровлю.
Выставочный центр PEX © Dietmar Feichtinger Architectes
Выставочный центр PEX © Dietmar Feichtinger Architectes

Дальше – больше. Теперь Дитмар Файхтингер выиграл конкурс на проект совершенно нового выставочного центра (так называемого PEX – Parc de la Expositions) в Страсбурге, совсем рядом с Дворцом музыки и конгрессов. Файхтингер стремился приблизиться в своей работе к проекту Дитриха и Унтертрифаллера. По использованным материалам здания действительно будут похожи: в обоих случаях широко применены дерево и стекло. Кстати, многочисленные поверхности с остеклением (более 75%) в проекте PEX жюри конкурса высоко оценили еще и потому, что с их помощью в выставочных залах обеспечено естественное освещение.
Выставочный центр PEX © Dietmar Feichtinger Architectes
Выставочный центр PEX © Dietmar Feichtinger Architectes

Если во Дворец музыки и конгрессов все помещения группируются вокруг фойе, то в PEX доминантой будет широкая открытая лестница: она притянет к себе не только корпуса PEX, но и Дворец. Главное здание комплекса – многоярусное, с консольным выносом; наверху там расположится ресторан с открытой террасой.
Выставочный центр PEX © Dietmar Feichtinger Architectes
Выставочный центр PEX © Dietmar Feichtinger Architectes

Все остальные выставочные павильоны по проекту имеют сложные планы и кровли с зигзагообразным профилем. Их соединят между собой множество остекленных переходов, а самый большой из них приведет во Дворец музыки и конгрессов.
Выставочный центр PEX © Dietmar Feichtinger Architectes
Выставочный центр PEX © Dietmar Feichtinger Architectes

Разумеется, возможностей для полета фантазии у Файхтингера оказалось куда больше, чем у архитекторов, занимающихся перестройкой старого Дворца, но потому особенно ценно в его работе желание создать ансамбль с соседней постройкой, а не проявить «оригинальность».
Выставочный центр PEX © Dietmar Feichtinger Architectes
Выставочный центр PEX © Dietmar Feichtinger Architectes
Выставочный центр PEX © Dietmar Feichtinger Architectes
Выставочный центр PEX © Dietmar Feichtinger Architectes
Выставочный центр PEX © Dietmar Feichtinger Architectes
Выставочный центр PEX © Dietmar Feichtinger Architectes
Выставочный центр PEX © Dietmar Feichtinger Architectes
Выставочный центр PEX © Dietmar Feichtinger Architectes
Выставочный центр PEX © Dietmar Feichtinger Architectes
Выставочный центр PEX © Dietmar Feichtinger Architectes
Выставочный центр PEX © Dietmar Feichtinger Architectes
Выставочный центр PEX © Dietmar Feichtinger Architectes
Выставочный центр PEX © Dietmar Feichtinger Architectes
Выставочный центр PEX © Dietmar Feichtinger Architectes