|
Загородный дом, который UNK project спроектировало в поселке «Жуковка XXI», стал визитной карточкой бюро задолго до своей реализации. И сейчас, когда коттедж наконец обживается заказчиками, окончательно ясно, что похвалы, выданные проекту авансом, оправданны.
Частный жилой дом на Рублево-Успенском шоссе. Фотографии Юрия Пальмина
У этого дома довольно большая площадь – около 1000 «квадратов», и за счет своих габаритов, а также очень вытянутой формы и облицовки натуральным камнем он кажется по-настоящему внушительным. И вообще на коттедж не очень-то похожим – скорее, это скульптура, утверждающая в ландшафте самый что ни на есть рафинированный модернизм.
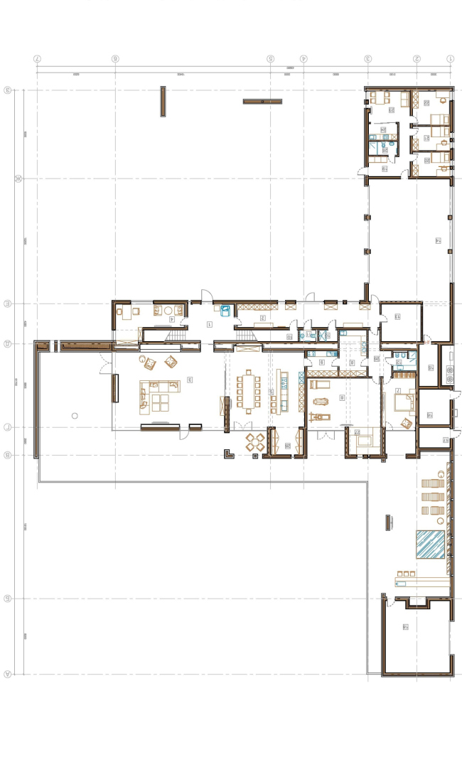
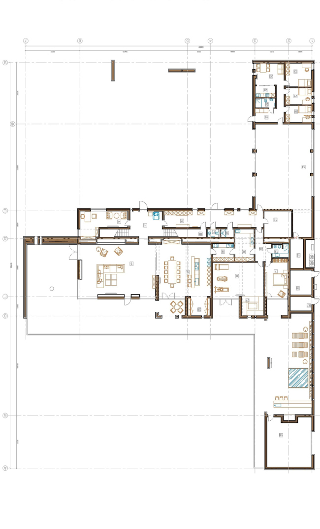
Композиционно тут все довольно просто. Участок не имел ни ярко выраженного рельефа, ни особой растительности, и прекрасно просматривался. А поскольку вариант строительства высоченного забора даже не обсуждался, в роли ширмы должен был выступить сам дом. Этим и объясняется его сильно вытянутая форма – архитекторы расположили дом поперек участка, причем ровно посередине, четко разделив общественную и приватную зоны. Вполне предсказуемо, что к въезду обращены помещения, не боящиеся глаз посторонних, а во внутренний двор – панорамные окна гостиной, столовой и спальни. С этой же стороны находится и главная открытая веранда дома. А для пущей приватности двор еще и отгорожен гаражом – его блок архитекторы пристраивают перпендикулярно основному объему. На парадной же половине двора пока стоят лишь металлические параллелепипеды – основа для будущих скульптурных композиций из лиан.
 Частный жилой дом на Рублево-Успенском шоссе © UNK project
Заказчик хотел современный дом, и архитекторы не отказали себе в удовольствии сделать вещь насквозь модернистскую. Блоки – жилой и гараж – сохраняют свою исходную форму параллелепипеда, и именно лаконизм и строгая геометрия становятся главной темой этого проекта. Но на самом деле параллелепипеды – это лишь оболочка, в которой разыгрывается сложная пространственная интрига.
Как и сам участок, вытянутый объем дома архитекторы условно делят на две части: приватную и общественную. И если блок спален занимает все прямоугольное в плане крыло дома, то двухсветная гостиная и столовая – лишь половину. Оставшаяся четверть – это открытая веранда, которая трактована как неотъемлемая часть дома: архитекторы словно вдавливают часть дворового фасада внутрь и полностью остекляют место «сгиба», делая весьма эфемерной границу между этими пространствами. Благодаря подобной трансформации в здании возникает своеобразный «капюшон», в котором архитекторы вырезают большое круглое отверстие. Вот этот эффектный проем, сквозь который растет дерево, а лучи солнца за день успевают переместиться по всей веранде, и был растиражирован так широко – за те семь лет, что дом строился, не было, кажется, ни одного журнала, который бы не опубликовал придуманную UNK project «систему координат». Архитекторам удалось добиться ощущения, что это именно дом возник и развился вокруг дерева, хотя на самом деле все было с точностью до наоборот: «булавка» или, учитывая габариты, скорее «штифт», которым дом пришпилен к участку, появился уже после окончания строительства – как нужная композиции вертикаль и просто эффектный сюжетообразующий элемент. Крона сосны отбрасывает на стены и пол веранды живописные изменчивые тени, а четкая линия ствола поддержана узкими вертикальными окнами, с помощью которых архитекторы дополнительно визуально дробят протяженный объем. Имеется узкая щель и прямо за деревом: сквозь нее, сидя на веранде, можно увидеть, кто подъехал к дому со стороны дороги (и при этом самому остаться незамеченным).
Частный жилой дом на Рублево-Успенском шоссе © UNK project
В отделке фасадов используется всего два материала – стекло и натуральный камень. Сам дом облицован светло-бежевым травертином, а гараж – узкой сланцевой плиткой, что очень четко выстраивает иерархию этих объемов по отношению друг к другу. Впрочем, архитекторы считают, что подобного совершенного звучания материалов не удалось бы добиться, если бы не фон из натуральной зелени. Растительность присутствует здесь в самых разных ипостясях – это и масштабный газон, и драпировка одной из стен беседки виноградом, и введение архитектурной доминанты в виде сосны, наконец.
Частный жилой дом на Рублево-Успенском шоссе © UNK project
Частный жилой дом на Рублево-Успенском шоссе © UNK project
В интерьерах стекло и камень также активно присутствуют, но уже на паритетных началах с деревом, которое смягчает их и привносит в помещения необходимые уют и тепло. Мебель спроектирована или подобрана архитекторами под стать экстерьеру – все помещения дома оформлены предельно лаконично. Как вспоминает Юлий Борисов, вместо традиционных для жанра загородного дома «рюшечек» заказчика интересовали необычные креативные придумки. Внешне этот сдержанный интерьер на самом деле полон хитроумных решений. Чего стоит хотя бы стеклянный мостик, соединяющий спальни и санузлы: для того, чтобы по нему можно было ходить, никого не смущаясь, перегородки оснащены датчиками движения, и когда те срабатывают, стены из прозрачных становятся матовыми.
Частный жилой дом на Рублево-Успенском шоссе © UNK project
Построив очень современный и во всех смыслах эстетский дом, архитекторы смогли сделать его еще и очень уютным. Строгая геометрия и возведенный в абсолют лаконизм не отпугивают своим холодным совершенством, а наоборот, создают все условия для уединения и общения с природой.
Частный жилой дом на Рублево-Успенском шоссе © UNK project
Частный жилой дом на Рублево-Успенском шоссе © UNK project
Частный жилой дом на Рублево-Успенском шоссе © UNK project
Частный жилой дом на Рублево-Успенском шоссе © UNK project
Частный жилой дом на Рублево-Успенском шоссе © UNK project
Частный жилой дом на Рублево-Успенском шоссе © UNK project
Частный жилой дом на Рублево-Успенском шоссе © UNK project
Частный жилой дом на Рублево-Успенском шоссе © UNK project
Частный жилой дом на Рублево-Успенском шоссе © UNK project
Частный жилой дом на Рублево-Успенском шоссе © UNK project
Частный жилой дом на Рублево-Успенском шоссе © UNK project
Частный жилой дом на Рублево-Успенском шоссе © UNK project
Частный жилой дом на Рублево-Успенском шоссе © UNK project
Частный жилой дом на Рублево-Успенском шоссе © UNK project
|