Размещено на портале Архи.ру (www.archi.ru)

07.10.2013

Красный многогранник

Нина Фролова
Объект:
Культурный центр «Дом искусств»
Адрес:
Португалия, None, Миранда-ду-Корву.
Мастерская:
FAT - Future Architecture Thinking

Португальское бюро FAT построило «Дом искусств» близ Коимбры.

Культурный центр «Дом искусств». Фото © João Morgado. Предоставлено FAT – Future Architecture Thinking
Культурный центр «Дом искусств». Фото © João Morgado. Предоставлено FAT – Future Architecture Thinking

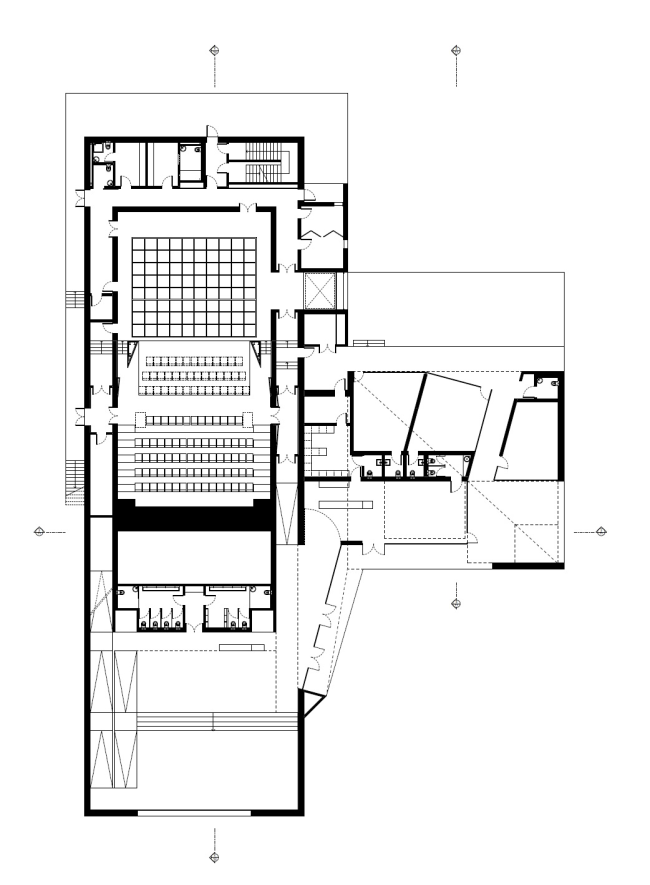
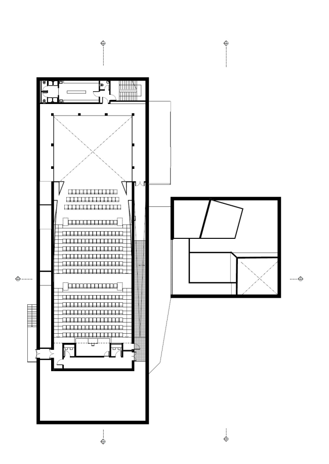
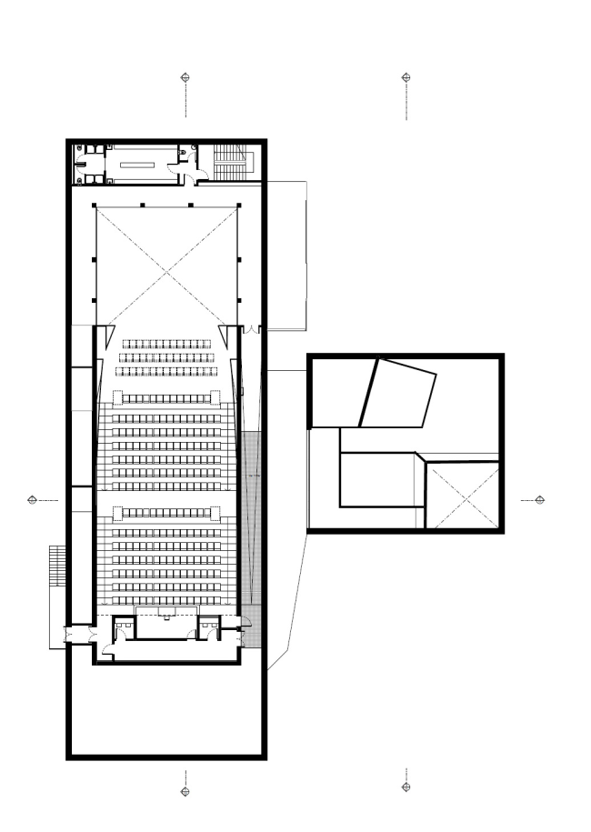
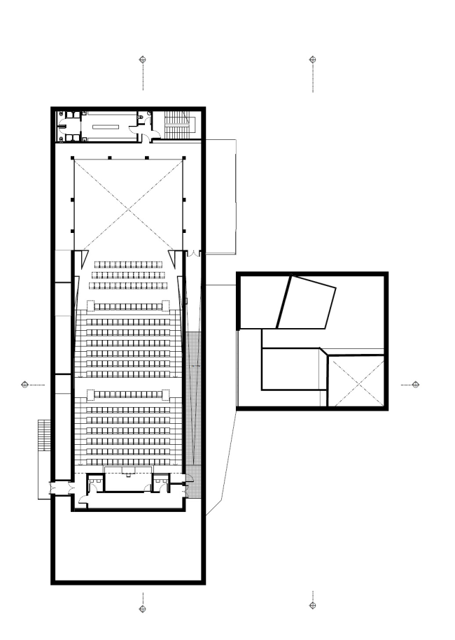
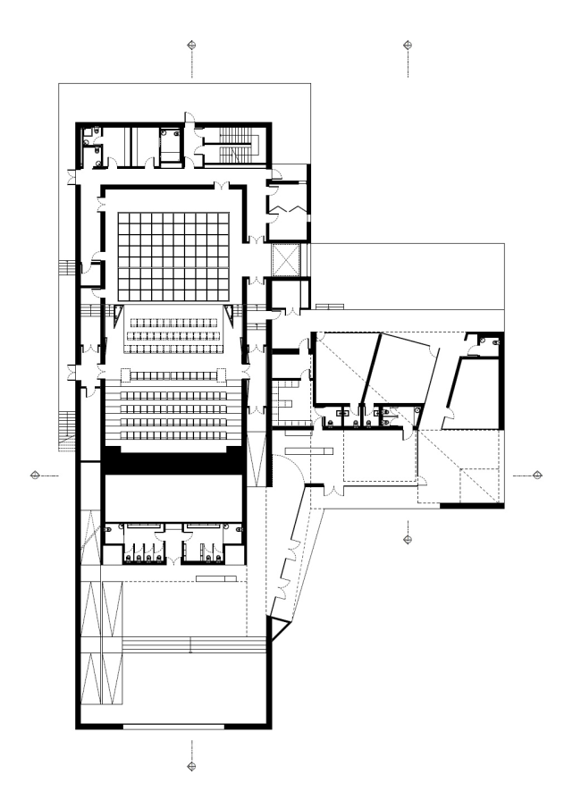
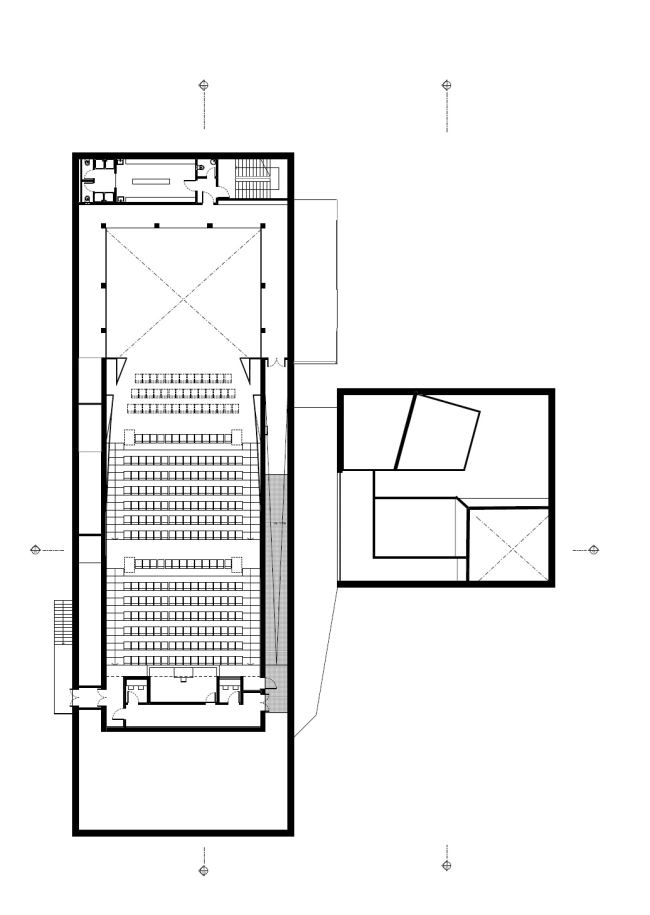
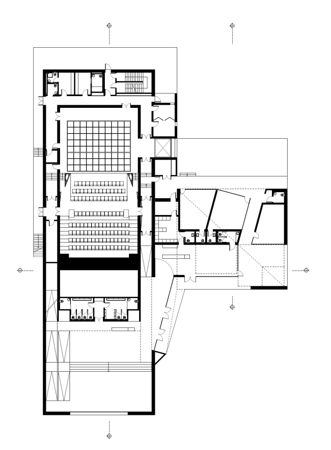
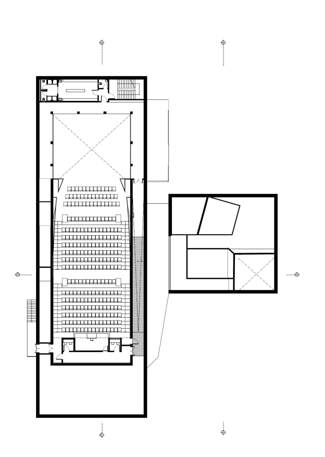
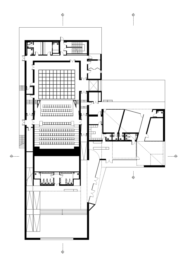
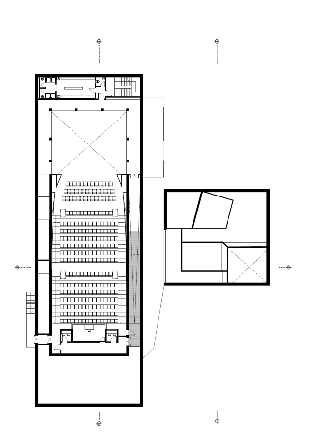
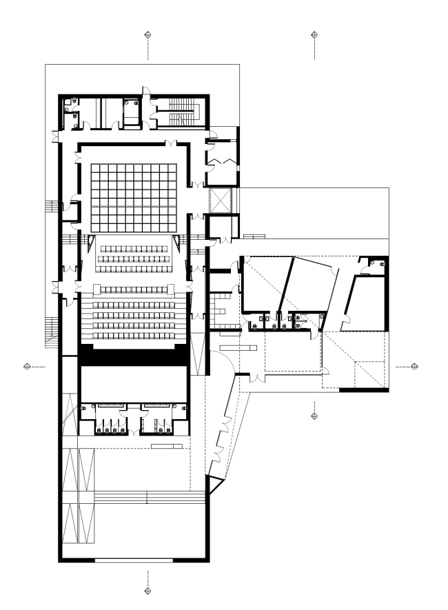
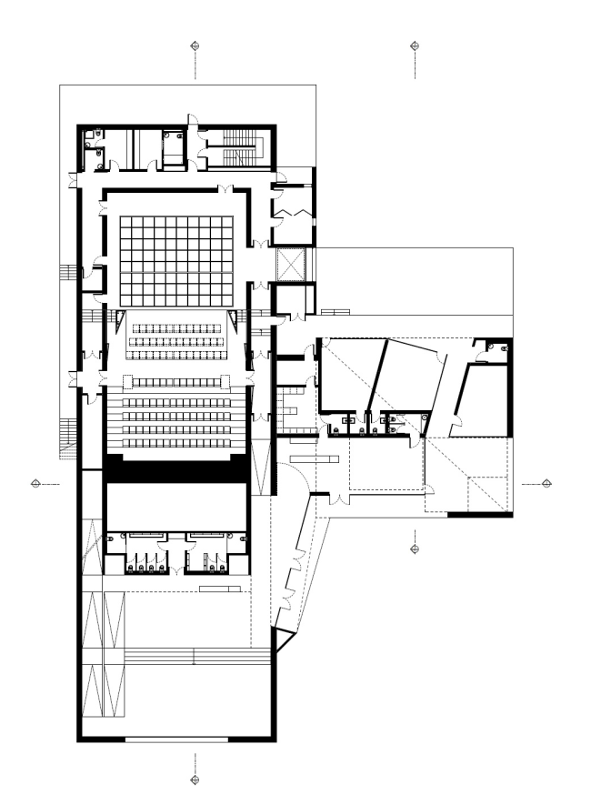
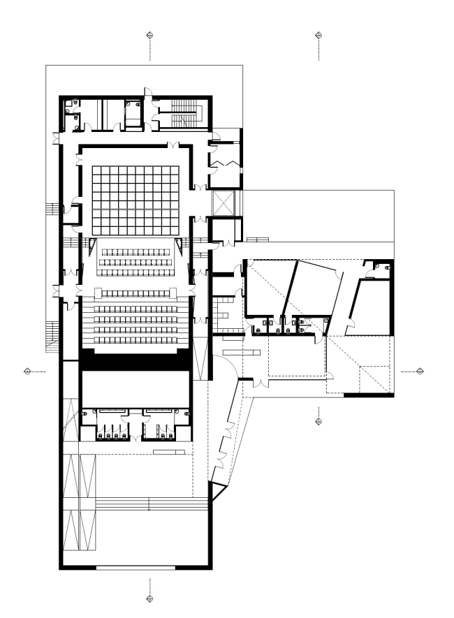
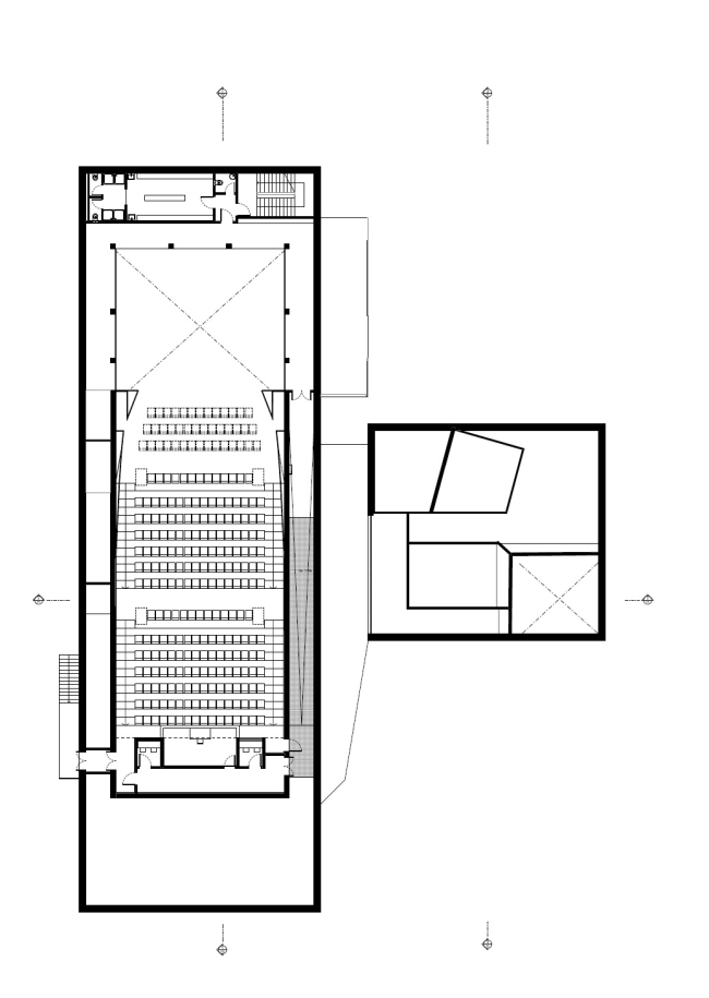
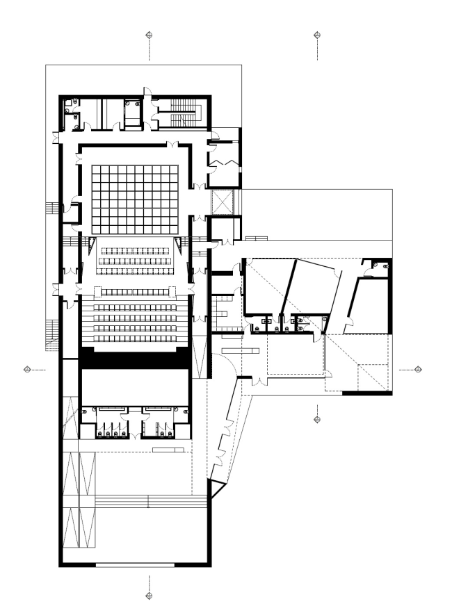
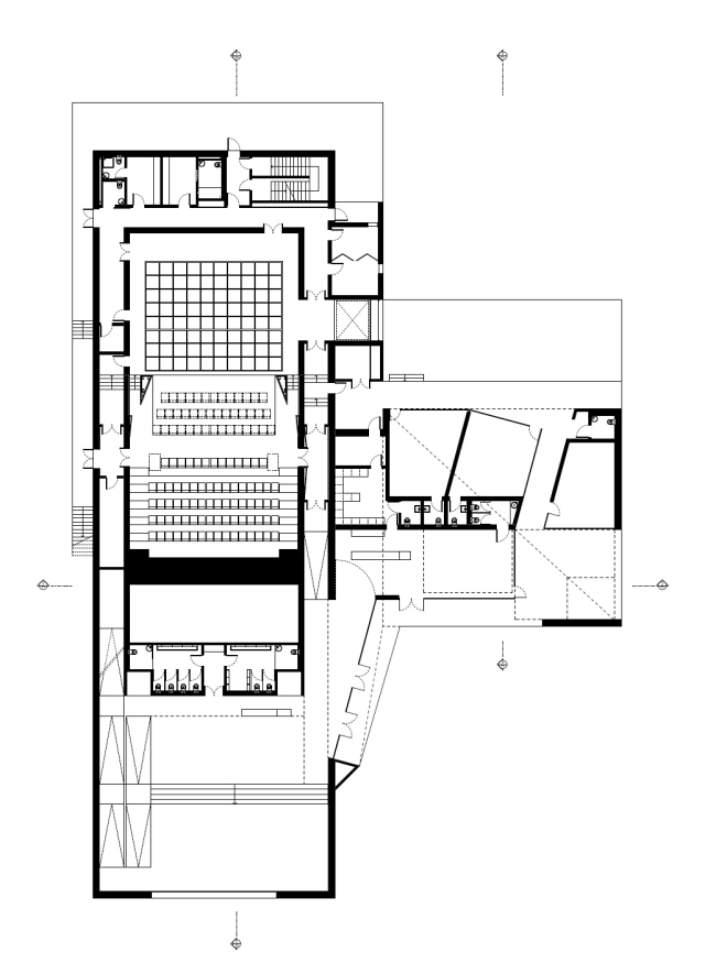
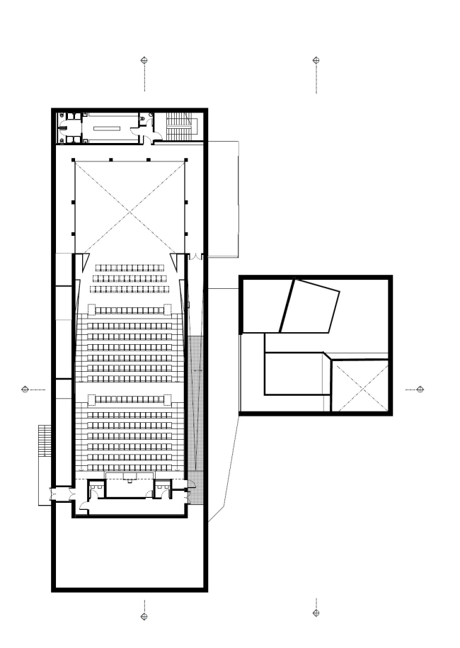
Новый культурный центр расположен в городке Миранда-ду-Корву, входящем в агломерацию Большая Коимбра. Он соединяет в себе зрительный зал и музейную зону, для выставок можно также использовать вестибюль, кроме того, рядом имеется небольшой театр под открытым небом.
Культурный центр «Дом искусств». Фото © João Morgado. Предоставлено FAT – Future Architecture Thinking
Культурный центр «Дом искусств». Фото © João Morgado. Предоставлено FAT – Future Architecture Thinking

«Дом искусств» расположен среди жилой застройки, и, чтобы сделать его как можно более заметным, архитекторы выкрасили его в ярко-красный цвет. Сложный объем здания со множеством «граней» напоминает о горах Лозан, возвышающихся неподалеку: его три части отражают внутреннее устройство: в одной находятся сцена и кулисы, в другой – зрительный зал и вестибюль, в третьей – кафе с террасой и музейная зона.
Культурный центр «Дом искусств». Фото © João Morgado. Предоставлено FAT – Future Architecture Thinking
Культурный центр «Дом искусств». Фото © João Morgado. Предоставлено FAT – Future Architecture Thinking

Парадный вход ведет в вестибюль, но попасть внутрь можно и через кафе: это позволит использовать его отдельно, кроме того, оно может служить альтернативным фойе для театрального зала. Этот зал рассчитан на 300 зрителей, и современная машинерия позволяет использовать его для самых разных мероприятий – от лекций до оперных спектаклей.
Культурный центр «Дом искусств». Фото © João Morgado. Предоставлено FAT – Future Architecture Thinking
Культурный центр «Дом искусств». Фото © João Morgado. Предоставлено FAT – Future Architecture Thinking
Культурный центр «Дом искусств». Фото © João Morgado. Предоставлено FAT – Future Architecture Thinking
Культурный центр «Дом искусств». Фото © João Morgado. Предоставлено FAT – Future Architecture Thinking
Культурный центр «Дом искусств». Фото © João Morgado. Предоставлено FAT – Future Architecture Thinking
Культурный центр «Дом искусств». Фото © João Morgado. Предоставлено FAT – Future Architecture Thinking
Культурный центр «Дом искусств». Фото © João Morgado. Предоставлено FAT – Future Architecture Thinking
Культурный центр «Дом искусств». Фото © João Morgado. Предоставлено FAT – Future Architecture Thinking
Культурный центр «Дом искусств». Фото © João Morgado. Предоставлено FAT – Future Architecture Thinking
Культурный центр «Дом искусств». Фото © João Morgado. Предоставлено FAT – Future Architecture Thinking
Культурный центр «Дом искусств». Фото © João Morgado. Предоставлено FAT – Future Architecture Thinking
Культурный центр «Дом искусств». Фото © João Morgado. Предоставлено FAT – Future Architecture Thinking
Культурный центр «Дом искусств». Фото © João Morgado. Предоставлено FAT – Future Architecture Thinking
Культурный центр «Дом искусств». Фото © João Morgado. Предоставлено FAT – Future Architecture Thinking
Культурный центр «Дом искусств». Фото © João Morgado. Предоставлено FAT – Future Architecture Thinking
Культурный центр «Дом искусств». Фото © João Morgado. Предоставлено FAT – Future Architecture Thinking
Культурный центр «Дом искусств». Фото © João Morgado. Предоставлено FAT – Future Architecture Thinking
Культурный центр «Дом искусств». Фото © João Morgado. Предоставлено FAT – Future Architecture Thinking
Культурный центр «Дом искусств». Фото © João Morgado. Предоставлено FAT – Future Architecture Thinking
Культурный центр «Дом искусств». Фото © João Morgado. Предоставлено FAT – Future Architecture Thinking
Культурный центр «Дом искусств». Фото © João Morgado. Предоставлено FAT – Future Architecture Thinking
Культурный центр «Дом искусств». Фото © João Morgado. Предоставлено FAT – Future Architecture Thinking
Культурный центр «Дом искусств». Фото © João Morgado. Предоставлено FAT – Future Architecture Thinking
Культурный центр «Дом искусств». Фото © João Morgado. Предоставлено FAT – Future Architecture Thinking
Культурный центр «Дом искусств». Фото © João Morgado. Предоставлено FAT – Future Architecture Thinking
Культурный центр «Дом искусств». Фото © João Morgado. Предоставлено FAT – Future Architecture Thinking
Культурный центр «Дом искусств». Фото © João Morgado. Предоставлено FAT – Future Architecture Thinking
Культурный центр «Дом искусств». Фото © João Morgado. Предоставлено FAT – Future Architecture Thinking
Культурный центр «Дом искусств». Фото © João Morgado. Предоставлено FAT – Future Architecture Thinking
Культурный центр «Дом искусств». Фото © João Morgado. Предоставлено FAT – Future Architecture Thinking
Культурный центр «Дом искусств». Фото © João Morgado. Предоставлено FAT – Future Architecture Thinking
Культурный центр «Дом искусств». Фото © João Morgado. Предоставлено FAT – Future Architecture Thinking
Культурный центр «Дом искусств». Фото © João Morgado. Предоставлено FAT – Future Architecture Thinking
Культурный центр «Дом искусств». Фото © João Morgado. Предоставлено FAT – Future Architecture Thinking
Культурный центр «Дом искусств». Предоставлено FAT – Future Architecture Thinking
Культурный центр «Дом искусств». Предоставлено FAT – Future Architecture Thinking
Культурный центр «Дом искусств». Предоставлено FAT – Future Architecture Thinking
Культурный центр «Дом искусств». Предоставлено FAT – Future Architecture Thinking
Культурный центр «Дом искусств». Предоставлено FAT – Future Architecture Thinking
Культурный центр «Дом искусств». Предоставлено FAT – Future Architecture Thinking
Культурный центр «Дом искусств». Предоставлено FAT – Future Architecture Thinking
Культурный центр «Дом искусств». Предоставлено FAT – Future Architecture Thinking
Культурный центр «Дом искусств». Предоставлено FAT – Future Architecture Thinking
Культурный центр «Дом искусств». Предоставлено FAT – Future Architecture Thinking
Культурный центр «Дом искусств». Предоставлено FAT – Future Architecture Thinking
Культурный центр «Дом искусств». Предоставлено FAT – Future Architecture Thinking
Культурный центр «Дом искусств». Предоставлено FAT – Future Architecture Thinking
Культурный центр «Дом искусств». Предоставлено FAT – Future Architecture Thinking
Культурный центр «Дом искусств». Предоставлено FAT – Future Architecture Thinking
Культурный центр «Дом искусств». Предоставлено FAT – Future Architecture Thinking
Культурный центр «Дом искусств». Предоставлено FAT – Future Architecture Thinking
Культурный центр «Дом искусств». Предоставлено FAT – Future Architecture Thinking
Культурный центр «Дом искусств». Предоставлено FAT – Future Architecture Thinking
Культурный центр «Дом искусств». Предоставлено FAT – Future Architecture Thinking
Культурный центр «Дом искусств». Предоставлено FAT – Future Architecture Thinking
Культурный центр «Дом искусств». Предоставлено FAT – Future Architecture Thinking