Размещено на портале Архи.ру (www.archi.ru)

03.10.2013

Лед и зелень

Анна Мартовицкая
Объект:
Многофункциональный комплекс Urban Mountain
Адрес:
Норвегия, None, Осло.
Мастерская:
Schmidt Hammer Lassen

Бюро schmidt hammer lassen и инженеры Transsolar превратят заурядную высотку в центре Осло в эффектный «зеленый» небоскреб.

Многофункциональный комплекс Urban Mountain © schmidt hammer lassen architects
Многофункциональный комплекс Urban Mountain © schmidt hammer lassen architects

Проект получил название «Городская гора» (Urban Mountain): архитекторы предлагают построить объем, похожий на гору не только своей выдающейся высотой, но и большим количеством зелени на фасадах-«склонах». Фактически в самый центр мегаполиса они хотят вживить частичку природы, сделав обновленное здание наглядным пособием по использованию «зеленых» технологий. Гарантом реализуемости этого проекта и выступает Transsolar Energietechnik – немецкие "инженеры по климату", отвечающие за создание в здании оптимальных для человека условий минимально возможными средствами и разрабатывающие различные ресурсоэффективные технологии.

Многофункциональный комплекс Urban Mountain © schmidt hammer lassen architects
Многофункциональный комплекс Urban Mountain © schmidt hammer lassen architects

Проект реконструкции офисного комплекса предусматривает увеличение его площади более чем в полтора раза: с 50 до 79 тыс. м2. Он станет не только самым высоким зданием в Осло, но и первым в норвежской столице небоскребом с естественной вентиляцией. Важно, что почти все стройматериалы, из которых построено существующее здание, будут переработаны и использованы повторно (Cradle to Cradle). В частности, в новом проекте почти полностью используют нынешнюю облицовку фасадов, дополнив ее так называемыми «зелеными легкими» – воздухозаборниками, озелененными с помощью местных растений, которые будут очищать и увлажнять воздух, поступающий в систему вентиляции. 
Многофункциональный комплекс Urban Mountain © schmidt hammer lassen architects
Многофункциональный комплекс Urban Mountain © schmidt hammer lassen architects

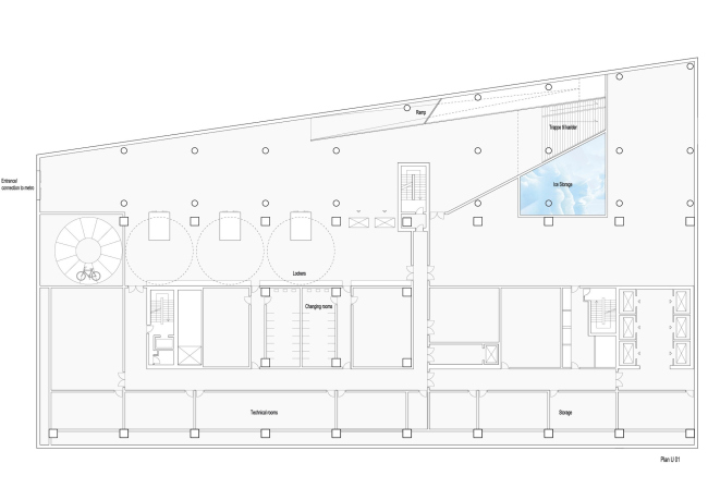
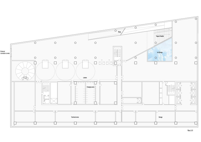
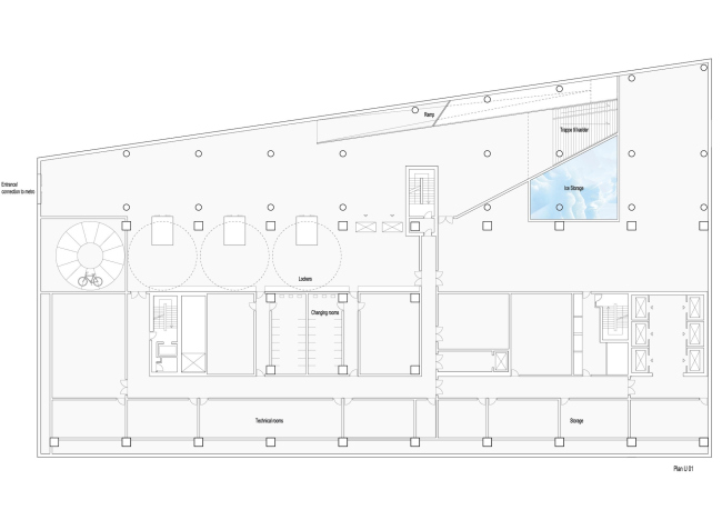
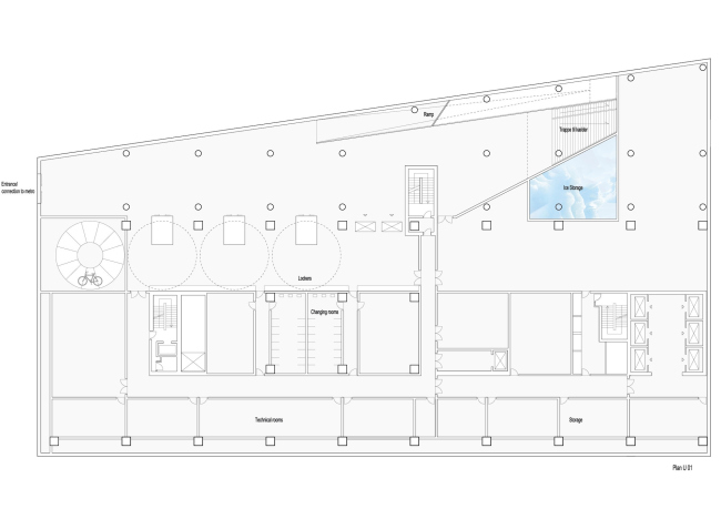
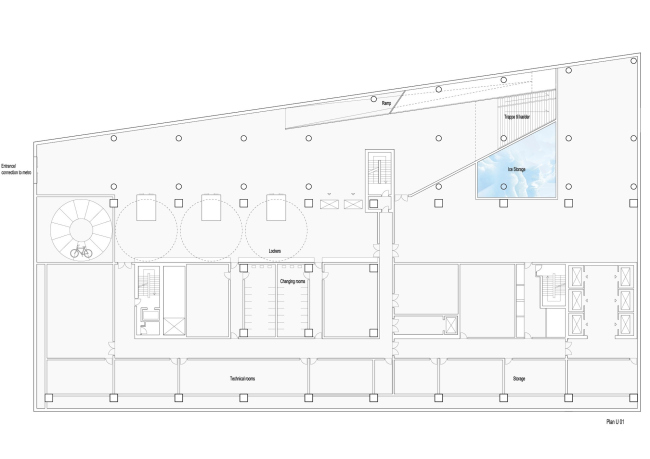
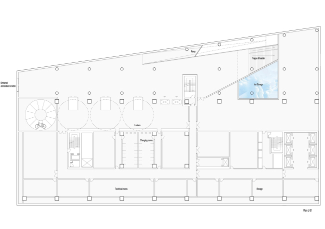
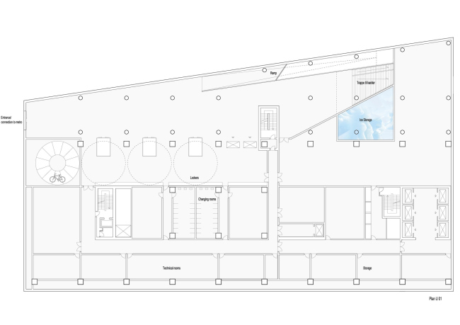
Также в здании планируется применить т. н. солнечные дымоходы, использующие солнечную энергию для создания и усиления естественной вентиляции здания. В основании высотки запроектирован ледник, рассчитанный на 1000 м3 льда, а на ее кровле – зеленая теплица. И если «зеленая корона» небоскреба будет видна издалека и сделает его еще более заметным в панорамах Осло, то гигантский «морозильник», обеспечивающий здание холодным воздухом, станет удобным ориентиром для тех, кто передвигается по норвежской столице на метро: от станции подземки внутреннее пространство хранилища льда будет отделено прозрачной стеной. 
Многофункциональный комплекс Urban Mountain © schmidt hammer lassen architects
Многофункциональный комплекс Urban Mountain © schmidt hammer lassen architects

А для того, чтобы лучше интегрировать здание в городскую ткань, его первый этаж будет полностью отведен под общественные функции. В частности, здесь планируется разместить экомаркет и несколько кафе.
Многофункциональный комплекс Urban Mountain © schmidt hammer lassen architects
Многофункциональный комплекс Urban Mountain © schmidt hammer lassen architects

На этой неделе стало известно, что проект Urban Mountain, который schmidt hammer lassen и Transsolar Energietechnik разработали вместе с целым консорциумом архитекторов, вышел как представитель Норвегии в финал конкурса Nordic Built Challenge, поощряющего самые "устойчивые" проекты Скандинавии. О том, сможет ли он обойти конкурентов из Финляндии, Швеции, Исландии и Дании в борьбе за «золото», станет известно уже 17 октября.

Многофункциональный комплекс Urban Mountain © schmidt hammer lassen architects
Многофункциональный комплекс Urban Mountain © schmidt hammer lassen architects
Многофункциональный комплекс Urban Mountain © schmidt hammer lassen architects
Многофункциональный комплекс Urban Mountain © schmidt hammer lassen architects
Многофункциональный комплекс Urban Mountain © schmidt hammer lassen architects
Многофункциональный комплекс Urban Mountain © schmidt hammer lassen architects
Многофункциональный комплекс Urban Mountain © schmidt hammer lassen architects
Многофункциональный комплекс Urban Mountain © schmidt hammer lassen architects
Многофункциональный комплекс Urban Mountain © schmidt hammer lassen architects
Многофункциональный комплекс Urban Mountain © schmidt hammer lassen architects
Многофункциональный комплекс Urban Mountain © schmidt hammer lassen architects
Многофункциональный комплекс Urban Mountain © schmidt hammer lassen architects
Многофункциональный комплекс Urban Mountain © schmidt hammer lassen architects
Многофункциональный комплекс Urban Mountain © schmidt hammer lassen architects
Многофункциональный комплекс Urban Mountain © schmidt hammer lassen architects
Многофункциональный комплекс Urban Mountain © schmidt hammer lassen architects
Многофункциональный комплекс Urban Mountain © schmidt hammer lassen architects
Многофункциональный комплекс Urban Mountain © schmidt hammer lassen architects
Многофункциональный комплекс Urban Mountain © schmidt hammer lassen architects
Многофункциональный комплекс Urban Mountain © schmidt hammer lassen architects
Многофункциональный комплекс Urban Mountain © schmidt hammer lassen architects
Многофункциональный комплекс Urban Mountain © schmidt hammer lassen architects
Многофункциональный комплекс Urban Mountain © schmidt hammer lassen architects
Многофункциональный комплекс Urban Mountain © schmidt hammer lassen architects
Многофункциональный комплекс Urban Mountain © schmidt hammer lassen architects
Многофункциональный комплекс Urban Mountain © schmidt hammer lassen architects
Многофункциональный комплекс Urban Mountain © schmidt hammer lassen architects
Многофункциональный комплекс Urban Mountain © schmidt hammer lassen architects
Многофункциональный комплекс Urban Mountain © schmidt hammer lassen architects
Многофункциональный комплекс Urban Mountain © schmidt hammer lassen architects
Многофункциональный комплекс Urban Mountain © schmidt hammer lassen architects
Многофункциональный комплекс Urban Mountain © schmidt hammer lassen architects