Размещено на портале Архи.ру (www.archi.ru)

30.09.2013

Искусство вместо пороха

Нина Фролова
Объект:
Галерея «Серпентайн Сэклер»
Адрес:
Великобритания, None, Лондон.

Заха Хадид превратила склад эпохи Наполеоновских войн в художественную галерею.

Галерея «Серпентайн Сэклер» © Luke Hayes
Галерея «Серпентайн Сэклер» © Luke Hayes

Классицистическое здание порохового склада 1805 года находится в лондонском парке Кенсингтон-Гарденс, неподалеку от галереи «Серпентайн». Активная выставочная программа этой институции требует как можно больше места, поэтому, с согласия и при участии управления королевских парков The Royal Parks и объединения English Heritage владельцы «Серпентайн» занялись реконструкцией этого сооружения, поручив проект Хадид и инженерам Arup.
Галерея «Серпентайн Сэклер» © Luke Hayes
Галерея «Серпентайн Сэклер» © Luke Hayes

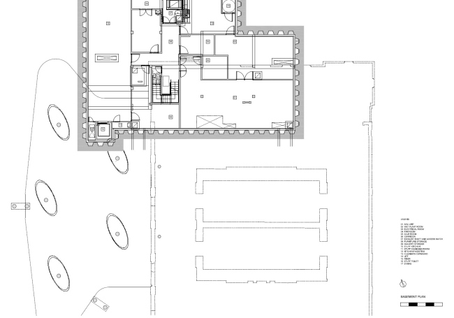
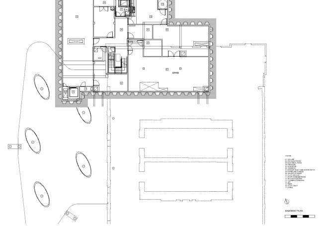
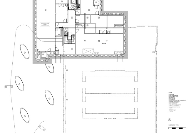
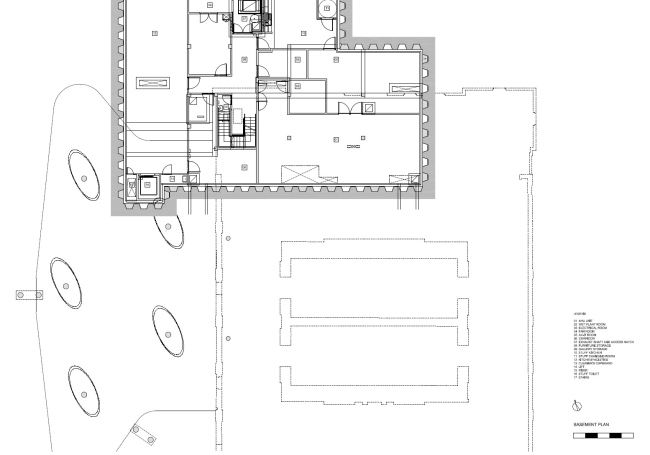
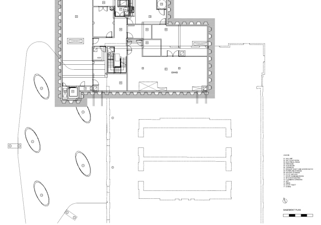
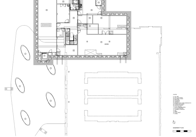
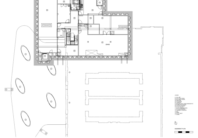
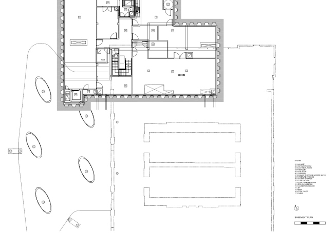
Обновленное здание названо «Галерея Серпентайн Сэклер»; теперь его площадь составляет 1566 м2. Историческая постройка состоит из двух перекрытых цилиндрическими сводами парных помещений для пороха, а также окружающей их по периметру более низкой части, снабженной портиком. При этом дворы между собственно складом и «оградой» ныне перекрыты. Кроме того, все позднейшие внутренние перегородки в интерьере были убраны, а перекрытия снабжены окнами с жалюзи, позволяющие как мягко осветить залы, так и обеспечить там полную темноту.
Галерея «Серпентайн Сэклер» © Luke Hayes
Галерея «Серпентайн Сэклер» © Luke Hayes

Решение интерьера построено на контрасте старых кирпичных стен и новых белых поверхностей, что подчеркивает роль исторического склада как «найденного объекта».
Галерея «Серпентайн Сэклер» © Luke Hayes
Галерея «Серпентайн Сэклер» © Luke Hayes

Кроме выставочных помещений, здание получило с севера пристройку с офисами. Однако главной частью реконструкции стала западная часть, почти самостоятельный павильон, содержащий в себе общественное пространство и кафе. Это мембранное перекрытие покоится на пяти опорах, служащих также «световыми колодцами», доставляющими солнечный свет в интерьер. Также оно опирается на землю, касаясь ее в трех точках. По периметру мембраны проходит краевая балка, по своей сути – ферма.
Галерея «Серпентайн Сэклер» © Luke Hayes
Галерея «Серпентайн Сэклер» © Luke Hayes

Внешняя поверхность мембраны выполнена из ткани из стекловолокна и покрыта тефлоном, а фасады почти полностью состоят из стекла. Внутри столы, скамьи и стулья расставлены согласно диаграмме Вороного.
Галерея «Серпентайн Сэклер» © Luke Hayes
Галерея «Серпентайн Сэклер» © Luke Hayes

Инженеры Arup установили в здании геотермальную систему, одновременно охлаждающую и отапливающую здание – один из первых примеров такого размера в Британии. Кроме того, вода в галерее подогревается солнечными коллекторами. Особую сложность представляла канализация викторианского времени, не рассчитанная на нагрузку ресторана. Поэтому дождевая вода во время сильных ливней попадать туда не будет, для ее стока предусмотрены специальные участки близ здания, так называемые «болотца»: через них она поступит в почву.
Галерея «Серпентайн Сэклер» © Luke Hayes
Галерея «Серпентайн Сэклер» © Luke Hayes
Галерея «Серпентайн Сэклер» © Luke Hayes
Галерея «Серпентайн Сэклер» © Luke Hayes
Галерея «Серпентайн Сэклер» © Luke Hayes
Галерея «Серпентайн Сэклер» © Luke Hayes
Галерея «Серпентайн Сэклер» © Luke Hayes
Галерея «Серпентайн Сэклер» © Luke Hayes
Галерея «Серпентайн Сэклер» © Luke Hayes
Галерея «Серпентайн Сэклер» © Luke Hayes
Галерея «Серпентайн Сэклер» © Luke Hayes
Галерея «Серпентайн Сэклер» © Luke Hayes
Галерея «Серпентайн Сэклер» © Zaha Hadid Architects
Галерея «Серпентайн Сэклер» © Zaha Hadid Architects
Галерея «Серпентайн Сэклер» © Zaha Hadid Architects
Галерея «Серпентайн Сэклер» © Zaha Hadid Architects
Галерея «Серпентайн Сэклер» © Zaha Hadid Architects
Галерея «Серпентайн Сэклер» © Zaha Hadid Architects
Галерея «Серпентайн Сэклер» © Zaha Hadid Architects
Галерея «Серпентайн Сэклер» © Zaha Hadid Architects
Галерея «Серпентайн Сэклер» © Zaha Hadid Architects
Галерея «Серпентайн Сэклер» © Zaha Hadid Architects
Галерея «Серпентайн Сэклер» © Zaha Hadid Architects
Галерея «Серпентайн Сэклер» © Zaha Hadid Architects
Галерея «Серпентайн Сэклер» © Zaha Hadid Architects
Галерея «Серпентайн Сэклер» © Zaha Hadid Architects
Галерея «Серпентайн Сэклер» © Zaha Hadid Architects
Галерея «Серпентайн Сэклер» © Zaha Hadid Architects
Галерея «Серпентайн Сэклер» © Zaha Hadid Architects
Галерея «Серпентайн Сэклер» © Zaha Hadid Architects
Галерея «Серпентайн Сэклер» © Zaha Hadid Architects
Галерея «Серпентайн Сэклер» © Zaha Hadid Architects
Галерея «Серпентайн Сэклер» © Zaha Hadid Architects
Галерея «Серпентайн Сэклер» © Zaha Hadid Architects
Галерея «Серпентайн Сэклер» © Zaha Hadid Architects
Галерея «Серпентайн Сэклер» © Zaha Hadid Architects
Галерея «Серпентайн Сэклер» © Zaha Hadid Architects
Галерея «Серпентайн Сэклер» © Zaha Hadid Architects
Галерея «Серпентайн Сэклер» © Zaha Hadid Architects
Галерея «Серпентайн Сэклер» © Zaha Hadid Architects
Галерея «Серпентайн Сэклер» © Zaha Hadid Architects
Галерея «Серпентайн Сэклер» © Zaha Hadid Architects
Галерея «Серпентайн Сэклер» © Zaha Hadid Architects
Галерея «Серпентайн Сэклер» © Zaha Hadid Architects
Галерея «Серпентайн Сэклер» © Zaha Hadid Architects
Галерея «Серпентайн Сэклер» © Zaha Hadid Architects
Галерея «Серпентайн Сэклер» © Zaha Hadid Architects
Галерея «Серпентайн Сэклер» © Zaha Hadid Architects