Размещено на портале Архи.ру (www.archi.ru)

14.10.2013

Соты с видом на Клязьму

Анна Мартовицкая
Объект:
Дом-соты
Адрес:
Россия, Москва.
Мастерская:
Архитектурная мастерская Тотана Кузембаева
Авторский коллектив:
Тотан Кузембаев, Антон Савельев, Александр Первенцев

На Клязьминском водохранилище архитектор Тотан Кузембаев построит еще один дом – на этот раз в виде прямоугольного портала, в который вписаны жилые соты из стекла и дерева.

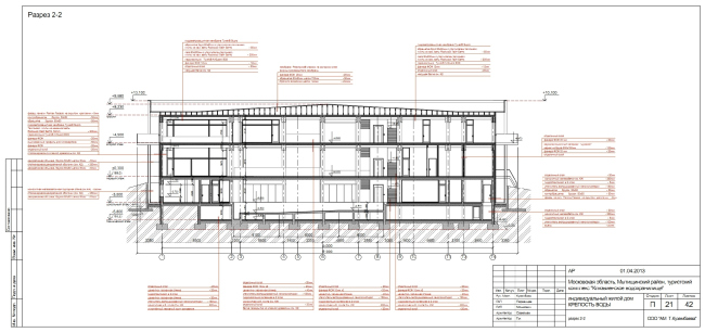
Дом-соты © Архитектурная мастерская Тотана Кузембаева
Дом-соты © Архитектурная мастерская Тотана Кузембаева

Участок, на котором будет построен этот дом, довольно велик, но обладает целым букетом обременений, поэтому, приступая к работе над проектом, архитекторы с самого начала были очень ограничены. В частности, пятно застройки, несмотря на кажущийся простор, было более чем скромным: проходящие по участку водоохранная зона и коммуникации сделали возможным какое-либо строительство лишь на узком прямоугольнике земли. А поскольку заказчик просил построить для него дом площадью более 1500 квадратных метров, конфигурация объема, можно сказать, была заранее предрешена.

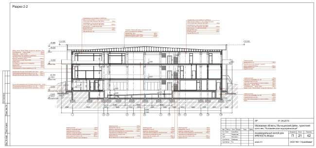
Дом-соты © Архитектурная мастерская Тотана Кузембаева
Дом-соты © Архитектурная мастерская Тотана Кузембаева

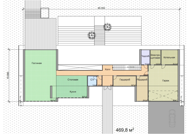
В плане дом представляет собой вытянутый прямоугольник, практически полностью занимающий разрешенное пятно застройки. Как вспоминает сам архитектор, оставь он на этом месте параллелепипед заданных габаритов, это без проблем дало бы заказчику желаемое количество квадратных метров. Но параллелепипед и архитектурный заповедник Пирогово? Или, возьмем шире, параллелепипед и Кузембаев? Подобный союз вряд ли можно представить – для того и заказывают этому архитектору дома, чтобы получить объект гармоничной, но далекой от тривиальности формы и пластики.

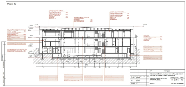
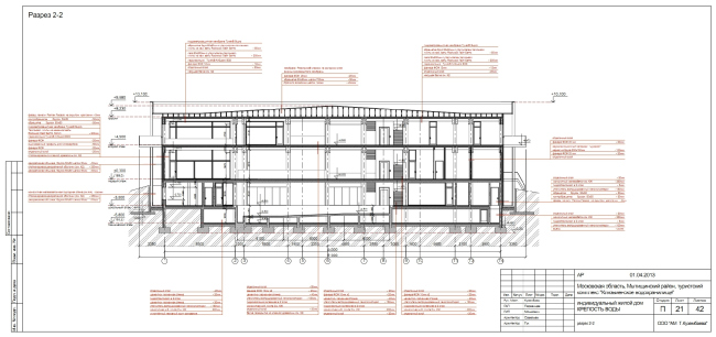
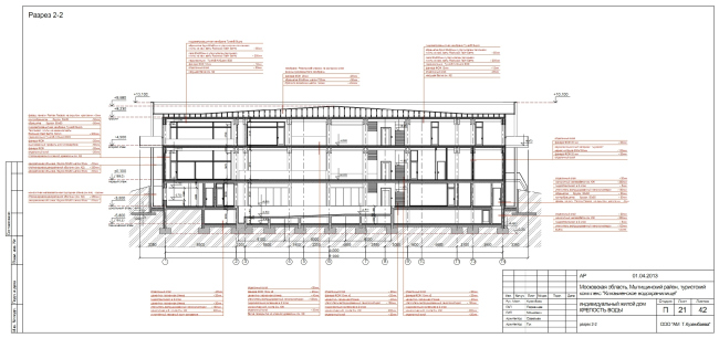
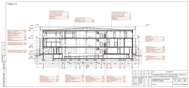
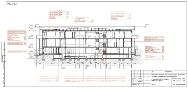
Помимо довольно большой площади, у заказчика было и несколько других требований к будущему дому. В частности, необходимо было максимально развести «взрослую» и «детскую» зоны и сделать весь дом очень светлым. Это заставило архитекторов сделать одним из основных фасадных материалов стекло, а изначальную форму параллелепипеда использовать для создания двух независимых блоков, увязанных в единую систему. Фактически Кузембаев оставляет от параллелепипеда внешнюю оболочку, в которую затем вживляет множество отдельных объемов. Визуально их самостоятельность подчеркнута с помощью развитых консолей – «кубики» отдельных помещений, по три в каждом крыле, сложены с ощутимым сдвигом, – а пространство между блоками выполнено полностью из стекла. От внешней «рамы» они визуально также отделены – вдоль внутренних боковых стенок параллелепипеда архитектор пускает открытые лестницы, одна из которых связывает напрямую гараж и второй этаж дома, а вторая ведет, наоборот, в цоколь.
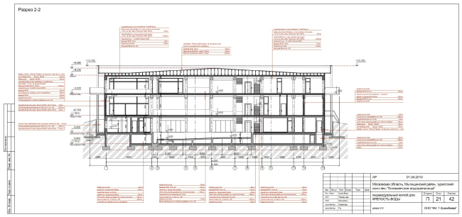
Дом-соты © Архитектурная мастерская Тотана Кузембаева
Дом-соты © Архитектурная мастерская Тотана Кузембаева

От ощущения массивности всей конструкции помогает избавиться и ров, окружающий дом, через который архитектор перебрасывает несколько мостиков разной ширины. Есть у рва и вполне утилитарная роль – он делает доступным с улицы все помещения цокольного этажа, что позволит обслуживающему персоналу попадать в них без захода в дом. От скапливания в нем воды должна помочь разуклонка, а от осадков идущих по нему людей защитит сама кровля дома – верхняя перекладина «рамы» хоть и расположена высоко, но за счет своих габаритов будет служить надежным навесом.
Дом-соты © Архитектурная мастерская Тотана Кузембаева
Дом-соты © Архитектурная мастерская Тотана Кузембаева

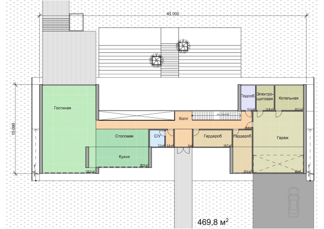
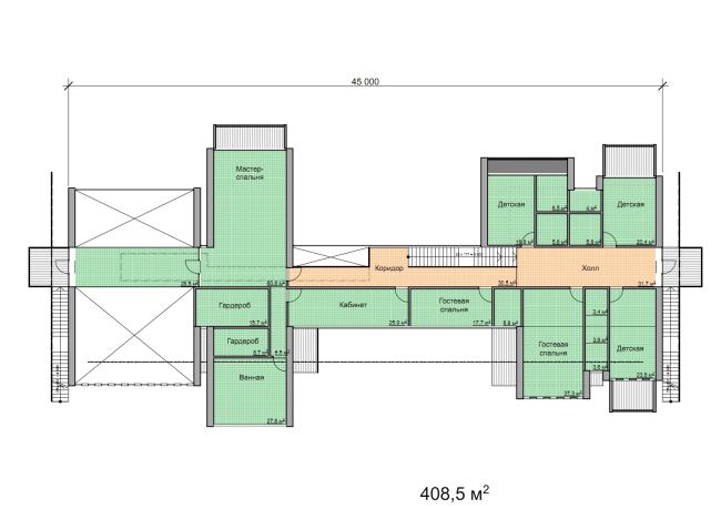
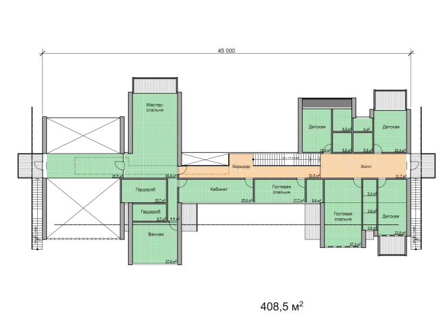
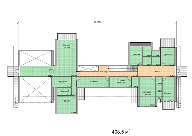
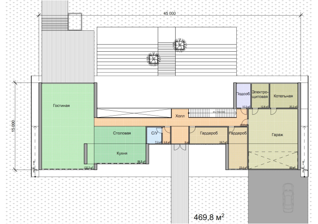
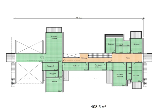
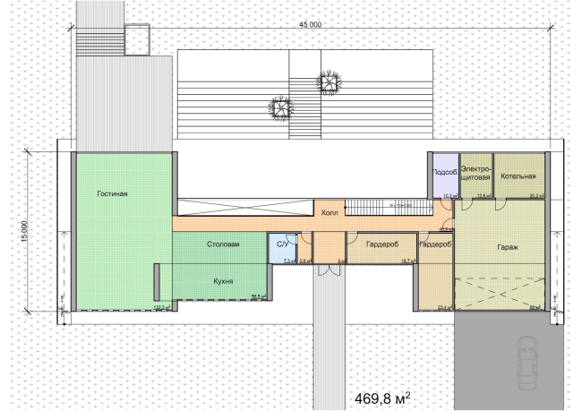
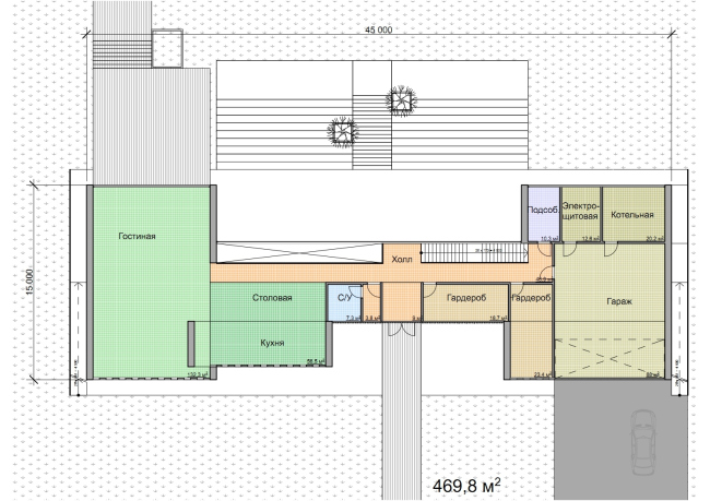
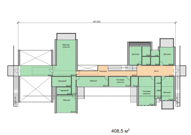
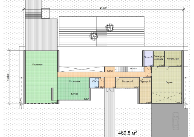
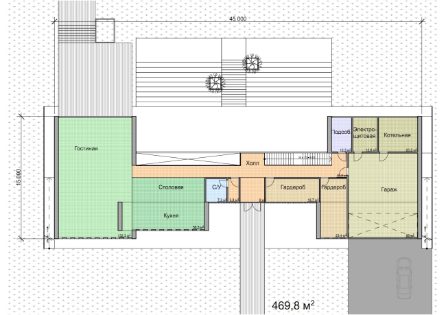
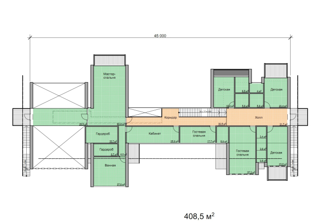
Что касается функциональной схемы дома, то архитектор полностью выполняет пожелание заказчика дать разным поколениям одной семьи максимальную независимость. В левом корпусе на первом этаже расположены двухсветная гостиная и кухня-столовая, на втором – спальня хозяев с гардеробами и ванной комнатой, в правом – гараж на 2 автомобиля и технические помещения, а над ними – комнаты для детей. Объединяющий их стеклянный объем также имеет два этажа плюс цоколь: в цокольном этаже располагается бассейн, на первом этаже – входная зона с атриумом, коридор и гардеробные, на втором – гостевые спальни и кабинеты хозяев.

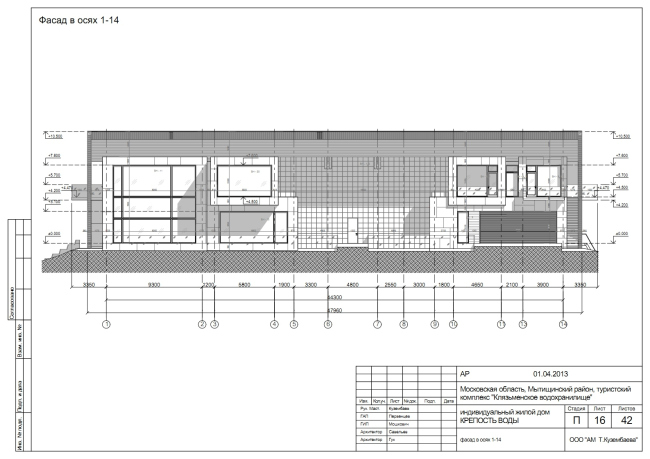
Изначально Кузембаев планировал сделать во всех спальнях панорамное остекление, вставив витраж в каждый из «кубиков», но относительная близость к дороге, к которой дом к тому же обращен анфас, заставили архитектора найти более изощренное решение облицовки главного фасада. Витражи в итоге состоят из чередующихся в шахматном порядке стеклянных и деревянных квадратиков, подхватывая и развивая на микроуровне тему таких же квадратных консолей. А в центральной части, которая полностью остеклена, роль «черных клеточек» выполняют матовые стекла, которые создают, с одной стороны, максимально светлое пространство внутри дома, а с другой, надежно защищают его от взглядов посторонних.
Дом-соты © Архитектурная мастерская Тотана Кузембаева
Дом-соты © Архитектурная мастерская Тотана Кузембаева

С обратной стороны дома, обращенной к водохранилищу, ситуация совсем иная – здесь прозрачные плоскости однозначно доминируют. Заключенные в элегантные деревянные рамы, они отражают окружающий пейзаж, делая дом похожим на галерею постоянно меняющихся картин живой природы. Причем за счет перепада рельефа архитектору с этой стороны удалось полностью открыть цокольный этаж – летом расположенный здесь бассейн превращается в уличный. Укорененный в ландшафте, дом продолжен целой серией открытых террас, ступенями спускающихся к воде, и соединяющих их лестниц без каких-либо ограждений и перил.
Дом-соты © Архитектурная мастерская Тотана Кузембаева
Дом-соты © Архитектурная мастерская Тотана Кузембаева

Надо сказать, что ограждения – тема, этому дому вообще не очень знакомая. Конечно, на балконах второго этажа, на крыльце и надо рвом есть защитные конструкции, но все они выполнены из закаленного стекла, которое архитектор даже ничем не обрамляет. Таким же точно прозрачным кожухом накрыт и павильон для автомобилей – стеклянные поверхности едва различимы на фоне его деревянных решетчатых стен. Вводя в проект такое количество стекла, а также заменяя там, где это возможно, глухие деревянные поверхности на обрешетку, Тотан Кузембаев добивается не только невероятной визуальной легкости этого немаленького дома, но и единства сложносочиненной композиции. Неслучайно сам архитектор называет этот проект «Дом-соты» – собранный из отдельных ячеек, он выглядит цельно и гармонично. 
Дом-соты © Архитектурная мастерская Тотана Кузембаева
Дом-соты © Архитектурная мастерская Тотана Кузембаева
Дом-соты © Архитектурная мастерская Тотана Кузембаева
Дом-соты © Архитектурная мастерская Тотана Кузембаева
Дом-соты © Архитектурная мастерская Тотана Кузембаева
Дом-соты © Архитектурная мастерская Тотана Кузембаева
Дом-соты © Архитектурная мастерская Тотана Кузембаева
Дом-соты © Архитектурная мастерская Тотана Кузембаева
Дом-соты © Архитектурная мастерская Тотана Кузембаева
Дом-соты © Архитектурная мастерская Тотана Кузембаева