Размещено на портале Архи.ру (www.archi.ru)

05.09.2013

Игра масштабов

Анна Мартовицкая
Объект:
Цех подводных лодок – реконструкция
Адрес:
Германия, None, Ганновер.
Мастерская:
Bolles+Wilson

В Ганновере бюро Bolles + Wilson устроило мебельный шоу-рум в бывшем цеху для строительства подводных лодок.

Цех подводных лодок - реконструкция © Olaf Mahlstedt
Цех подводных лодок - реконструкция © Olaf Mahlstedt

Цех по производству субмарин был построен в Ганновере на излете Второй мировой войны и потому в полную силу по своему «профилю» никогда не использовался. Сегодня этот объект вмещает всевозможные магазины и аутлеты. К числу его наиболее крупных арендаторов принадлежат мебельные фабрики RS и Yellow, с которыми Bolles + Wilson сотрудничают уже не в первый раз. В частности, именно это бюро построило штаб-квартиру RS и Yellow, а также флагманский магазин в Мюнстере.

Цех подводных лодок - реконструкция © Olaf Mahlstedt
Цех подводных лодок - реконструкция © Olaf Mahlstedt

В цеху эти производители мебели арендуют часть площадей первого этажа. Перед архитекторами была поставлена задача разграничить зоны шоу-рума и склада, где покупатели могут забрать приобретенные предметы обстановки; также требовалось создать отдельные "кластеры" для демонстрации мебели и сопутствующих товаров домашнего обихода.
Цех подводных лодок - реконструкция © Olaf Mahlstedt
Цех подводных лодок - реконструкция © Olaf Mahlstedt

Все необходимые демонстрационные и складские помещения Bolles + Wilson органично вписали между сохранившимися цеховыми конструкциями – металлическими опорами и крановыми эстакадами, давно покрывшимися ржавчиной. Новые перегородки выкрашены в белый цвет, лестницы обшиты натуральным деревом. Подобная нейтральная палитра не только служит идеальным фоном для продаваемой мебели, но и, контрастируя с оригинальными конструкциями цеха, подчеркивает брутальный характер последних. По мнению архитекторов, масштаб этих элементов как нельзя лучше подходит для экспонирования мебели, так как нивелирует ее габариты: на фоне столь массивного металлокаркаса можно разместить сколь угодно много предметов домашнего интерьера – ощущения загроможденности все равно не возникнет.

Цех подводных лодок - реконструкция © Olaf Mahlstedt
Цех подводных лодок - реконструкция © Olaf Mahlstedt
Цех подводных лодок - реконструкция © Olaf Mahlstedt
Цех подводных лодок - реконструкция © Olaf Mahlstedt
Цех подводных лодок - реконструкция © Olaf Mahlstedt
Цех подводных лодок - реконструкция © Olaf Mahlstedt
Цех подводных лодок - реконструкция © Olaf Mahlstedt
Цех подводных лодок - реконструкция © Olaf Mahlstedt
Цех подводных лодок - реконструкция © Olaf Mahlstedt
Цех подводных лодок - реконструкция © Olaf Mahlstedt
Цех подводных лодок - реконструкция © Olaf Mahlstedt
Цех подводных лодок - реконструкция © Olaf Mahlstedt
Цех подводных лодок - реконструкция © Olaf Mahlstedt
Цех подводных лодок - реконструкция © Olaf Mahlstedt
Цех подводных лодок - реконструкция © Olaf Mahlstedt
Цех подводных лодок - реконструкция © Olaf Mahlstedt
Цех подводных лодок - реконструкция © Olaf Mahlstedt
Цех подводных лодок - реконструкция © Olaf Mahlstedt
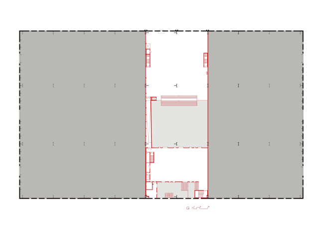
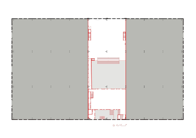
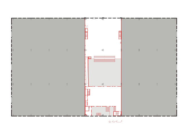
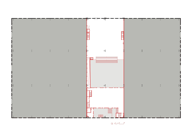
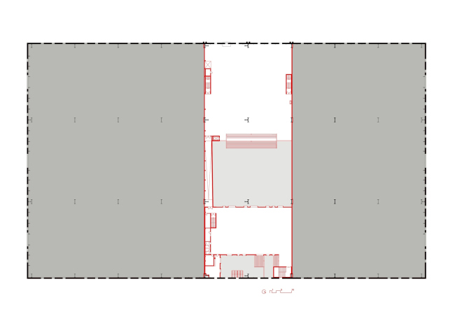
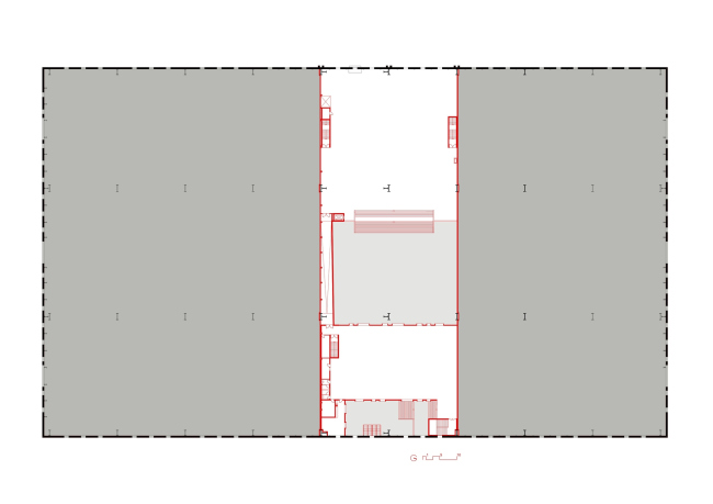
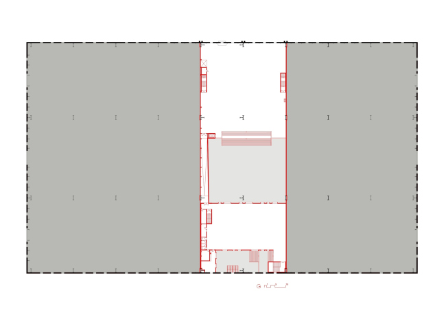
Цех подводных лодок - реконструкция © Bolles + Wilson
Цех подводных лодок - реконструкция © Bolles + Wilson
Цех подводных лодок - реконструкция © Bolles + Wilson
Цех подводных лодок - реконструкция © Bolles + Wilson