Размещено на портале Архи.ру (www.archi.ru)

02.09.2013

Прихожая природы

Тарья Нурми
Объект:
Haltia - Центр финской природы
Адрес:
Финляндия, None, Эспоо. Nuuksiontie 84, 02820 Espoo, Finland
Мастерская:
Lahdelma & Mahlamäki

Близ Хельсинки открылся Центр финской природы Haltia, спроектированный Lahdelma & Mahlamäki.

Haltia - Центр финской природы © Mika Huisman
Haltia - Центр финской природы © Mika Huisman

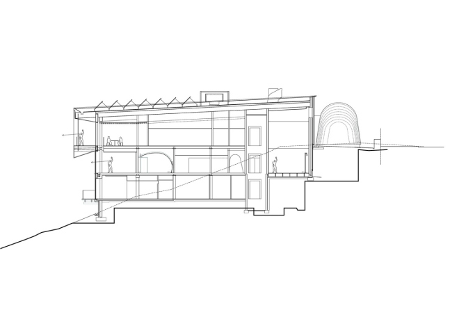
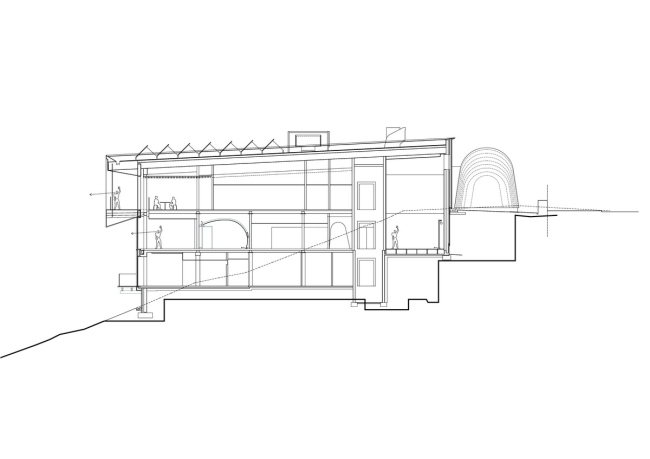
Эспоо, один из трех главных городов, составляющих агломерацию Хельсинки, гордится своим удивительно красивым национальным парком Нууксио с лесами и озерами. Рядом с этим парком и его разветвленной сетью туристических троп и появился новый посетительский центр Haltia. Его здание спроектировано Райнером Махламяки и его бюро Lahdelma & Mahlamäki. По словам архитектора, источником вдохновения для проекта послужил эпос «Калевала», кроме того, очертания постройки намеренно напоминают птицу.
Haltia - Центр финской природы © Mika Huisman
Haltia - Центр финской природы © Mika Huisman

Проектировать и реализовать Haltia оказалось не так просто: одновременно в Варшаве строился другой важный объект Lahdelma & Mahlamäki – Музей истории польских евреев (его открытие запланировано на 2014), и Райнеру Махламяки приходилось постоянно курсировать между Хельсинки, Польшей и городом Оулу, где он преподает на архитектурном факультете местного университета.
Haltia - Центр финской природы © Mika Huisman
Haltia - Центр финской природы © Mika Huisman

Участок, где стоит Haltia, неудобен – это часть крутого склона, спускающегося к озеру. Однако почти к самому зданию подходит асфальтированная дорога, поэтому туда легко добраться на машине или автобусе – а вот «природа» начинается чуть дальше. Я ожидала увидеть более уединенную постройку, где современная повседневность была бы отделена от природной среды, но выбранное решение практично и, вероятно, оптимально подходит для теперешнего посетителя.
Haltia - Центр финской природы © Mika Huisman
Haltia - Центр финской природы © Mika Huisman

На экспозиции представлен не только Нууксио, но и остальные национальные парки Финляндии (в целом их более 30). Из вестибюля посетитель попадает в «Снежное ущелье», где рассказывается о зимней природе и жизни животных в холодное время года. Далее на полу развернута интерактивная карта Финляндии, а также поставлено «утиное яйцо», собранное из более 600 кусочков дерева, причем каждая деталь была вырезана на станке с цифровым управлением. Внутри «яйца» выставлена инсталляция художника Осмо Раухала.
Haltia - Центр финской природы © Leuku Oy/Voitto Niemelä
Haltia - Центр финской природы © Leuku Oy/Voitto Niemelä

Также в Haltia имеются аудитория, кафе, магазин и офисы: большинство этих помещений обращены на озеро, туда же выходят два больших балкона.
Haltia - Центр финской природы © Leuku Oy/Voitto Niemelä
Haltia - Центр финской природы © Leuku Oy/Voitto Niemelä

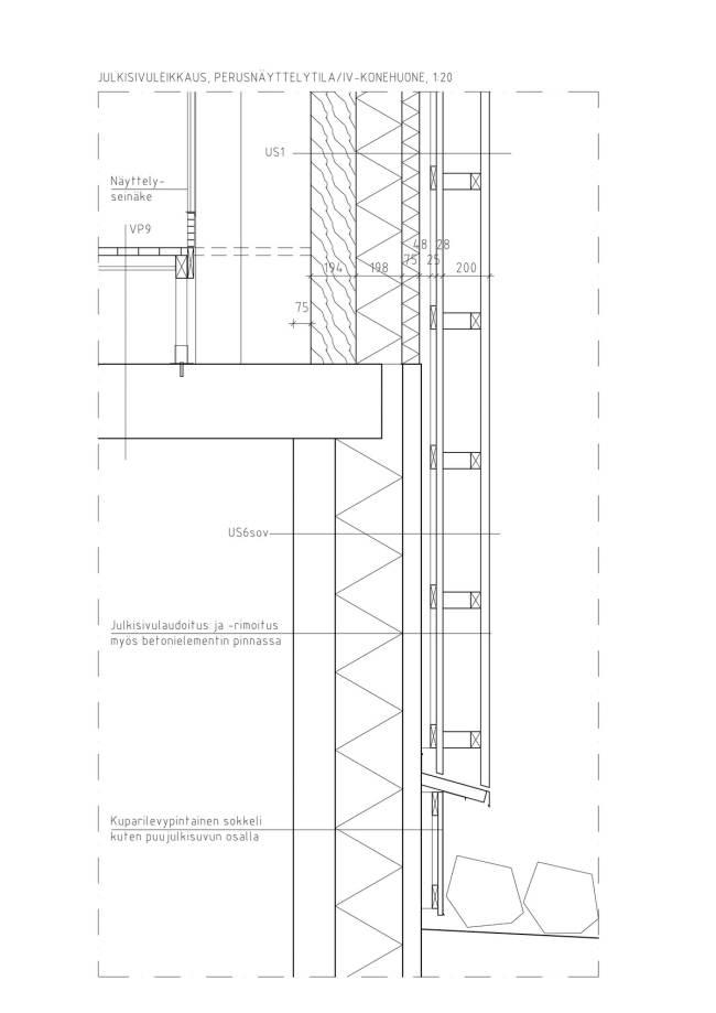
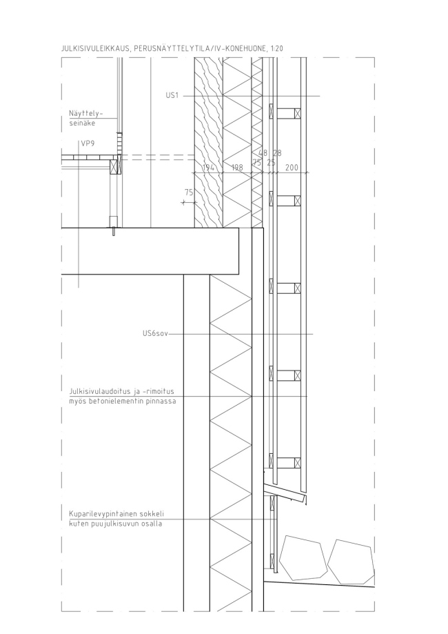
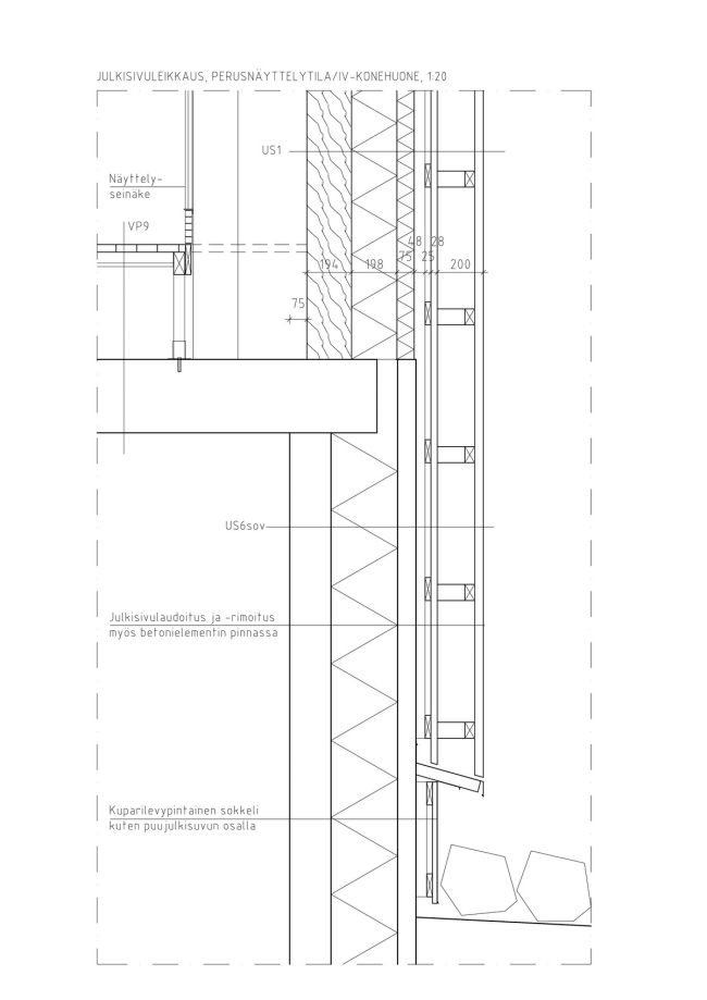
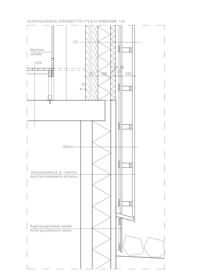
Постройка внутри обшита многослойной фанерой: ее светлый цвет должен напоминать о сердцевине дерева, а рыжие доски фасадов – о его коре.
Haltia - Центр финской природы © Leuku Oy/Voitto Niemelä
Haltia - Центр финской природы © Leuku Oy/Voitto Niemelä

Смотровая башня, «шея» метафорической птицы, позволяет, в первую очередь, разглядеть батареи и солнечные коллекторы на кровле, а вот пейзажами лучше любоваться с балконов. Если на башню получится забраться только сравнительно здоровым посетителям, то все остальные пространства, включая собственно национальный парк, вполне доступны даже людям с ограниченными возможностями. Добраться до Haltia можно на автобусе – как из Хельсинки, так и от железнодорожного вокзала Эспоо.
Haltia - Центр финской природы © Mika Huisman
Haltia - Центр финской природы © Mika Huisman
Haltia - Центр финской природы © Mika Huisman
Haltia - Центр финской природы © Mika Huisman
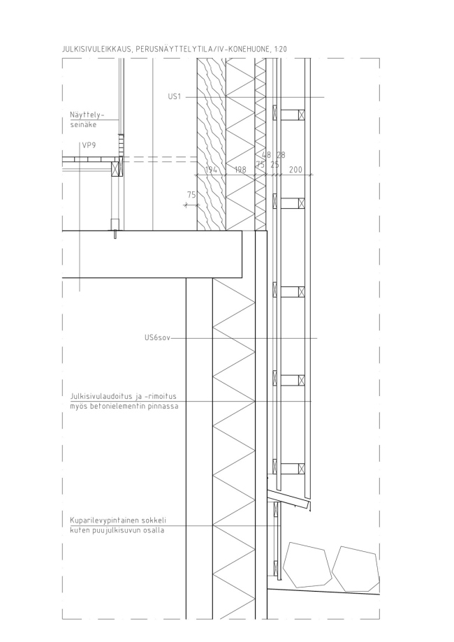
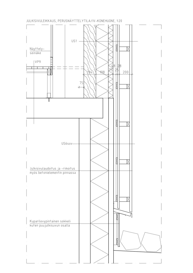
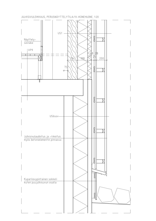
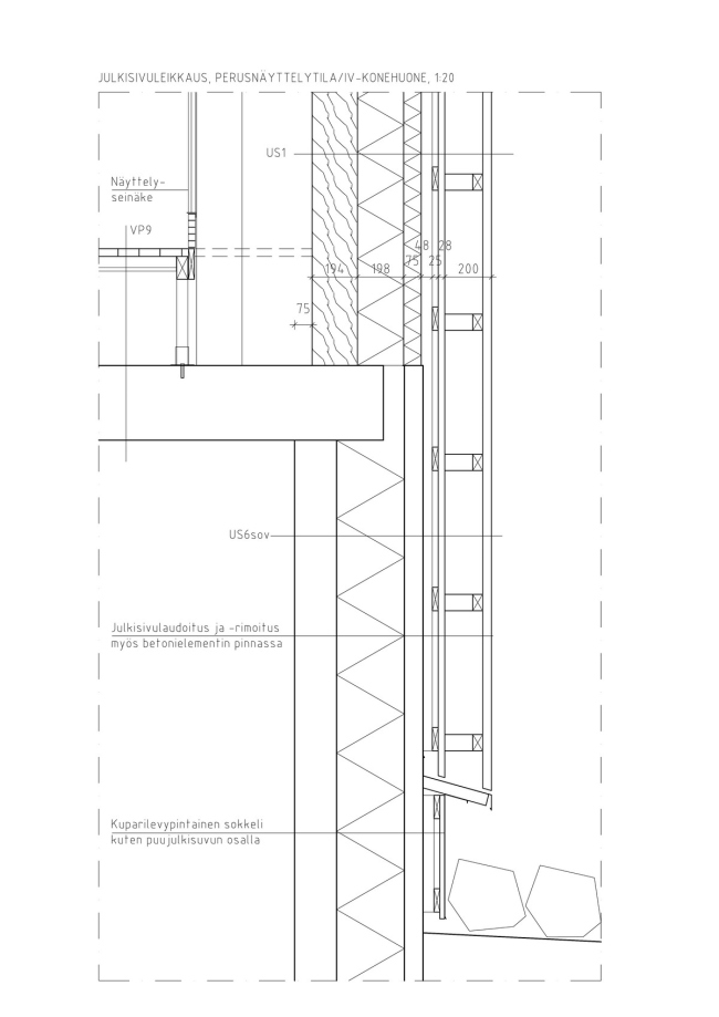
Haltia - Центр финской природы © Architects Lahdelma & Mahlamäki
Haltia - Центр финской природы © Architects Lahdelma & Mahlamäki
Haltia - Центр финской природы © Architects Lahdelma & Mahlamäki
Haltia - Центр финской природы © Architects Lahdelma & Mahlamäki
Haltia - Центр финской природы © Architects Lahdelma & Mahlamäki
Haltia - Центр финской природы © Architects Lahdelma & Mahlamäki
Haltia - Центр финской природы © Architects Lahdelma & Mahlamäki
Haltia - Центр финской природы © Architects Lahdelma & Mahlamäki
Haltia - Центр финской природы © Architects Lahdelma & Mahlamäki
Haltia - Центр финской природы © Architects Lahdelma & Mahlamäki
Haltia - Центр финской природы © Architects Lahdelma & Mahlamäki
Haltia - Центр финской природы © Architects Lahdelma & Mahlamäki
Haltia - Центр финской природы © Architects Lahdelma & Mahlamäki
Haltia - Центр финской природы © Architects Lahdelma & Mahlamäki
Haltia - Центр финской природы © Architects Lahdelma & Mahlamäki
Haltia - Центр финской природы © Architects Lahdelma & Mahlamäki
Haltia - Центр финской природы © Architects Lahdelma & Mahlamäki
Haltia - Центр финской природы © Architects Lahdelma & Mahlamäki
Haltia - Центр финской природы © Architects Lahdelma & Mahlamäki
Haltia - Центр финской природы © Architects Lahdelma & Mahlamäki
Haltia - Центр финской природы © Architects Lahdelma & Mahlamäki
Haltia - Центр финской природы © Architects Lahdelma & Mahlamäki
Haltia - Центр финской природы © Architects Lahdelma & Mahlamäki
Haltia - Центр финской природы © Architects Lahdelma & Mahlamäki
Haltia - Центр финской природы © Architects Lahdelma & Mahlamäki
Haltia - Центр финской природы © Architects Lahdelma & Mahlamäki