Размещено на портале Архи.ру (www.archi.ru)

30.08.2013

Алюминиевые кружева

Нина Фролова
Объект:
Библиотека Бирмингема
Адрес:
Великобритания, None, Бирмингем.
Мастерская:
Mecanoo

В Бирмингеме открылась новая городская библиотека – крупнейшая в Европе.

Библиотека Бирмингема © Christian Richters
Библиотека Бирмингема © Christian Richters
Построенная по проекту бюро Mecanoo, центральная библиотека «второго города Англии» высотой 10 этажей и площадью 35 000 м2 стала крупнейшей общественного библиотекой Европы. Городские власти, потратившие на реализацию проекта 193 млн фунтов, рассчитывают на 10 000 посетителей в день и на 3,5 млн – в год.
Библиотека Бирмингема © Christian Richters
Библиотека Бирмингема © Christian Richters

Здание расположено на Сентенари-сквер, главной площади города, между модернистским драматическим театром (1971) и неоклассическим административным зданием Баскервиль-холл (1940). Чуть поодаль еще стоит предыдущая «инкарнация» бирмингемской библиотеки, постройка в стиле брутализма (1974): власти сочли ее слишком маленькой (на 20% от необходимой площади) и недостаточно «зеленой» и приговорили к сносу, хотя это решение, возможно, определено ее выгодным местоположением: на ее месте появится большой комплекс из офисов и магазинов.
Библиотека Бирмингема © Christian Richters
Библиотека Бирмингема © Christian Richters

Огромная новая библиотека сама по себе – довольно странное явление, потому что даже ее архитектор Франсина Хубен, основательница бюро Mecanoo, признает: совершенно неизвестно, во что трансформируется этот институт через десять лет. Поэтому планировка сделана максимально свободной – на случай изменения функции, кроме того, центр тяжести смещен с «индивидуальных занятий» на «социальное обучение», поэтому в новом здании много общественных зон, упор сделан на групповые занятия, а шум не считается помехой.
Библиотека Бирмингема © Christian Richters
Библиотека Бирмингема © Christian Richters

Фасад здания почти полностью остеклен: лишь верхние этажи, где расположен архив, обшиты золотистым анодированным алюминием. При этом весь объем здания равномерно закрыт «кружевом» из 5357 алюминиевых колец черного и серебристого цветов. Этот неоднозначный декоративный прием вызвал нарекания CABE, Совета по архитектуре и застроенной среде, следящего в Великобритании за качеством реализуемых проектов. Он отказался поддержать работу Mecanoo, но руководители города все равно согласовали проект. Их упорство объясняется политическими причинами: в 2000-е из-за перехода власти в Бирмингеме от лейбористов к коалиции консерваторов и либеральных демократов был отменен предыдущий проект библиотеки – Ричарда Роджерса, и чиновники, опасаясь повторения ситуации, торопились утвердить план Mecanoo до очередных выборов.   
Библиотека Бирмингема © Christian Richters
Библиотека Бирмингема © Christian Richters

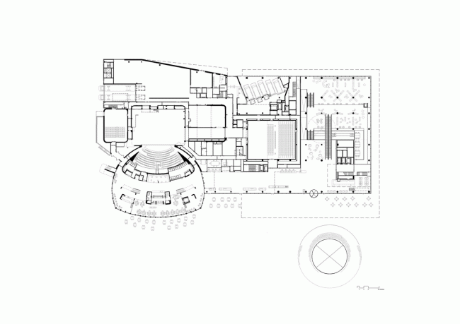
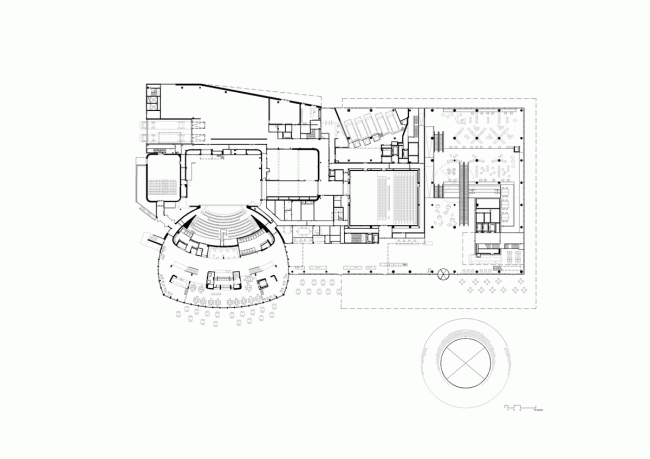
Перед зданием устроен заглубленный амфитеатр: там будут проходить спектакли и публичные чтения; оттуда можно попасть в подземный ярус библиотеки, где расположен отдел детской книги. Главный вход защищает от дождя и солнца консольный вынос 2 и 3 ярусов. Внутри 40% от имеющихся 800 000 томов расставлены в открытом доступе на этажах-«террасах». Эти «террасы» пронизаны серией атриумов-«ротонд», в которых расположены эскалаторы и лестницы.
Библиотека Бирмингема © Christian Richters
Библиотека Бирмингема © Christian Richters

На эксплуатируемой кровле библиотеки устроен сад, а самый верхний ярус, маленькую «ротонду», занимает «Мемориальная Шекспировская комната» – подлинный читальный зал из городской библиотеки викторианской эпохи, снесенной ради строительства бруталистского книгохранилища 1974 года.
Библиотека Бирмингема © Christian Richters
Библиотека Бирмингема © Christian Richters

Библиотечными функциями назначение здания Mecanoo не исчерпывается: оно связано общим фойе с соседним театром, также для совместного использования предназначен его новый зрительный зал-«студия». Кроме того, в ходе строительства библиотеки была полностью обновлена техническая часть театрального здания – также по проекту Mecanoo.
Библиотека Бирмингема © Christian Richters
Библиотека Бирмингема © Christian Richters
Библиотека Бирмингема © Christian Richters
Библиотека Бирмингема © Christian Richters
Библиотека Бирмингема © Christian Richters
Библиотека Бирмингема © Christian Richters
Библиотека Бирмингема © Christian Richters
Библиотека Бирмингема © Christian Richters
Библиотека Бирмингема © Christian Richters
Библиотека Бирмингема © Christian Richters
Библиотека Бирмингема © Christian Richters
Библиотека Бирмингема © Christian Richters
Библиотека Бирмингема © Christian Richters
Библиотека Бирмингема © Christian Richters
Библиотека Бирмингема © Mecanoo
Библиотека Бирмингема © Mecanoo
Библиотека Бирмингема © Mecanoo
Библиотека Бирмингема © Mecanoo
Библиотека Бирмингема © Mecanoo
Библиотека Бирмингема © Mecanoo
Библиотека Бирмингема © Mecanoo
Библиотека Бирмингема © Mecanoo
Библиотека Бирмингема © Mecanoo
Библиотека Бирмингема © Mecanoo
Библиотека Бирмингема © Mecanoo
Библиотека Бирмингема © Mecanoo
Библиотека Бирмингема © Mecanoo
Библиотека Бирмингема © Mecanoo
Библиотека Бирмингема © Mecanoo
Библиотека Бирмингема © Mecanoo
Библиотека Бирмингема © Mecanoo
Библиотека Бирмингема © Mecanoo