Размещено на портале Архи.ру (www.archi.ru)

30.08.2013

С ароматом прибоя

Анна Мартовицкая
Объект:
Дом из морских водорослей
Адрес:
Дания, None,
Мастерская:
Vandkunsten

На датском острове Лесё по проекту бюро Vandkunsten возведен коттедж, для которого в качестве основного отделочного материала использованы морские водоросли.


Дом из морских водорослей © Helene Høyer Mikkelsen / Realdania Byg
Дом из морских водорослей © Helene Høyer Mikkelsen / Realdania Byg

Традиция покрывать жилье высушенными морскими водорослями существует на Лесё более 150 лет: остров всегда испытывал недостаток в древесине, тогда как водоросли на его пляжах не переводились никогда. Еще век назад на Лесё существовало, как минимум, несколько сотен домов, построенных с применением водорослей, однако сегодня таких сооружений – не более 20. Несколько лет назад на это обратила внимание некоммерческая организация Realdania Byg, начавшая масштабный проект по сохранению уникальных построек и возрождению технологии использования водорослей в частном строительстве. Одним из первых объектов, реализованных в рамках этой программы и стал загородный дом на две семьи, проект которого Realdania Byg заказала архитектурному бюро Vandkunsten.
Дом из морских водорослей © Helene Høyer Mikkelsen / Realdania Byg
Дом из морских водорослей © Helene Høyer Mikkelsen / Realdania Byg

Каркас дома, общая площадь которого составляет 100 м2, выполнен из натурального дерева, а полы, стены и кровля собраны из изготовленных заводским способом деревянных модулей-кассет. Изнутри эти кассеты заполнены высушенными морскими водорослями – материалом, который обладает прекрасными тепло- и звукоизоляционными свойствами, абсолютно нетоксичен, а также не боится огня, паразитов и гниения. Активно используются водоросли и в качестве облицовочного материала: именно ими отделаны фасады и высокая двухскатная кровля. Для того, чтобы придать им более выразительную фактуру, архитекторы собирают водоросли в сетчатые мешки узкой продолговатой формы и получившиеся таким образом «валики» затем закрепляют горизонтально на деревянных поверхностях.
Дом из морских водорослей © Helene Høyer Mikkelsen / Realdania Byg
Дом из морских водорослей © Helene Høyer Mikkelsen / Realdania Byg

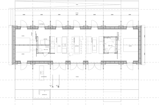
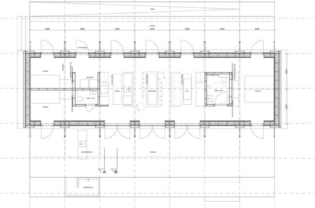
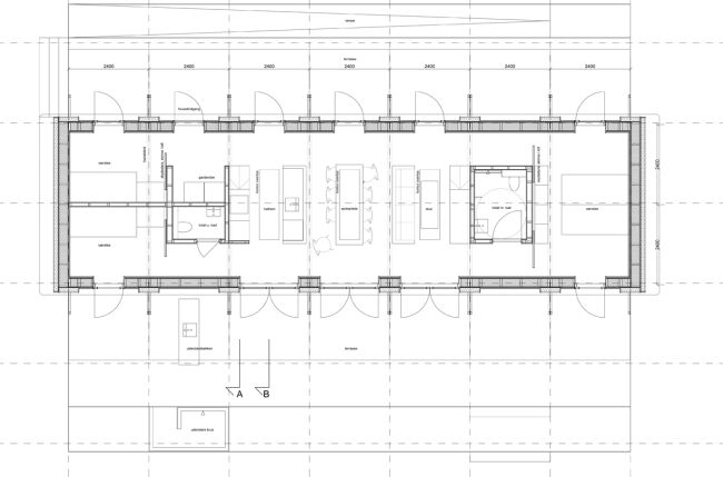
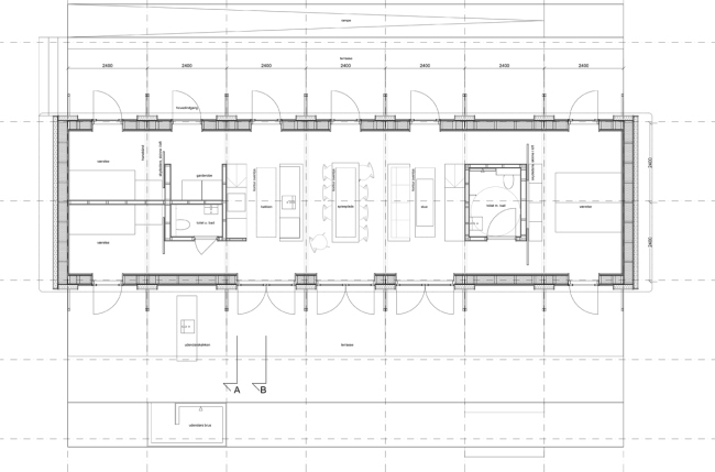
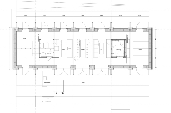
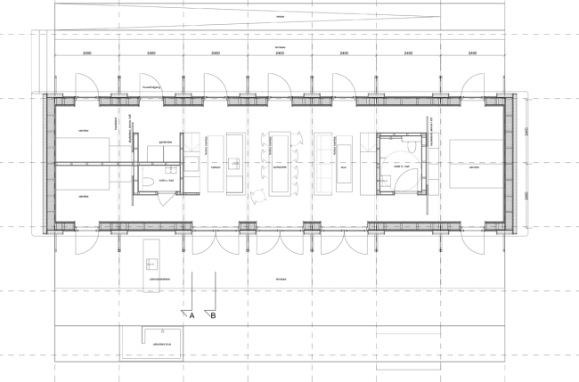
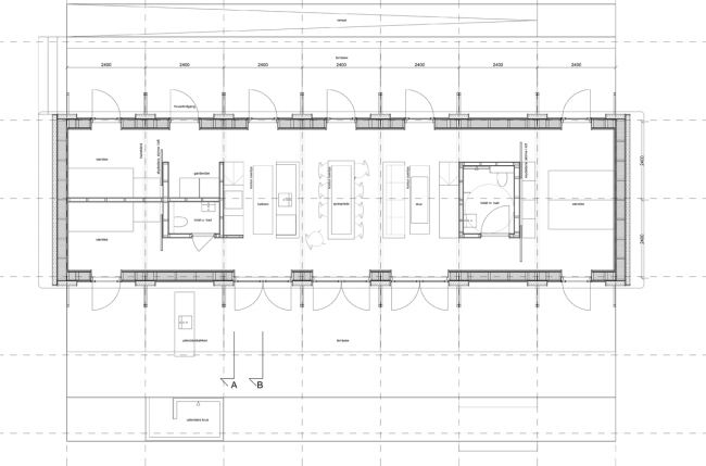
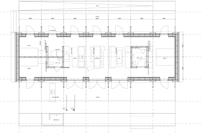
В роли центрального ядра здесь выступает общая для обеих квартир «семейная комната» с кухней, которую фланкируют стояки с коммуникациями и санузлами. За ними, в противоположных концах дома, расположено по комнате на семью, которую можно при желании разделить на две части. Дополнительные спальные места могут быть организованы на антресольном этаже.
Дом из морских водорослей © Helene Høyer Mikkelsen / Realdania Byg
Дом из морских водорослей © Helene Høyer Mikkelsen / Realdania Byg

Дом из водорослей по праву может называться «зеленым» благодаря не только экологичным материалам, из которых построен, но и примененным в нем инженерным системам. В частности, здесь используется вентиляция с рекуперацией тепла, а отапливается дом с помощью высокоэффективных тепловых насосов, расположенных в небольшом подсобном сарае по соседству, в котором жильцы также могут разместить прачечную или хранить велосипеды.  
Дом из морских водорослей © Helene Høyer Mikkelsen / Realdania Byg
Дом из морских водорослей © Helene Høyer Mikkelsen / Realdania Byg
Дом из морских водорослей © Helene Høyer Mikkelsen / Realdania Byg
Дом из морских водорослей © Helene Høyer Mikkelsen / Realdania Byg
Дом из морских водорослей © Helene Høyer Mikkelsen / Realdania Byg
Дом из морских водорослей © Helene Høyer Mikkelsen / Realdania Byg
Дом из морских водорослей © Helene Høyer Mikkelsen / Realdania Byg
Дом из морских водорослей © Helene Høyer Mikkelsen / Realdania Byg
Дом из морских водорослей © Helene Høyer Mikkelsen / Realdania Byg
Дом из морских водорослей © Helene Høyer Mikkelsen / Realdania Byg
Дом из морских водорослей © Helene Høyer Mikkelsen / Realdania Byg
Дом из морских водорослей © Helene Høyer Mikkelsen / Realdania Byg
Дом из морских водорослей © Tegnestuen Vandkunsten
Дом из морских водорослей © Tegnestuen Vandkunsten
Дом из морских водорослей © Tegnestuen Vandkunsten
Дом из морских водорослей © Tegnestuen Vandkunsten
Дом из морских водорослей © Tegnestuen Vandkunsten
Дом из морских водорослей © Tegnestuen Vandkunsten
Дом из морских водорослей © Tegnestuen Vandkunsten
Дом из морских водорослей © Tegnestuen Vandkunsten