Размещено на портале Архи.ру (www.archi.ru)

23.08.2013

Подземный символ демократии

Анна Мартовицкая
Объект:
Посетительский и пресс-центр парламента (ландтага) земли Баден-Вюртемберг
Адрес:
Германия, None, Штутгарт.
Мастерская:
Henning Larsen Architects

Бюро Henning Larsen Architects выиграло конкурс на проект здания Гражданского центра и пресс-центра ландтага земли Баден-Вюртемберг.

Новый центр будет построен в знаменитом Дворцовом парке Штутгарта, столицы федеральной земли Баден-Вюртемберг, рядом со зданием ландтага (земельного парламента). Проектируя сооружение на территории памятника садово-паркового искусства и в непосредственной близости от памятника архитектуры (ландтаг– яркий образец немецкого модернизма, не так давно наделенный статусом охраняемого объекта), архитекторы смогли найти максимально щадящее решение.

Посетительский и пресс-центр парламента (ландтага) земли Баден-Вюртемберг
Посетительский и пресс-центр парламента (ландтага) земли Баден-Вюртемберг
© Henning Larsen Architects

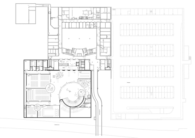
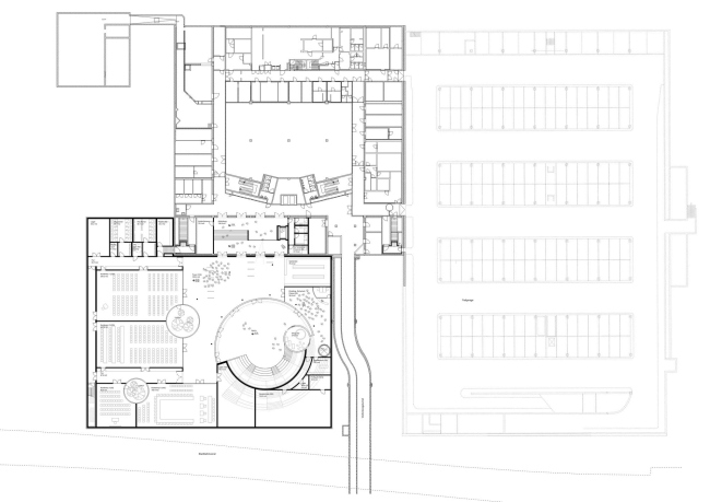
Новому центру, рассчитанному на 65 тысяч посетителей в год, Henning Larsen Architects придали форму амфитеатра, который заглубили в землю. Вокруг открытой площади, спроектированной по образу и подобию древнегреческой агоры, расположены вестибюль, несколько конференц-залов и один выставочный. К площади все эти помещения обращены полностью остекленными стенами, а еще более светлыми их делают специальные световые фонари цилиндрической формы.
Посетительский и пресс-центр парламента (ландтага) земли Баден-Вюртемберг
Посетительский и пресс-центр парламента (ландтага) земли Баден-Вюртемберг
© Henning Larsen Architects

Из парка на площадь ведут широкие каменные ступени. По замыслу архитекторов, подобное композиционное решение не только позволяет сделать новый объем органичной частью ландшафта, но и символизирует демократизм деятельности парламента: площадь как нельзя лучше подходит для проведения митингов, дебатов, встреч с избирателями.
Посетительский и пресс-центр парламента (ландтага) земли Баден-Вюртемберг
Посетительский и пресс-центр парламента (ландтага) земли Баден-Вюртемберг
© Henning Larsen Architects

Подземная часть проектируемого здания вплотную примыкает к зданию ландтага, однако Henning Larsen Architects в своей концепции предусмотрели возможность полной изоляции двух этих объектов друг от друга. В частности, это позволит проводить в новом центре мероприятия самого широкого профиля, в том числе в вечерние часы, без оглядки на расписание политиков.
Посетительский и пресс-центр парламента (ландтага) земли Баден-Вюртемберг
Посетительский и пресс-центр парламента (ландтага) земли Баден-Вюртемберг
© Henning Larsen Architects
Посетительский и пресс-центр парламента (ландтага) земли Баден-Вюртемберг
Посетительский и пресс-центр парламента (ландтага) земли Баден-Вюртемберг
© Henning Larsen Architects
Посетительский и пресс-центр парламента (ландтага) земли Баден-Вюртемберг
Посетительский и пресс-центр парламента (ландтага) земли Баден-Вюртемберг
© Henning Larsen Architects
Посетительский и пресс-центр парламента (ландтага) земли Баден-Вюртемберг
Посетительский и пресс-центр парламента (ландтага) земли Баден-Вюртемберг
© Henning Larsen Architects
Посетительский и пресс-центр парламента (ландтага) земли Баден-Вюртемберг
Посетительский и пресс-центр парламента (ландтага) земли Баден-Вюртемберг
© Henning Larsen Architects