Размещено на портале Архи.ру (www.archi.ru)

19.08.2013

В цветах аниме

Нина Фролова
Объект:
Комплекс Mirai House
Адрес:
Нидерланды, None, Лейден.
Мастерская:
UNS – United Network Studio

Бюро UNStudio построило корпус лабораторий и офисов компании Astellas в Лейдене.

Комплекс Mirai House. Предоставлено UNStudio
Комплекс Mirai House. Предоставлено UNStudio

Лейден – главный в Нидерландах центр биомедицинских исследований, поэтому решение японского фармацевтического концерна Astellas базироваться именно там – более чем понятно.
Комплекс Mirai House. Предоставлено UNStudio
Комплекс Mirai House. Предоставлено UNStudio

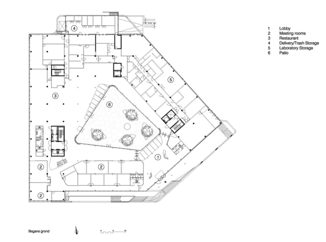
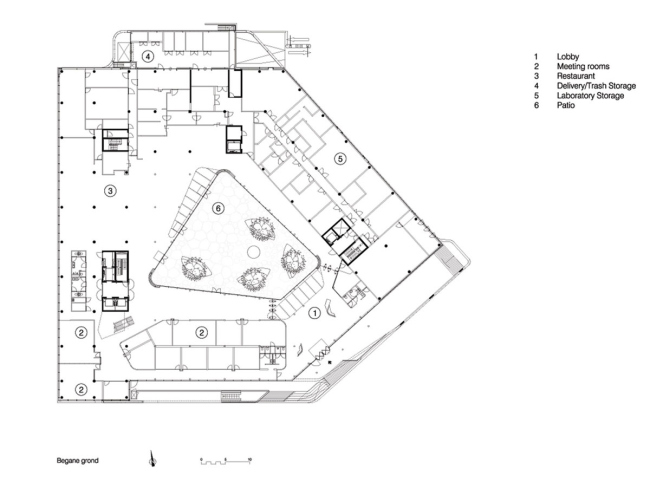
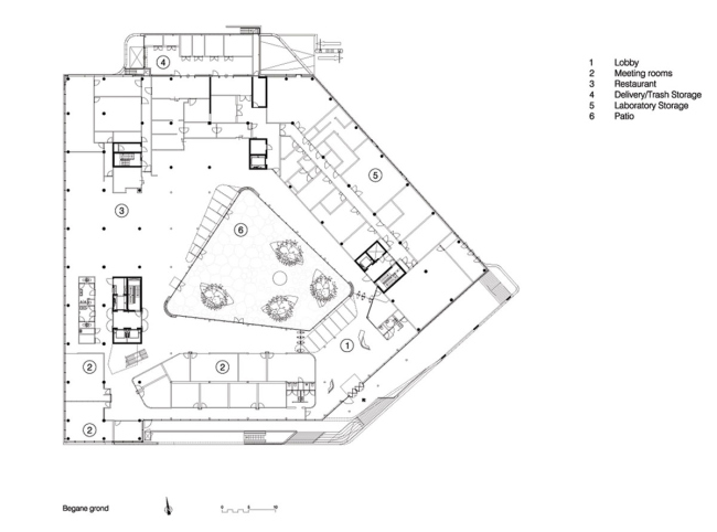
Здание Mirai House расположено в научном парке, рядом с корпусами Лейденского университета. Высокотехнологичные научные исследования требуют особого режима безопасности, но архитекторы не пошли по пути превращения постройки в крепость. Напротив, остекление фасадов и визуальные связи разных зон внутри здания создают атмосферу открытости.
Комплекс Mirai House. Предоставлено UNStudio
Комплекс Mirai House. Предоставлено UNStudio

В то же время, большинство посетителей могут попасть только в корпус вестибюля, обращенный на юго-восток. Он решен как просторный гостиничный холл, откуда открываются виды как на улицу, так и в сад во внутреннем дворе, спланированный в японском духе. Также там имеются переговорные.
Комплекс Mirai House. Предоставлено UNStudio
Комплекс Mirai House. Предоставлено UNStudio

К западу от двора расположен 6-этажный корпус с офисами (11 200 м2), где на первом этаже – кафе с террасой, к востоку – 4 этажа лабораторий (5 500 м2). Гибкая планировка позволила сделать 89–90% общей площади полезной.
Комплекс Mirai House. Предоставлено UNStudio
Комплекс Mirai House. Предоставлено UNStudio

Остекленные фасады снабжены алюминиевыми ламелями, окрашенными в «контрастные цвета аниме». С северной стороны они достигают ширины всего 4 см, зато на остальных фасадах это 20–30-сантиметровые полосы, сочетающиеся с 90-сантиметровыми парапетами. Кроме того, стеклянные панели покрыты составом, снижающим их теплопроводность.
Комплекс Mirai House. Предоставлено UNStudio
Комплекс Mirai House. Предоставлено UNStudio
Комплекс Mirai House. Предоставлено UNStudio
Комплекс Mirai House. Предоставлено UNStudio
Комплекс Mirai House. Предоставлено UNStudio
Комплекс Mirai House. Предоставлено UNStudio
Комплекс Mirai House. Предоставлено UNStudio
Комплекс Mirai House. Предоставлено UNStudio
Комплекс Mirai House. Предоставлено UNStudio
Комплекс Mirai House. Предоставлено UNStudio
Комплекс Mirai House. Предоставлено UNStudio
Комплекс Mirai House. Предоставлено UNStudio
Комплекс Mirai House. Предоставлено UNStudio
Комплекс Mirai House. Предоставлено UNStudio
Комплекс Mirai House. Предоставлено UNStudio
Комплекс Mirai House. Предоставлено UNStudio
Комплекс Mirai House. Предоставлено UNStudio
Комплекс Mirai House. Предоставлено UNStudio
Комплекс Mirai House. Предоставлено UNStudio
Комплекс Mirai House. Предоставлено UNStudio
Комплекс Mirai House. Предоставлено UNStudio
Комплекс Mirai House. Предоставлено UNStudio
Комплекс Mirai House. Предоставлено UNStudio
Комплекс Mirai House. Предоставлено UNStudio
Комплекс Mirai House. Предоставлено UNStudio
Комплекс Mirai House. Предоставлено UNStudio
Комплекс Mirai House. Предоставлено UNStudio
Комплекс Mirai House. Предоставлено UNStudio