Размещено на портале Архи.ру (www.archi.ru)

13.08.2013

Корабль на берегу

Нина Фролова
Объект:
Культурный центр в Виана-ду-Каштелу
Адрес:
Португалия, None, Виана-ду-Каштелу.

Эдуарду Соуту де Моура построил культурный центр на севере Португалии.

Культурный центр в Виана-ду-Каштелу © Joao Morgado
Культурный центр в Виана-ду-Каштелу © Joao Morgado

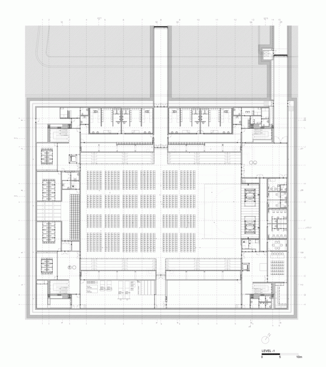
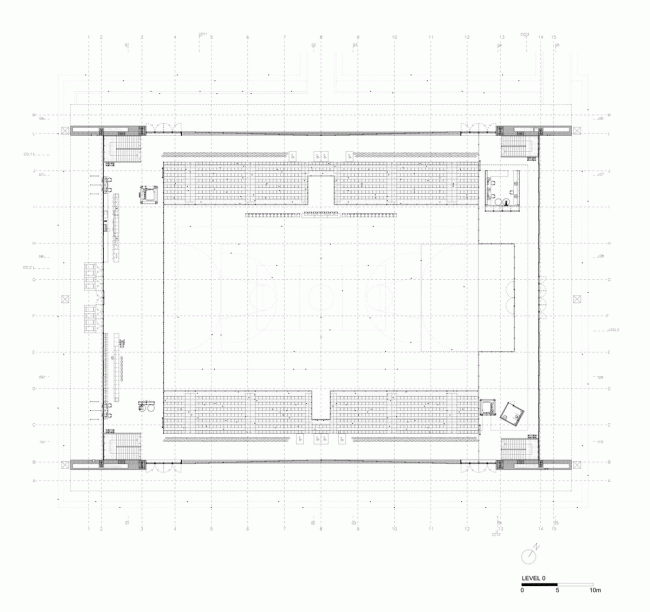
Здание располагается в порту города Виана-ду-Каштелу, между океаном и новой площадью: когда посаженные там деревья вырастут, она превратится в настоящий сквер.
Культурный центр в Виана-ду-Каштелу © Joao Morgado
Культурный центр в Виана-ду-Каштелу © Joao Morgado

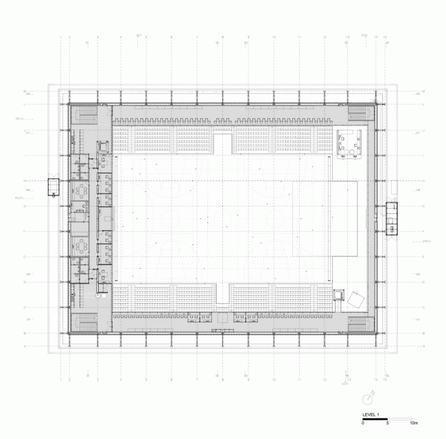
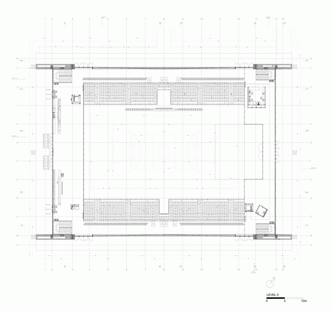
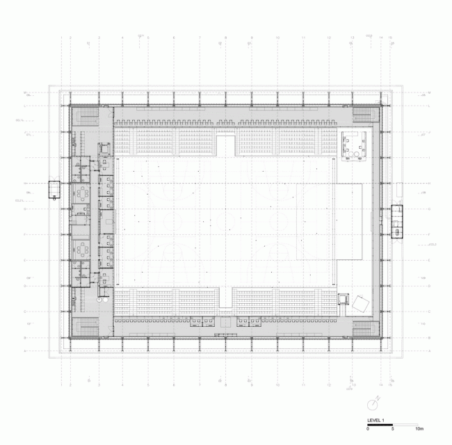
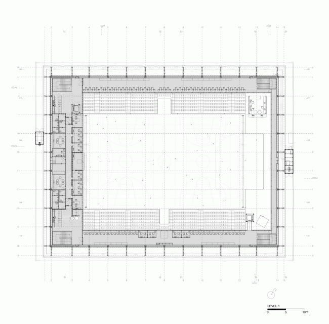
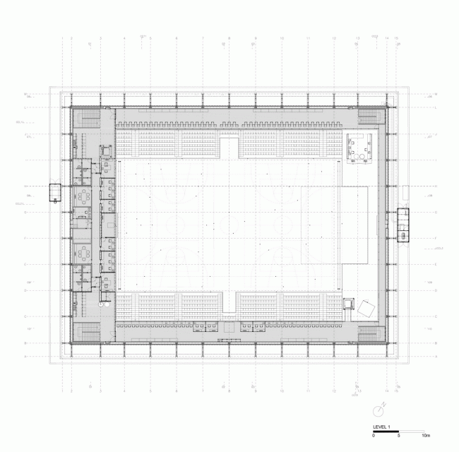
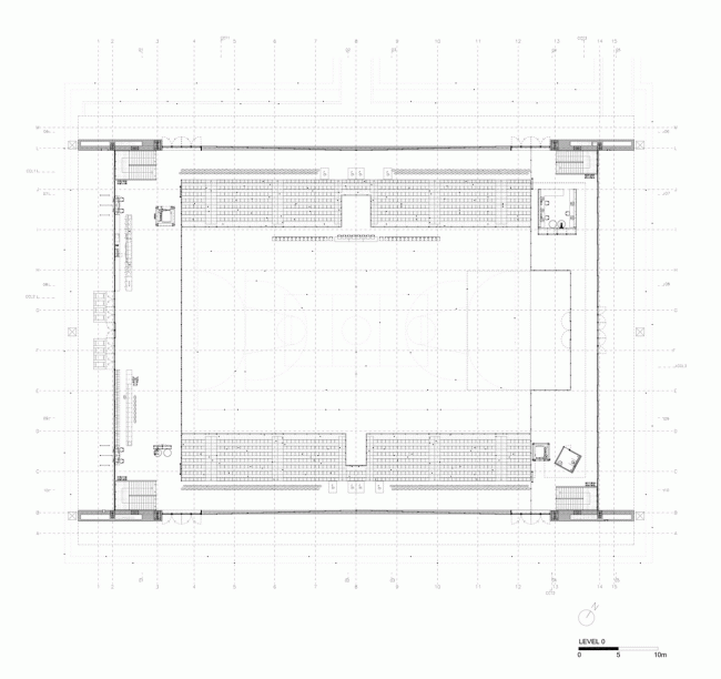
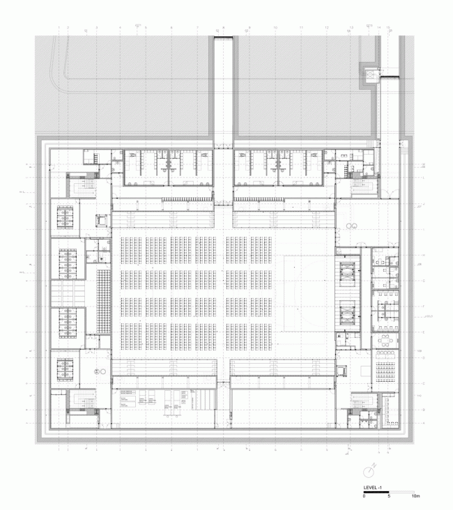
Постройка представляет собой бетонный «стол», на который водружена обшитая алюминиевыми панелями «коробка» верхнего яруса. Выбор металла как материала, а также вынесенные на фасад коммуникации должны напоминать стоящий рядом на приколе корабль «Жил Эанеш» – «плавучий госпиталь» середины 20 в., ныне превращенный в музей.
Культурный центр в Виана-ду-Каштелу © Joao Morgado
Культурный центр в Виана-ду-Каштелу © Joao Morgado

В интерьере предусмотрены помещения для проведения спортивных и культурных мероприятий. Особое внимание было уделено связи внутреннего и внешнего пространства: благодаря остекленному первому этажу изнутри виден океан.
Культурный центр в Виана-ду-Каштелу © Joao Morgado
Культурный центр в Виана-ду-Каштелу © Joao Morgado
Культурный центр в Виана-ду-Каштелу © Joao Morgado
Культурный центр в Виана-ду-Каштелу © Joao Morgado
Культурный центр в Виана-ду-Каштелу © Joao Morgado
Культурный центр в Виана-ду-Каштелу © Joao Morgado
Культурный центр в Виана-ду-Каштелу © Joao Morgado
Культурный центр в Виана-ду-Каштелу © Joao Morgado
Культурный центр в Виана-ду-Каштелу © Joao Morgado
Культурный центр в Виана-ду-Каштелу © Joao Morgado
Культурный центр в Виана-ду-Каштелу © Joao Morgado
Культурный центр в Виана-ду-Каштелу © Joao Morgado
Культурный центр в Виана-ду-Каштелу © Joao Morgado
Культурный центр в Виана-ду-Каштелу © Joao Morgado
Культурный центр в Виана-ду-Каштелу © Joao Morgado
Культурный центр в Виана-ду-Каштелу © Joao Morgado
Культурный центр в Виана-ду-Каштелу © Joao Morgado
Культурный центр в Виана-ду-Каштелу © Joao Morgado
Культурный центр в Виана-ду-Каштелу © Joao Morgado
Культурный центр в Виана-ду-Каштелу © Joao Morgado
Культурный центр в Виана-ду-Каштелу © Joao Morgado
Культурный центр в Виана-ду-Каштелу © Joao Morgado
Культурный центр в Виана-ду-Каштелу © Joao Morgado
Культурный центр в Виана-ду-Каштелу © Joao Morgado
Культурный центр в Виана-ду-Каштелу © Joao Morgado
Культурный центр в Виана-ду-Каштелу © Joao Morgado
Культурный центр в Виана-ду-Каштелу © Joao Morgado
Культурный центр в Виана-ду-Каштелу © Joao Morgado
Культурный центр в Виана-ду-Каштелу © Joao Morgado
Культурный центр в Виана-ду-Каштелу © Joao Morgado
Культурный центр в Виана-ду-Каштелу © Joao Morgado
Культурный центр в Виана-ду-Каштелу © Joao Morgado
Культурный центр в Виана-ду-Каштелу © Joao Morgado
Культурный центр в Виана-ду-Каштелу © Joao Morgado
Культурный центр в Виана-ду-Каштелу © Joao Morgado
Культурный центр в Виана-ду-Каштелу © Joao Morgado
Культурный центр в Виана-ду-Каштелу © Joao Morgado
Культурный центр в Виана-ду-Каштелу © Joao Morgado
Культурный центр в Виана-ду-Каштелу © Joao Morgado
Культурный центр в Виана-ду-Каштелу © Joao Morgado
Культурный центр в Виана-ду-Каштелу © Joao Morgado
Культурный центр в Виана-ду-Каштелу © Joao Morgado
Культурный центр в Виана-ду-Каштелу © Joao Morgado
Культурный центр в Виана-ду-Каштелу © Joao Morgado
Культурный центр в Виана-ду-Каштелу © Joao Morgado
Культурный центр в Виана-ду-Каштелу © Joao Morgado
Культурный центр в Виана-ду-Каштелу © Joao Morgado
Культурный центр в Виана-ду-Каштелу © Joao Morgado
Культурный центр в Виана-ду-Каштелу © Joao Morgado
Культурный центр в Виана-ду-Каштелу © Joao Morgado
Культурный центр в Виана-ду-Каштелу © Joao Morgado
Культурный центр в Виана-ду-Каштелу © Joao Morgado
Культурный центр в Виана-ду-Каштелу © Joao Morgado
Культурный центр в Виана-ду-Каштелу © Joao Morgado
Культурный центр в Виана-ду-Каштелу © Joao Morgado
Культурный центр в Виана-ду-Каштелу © Joao Morgado
Культурный центр в Виана-ду-Каштелу © Joao Morgado
Культурный центр в Виана-ду-Каштелу © Joao Morgado
Культурный центр в Виана-ду-Каштелу © Joao Morgado
Культурный центр в Виана-ду-Каштелу © Joao Morgado
Культурный центр в Виана-ду-Каштелу © Joao Morgado
Культурный центр в Виана-ду-Каштелу © Joao Morgado
Культурный центр в Виана-ду-Каштелу © Joao Morgado
Культурный центр в Виана-ду-Каштелу © Joao Morgado
Культурный центр в Виана-ду-Каштелу © Joao Morgado
Культурный центр в Виана-ду-Каштелу © Joao Morgado
Культурный центр в Виана-ду-Каштелу © Eduardo Souto de Moura
Культурный центр в Виана-ду-Каштелу © Eduardo Souto de Moura
Культурный центр в Виана-ду-Каштелу © Eduardo Souto de Moura
Культурный центр в Виана-ду-Каштелу © Eduardo Souto de Moura
Культурный центр в Виана-ду-Каштелу © Eduardo Souto de Moura
Культурный центр в Виана-ду-Каштелу © Eduardo Souto de Moura
Культурный центр в Виана-ду-Каштелу © Eduardo Souto de Moura
Культурный центр в Виана-ду-Каштелу © Eduardo Souto de Moura
Культурный центр в Виана-ду-Каштелу © Eduardo Souto de Moura
Культурный центр в Виана-ду-Каштелу © Eduardo Souto de Moura
Культурный центр в Виана-ду-Каштелу © Eduardo Souto de Moura
Культурный центр в Виана-ду-Каштелу © Eduardo Souto de Moura
Культурный центр в Виана-ду-Каштелу © Eduardo Souto de Moura
Культурный центр в Виана-ду-Каштелу © Eduardo Souto de Moura
Культурный центр в Виана-ду-Каштелу © Eduardo Souto de Moura
Культурный центр в Виана-ду-Каштелу © Eduardo Souto de Moura
Культурный центр в Виана-ду-Каштелу © Eduardo Souto de Moura
Культурный центр в Виана-ду-Каштелу © Eduardo Souto de Moura
Культурный центр в Виана-ду-Каштелу © Eduardo Souto de Moura
Культурный центр в Виана-ду-Каштелу © Eduardo Souto de Moura
Культурный центр в Виана-ду-Каштелу © Eduardo Souto de Moura
Культурный центр в Виана-ду-Каштелу © Eduardo Souto de Moura
Культурный центр в Виана-ду-Каштелу © Eduardo Souto de Moura
Культурный центр в Виана-ду-Каштелу © Eduardo Souto de Moura
Культурный центр в Виана-ду-Каштелу © Eduardo Souto de Moura
Культурный центр в Виана-ду-Каштелу © Eduardo Souto de Moura
Культурный центр в Виана-ду-Каштелу © Eduardo Souto de Moura
Культурный центр в Виана-ду-Каштелу © Eduardo Souto de Moura
Культурный центр в Виана-ду-Каштелу © Eduardo Souto de Moura
Культурный центр в Виана-ду-Каштелу © Eduardo Souto de Moura
Культурный центр в Виана-ду-Каштелу © Eduardo Souto de Moura
Культурный центр в Виана-ду-Каштелу © Eduardo Souto de Moura