Ðàçìåùåíî íà ïîðòàëå Àðõè.ðó (www.archi.ru)

09.08.2013

Ôàñàä çà âèòðèíîé

Íèíà Ôðîëîâà
Îáúåêò:
Êóëüòóðíûé öåíòð Ýëåíû Ãàððî
Àäðåñ:
Ìåêñèêà, None, Ìåõèêî.
Ìàñòåðñêàÿ:
arquitectura 911sc

Ôåðíàíäà Êàíàëåñ è áþðî arquitectura 911sc ïîñòðîèëè â Ìåõèêî Êóëüòóðíûé öåíòð Ýëåíû Ãàððî.

Êóëüòóðíûé öåíòð Ýëåíû Ãàððî © Jaime Navarro
Êóëüòóðíûé öåíòð Ýëåíû Ãàððî © Jaime Navarro

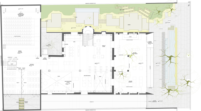
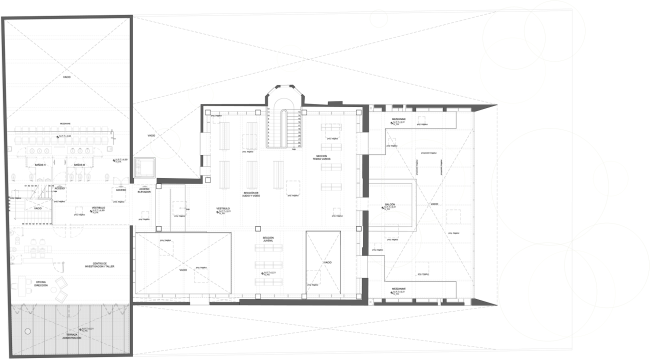
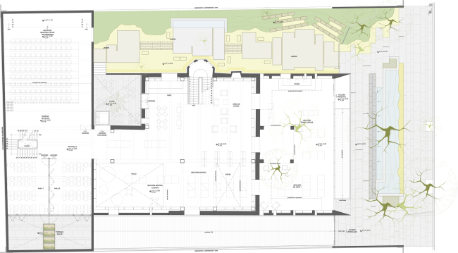
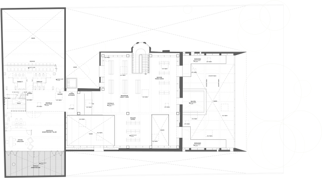
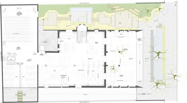
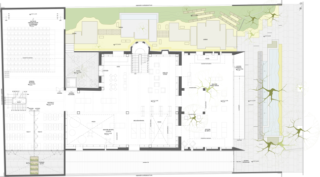
Êóëüòóðíûé öåíòð, íîñÿùèé èìÿ âûäàþùåéñÿ ìåêñèêàíñêîé ïèñàòåëüíèöû, ðàñïîëîæåí â ñòîëè÷íîì ðàéîíå Êîéîàêàí, î÷åíü áëàãîïîëó÷íîì è çåëåíîì. Êðîìå îáû÷íûõ ñîñòîÿòåëüíûõ ãîðîæàí, ñ íà÷àëà 20 â. çäåñü ñåëèëèñü ìåêñèêàíñêèå ëèòåðàòîðû è õóäîæíèêè, íàïðèìåð, Îêòàâèî Ïàñ è Ôðèäà Êàëî. Ó÷èòûâàÿ âêóñû ìåñòíûõ æèòåëåé, äèðåêöèÿ öåíòðà çàäóìàëà åãî êàê «êîììóíàëüíóþ îáùóþ êîìíàòó, îðãàíèçîâàííóþ âîêðóã êíèã».
Êóëüòóðíûé öåíòð Ýëåíû Ãàððî © Sandra Pereznieto
Êóëüòóðíûé öåíòð Ýëåíû Ãàððî © Sandra Pereznieto

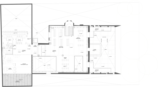
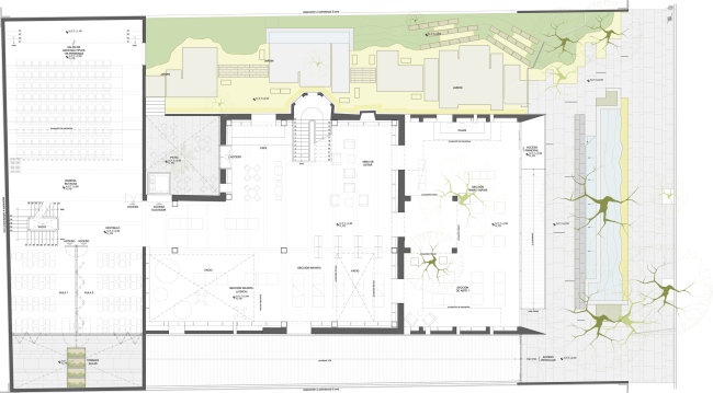
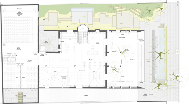
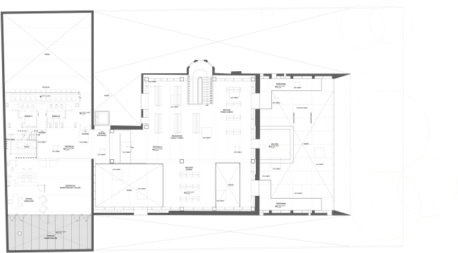
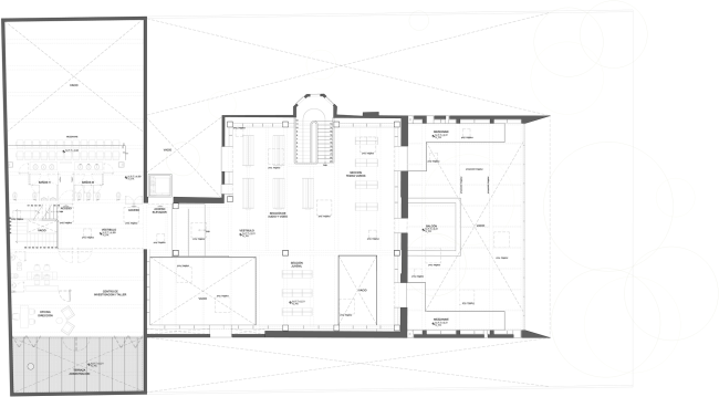
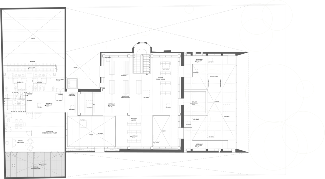
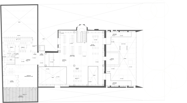
ßäðî çäàíèÿ ñîñòàâëÿåò ïàìÿòíèê àðõèòåêòóðû – îñîáíÿê íà÷àëà 20 â. Ñî ñòîðîíû óëèöû ê íåìó ïðèñòðîåíà «âèòðèíà» – áåòîííàÿ çàñòåêëåííàÿ ðàìà, çà êîòîðîé ðàñïîëîæåí âåñòèáþëü,  ðàñòóò äåðåâüÿ è «âûñòàâëåí» ãëàâíûé ôàñàä îñîáíÿêà.
Êóëüòóðíûé öåíòð Ýëåíû Ãàððî © Jaime Navarro
Êóëüòóðíûé öåíòð Ýëåíû Ãàððî © Jaime Navarro

Ñàìî èñòîðè÷åñêîå ñîîðóæåíèå ñîñòàâëÿåò âòîðóþ ÷àñòü ïîñòðîéêè: êàê è «ðàìà», îíî çàíÿòî ñòåëëàæàìè ñ êíèãàìè, ïðè÷åì ïîìåùåíèÿ íà ðàçíûõ ÿðóñàõ ñâÿçàíû ìåæäó ñîáîé ïðîåìàìè â ïåðåêðûòèÿõ, ëåñòíèöàìè è òàê äàëåå. Òðåòüÿ ÷àñòü ïîñòðîéêè – áëîê ñî çðèòåëüíûì çàëîì è ó÷åáíûìè àóäèòîðèÿìè. Òàêæå â çäàíèè èìååòñÿ ìàëåíüêèé âíóòðåííèé äâîð.
Êóëüòóðíûé öåíòð Ýëåíû Ãàððî © Jaime Navarro
Êóëüòóðíûé öåíòð Ýëåíû Ãàððî © Jaime Navarro
Êóëüòóðíûé öåíòð Ýëåíû Ãàððî © Jaime Navarro
Êóëüòóðíûé öåíòð Ýëåíû Ãàððî © Jaime Navarro
Êóëüòóðíûé öåíòð Ýëåíû Ãàððî © Jaime Navarro
Êóëüòóðíûé öåíòð Ýëåíû Ãàððî © Jaime Navarro
Êóëüòóðíûé öåíòð Ýëåíû Ãàððî © Jaime Navarro
Êóëüòóðíûé öåíòð Ýëåíû Ãàððî © Jaime Navarro
Êóëüòóðíûé öåíòð Ýëåíû Ãàððî © Jaime Navarro
Êóëüòóðíûé öåíòð Ýëåíû Ãàððî © Jaime Navarro
Êóëüòóðíûé öåíòð Ýëåíû Ãàððî © Jaime Navarro
Êóëüòóðíûé öåíòð Ýëåíû Ãàððî © Jaime Navarro
Êóëüòóðíûé öåíòð Ýëåíû Ãàððî © Sandra Pereznieto
Êóëüòóðíûé öåíòð Ýëåíû Ãàððî © Sandra Pereznieto
Êóëüòóðíûé öåíòð Ýëåíû Ãàððî © Jaime Navarro
Êóëüòóðíûé öåíòð Ýëåíû Ãàððî © Jaime Navarro
Êóëüòóðíûé öåíòð Ýëåíû Ãàððî © Jaime Navarro
Êóëüòóðíûé öåíòð Ýëåíû Ãàððî © Jaime Navarro
Êóëüòóðíûé öåíòð Ýëåíû Ãàððî © Jaime Navarro
Êóëüòóðíûé öåíòð Ýëåíû Ãàððî © Jaime Navarro
Êóëüòóðíûé öåíòð Ýëåíû Ãàððî © Jaime Navarro
Êóëüòóðíûé öåíòð Ýëåíû Ãàððî © Jaime Navarro
Êóëüòóðíûé öåíòð Ýëåíû Ãàððî © Jaime Navarro
Êóëüòóðíûé öåíòð Ýëåíû Ãàððî © Jaime Navarro
Êóëüòóðíûé öåíòð Ýëåíû Ãàððî © Jaime Navarro
Êóëüòóðíûé öåíòð Ýëåíû Ãàððî © Jaime Navarro
Êóëüòóðíûé öåíòð Ýëåíû Ãàððî © Jaime Navarro
Êóëüòóðíûé öåíòð Ýëåíû Ãàððî © Jaime Navarro
Êóëüòóðíûé öåíòð Ýëåíû Ãàððî © Jaime Navarro
Êóëüòóðíûé öåíòð Ýëåíû Ãàððî © Jaime Navarro
Êóëüòóðíûé öåíòð Ýëåíû Ãàððî © Jaime Navarro
Êóëüòóðíûé öåíòð Ýëåíû Ãàððî © Jaime Navarro
Êóëüòóðíûé öåíòð Ýëåíû Ãàððî © Jaime Navarro
Êóëüòóðíûé öåíòð Ýëåíû Ãàððî © Jaime Navarro
Êóëüòóðíûé öåíòð Ýëåíû Ãàððî © Sandra Pereznieto
Êóëüòóðíûé öåíòð Ýëåíû Ãàððî © Sandra Pereznieto
Êóëüòóðíûé öåíòð Ýëåíû Ãàððî © Jaime Navarro
Êóëüòóðíûé öåíòð Ýëåíû Ãàððî © Jaime Navarro
Êóëüòóðíûé öåíòð Ýëåíû Ãàððî © Jaime Navarro
Êóëüòóðíûé öåíòð Ýëåíû Ãàððî © Jaime Navarro
Êóëüòóðíûé öåíòð Ýëåíû Ãàððî © Jaime Navarro
Êóëüòóðíûé öåíòð Ýëåíû Ãàððî © Jaime Navarro
Êóëüòóðíûé öåíòð Ýëåíû Ãàððî © Fernanda Canales + arquitectura 911sc
Êóëüòóðíûé öåíòð Ýëåíû Ãàððî © Fernanda Canales + arquitectura 911sc
Êóëüòóðíûé öåíòð Ýëåíû Ãàððî © Fernanda Canales + arquitectura 911sc
Êóëüòóðíûé öåíòð Ýëåíû Ãàððî © Fernanda Canales + arquitectura 911sc
Êóëüòóðíûé öåíòð Ýëåíû Ãàððî © Fernanda Canales + arquitectura 911sc
Êóëüòóðíûé öåíòð Ýëåíû Ãàððî © Fernanda Canales + arquitectura 911sc
Êóëüòóðíûé öåíòð Ýëåíû Ãàððî © Fernanda Canales + arquitectura 911sc
Êóëüòóðíûé öåíòð Ýëåíû Ãàððî © Fernanda Canales + arquitectura 911sc
Êóëüòóðíûé öåíòð Ýëåíû Ãàððî © Fernanda Canales + arquitectura 911sc
Êóëüòóðíûé öåíòð Ýëåíû Ãàððî © Fernanda Canales + arquitectura 911sc
Êóëüòóðíûé öåíòð Ýëåíû Ãàððî © Fernanda Canales + arquitectura 911sc
Êóëüòóðíûé öåíòð Ýëåíû Ãàððî © Fernanda Canales + arquitectura 911sc
Êóëüòóðíûé öåíòð Ýëåíû Ãàððî © Fernanda Canales + arquitectura 911sc
Êóëüòóðíûé öåíòð Ýëåíû Ãàððî © Fernanda Canales + arquitectura 911sc
Êóëüòóðíûé öåíòð Ýëåíû Ãàððî © Fernanda Canales + arquitectura 911sc
Êóëüòóðíûé öåíòð Ýëåíû Ãàððî © Fernanda Canales + arquitectura 911sc
Êóëüòóðíûé öåíòð Ýëåíû Ãàððî © Fernanda Canales + arquitectura 911sc
Êóëüòóðíûé öåíòð Ýëåíû Ãàððî © Fernanda Canales + arquitectura 911sc
Êóëüòóðíûé öåíòð Ýëåíû Ãàððî © Fernanda Canales + arquitectura 911sc
Êóëüòóðíûé öåíòð Ýëåíû Ãàððî © Fernanda Canales + arquitectura 911sc
Êóëüòóðíûé öåíòð Ýëåíû Ãàððî © Fernanda Canales + arquitectura 911sc
Êóëüòóðíûé öåíòð Ýëåíû Ãàððî © Fernanda Canales + arquitectura 911sc
Êóëüòóðíûé öåíòð Ýëåíû Ãàððî © Fernanda Canales + arquitectura 911sc
Êóëüòóðíûé öåíòð Ýëåíû Ãàððî © Fernanda Canales + arquitectura 911sc
Êóëüòóðíûé öåíòð Ýëåíû Ãàððî © Fernanda Canales + arquitectura 911sc
Êóëüòóðíûé öåíòð Ýëåíû Ãàððî © Fernanda Canales + arquitectura 911sc
Êóëüòóðíûé öåíòð Ýëåíû Ãàððî © Fernanda Canales + arquitectura 911sc
Êóëüòóðíûé öåíòð Ýëåíû Ãàððî © Fernanda Canales + arquitectura 911sc
Êóëüòóðíûé öåíòð Ýëåíû Ãàððî © Fernanda Canales + arquitectura 911sc
Êóëüòóðíûé öåíòð Ýëåíû Ãàððî © Fernanda Canales + arquitectura 911sc
Êóëüòóðíûé öåíòð Ýëåíû Ãàððî © Fernanda Canales + arquitectura 911sc
Êóëüòóðíûé öåíòð Ýëåíû Ãàððî © Fernanda Canales + arquitectura 911sc