Размещено на портале Архи.ру (www.archi.ru)

08.08.2013

…В почете высшее образование

Мария Корсакова
Объект:
Корпус экономического факультета и магистратуры Университета Наварры
Адрес:
Испания, None, Памплона.
Мастерская:
Otxotorena Arquitectos

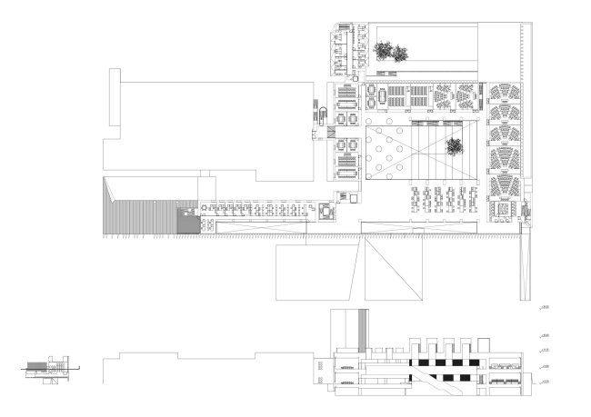
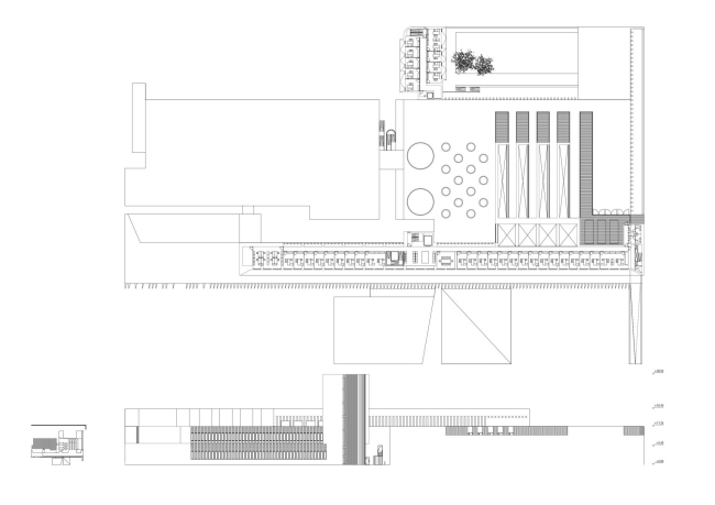
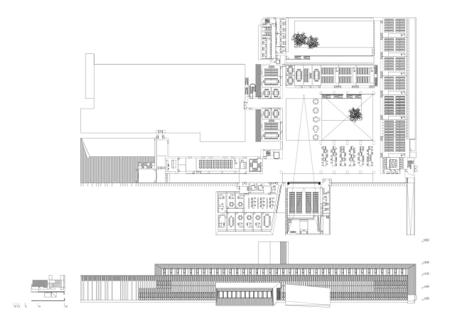
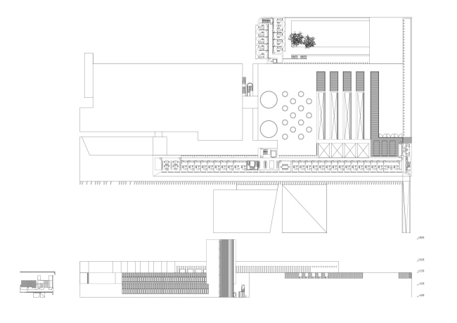
В Памплоне на севере Испании Otxoterena Arquitectos построили корпус экономического факультета университета Наварры.

Корпус экономического факультета и магистратуры Университета Наварры © Jose Manuel Cutillas
Корпус экономического факультета и магистратуры Университета Наварры © Jose Manuel Cutillas

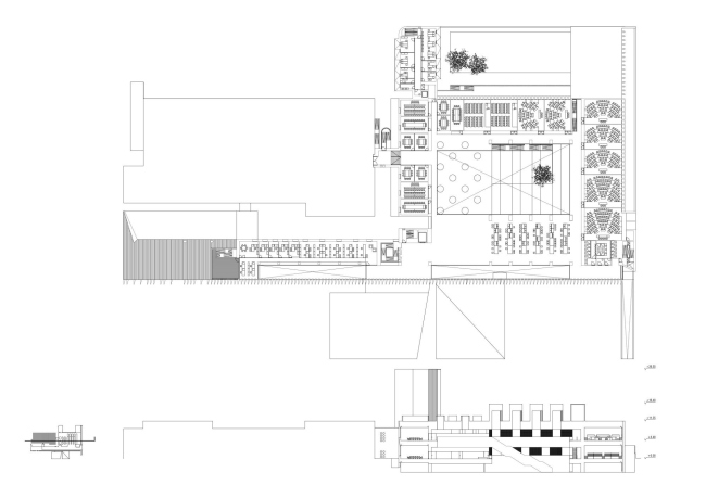
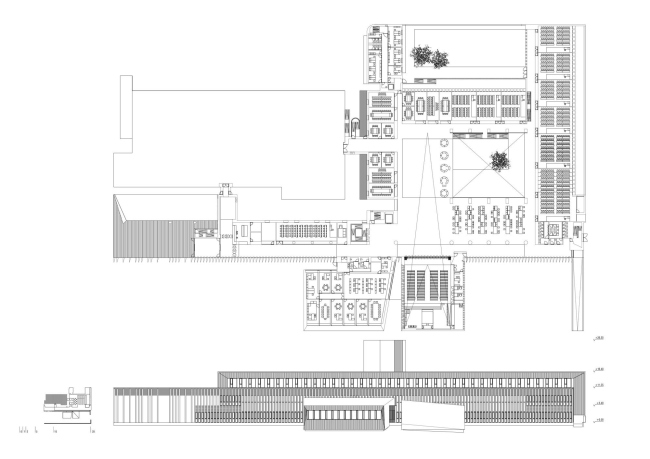
Университет Наварры, один из лучших вузов Испании (он даже входит в топ-50 мира), недавно получил новое здание, где разместились его экономический факультет и магистратура. Вместе с имевшимся корпусом юридического факультета оно образовало удобный учебный комплекс.
Корпус экономического факультета и магистратуры Университета Наварры © Jose Manuel Cutillas
Корпус экономического факультета и магистратуры Университета Наварры © Jose Manuel Cutillas

Проект бюро Otxoterena Arquitectos успешно следует принципам Болонской конвенции: здание отвечает современным требованиям образовательного процесса. Кроме того, постройка фактически усовершенствовала здание юридического факультета, дополнив его необходимыми помещениями: ведь оба строения связаны между собой на каждом этаже.
Корпус экономического факультета и магистратуры Университета Наварры © Jose Manuel Cutillas
Корпус экономического факультета и магистратуры Университета Наварры © Jose Manuel Cutillas

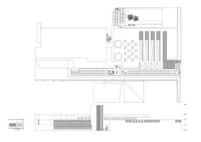
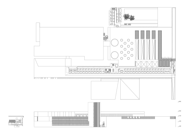
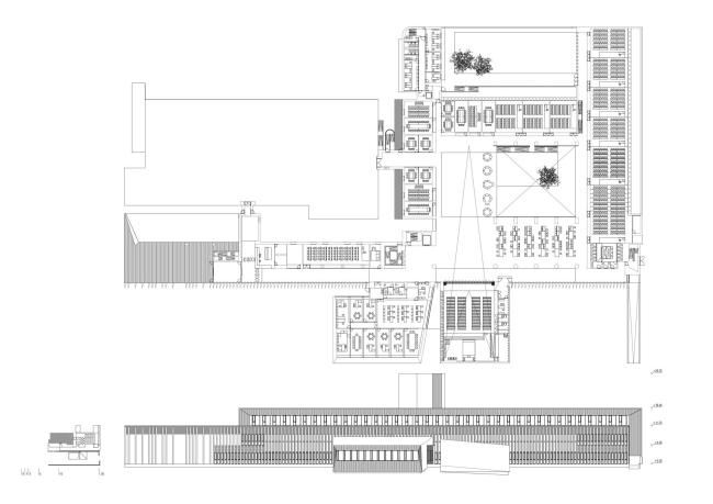
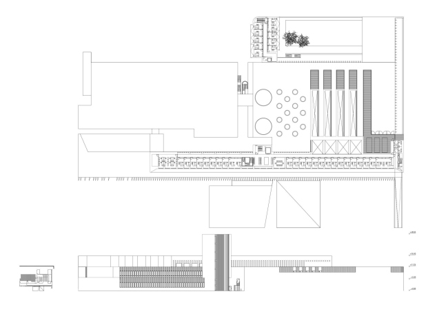
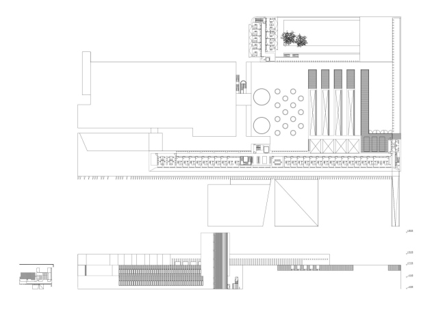
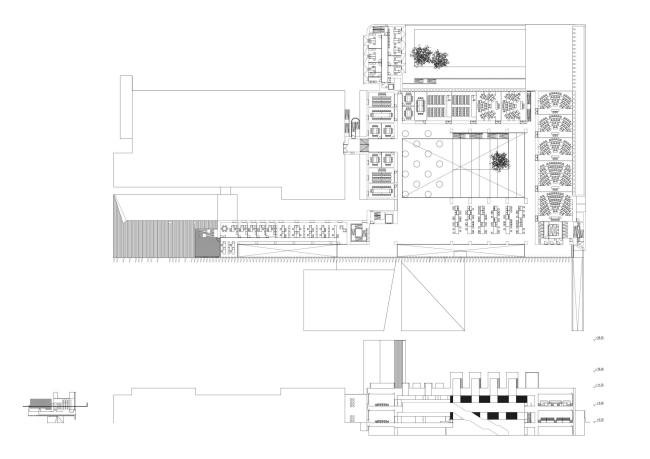
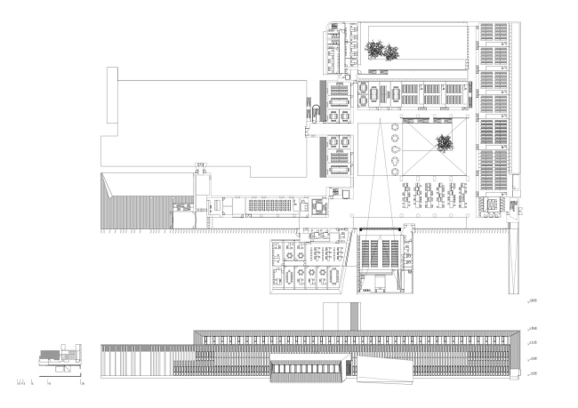
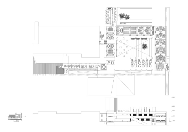
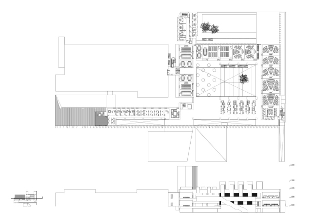
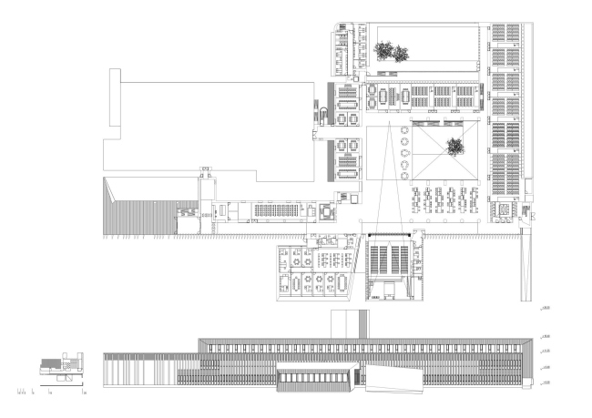
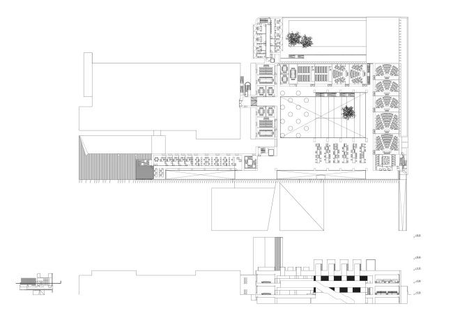
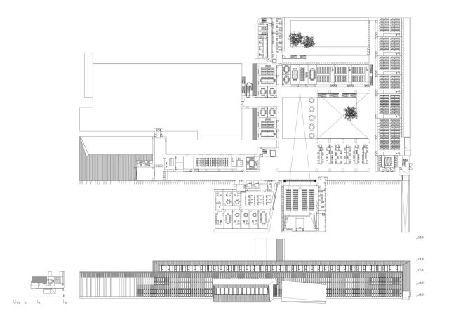
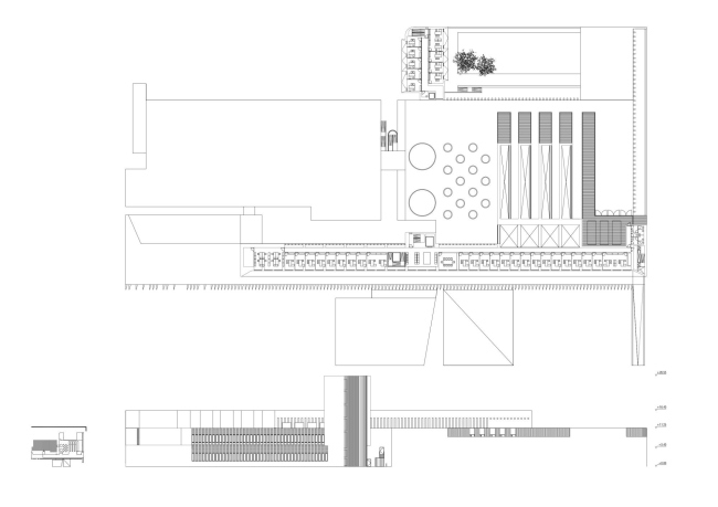
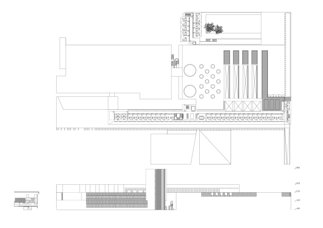
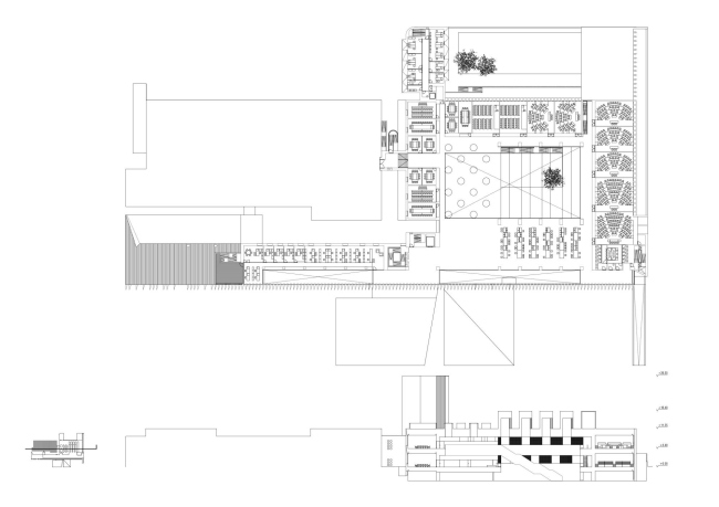
Студенты обоих факультетов получили новые, различные по площади аудитории и общественные пространства, а преподаватели – помещения для исследований и собственные кабинеты. Испанские архитекторы создали простую и понятную планировку, обустроили множество общественных зон, предназначенных для неформальных занятий и общения учащихся.
Корпус экономического факультета и магистратуры Университета Наварры © Jose Manuel Cutillas
Корпус экономического факультета и магистратуры Университета Наварры © Jose Manuel Cutillas

Здания получили общий парадный вход: это открытая бетонная галерея, которая пристроена к основному объему нового корпуса. Университетский ансамбль также приобрел новую открытую общественную зону с видом на окружающий ландшафт, ведь корпуса расположены на склоне холма. Тому же принципу открытого взаимодействия со средой служит низкая этажность строения и большие площади остекления.
Корпус экономического факультета и магистратуры Университета Наварры © Jose Manuel Cutillas
Корпус экономического факультета и магистратуры Университета Наварры © Jose Manuel Cutillas

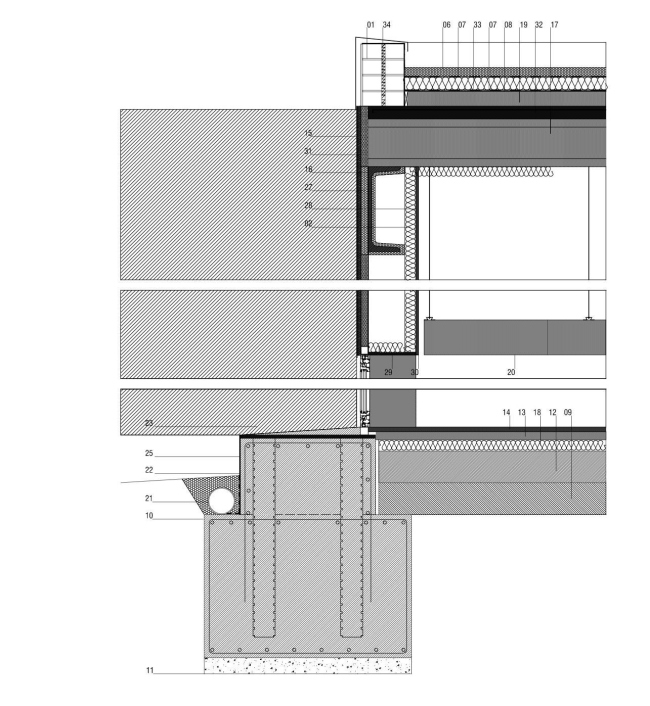
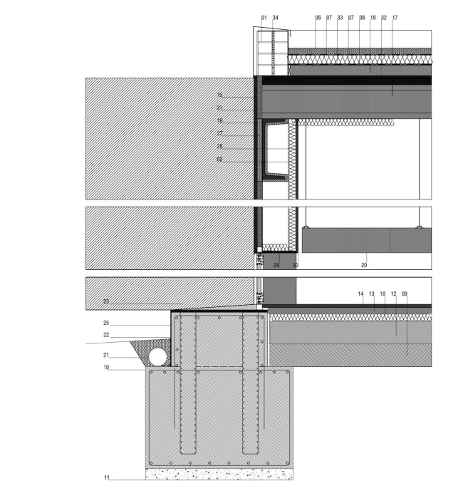
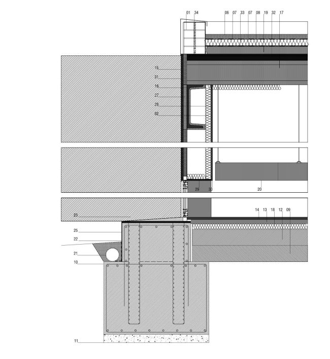
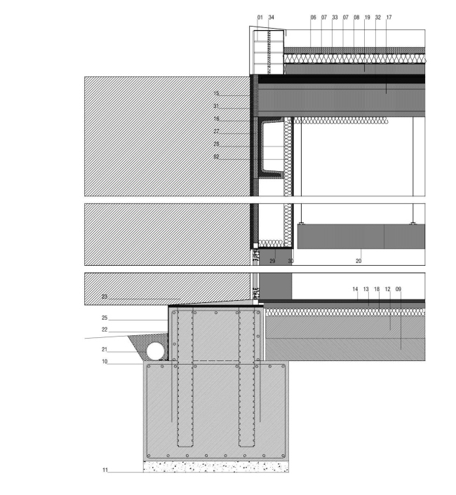
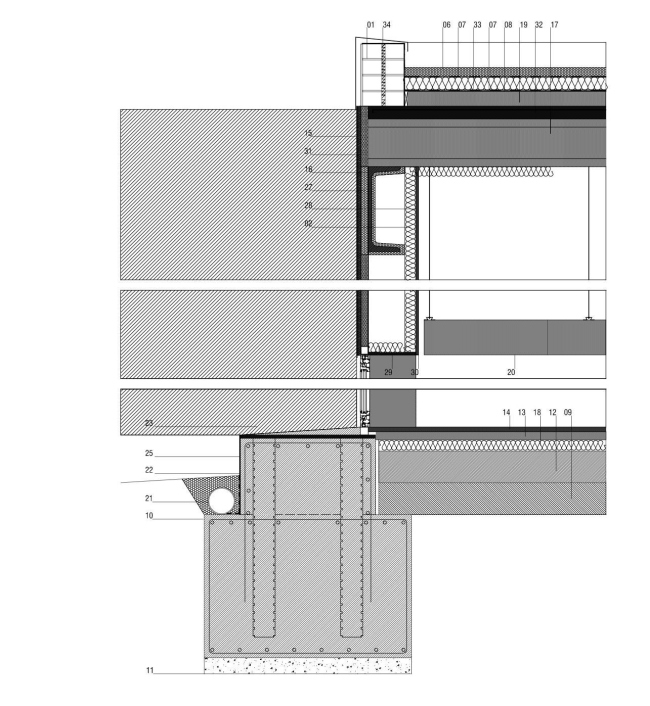
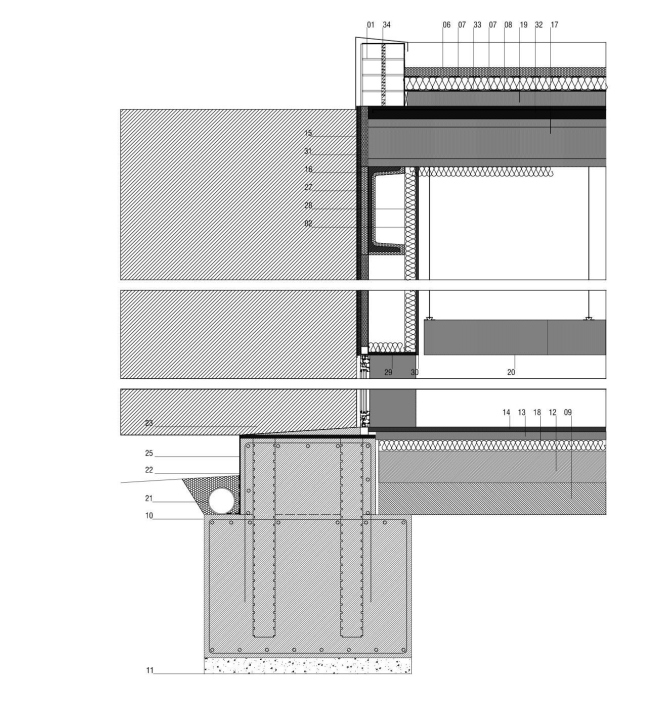
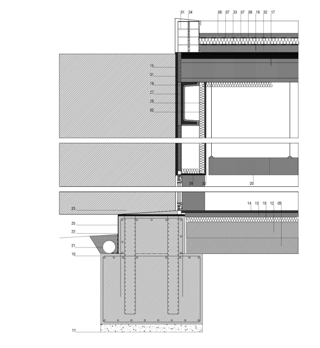
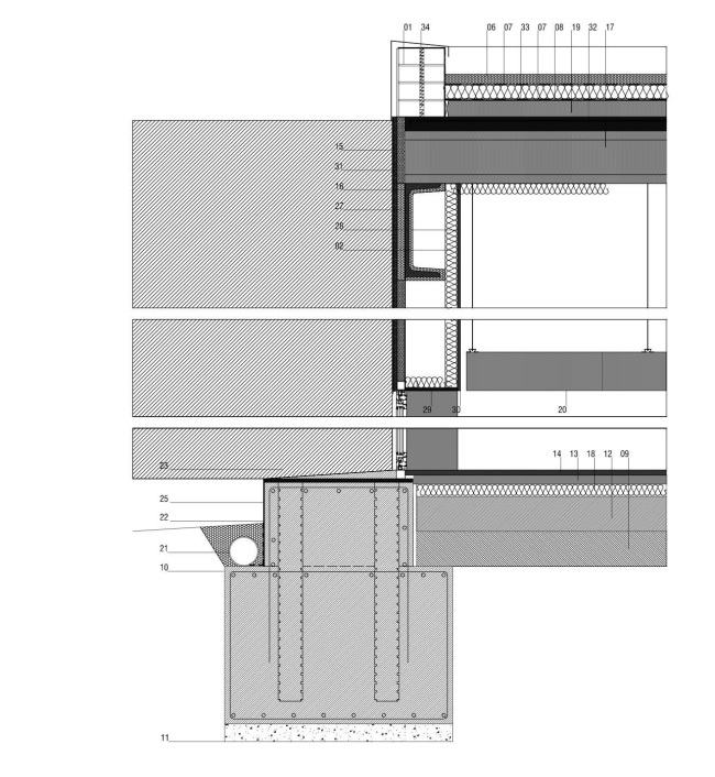
Ритмическая организация выполненных из бетона и стекла фасадов – основной прием архитекторов. Отдельные участки фасадов «обернуты» металлическими пластинами, причем плотность этой обшивки варьируется.
Корпус экономического факультета и магистратуры Университета Наварры © Jose Manuel Cutillas
Корпус экономического факультета и магистратуры Университета Наварры © Jose Manuel Cutillas
Корпус экономического факультета и магистратуры Университета Наварры © Pedro Pegenaute
Корпус экономического факультета и магистратуры Университета Наварры © Pedro Pegenaute
Корпус экономического факультета и магистратуры Университета Наварры © Ruben Perez Bescos
Корпус экономического факультета и магистратуры Университета Наварры © Ruben Perez Bescos
Корпус экономического факультета и магистратуры Университета Наварры © Ruben Perez Bescos
Корпус экономического факультета и магистратуры Университета Наварры © Ruben Perez Bescos
Корпус экономического факультета и магистратуры Университета Наварры © Jose Manuel Cutillas
Корпус экономического факультета и магистратуры Университета Наварры © Jose Manuel Cutillas
Корпус экономического факультета и магистратуры Университета Наварры © Jose Manuel Cutillas
Корпус экономического факультета и магистратуры Университета Наварры © Jose Manuel Cutillas
Корпус экономического факультета и магистратуры Университета Наварры © Jose Manuel Cutillas
Корпус экономического факультета и магистратуры Университета Наварры © Jose Manuel Cutillas
Корпус экономического факультета и магистратуры Университета Наварры © Jose Manuel Cutillas
Корпус экономического факультета и магистратуры Университета Наварры © Jose Manuel Cutillas
Корпус экономического факультета и магистратуры Университета Наварры © Ruben Perez Bescos
Корпус экономического факультета и магистратуры Университета Наварры © Ruben Perez Bescos
Корпус экономического факультета и магистратуры Университета Наварры © Ruben Perez Bescos
Корпус экономического факультета и магистратуры Университета Наварры © Ruben Perez Bescos
Корпус экономического факультета и магистратуры Университета Наварры © Ruben Perez Bescos
Корпус экономического факультета и магистратуры Университета Наварры © Ruben Perez Bescos
Корпус экономического факультета и магистратуры Университета Наварры © Ruben Perez Bescos
Корпус экономического факультета и магистратуры Университета Наварры © Ruben Perez Bescos
Корпус экономического факультета и магистратуры Университета Наварры © Juan M. Otxotorena
Корпус экономического факультета и магистратуры Университета Наварры © Juan M. Otxotorena
Корпус экономического факультета и магистратуры Университета Наварры © Juan M. Otxotorena
Корпус экономического факультета и магистратуры Университета Наварры © Juan M. Otxotorena
Корпус экономического факультета и магистратуры Университета Наварры © Juan M. Otxotorena
Корпус экономического факультета и магистратуры Университета Наварры © Juan M. Otxotorena
Корпус экономического факультета и магистратуры Университета Наварры © Juan M. Otxotorena
Корпус экономического факультета и магистратуры Университета Наварры © Juan M. Otxotorena
Корпус экономического факультета и магистратуры Университета Наварры © Juan M. Otxotorena
Корпус экономического факультета и магистратуры Университета Наварры © Juan M. Otxotorena
Корпус экономического факультета и магистратуры Университета Наварры © Juan M. Otxotorena
Корпус экономического факультета и магистратуры Университета Наварры © Juan M. Otxotorena
Корпус экономического факультета и магистратуры Университета Наварры © Juan M. Otxotorena
Корпус экономического факультета и магистратуры Университета Наварры © Juan M. Otxotorena
Корпус экономического факультета и магистратуры Университета Наварры © Juan M. Otxotorena
Корпус экономического факультета и магистратуры Университета Наварры © Juan M. Otxotorena
Корпус экономического факультета и магистратуры Университета Наварры © Juan M. Otxotorena
Корпус экономического факультета и магистратуры Университета Наварры © Juan M. Otxotorena