Размещено на портале Архи.ру (www.archi.ru)

05.08.2013

Жилье для всех возрастов

Нина Фролова
Объект:
Жилой комплекс Messequartier
Адрес:
Австрия, None, Грац.

Австрийский архитектор Маркус Пернталер построил в Граце жилой комплекс Messequartier.

Жилой комплекс Messequartier © Paul Ott
Жилой комплекс Messequartier © Paul Ott

Здание расположено в центре города, рядом с территорией выставочного комплекса: в ходе его реконструкции освободилась земля, которую и использовали для строительства этого жилого дома, и он же дал новостройке название («ярмарочный квартал»).
Жилой комплекс Messequartier © Paul Ott
Жилой комплекс Messequartier © Paul Ott

Комплекс объединяет в себе разные типы съемного жилья, квартиры на продажу, жилье для студентов, а также квартиры для пожилых людей типа «проживание с уходом». Также предусмотрены офисные площади, детский сад и другие объекты инфраструктуры. Встреча разных поколений в одном доме обеспечит Messequartier необходимую «социальную устойчивость».
Жилой комплекс Messequartier © Paul Ott
Жилой комплекс Messequartier © Paul Ott

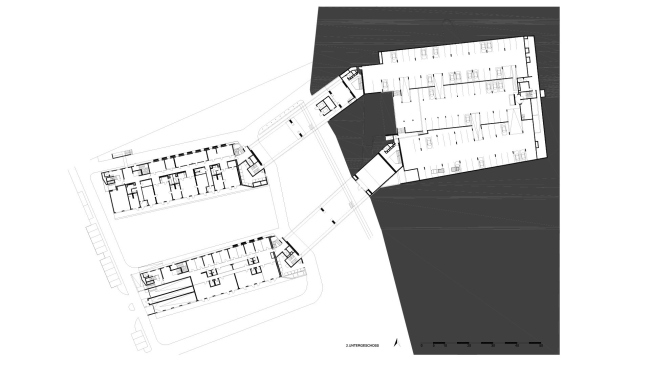
Постройка имеет П-образный план, причем ее «перекладина» расположена на возвышенности, а параллельные корпуса сперва спускаются по склону, а заканчиваются уже на ровном участке ландшафта. За счет перепада высоты ближе к торцам они вырастают до 10 этажей, не выбиваясь при этом из силуэта окружающей исторической застройки.
Жилой комплекс Messequartier © Paul Ott
Жилой комплекс Messequartier © Paul Ott

Во дворе комплекса создано зеленое общественное пространство, связанное с прилегающей территорией сквозь колоннаду, заменяющую часть первого этажа: расположенные на склоне участки корпусов подняты на опоры. Крыша-терраса общей площадью 4400 м2 вмещает бассейн (25 м х 5,5 м) и сауну.
Жилой комплекс Messequartier © Paul Ott
Жилой комплекс Messequartier © Paul Ott

В комплексе установлены солнечные коллекторы (700 м2), обеспечивающие его 26% от необходимого отопления и горячей воды, имеется система сбора дождевой воды для полива озеленения. Предусмотрены стойки на 547 велосипедов, а во двор автомобили не пускают. При строительстве использованы только экологически чистые материалы, а квартиры соответствуют стандарту PassivHaus.
Жилой комплекс Messequartier © Paul Ott
Жилой комплекс Messequartier © Paul Ott

При полезной площади в 20 000 м2 бюджет постройки составил 40 млн евро. Также запланирована 2-я очередь строительства, причем на будущих корпусах установят солнечные батареи.
Жилой комплекс Messequartier © Paul Ott
Жилой комплекс Messequartier © Paul Ott
Жилой комплекс Messequartier © Paul Ott
Жилой комплекс Messequartier © Paul Ott
Жилой комплекс Messequartier © Paul Ott
Жилой комплекс Messequartier © Paul Ott
Жилой комплекс Messequartier © Paul Ott
Жилой комплекс Messequartier © Paul Ott
Жилой комплекс Messequartier © Paul Ott
Жилой комплекс Messequartier © Paul Ott
Жилой комплекс Messequartier © Paul Ott
Жилой комплекс Messequartier © Paul Ott
Жилой комплекс Messequartier © Paul Ott
Жилой комплекс Messequartier © Paul Ott
Жилой комплекс Messequartier © Markus Pernthaler
Жилой комплекс Messequartier © Markus Pernthaler
Жилой комплекс Messequartier © Markus Pernthaler
Жилой комплекс Messequartier © Markus Pernthaler
Жилой комплекс Messequartier © Markus Pernthaler
Жилой комплекс Messequartier © Markus Pernthaler
Жилой комплекс Messequartier © Markus Pernthaler
Жилой комплекс Messequartier © Markus Pernthaler
Жилой комплекс Messequartier © Markus Pernthaler
Жилой комплекс Messequartier © Markus Pernthaler