Размещено на портале Архи.ру (www.archi.ru)

01.08.2013

Монументальная графика

Нина Фролова
Объект:
Национальный мультимедийный центр
Адрес:
Люксембург, None, Дюделанж.

Люксембургские архитекторы Клодин Каэль и Джим Клем превратили водонапорную башню в музей фотографии.

Национальный мультимедийный центр © Andres Lejona
Национальный мультимедийный центр © Andres Lejona

Башня и насосная станция 1928 года постройки входят в комплекс давно закрытого сталелитейного завода ARCED в люксембургском городе Дюделанж. В ходе реконструкции эта промзона сейчас превращается в «кластер» учреждений культуры, и в результате эти два сооружения стали соседями нового здания Национального мультимедийного центра (CNA). Руководство CNA решило приспособить их под свои экспозиции, тем более что от возможного сноса башню и станцию защищал статус памятника архитектуры.
Национальный мультимедийный центр © Andres Lejona
Национальный мультимедийный центр © Andres Lejona

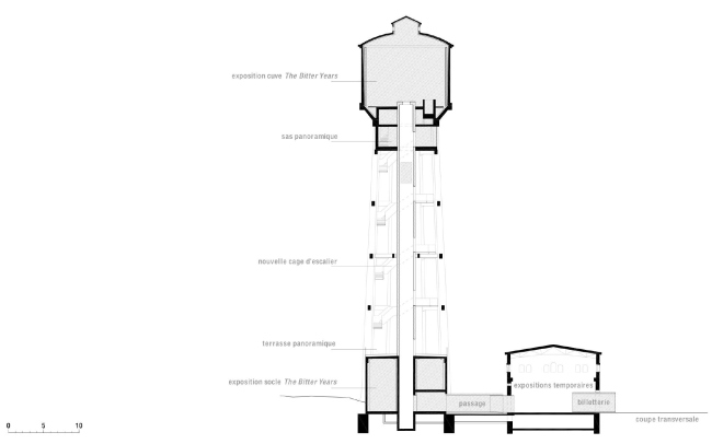
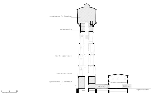
В 56-метровой башне выставочные залы устроили в 8-угольном основании и наверху, в бывшем резервуаре для воды. Их связывает шахта панорамного лифта, на котором посетители поднимаются наверх, и спираль открытой лестницы, по которой они спускаются. Новые части постройки выполнены из «грубого» бетона, на поверхности которого видны следы деревянной опалубки: так их легко отличить от торкретбетона исторической конструкции башни. Лестница снабжена сплошными стальными перилами.
Национальный мультимедийный центр © Andres Lejona
Национальный мультимедийный центр © Andres Lejona

Пересечение прямых и криволинейных линий старой и новой частей башни на фоне неба создает задуманный архитекторами графический эффект. Его могут наблюдать и идущие вниз посетители; также они могут любоваться видами окрестностей не только с лестницы, но и со специальной площадки под резервуаром.
Национальный мультимедийный центр © Andres Lejona
Национальный мультимедийный центр © Andres Lejona

Оба выставочных зала башни почти лишены естественных источников света, что оптимально для размещенной в них постоянной экспозиции – выставки «Горькие годы», созданной куратором и фотографом Эдвардом Штайхеном в 1962 для нью-йоркского музея MoMA и подаренной им в 1967 своему родному Люксембургу. Ее составили фотографии сельской Америки 1930-х годов – времен Великой Депрессии.
Национальный мультимедийный центр © Andres Lejona
Национальный мультимедийный центр © Andres Lejona

К башне посетители попадают через здание насосной станции, сначала купив билет в переделанном под кассу транспортном контейнере. В ее просторных помещениях проводятся временные выставки; кирпичным стены этой постройки архитекторы оставили практически нетронутыми. Проход из станции к основанию башни устроен по еще одному контейнеру, вполне в духе общей индустриальной стилистики.
Национальный мультимедийный центр © Bohumil Kostohryz
Национальный мультимедийный центр © Bohumil Kostohryz
Национальный мультимедийный центр © Bohumil Kostohryz
Национальный мультимедийный центр © Bohumil Kostohryz
Национальный мультимедийный центр © Bohumil Kostohryz
Национальный мультимедийный центр © Bohumil Kostohryz
Национальный мультимедийный центр © Bohumil Kostohryz
Национальный мультимедийный центр © Bohumil Kostohryz
Национальный мультимедийный центр © Bohumil Kostohryz
Национальный мультимедийный центр © Bohumil Kostohryz
Национальный мультимедийный центр © Bohumil Kostohryz
Национальный мультимедийный центр © Bohumil Kostohryz
Национальный мультимедийный центр © Bohumil Kostohryz
Национальный мультимедийный центр © Bohumil Kostohryz
Национальный мультимедийный центр © Bohumil Kostohryz
Национальный мультимедийный центр © Bohumil Kostohryz
Национальный мультимедийный центр © Andres Lejona
Национальный мультимедийный центр © Andres Lejona
Национальный мультимедийный центр © Andres Lejona
Национальный мультимедийный центр © Andres Lejona
Национальный мультимедийный центр. Бывшая насосная станция © Andres Lejona
Национальный мультимедийный центр. Бывшая насосная станция © Andres Lejona
Национальный мультимедийный центр. Бывшая насосная станция © Andres Lejona
Национальный мультимедийный центр. Бывшая насосная станция © Andres Lejona
Национальный мультимедийный центр. Бывшая насосная станция © Andres Lejona
Национальный мультимедийный центр. Бывшая насосная станция © Andres Lejona
Национальный мультимедийный центр. Вид станции и башни до реконструкции © Romain Girtgen
Национальный мультимедийный центр. Вид станции и башни до реконструкции © Romain Girtgen
Национальный мультимедийный центр © kaell architecte, Atelier d'architecture Jim Clemes
Национальный мультимедийный центр © kaell architecte, Atelier d'architecture Jim Clemes
Национальный мультимедийный центр © kaell architecte, Atelier d'architecture Jim Clemes
Национальный мультимедийный центр © kaell architecte, Atelier d'architecture Jim Clemes
Национальный мультимедийный центр © kaell architecte, Atelier d'architecture Jim Clemes
Национальный мультимедийный центр © kaell architecte, Atelier d'architecture Jim Clemes