Размещено на портале Архи.ру (www.archi.ru)

30.07.2013

Метафизическая белизна

Нина Фролова
Объект:
Церковь Санкт-Мориц – реконструкция
Адрес:
Германия, None, Аугсбург.

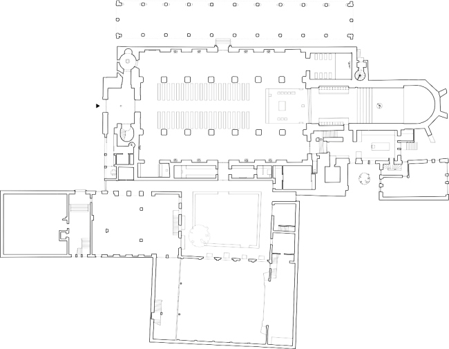
Джон Поусон реконструировал в Аугсбурге средневековую церковь Санкт-Мориц.

Церковь Санкт-Мориц - реконструкция © Gilbert McCarragher
Церковь Санкт-Мориц - реконструкция © Gilbert McCarragher

Основанная еще в 1019 романская церковь была дважды перестроена в готическую эпоху, а затем – в стиле барокко в начале 18 в. В 1944 она очень сильно пострадала от бомбежки, и после войны ее восстановил Доминик Бём (крупнейший немецкий архитектор культовых построек 1-й половины 20 в., отец Готтфрида Бёма), однако его сдержанный, но выразительный замысел был к началу 21 в. сильно искажен позднейшими наслоениями.
Церковь Санкт-Мориц - реконструкция © Gilbert McCarragher
Церковь Санкт-Мориц - реконструкция © Gilbert McCarragher

В 2007 церковная община избавилась от большинства лишних деталей в ходе «визуального поста» (арт-проект Void), но само сооружение также нуждалось в обновлении, и прихожане пригласили к сотрудничеству Джона Поусона, автора одной из замечательных культовых построек начала 21 в. – монастыря Нови Двур в Чехии.
Церковь Санкт-Мориц - реконструкция © Gilbert McCarragher
Церковь Санкт-Мориц - реконструкция © Gilbert McCarragher

Как и чешском проекте, Поусон выбрал для Санкт-Мориц белый цвет: эта строгость, по мнению заказчиков, подчеркивает высокое назначение церкви на фоне распространенных сейчас «уютных» храмов. Пол выстлан плитами светло-бежевого португальского известняка, из него же сделан и алтарь. Окна хора закрыты тонкими пластинами оникса, наклеенными на стекло: сквозь них проникает рассеянный свет.
Церковь Санкт-Мориц - реконструкция. Фото с сайта detail-online.com
Церковь Санкт-Мориц - реконструкция. Фото с сайта detail-online.com

В темное время суток интерьер освещается светодиодами, установленными в апсиде, у основания колонн нефа и в куполах.
Церковь Санкт-Мориц - реконструкция. Фото с сайта detail-online.com
Церковь Санкт-Мориц - реконструкция. Фото с сайта detail-online.com

Контрастируют со светлым интерьером скамьи из темного мореного дерева. О барочном прошлом церкви напоминают окна сложной формы и скульптура работы видных мастеров 17 в. Георга Петеля и Эрготта Бернхарда Бендля: эти экспрессивные статуи выглядят в обновленном идеальном пространстве церкви совсем иначе, чем некогда в пышно декорированном интерьере.
Церковь Санкт-Мориц - реконструкция. Фото с сайта detail-online.com
Церковь Санкт-Мориц - реконструкция. Фото с сайта detail-online.com
Церковь Санкт-Мориц - реконструкция. Фото с сайта detail-online.com
Церковь Санкт-Мориц - реконструкция. Фото с сайта detail-online.com
Церковь Санкт-Мориц - реконструкция. Фото с сайта detail-online.com
Церковь Санкт-Мориц - реконструкция. Фото с сайта detail-online.com
Церковь Санкт-Мориц - реконструкция. Фото с сайта detail-online.com
Церковь Санкт-Мориц - реконструкция. Фото с сайта detail-online.com
Церковь Санкт-Мориц - реконструкция. Фото с сайта detail-online.com
Церковь Санкт-Мориц - реконструкция. Фото с сайта detail-online.com
Церковь Санкт-Мориц - реконструкция. Фото с сайта detail-online.com
Церковь Санкт-Мориц - реконструкция. Фото с сайта detail-online.com
Церковь Санкт-Мориц - реконструкция © Gilbert McCarragher
Церковь Санкт-Мориц - реконструкция © Gilbert McCarragher
Церковь Санкт-Мориц - реконструкция © Gilbert McCarragher
Церковь Санкт-Мориц - реконструкция © Gilbert McCarragher
Церковь Санкт-Мориц - реконструкция © Gilbert McCarragher
Церковь Санкт-Мориц - реконструкция © Gilbert McCarragher
Церковь Санкт-Мориц - реконструкция © Gilbert McCarragher
Церковь Санкт-Мориц - реконструкция © Gilbert McCarragher
Церковь Санкт-Мориц - реконструкция. Фото с сайта detail-online.com
Церковь Санкт-Мориц - реконструкция. Фото с сайта detail-online.com
Церковь Санкт-Мориц - реконструкция. Фото с сайта detail-online.com
Церковь Санкт-Мориц - реконструкция. Фото с сайта detail-online.com
Церковь Санкт-Мориц - реконструкция © Gilbert McCarragher
Церковь Санкт-Мориц - реконструкция © Gilbert McCarragher
Церковь Санкт-Мориц - реконструкция. Фото с сайта detail-online.com
Церковь Санкт-Мориц - реконструкция. Фото с сайта detail-online.com
Церковь Санкт-Мориц - реконструкция © Gilbert McCarragher
Церковь Санкт-Мориц - реконструкция © Gilbert McCarragher
Церковь Санкт-Мориц - реконструкция © Gilbert McCarragher
Церковь Санкт-Мориц - реконструкция © Gilbert McCarragher
Церковь Санкт-Мориц - реконструкция © Gilbert McCarragher
Церковь Санкт-Мориц - реконструкция © Gilbert McCarragher
Церковь Санкт-Мориц - реконструкция. Фото с сайта detail-online.com
Церковь Санкт-Мориц - реконструкция. Фото с сайта detail-online.com
Церковь Санкт-Мориц - реконструкция. Фото с сайта detail-online.com
Церковь Санкт-Мориц - реконструкция. Фото с сайта detail-online.com
Церковь Санкт-Мориц - реконструкция © Gilbert McCarragher
Церковь Санкт-Мориц - реконструкция © Gilbert McCarragher
Церковь Санкт-Мориц - реконструкция © Gilbert McCarragher
Церковь Санкт-Мориц - реконструкция © Gilbert McCarragher
Церковь Санкт-Мориц - реконструкция. Фото с сайта detail-online.com
Церковь Санкт-Мориц - реконструкция. Фото с сайта detail-online.com
Церковь Санкт-Мориц. Вид до реконструкции. 2007. Фото с сайта moritzkirche.de
Церковь Санкт-Мориц. Вид до реконструкции. 2007. Фото с сайта moritzkirche.de
Церковь Санкт-Мориц - реконструкция © John Pawson
Церковь Санкт-Мориц - реконструкция © John Pawson
Церковь Санкт-Мориц - реконструкция © John Pawson
Церковь Санкт-Мориц - реконструкция © John Pawson
Церковь Санкт-Мориц - реконструкция © John Pawson
Церковь Санкт-Мориц - реконструкция © John Pawson
Церковь Санкт-Мориц - реконструкция © John Pawson
Церковь Санкт-Мориц - реконструкция © John Pawson