Размещено на портале Архи.ру (www.archi.ru)

22.07.2013

Квартет в исполнении трио

Настя Тарасова
Объект:
Europaallee 21 - корпус Eisgasse House
Адрес:
Швейцария, None, Цюрих.
Europaallee 21 - корпус Europaallee House
Адрес:
Швейцария, None, Цюрих.
Europaallee 21 - корпус Freischützgasse House
Адрес:
Швейцария, None, Цюрих.
Europaallee 21 - корпус Lagerstrasse House
Адрес:
Швейцария, None, Цюрих.
Мастерская:
Gigon/Guyer

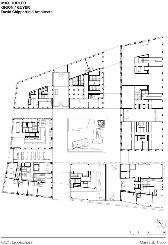
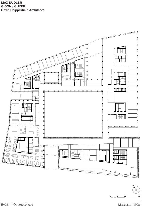
Макс Дудлер, Дэвид Чипперфильд и бюро Gigon/Guyer построили в Цюрихе новую штаб-квартиру крупнейшего швейцарского банка UBS.

Europaallee 21 - корпус Europaallee House © Stefan Müller
Europaallee 21 - корпус Europaallee House © Stefan Müller

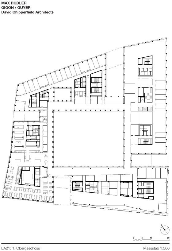
В прошлом году Архи.ру писал о сдаче первой очереди застройки нового квартала Europaallee, расположенного за Центральным вокзалом города. Офисный комплекс UBS, названный Europaallee 21 – это следующий этап реализации квартала, так называемая стройплощадка С.
Europaallee 21 - корпус Europaallee House © Stefan Müller
Europaallee 21 - корпус Europaallee House © Stefan Müller

В случае с первой «стройплощадкой» за все постройки отвечал Макс Дудлер. На этот раз мы видим результат его тесного сотрудничества с двумя другими архитектурными бюро – Дэвида Чипперфильда (корпус Haus Freischützgasse) и Gigon/Guyer (Haus Lagerstrasse). Однако и здесь Дудлер преобладает: он спроектировал для UBS целых два здания, Haus Europaallee и Haus Eisgasse.
Europaallee 21 - корпус Europaallee House © Stefan Müller
Europaallee 21 - корпус Europaallee House © Stefan Müller

Важно отметить, что в конкурсе на проект Europaallee 21 Дудлер получил первое место и мог заняться им один, но убедил заказчиков привлечь к проектированию разделивших вторую премию коллег.
Europaallee 21 - корпус Europaallee House © Stefan Müller
Europaallee 21 - корпус Europaallee House © Stefan Müller

Четыре постройки объединены общим просторным двором, в который можно попасть с окружающих комплекс четырех улиц, упомянутых в названиях корпусов. Эти корпуса соединены надземными переходами, позволяющими обойти комплекс по кругу, не выходя наружу. Также эти переходы образуют ведущие во двор «арки».
 
Europaallee 21 - корпус Europaallee House © Stefan Müller
Europaallee 21 - корпус Europaallee House © Stefan Müller

«Суровый стиль» квартала, проявившийся уже в застройке первой очереди, поддержан и тут. Тем не менее, здания отличаются друг от друга по облику, хотя и объединены взаимоотношением цокольных этажей и остальной части фасада: во всех них первый ярус получил иной ритм, чем верхние этажи.
Europaallee 21 - корпус Europaallee House © Stefan Müller
Europaallee 21 - корпус Europaallee House © Stefan Müller

В 8-этажном корпусе Haus Freischützgasse бюро Чипперфильда панели простенков расположены под углом к фасаду, причем их наклон на разных этажах направлен в противоположные стороны. За счет этого приема создается игра открытости и закрытости, тяжести и легкости при смене освещения в течение дня.
Europaallee 21 - корпус Eisgasse House © Stefan Müller
Europaallee 21 - корпус Eisgasse House © Stefan Müller

Офис Lagerstrasse Haus, выстроенный Gigon/Guyer, получил двухслойный фасад: внутренняя часть состоит из панелей стекла и металла, а наружная оболочка – из сплошного остекления со вставками из блестящей металлизированной ткани. Кроме того, панели оболочки помещены под углом друг к другу, отчего она мерцает при любом освещении. Это здание, пожалуй, меньше всего походит на соседние постройки.
Europaallee 21 - корпус Eisgasse House © Stefan Müller
Europaallee 21 - корпус Eisgasse House © Stefan Müller

Оба корпуса Макса Дудлера выглядят более суровыми, чем работы коллег, хотя такая тяжеловесность – его «фирменный стиль»: «Бюро здесь верно само себе, поскольку это и есть наша идентичность», – подчеркнул в интервью архитектор.
Europaallee 21 - корпус Eisgasse House © Stefan Müller
Europaallee 21 - корпус Eisgasse House © Stefan Müller

Окончательное завершение строительства квартала Europaallee намечено на 2020. Туда войдут 6 000 рабочих мест, 2 500 учебных помещений, 300 квартир, гостиница, магазины, рестораны и другие досуговые учреждения.
Europaallee 21 - корпус Eisgasse House © Stefan Müller
Europaallee 21 - корпус Eisgasse House © Stefan Müller
Europaallee 21 - корпус Freischützgasse House © Stefan Müller
Europaallee 21 - корпус Freischützgasse House © Stefan Müller
Europaallee 21 - корпус Freischützgasse House © Stefan Müller
Europaallee 21 - корпус Freischützgasse House © Stefan Müller
Europaallee 21 - корпус Freischützgasse House © Stefan Müller
Europaallee 21 - корпус Freischützgasse House © Stefan Müller
Europaallee 21 - корпус Freischützgasse House © Stefan Müller
Europaallee 21 - корпус Freischützgasse House © Stefan Müller
Europaallee 21 - корпус Freischützgasse House © Stefan Müller
Europaallee 21 - корпус Freischützgasse House © Stefan Müller
Europaallee 21 - корпус Freischützgasse House © Stefan Müller
Europaallee 21 - корпус Freischützgasse House © Stefan Müller
Europaallee 21 - корпус Freischützgasse House © Stefan Müller
Europaallee 21 - корпус Freischützgasse House © Stefan Müller
Europaallee 21 - корпус Freischützgasse House © Stefan Müller
Europaallee 21 - корпус Freischützgasse House © Stefan Müller
Europaallee 21 - корпус Lagerstrasse House © Stefan Müller
Europaallee 21 - корпус Lagerstrasse House © Stefan Müller
Europaallee 21 - корпус Lagerstrasse House © Stefan Müller
Europaallee 21 - корпус Lagerstrasse House © Stefan Müller
Europaallee 21 - корпус Lagerstrasse House © Stefan Müller
Europaallee 21 - корпус Lagerstrasse House © Stefan Müller
Europaallee 21 - корпус Lagerstrasse House © Stefan Müller
Europaallee 21 - корпус Lagerstrasse House © Stefan Müller
Europaallee 21 - корпус Lagerstrasse House © Stefan Müller
Europaallee 21 - корпус Lagerstrasse House © Stefan Müller
Europaallee 21 - корпус Lagerstrasse House © Stefan Müller
Europaallee 21 - корпус Lagerstrasse House © Stefan Müller
Europaallee 21 - корпус Lagerstrasse House © Stefan Müller
Europaallee 21 - корпус Lagerstrasse House © Stefan Müller
Europaallee 21 © Stefan Müller
Europaallee 21 © Stefan Müller
Europaallee 21 © Stefan Müller
Europaallee 21 © Stefan Müller
Europaallee 21 © Stefan Müller
Europaallee 21 © Stefan Müller
Europaallee 21 © Max Dudler, Gigon/Guyer, David Chipperfield Architects
Europaallee 21 © Max Dudler, Gigon/Guyer, David Chipperfield Architects
Europaallee 21 © Max Dudler, Gigon/Guyer, David Chipperfield Architects
Europaallee 21 © Max Dudler, Gigon/Guyer, David Chipperfield Architects
Europaallee 21 © Max Dudler, Gigon/Guyer, David Chipperfield Architects
Europaallee 21 © Max Dudler, Gigon/Guyer, David Chipperfield Architects
Europaallee 21 © Max Dudler, Gigon/Guyer, David Chipperfield Architects
Europaallee 21 © Max Dudler, Gigon/Guyer, David Chipperfield Architects
Europaallee 21 © Max Dudler, Gigon/Guyer, David Chipperfield Architects
Europaallee 21 © Max Dudler, Gigon/Guyer, David Chipperfield Architects
Europaallee 21 © Max Dudler, Gigon/Guyer, David Chipperfield Architects
Europaallee 21 © Max Dudler, Gigon/Guyer, David Chipperfield Architects