Размещено на портале Архи.ру (www.archi.ru)

18.07.2013

Школа на площади

Объект:
Медицинская школа Лимерикского университета
Адрес:
Ирландия, None, Лимерик.
Мастерская:
Grafton

Здание Медицинской школы Лимерикского университета, построенное бюро Grafton, вошло в шорт-лист премии Стерлинга-2013.

Медицинская школа Лимерикского университета © Dennis Gilbert
Медицинская школа Лимерикского университета © Dennis Gilbert

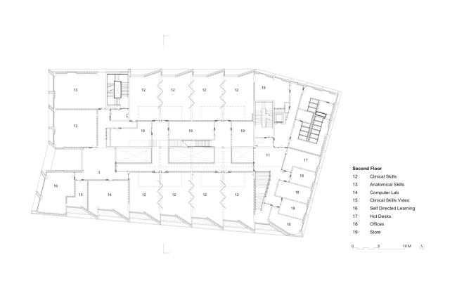
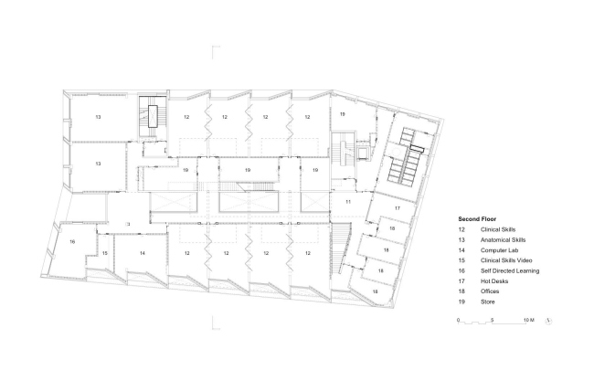
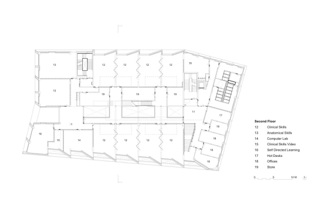
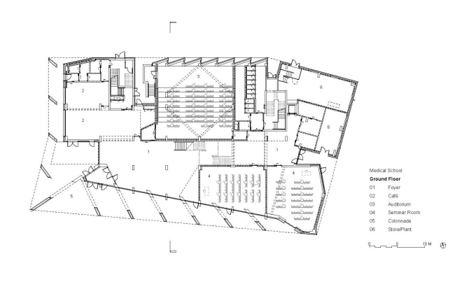
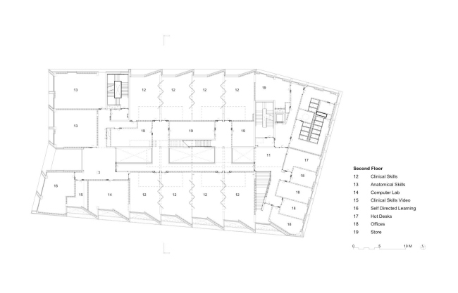
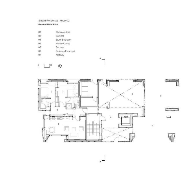
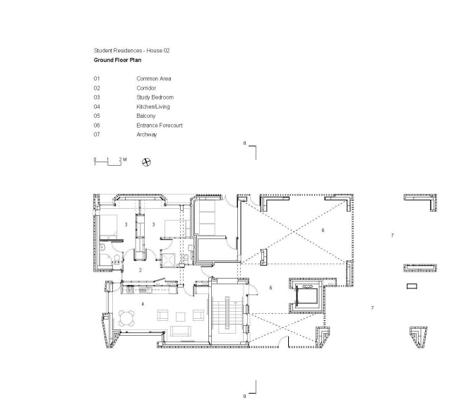
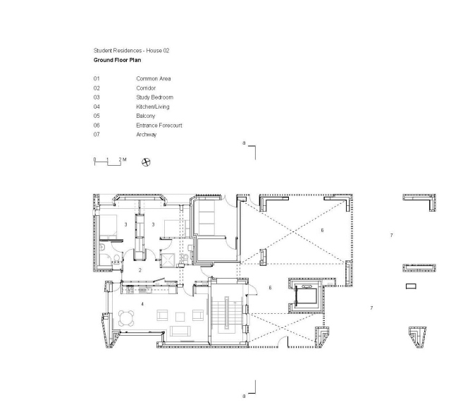
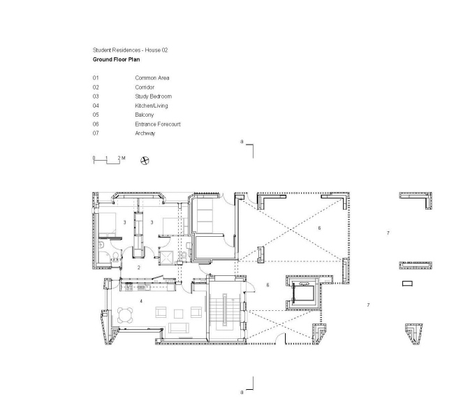
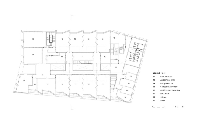
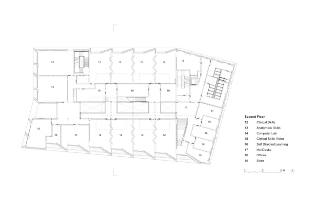
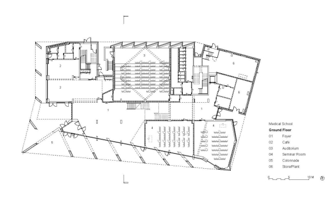
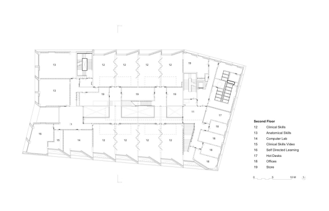
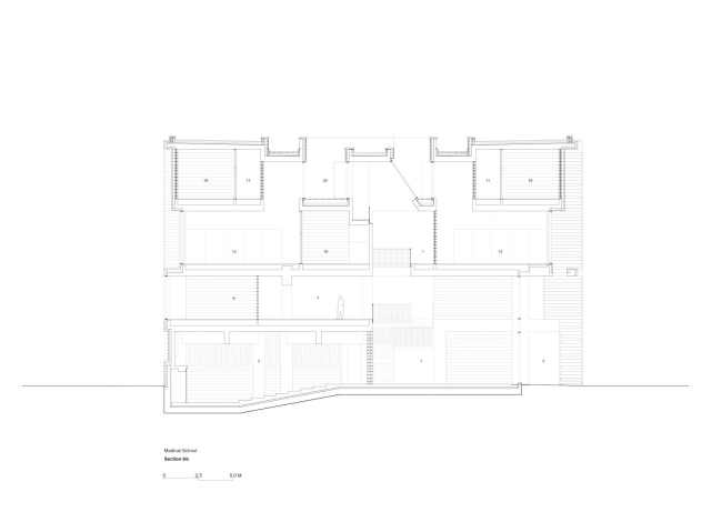
Лимерикский университет – одно из самых известных высших учебных заведений Ирландии. Его ансамбль вытянулся вдоль реки Шаннон, самой широкой и длинной в стране, и постепенно осваивает территории обоих ее берегов. На ее северном берегу, связанном с центром кампуса пешеходным мостом, и были построены Медицинская школа и три общежития для ее студентов. Перед архитекторами стояла задача не только спроектировать знаковый объем нового учебного корпуса и удобное жилье, но и детально продумать общественное пространство между ними, которое в будущем должно стать ядром новой части университетского городка. 
Медицинская школа Лимерикского университета © Dennis Gilbert
Медицинская школа Лимерикского университета © Dennis Gilbert

Новые строения были возведены по соседству с уже существующими постройками университета – спортивным центром, Ирландской всемирной академией музыки и танца и зданием факультета медицинских наук. Фактически архитекторам удалось переорганизовать генплан этой части территории вуза таким образом, что его композиционным центром стала именно новая Медицинская школа. По их собственному сравнению, остальные объемы «свободно вращаются» вокруг нее. Достичь подобного эффекта помогает пешеходная площадь, которую Grafton вписали между существующими и новыми зданиями. И если более старые университетские постройки и новые жилые корпуса окружают эту пьяццу с разных сторон, то здание Медицинской школы становится ее главной и неотъемлемой частью. Угол здания, выходящий непосредственно на площадь, на уровне первого этажа имеет открытую галерею, фактические делающую общественные зоны комплекса продолжением общегородского пространства. 
Медицинская школа Лимерикского университета © Grafton Architects
Медицинская школа Лимерикского университета © Grafton Architects

Здание школы облицовано известняком, что по замыслу архитекторов, подчеркивает его принадлежность графству Клэр, где этот камень традиционно добывается. Правда, фасады довольно сильно отличаются друг от друга: к площади новый учебный корпус обращен масштабным остеклением и словно раздвигающими его стены прямоугольными колоннами, тогда как с противоположной стороны здание выглядит куда более закрытым и скромным.
Медицинская школа Лимерикского университета © Grafton Architects
Медицинская школа Лимерикского университета © Grafton Architects

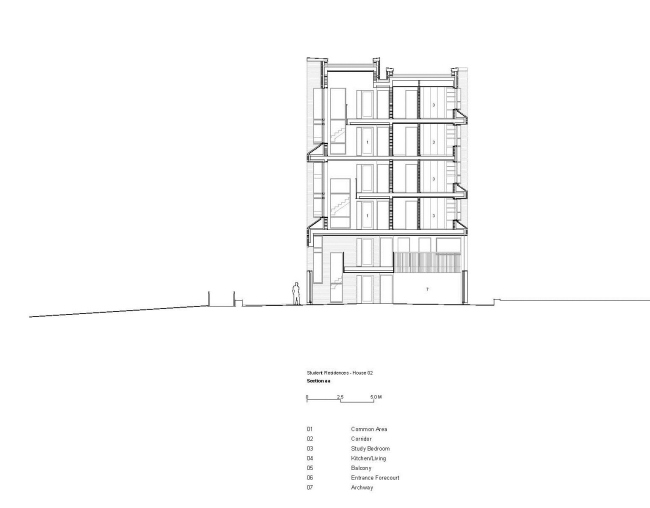
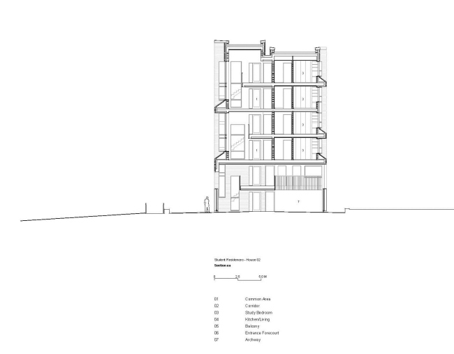
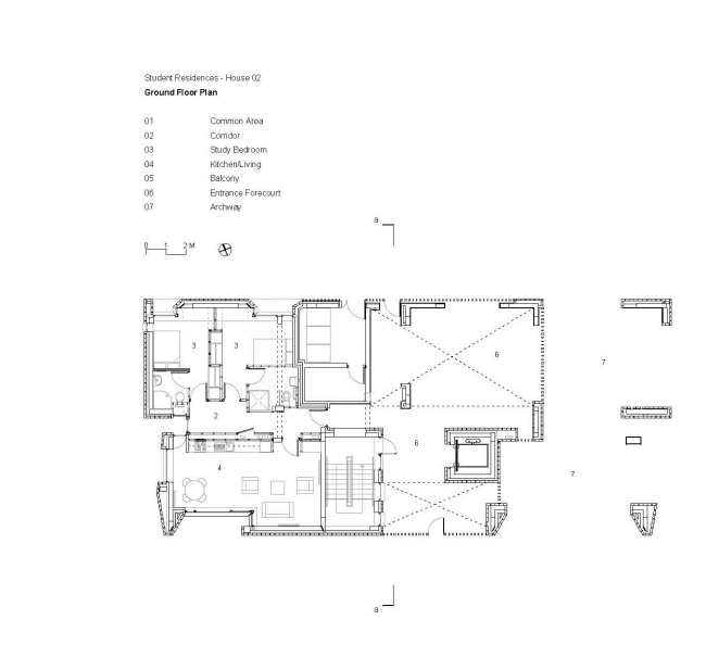
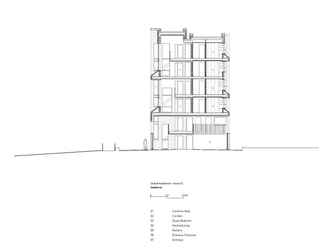
Жилые корпуса при схожей пластике (в них архитекторы также используют прямоугольные порталы и глубокие оконные ниш с наклонными откосами) за счет облицовки темным кирпичом выглядят совершенно иначе. Разные материалы, по мнению авторов, как нельзя лучше подчеркивают разное функциональное назначение этих построек: светлые стены учебного корпуса символизируют его «социальность», тогда как общежития трактованы, скорее, в русле «мой дом – моя крепость».
Медицинская школа Лимерикского университета © Dennis Gilbert
Медицинская школа Лимерикского университета © Dennis Gilbert

Имеющийся на территории небольшой перепад высот компенсируется с помощью выложенных из камня широких ступеней. Своего рода переходным звеном от новой благоустроенной территории к спортивному центру становится бетонная "пергола", которая служит автобусной остановкой и парковкой для велосипедов. А пространство между жилыми корпусами архитекторы превращают в газон, который в теплое время года может использоваться для отдыха.

А. М.
Медицинская школа Лимерикского университета © Grafton Architects
Медицинская школа Лимерикского университета © Grafton Architects
Медицинская школа Лимерикского университета © Dennis Gilbert
Медицинская школа Лимерикского университета © Dennis Gilbert
Медицинская школа Лимерикского университета © Dennis Gilbert
Медицинская школа Лимерикского университета © Dennis Gilbert
Медицинская школа Лимерикского университета © Dennis Gilbert
Медицинская школа Лимерикского университета © Dennis Gilbert
Медицинская школа Лимерикского университета © Dennis Gilbert
Медицинская школа Лимерикского университета © Dennis Gilbert
Медицинская школа Лимерикского университета © Grafton Architects
Медицинская школа Лимерикского университета © Grafton Architects
Медицинская школа Лимерикского университета © Grafton Architects
Медицинская школа Лимерикского университета © Grafton Architects
Медицинская школа Лимерикского университета © Grafton Architects
Медицинская школа Лимерикского университета © Grafton Architects
Медицинская школа Лимерикского университета © Grafton Architects
Медицинская школа Лимерикского университета © Grafton Architects
Медицинская школа Лимерикского университета © Grafton Architects
Медицинская школа Лимерикского университета © Grafton Architects
Медицинская школа Лимерикского университета © Dennis Gilbert
Медицинская школа Лимерикского университета © Dennis Gilbert
Медицинская школа Лимерикского университета © Dennis Gilbert
Медицинская школа Лимерикского университета © Dennis Gilbert
Медицинская школа Лимерикского университета © Dennis Gilbert
Медицинская школа Лимерикского университета © Dennis Gilbert
Медицинская школа Лимерикского университета © Grafton Architects
Медицинская школа Лимерикского университета © Grafton Architects
Медицинская школа Лимерикского университета © Grafton Architects
Медицинская школа Лимерикского университета © Grafton Architects
Медицинская школа Лимерикского университета © Grafton Architects
Медицинская школа Лимерикского университета © Grafton Architects
Медицинская школа Лимерикского университета © Grafton Architects
Медицинская школа Лимерикского университета © Grafton Architects
Медицинская школа Лимерикского университета © Grafton Architects
Медицинская школа Лимерикского университета © Grafton Architects
Медицинская школа Лимерикского университета © Grafton Architects
Медицинская школа Лимерикского университета © Grafton Architects
Медицинская школа Лимерикского университета © Grafton Architects
Медицинская школа Лимерикского университета © Grafton Architects
Медицинская школа Лимерикского университета © Grafton Architects
Медицинская школа Лимерикского университета © Grafton Architects
Медицинская школа Лимерикского университета © Grafton Architects
Медицинская школа Лимерикского университета © Grafton Architects
Медицинская школа Лимерикского университета © Grafton Architects
Медицинская школа Лимерикского университета © Grafton Architects
Медицинская школа Лимерикского университета © Grafton Architects
Медицинская школа Лимерикского университета © Grafton Architects
Медицинская школа Лимерикского университета © Grafton Architects
Медицинская школа Лимерикского университета © Grafton Architects
Медицинская школа Лимерикского университета © Grafton Architects
Медицинская школа Лимерикского университета © Grafton Architects