Размещено на портале Архи.ру (www.archi.ru)

07.08.2013

Дом на повороте

Анна Мартовицкая
Объект:
Жилой дом №27 в поселке «Олимпийская деревня Новогорск»
Адрес:
Россия, Химки. Машкинское шоссе, микрорайон "Новогорск"
Здание КПП и службы эксплуатации поселка «Олимпийская деревня Новогорск»
Адрес:
Россия, Москва.
Мастерская:
Архитектуриум

По проекту мастерской «Архитектуриум» на Машкинском шоссе продолжается строительство «Олимпийской деревни Новогорск». В этом году в эксплуатацию сданы здание КПП и четырехэтажный жилой дом, расположенные на первой линии поселка.

Здание КПП в поселке «Олимпийская деревня Новогорск». Постройка, 2013 © Архитектуриум
Здание КПП в поселке «Олимпийская деревня Новогорск». Постройка, 2013 © Архитектуриум

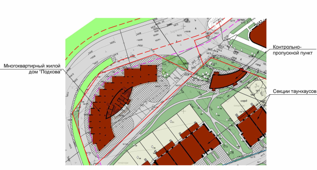
Проект «Олимпийской деревни Новогорск» стартовал в 2009 году и сегодня входит в свою финальную стадию. Уже построены и заселены таунхаусы, вовсю возводится многофункциональный комплекс с рестораном, школой и тренировочным центром олимпийской сборной России по художественной гимнастике. Закончено строительство и «въездных ворот» поселка – здания КПП, а также расположенного рядом с ним четырехэтажного жилого дома. Эти объемы, в силу своего расположения, обещают стать визитной карточкой «Новогорска», так что совсем не удивительно, что их решению архитекторы уделили особое внимание.  


Проект здания, в котором помимо охраны поселка также располагаются служба эксплуатации и офис продаж, за время работы над обликом «Олимпийской деревни» неоднократно менялся. Долгое время архитекторы трактовали его как неотъемлемую часть многофункционального комплекса – эти объемы формально были разделены дорогой, соединяющей «Новогорск» и Машкинское шоссе, но авторы использовали их близость для создания эффектной арки. Позже здание МФК существенно подросло, и арка, ставшая ему по пояс, выглядела странно, поэтому от нее отказались. Но команде Владимира Биндемана все же хотелось сохранить между этими постройками некое визуальное единство, поэтому комплекс КПП, формально отделившись от «большого брата», в своем облике развивает образно-пластическую тему, заданную главным общественным зданием «Олимпийской деревни». И если этот крупный объем архитекторы накрывают волнообразной кровлей, имитирующей ленту, то компактный КПП становится ее хвостиком или лоскутком, как будто на секунду перескочившим на эту часть участка по мановению руки гимнастки. Оттого и форма у этого небольшого строения столь «говорящая»: волна соседней кровли здесь окончательно сходит на нет, ниспадая до самой земли.
Здание КПП в поселке «Олимпийская деревня Новогорск». Постройка, 2013 © Архитектуриум
Здание КПП в поселке «Олимпийская деревня Новогорск». Постройка, 2013 © Архитектуриум
Здание КПП в поселке «Олимпийская деревня Новогорск». Постройка, 2013 © Архитектуриум
Здание КПП в поселке «Олимпийская деревня Новогорск». Постройка, 2013 © Архитектуриум

Именно кровле здесь отведена главная роль: здание имеет развитый козырек, гордо приподнятый над полностью остекленным торцом в сторону въезда и МФК, а своим противоположным концом крыша делает упругий изгиб и превращается в полноценный фасад. Выразительность этого «жеста» многократно усиливают выбранная архитекторами довольно ощутимая толщина кровли, ее темно-шоколадный цвет, а также фальц. Плюс наличие на участке нескольких взрослых деревьев заставило архитекторов прорезать в козырьке большое прямоугольное отверстие. «Несмотря на некоторое усложнение конструкции, этот проем в итоге оказался всем только на руку: и деревья удалось сохранить, и кровлю в целом довольно существенно облегчить», – поясняет Владимир Биндеман. Из тех же природоохранных соображений архитекторы немного приподняли само здание над землей, разместив его на железобетонной плите с невысокими опорами, под которой насыпали гравий.
Здание КПП в поселке «Олимпийская деревня Новогорск». Постройка, 2013 © Архитектуриум
Здание КПП в поселке «Олимпийская деревня Новогорск». Постройка, 2013 © Архитектуриум
Здание КПП в поселке «Олимпийская деревня Новогорск». Постройка, 2013 © Архитектуриум
Здание КПП в поселке «Олимпийская деревня Новогорск». Постройка, 2013 © Архитектуриум

В плане этот объем имеет дугообразную форму и своим внутренним радиусом обращен к дороге. Если не считать покатой «спины», образованной загнутым концом кровли, то все остальные его фасады полностью остеклены. Но если «въездной» торец авторы оставляют полностью прозрачным, то более длинные фасады защищены наклонными перголами. Эти элементы соединяют основание плиты и кровлю, служа одновременно и ширмой для вынесенных на фасады кондиционеров, и обособляя небольшую галерею, соединяющие разные входы в здание.
Здание КПП в поселке «Олимпийская деревня Новогорск». План © Архитектуриум
Здание КПП в поселке «Олимпийская деревня Новогорск». План © Архитектуриум
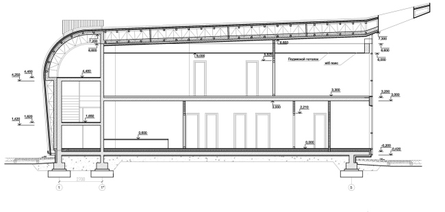
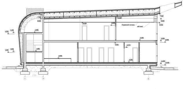
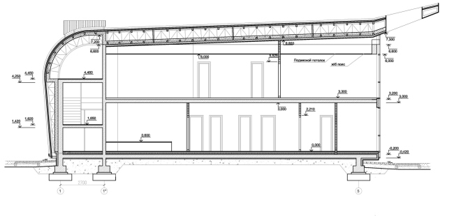
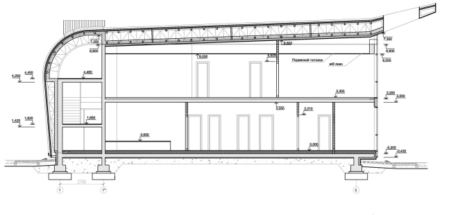
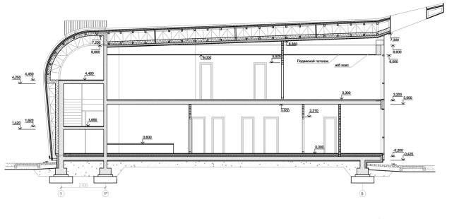
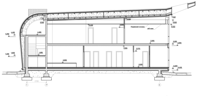
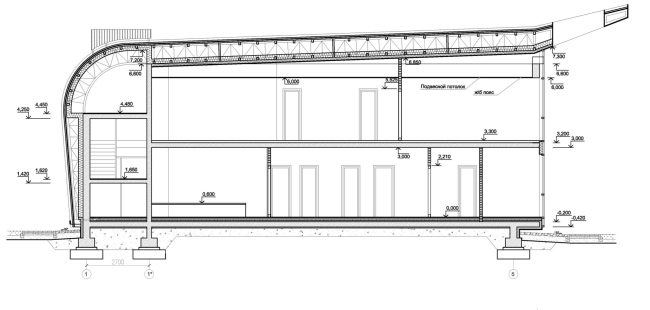
Здание КПП в поселке «Олимпийская деревня Новогорск». Разрез © Архитектуриум
Здание КПП в поселке «Олимпийская деревня Новогорск». Разрез © Архитектуриум

В основу плана жилого дома также положена дуга, повторяющая изгиб Машкинского шоссе, которое именно в этом месте делает довольно крутой поворот. Впрочем, архитекторы не хотели так уж в лоб воспроизводить конфигурацию красной линии, поэтому вывели на нее не полукруглый фасад, а многочисленные зубчики. Иными словами, сделали дом-шестеренку, а не дом-шарнир. Хотя внутреннее устройство этого здания все же больше хочется сравнить именно с шарниром: два его плавно изогнутых жилых крыла соединены центральным «сердечником» коммуникационного ядра с двумя лестницами, входным вестибюлем и грузовым лифтом.
Жилой дом №27 в поселке «Олимпийская деревня Новогорск». Постройка, 2012 © Архитектуриум
Жилой дом №27 в поселке «Олимпийская деревня Новогорск». Постройка, 2012 © Архитектуриум

Расположение на повороте повлияло не только на общее композиционное решение. Для того, чтобы новое здание не делало этот участок шоссе еще более слепым для автомобилистов, архитекторы приподняли его на опоры высотой в один этаж. Вполне логично, что образовавшееся за счет этого пространство заказчик хотел использовать для организации парковки: изначально именно это и было заложено в проект, но в разгар его согласования вышло новое СП, запрещающее размещать открытый паркинг под жилым зданием. Вариант с парковкой не удалось утвердить, даже несмотря на наличие противопожарного козырька и технического этажа над ним, так что прибавление роста оказалось на руку только проезжающим мимо автомобилистам. И, пожалуй, самому сооружению: фактически шестиэтажный, он смотрится более основательно и пропорционально, доминируя над оградой и надежно защищая расположенные за ним таунхаусы от шума трассы.
Жилой дом №27 в поселке «Олимпийская деревня Новогорск». Постройка, 2012 © Архитектуриум
Жилой дом №27 в поселке «Олимпийская деревня Новогорск». Постройка, 2012 © Архитектуриум

Расположение у дороги архитекторы компенсируют красивыми видами на плотину реки Сходни, протекающей по ту сторону шоссе. На воду, куда, по счастливому совпадению, ежевечерне садится солнце, ориентированы все квартиры дома, тогда как к таунхаусам обращены коридоры галерейного типа. Исключение составляют лишь торцевые секции, в которых проектом предусмотрены квартиры большей площади, имеющие двухстороннюю ориентацию. Зубчатая пластика главного фасада подчеркнута с помощью эркеров, облицованных темным деревом, – они заменяют жильцам балконы, что, по замыслу авторов, гарантирует сохранение фасада в его изначально задуманном виде. Из этих же соображений, кстати, заказчика удалось убедить сделать крышные наружные блоки кондиционеров – специальный канал подведен к каждой квартире, что позволит избежать появления разномастных коробов под каждым окном.
Жилой дом №27 в поселке «Олимпийская деревня Новогорск». Постройка, 2012 © Архитектуриум
Жилой дом №27 в поселке «Олимпийская деревня Новогорск». Постройка, 2012 © Архитектуриум

В своем нынешнем виде этот дом и впрямь смотрится благородно: опоры и технический этаж выкрашены светло-бежевой штукатуркой, три жилых этажа над ним облицованы темно-бежевым искусственным камнем, верхний аттиковый этаж «набран» из стеклопакетов такого же темного дерева, как и эркеры, а они, в свою очередь, напрямую перекликаются с шоколадной фальцевой кровлей. В тон дому подобран и забор: горизонтальные композитные панели максимально близки по цвету к оттенку кровли, а цветные вставки перекликаются с двумя основными цветами облицовки фасада. На повороте архитекторы «разряжают» забор до почти полной прозрачности, так что едущие по шоссе водители в этом месте видят лишь узкие яркие вставки, придающие новому комплексу дополнительную привлекательность.

Жилой дом №27 в поселке «Олимпийская деревня Новогорск». Постройка, 2012 © Архитектуриум
Жилой дом №27 в поселке «Олимпийская деревня Новогорск». Постройка, 2012 © Архитектуриум
Жилой дом №27 в поселке «Олимпийская деревня Новогорск». Постройка, 2012 © Архитектуриум
Жилой дом №27 в поселке «Олимпийская деревня Новогорск». Постройка, 2012 © Архитектуриум
Жилой дом №27 в поселке «Олимпийская деревня Новогорск». Постройка, 2012 © Архитектуриум
Жилой дом №27 в поселке «Олимпийская деревня Новогорск». Постройка, 2012 © Архитектуриум
Жилой дом №27 в поселке «Олимпийская деревня Новогорск». Постройка, 2012 © Архитектуриум
Жилой дом №27 в поселке «Олимпийская деревня Новогорск». Постройка, 2012 © Архитектуриум
Жилой дом №27 в поселке «Олимпийская деревня Новогорск». План типового этажа © Архитектуриум
Жилой дом №27 в поселке «Олимпийская деревня Новогорск». План типового этажа © Архитектуриум