|
Продолжаем публикацию проектов студентов школы МАРШ за второй семестр. Студия Владимира Плоткина
О том, как студенты МАРШа справились с темой «Долгоиграющее жилье», рассказывает руководитель студии Владимир Плоткин: «Своим студентам я предложил тему, которая называлась «Долгоиграющее жилье». Работа проходила в два этапа. Первый этап – это исследовательский модуль, за время которого студенты должны были понять и разобраться, что такое жилье, каким оно может быть и как долго может существовать, играть. Мы с моим коллегой Владимиром Юзбашевым не ставили перед учащимися никаких жестких рамок. Под термином «долгоиграние» можно было понимать абсолютно все – срок службы здания, развитие его во времени, поэтапный процесс эксплуатации, смену функций и т.д. Поначалу, когда я только назвал тему, то предполагал, что речь пойдет о возможной ассимиляции жилья во временном процессе, причем предполагал, что все внимание должно быть сконцентрировано на социальном жилье. Однако потом мы решили несколько расширить тему, но ориентироваться все-таки на жилье для обычных людей, не на элитное.
Студенты могли самостоятельно выбирать типологию. Что же касается участка, то мы предложили им две площадки на выбор, причем обе были из практики моей мастерской и располагались в пограничных зонах – между периферийной и центральной частями Москвы. В рамках полевых исследований на участки можно было выйти и ознакомиться с ситуацией. Некоторые студенты посещали площадки неоднократно. Например, Тоню Хлызову, которая несколько раз нелегально проникала на территорию закрытого участка ночью, даже приходилось освобождать из рук чересчур бдительной охраны.
Также исследовательский модуль включал несколько довольно интересных упражнений. Скажем, было задание написать легенду, сказку или эмоциональный сюжет, о том, что такое долгоиграние жилого дома. На мой взгляд, это был один из самых любопытных моментов нашей практики, и у некоторых студентов получились совершенно очаровательные истории. Были упражнения на тему анализа аналогов мирового опыта в области трансформации и метаморфоз жилого дома, мы изучали самые разные методологии и типы жилья. Я приглашал в МАРШ читать лекции российских и американских специалистов в сфере жилого строительства.
Второй этап – предполагал собственно проектирование жилья. Начинать предлагалось с разработки жилья-минимум, модуля, который мог бы существовать и изменяться в пространстве и времени. Эта ячейка и должна была лечь в основу финального проекта.
Женя Бакеева решила рассматривать тему долгоиграния несколько с другой стороны. Вместо того чтобы исследовать изменения дома во времени и пространстве, она, наоборот, решила найти самую устойчивую, постоянную форму, взяв в качестве прототипа модель маленького черного платья Коко Шанель, которое, один раз придуманное, не утратило своей актуальности и сегодня. Разработав форму – удобную, красивую и качественную, Женя предложила такую модель, когда здание, оставаясь неизменным снаружи, легко меняет свою функцию в зависимости от требований и нужд социума, времени, города. Был предложен очень рациональный конструктивный модуль, позволяющий использовать здание не только как жилье, но также как офис, музей, церковь – что угодно. В отношении чистоты идеи и предложенного подхода этот проект нам всем очень понравился.
Вечный жилой дом. Автор: Евгения Бакеева
 Вечный жилой дом. Проект Евгении Бакеевой
Генеральный план. Вечный жилой дом. Проект Евгении Бакеевой
Фасад. Вечный жилой дом. Проект Евгении Бакеевой
Интерьеры. Вечный жилой дом. Проект Евгении Бакеевой
Планы. Вечный жилой дом. Проект Евгении Бакеевой
Разрезы. Вечный жилой дом. Проект Евгении Бакеевой
Музей. Вечный жилой дом. Проект Евгении Бакеевой
Офис. Вечный жилой дом. Проект Евгении Бакеевой
Церковь. Вечный жилой дом. Проект Евгении Бакеевой
Михаил Сергеев пошел по принципу возможной трансформации внутреннего пространства жилой ячейки. У него достаточно скромное жилье с помощью детальнейшим образом разработанной системы трансформируемых модульных шкафов и перегородок можно преобразовывать в зависимости от изменений демографического состава семьи и потребностей жильцов. Более того, он разработал социально-экономическую модель: приобретая квартиру в кредит или в ипотеку, человек в продолжение своей жизни имеет возможность постепенно менять ее габариты. Пока он живет один, можно сдавать основное пространство в аренду, затем, когда он обзаводится семьей, жилое пространство можно расширить. Все это было скрупулёзно просчитано и проработано вплоть до конструкций.
Трансформируемое жилье. Автор: Михаил Сергеев
Генплан. Трансформируемое жилье. Проект Михаила Сергеева
Трансформируемое жилье. Проект Михаила Сергеева
Интерьер. Трансформируемое жилье. Проект Михаила Сергеева
Схема наполнения пространства под собственное и арендное жилье. Трансформируемое жилье. Проект Михаила Сергеева
Планы. Трансформируемое жилье. Проект Михаила Сергеева
Разрез. Трансформируемое жилье. Проект Михаила Сергеева
Шкафы-перегородки. Трансформируемое жилье. Проект Михаила Сергеева
Дмитрий Столбовой предложил тему избыточного вертикального пространства. Здание разбивается на этажи высотой порядка пяти метров, а жильцы, приобретая такие жилые ячейки, оплачивают стоимость изначально небольшой площади, но в будущем имеют возможность наращивать ее, развиваясь вверх. В этом проекте речь шла о свободной планировке в чистом виде. Были придуманы различные, достаточно гибкие фасадные модули, которые можно было использовать в зависимости от нужд собственника. Это могло быть пространство, разделенное на два этажа, квартира со вторым светом или же с антресольным этажом. Дмитрий проработал систему конструкций таким образом, чтобы жилец мог самостоятельно собрать все перекрытия и перегородки внутри своей квартиры. Были запроектированы достаточно широкие коридоры и лифты, чтобы проносить крупногабаритные строительные материалы. Проект получился стильный, подробный и с очень хорошей графикой.
Вертикальные квартиры. Автор: Дмитрий Столбовой
Вертикальные квартиры. Проект Дмитрия Столбового
Вертикальные квартиры. Автор: Дмитрий Столбовой
Вертикальные квартиры. Автор: Дмитрий Столбовой
Фасад. Вертикальные квартиры. Проект Дмитрия Столбового
План. Вертикальные квартиры. Автор: Дмитрий Столбовой
Вертикальные квартиры. Автор: Дмитрий Столбовой
Варианты трансформации жилой ячейки. Вертикальные квартиры. Проект Дмитрия Столбового
Варианты трансформации жилой ячейки. Вертикальные квартиры. Проект Дмитрия Столбового
Ася Котенко предложила проект зеленого дома. Она в максимально полном виде раскрыла идеи зеленого строительства и достаточно модной сегодня темы городского сельского хозяйства. Предполагалось, что этот дом будут населять любители сада и огорода. Вся фасадная система представляет собой ряды гидропонических грядок и клумб, часть оранжерей располагается внутри здания. Получился дом-интроверт, который работает сам на себя. В этом состояла основная идея его долгоиграния. Проект был хорошо придуман и красиво решен, может быть, только к планировочной структуре здания возникли некоторые вопросы, она показалась нам чрезмерно простой.
Дом-теплица. Автор: Ася Котенко
Участок. Дом-теплица. Проект Аси Котенко
Дом-теплица. Проект Аси Котенко
Дом-теплица. Проект Аси Котенко
Дом-теплица. Проект Аси Котенко
Устройство фасада. Дом-теплица. Проект Аси Котенко
Фасад. Дом-теплица. Проект Аси Котенко
Блокировка. Дом-теплица. Проект Аси Котенко
Еще один супер-интересный проект, вызвавший массу споров и недопониманий, предложила Тоня Хлызова. До проекта как такового здесь дело так и не дошло, процесс остановился на стадии исследовательского модуля. Но само исследование оказалось настолько захватывающим, что мы решили, что его будет более чем достаточно. Во-первых, в этой работе меня привлекла выбранная форма – совершенно невероятная, очень художественная и эмоциональная, сложившаяся из простых, но изысканных рисунков. Тоня сосредоточила свое внимание на территории промпредприятия, неприспособленного под какое- либо использование, на старых будках и сараях, на которые не один нормальный человек не обратил бы внимания. Ее философия заключается в том, что у каждого объекта есть своя собственная история и эту историю нужно сохранять в самом полном виде. Даже строение из железа и профнастила может рассматриваться как элемент жилья – скажем, жилище богемного художника или философа, Диогена наших дней. Такое жилье может развиваться, перевоплощаясь в нечто невероятно красивое. Все это показано на примере пространства Art-play, в обустройстве которого Тоня активно участвует.
Долгоиграющее жилье. Автор: Антонина Хлызова
Аналогия дома с книгами. Долгоиграющее жилье. Проект Антонины Хлызовой
Указатель смыслов и технических подробностей сохранения старых домов и маршрутов. Долгоиграющее жилье. Автор: Антонина Хлызова
Дома под снос. Долгоиграющее жилье. Проект Антонины Хлызовой
Общий вид. Долгоиграющее жилье. Проект Антонины Хлызовой
Сценарии использования промышленных объектов. Долгоиграющее жилье. Проект Антонины Хлызовой
Сценарии использования существующих объектов. Долгоиграющее жилье. Проект Антонины Хлызовой
Долгоиграющее жилье. Проект Антонины Хлызовой
Старое / Новое. Долгоиграющее жилье. Проект Антонины Хлызовой
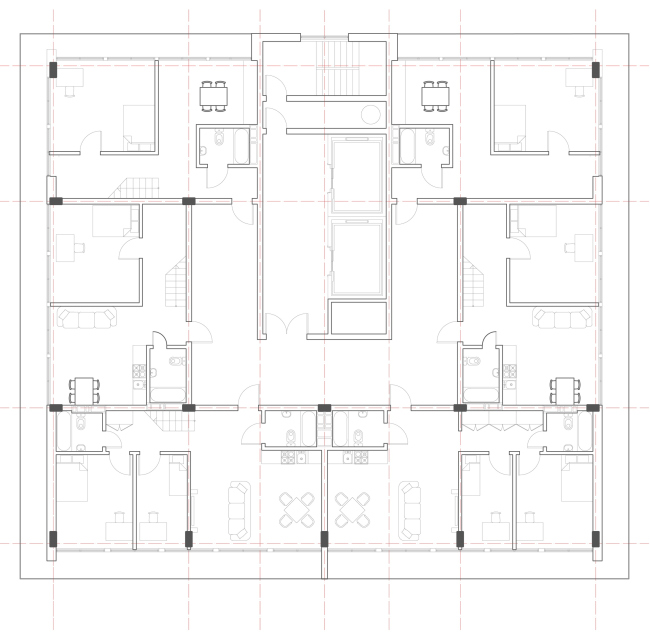
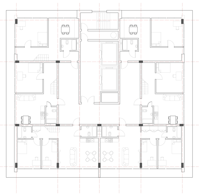
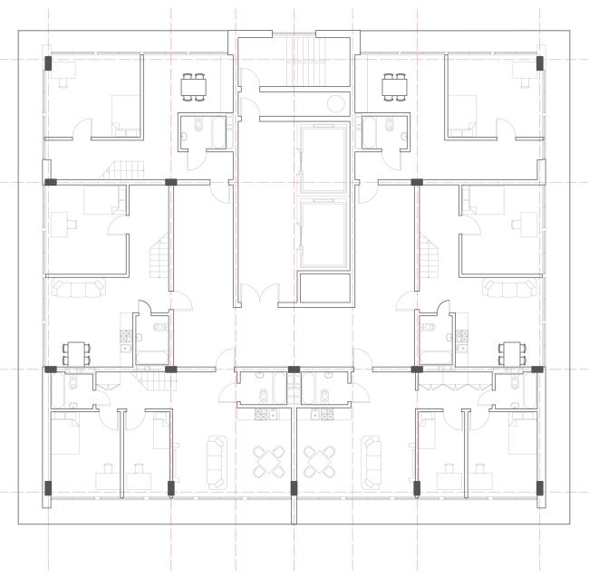
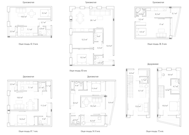
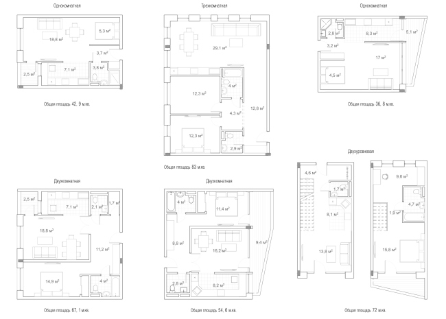
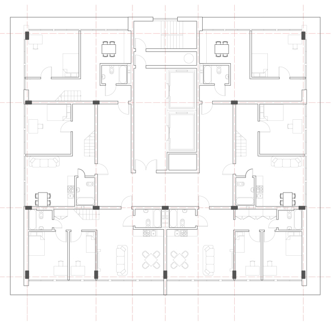
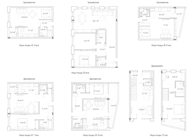
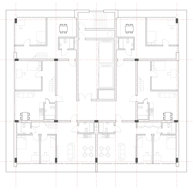
У Егора Королева был, наверное, самый нелюбопытный проект. Однако он продемонстрировал очень уверенный подход. Егор – студент с очень сильным креативным началом, и от него мы ждали каких-то фантазийных вещей. Этот студент написал, пожалуй, самую интересную сказку о «долгоигрании» – лиричную и красивую. Но в самом проекте решил быть рационалистом, для него настоящее долгоиграние – это правильно и качественно сделанное жилье, хорошо нарисованное, спропорционированное. Это квартал с удобными дворами, самодостаточный в силу своей качественности. А качество гарантирует его долгую жизнь. Егор также предложил использовать это жилье как арендное, но, на мой взгляд, форма собственности никак не влияет на типологию. В результате получился проект, который хоть сейчас бери и выноси на архсовет. Это очень профессиональная и взрослая работа.
Кварталы арендного жилья. Автор: Егор Королев
Участок. Кварталы арендного жилья. Проект Егора Королева
Кварталы арендного жилья. Проект Егора Королева
Кварталы арендного жилья. Проект Егора Королева
Фасады. Кварталы арендного жилья. Проект Егора Королева
Функциональная схема. Кварталы арендного жилья. Проект Егора Королева
План 2-го этажа. Кварталы арендного жилья. Проект Егора Королева
Разрез. Кварталы арендного жилья. Проект Егора Королева
Кварталы арендного жилья. Проект Егора Королева
Меня самого очень интересовала эта тема и я, честно говоря, думал (хотя мне меньше всего этого хотелось), что большинство студентов будут работать с открытыми планировками, предлагать их трансформации и перепланировки. Но лично для меня это очень спорная тема, которая много изучалась и исследовалась. Мне хотелось увидеть другие подходы, иное видение. Наверное, поэтому понравился проект Жени Бакеевой, ее точно выраженное предложение – простое и одновременно универсальное: уверенная оболочка и разные сценарии ее использования. Здесь вспоминаются, ставшие нынче элитными районы нью-йоркского Сохо. Сначала это было совершенно маргинальное место, заводские постройки табачной фабрики. Потом туда заселился богемный народ – художники и дизайнеры, из-за чего место становилось все моднее и дороже. Затем у зданий появилась другая функция, на месте прома возникли дорогие лофты, на месте дешевых студий художников – дорогие художественные галереи и магазины. Никакого сценария подобного развития во времени у этого района, конечно, не было. Но были качественные и прочные здания, построенные на века.
Для студентов тема была очень сложной. Она сложная сама по себе. Я знаю по собственному опыту, что создать интересное жилье – невероятно трудно. Его очень мало в мире, а в России и вовсе нет. За всю новейшую историю последних 30–40 лет у нас не было построено ни одного новаторского с точки зрения типологии жилого дома. Это парадоксально и удивительно при тех возможностях и тех объемах строительства, которые у нас есть. А ведь социальное жилье дает колоссальные возможности фантазировать, предлагать невероятные модели. Все мы восхищаемся архитектурой Голландии, а это и есть эксперименты с социальным и недорогим жильем, с различными пространственными системами, типологиями квартир, схемами взаимодействия. У нас же всегда стандартный типологический набор. Малейшая попытка применить что-то новое сталкивается с противодействием заказчика, якобы знающего все про востребованность рынка жилья, и к сожалению, скучного внутреннего контроллера внутри нас самих: мол, это не та тема, где можно себя художественно реализовать, про жилье все и всё знают. Найти здесь новый импульс трудно, но одновременно безумно интересно. Мне кажется, что я изначально смог зажечь этим студентов, возбудить в них интерес придумать новую модель жилья и версию ее реализации.
И надо сказать, что все студенты себя очень хорошо проявили, помимо названных работ было много других любопытных проектов. Например, был очень необычный и очень женский проект дома для разведенных людей, где созданы все условия, чтобы наладить свою личную жизнь. Была модель изначально формируемого кондоминиума, когда жильцы подбирают себе соседей еще до начала строительства и другие.
|