Размещено на портале Архи.ру (www.archi.ru)

01.07.2013

Янтарное око

Объект:
Комплекс Emporia
Адрес:
Швеция, None, Мальмё.

В шведском Мальмё архитектор Герт Вингорд построил многофункциональный комплекс Emporia, главный фасад которого напоминает оплавившийся слиток янтаря.

Многофункциональный комплекс Emporia © Tord-Rikard Söderström
Многофункциональный комплекс Emporia © Tord-Rikard Söderström

Emporia был построен в рамках проекта комплексной реновации района Хилли (Hyllie), что на юго-западе Мальмё. Когда-то эта часть города считалась практически окраиной, однако строительство подземного скоростного тоннеля Citytunneln ощутимо приблизило его к историческому центру, и теперь Хилли активно застраивается современными жилыми и офисными комплексами. 

Многофункциональный комплекс Emporia © Tord-Rikard Söderström
Многофункциональный комплекс Emporia © Tord-Rikard Söderström

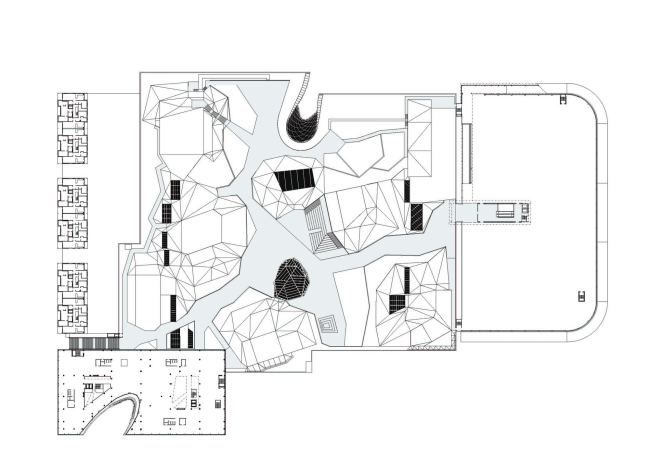
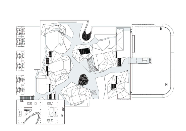
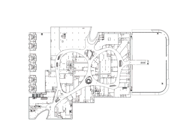
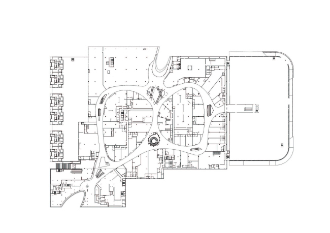
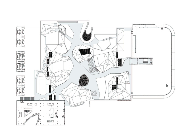
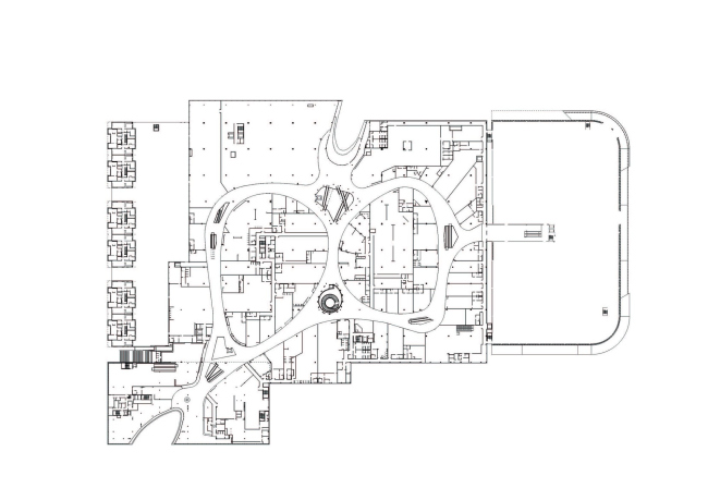
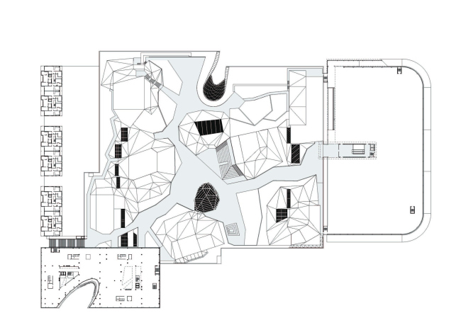
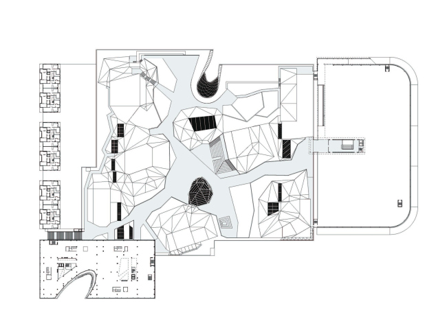
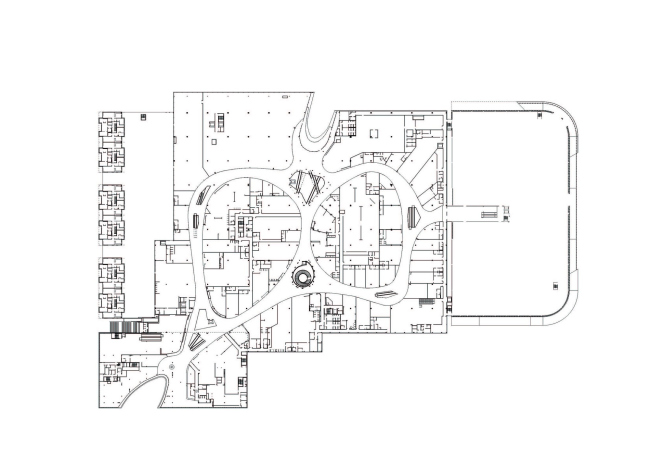
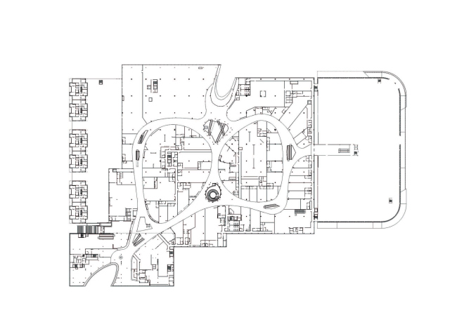
Занимая ключевое место на перекрестке двух самых активных улиц района, Emporia, чья площадь составляет 27 тысяч м2, вобрал в себя все функции – здесь есть и квартиры, и рабочие места, и торговый центр, и многочисленные кафе с ресторанами, и, конечно, вместительный паркинг. Но главное, новое здание задает масштаб и лицо всего района – проектируя угловой объем, архитектор намеренно придал ему необычную форму, способную привлечь в новый комплекс большое число горожан и стать визитной карточкой обновляемого  Хилли. 

Многофункциональный комплекс Emporia © Tord-Rikard Söderström
Многофункциональный комплекс Emporia © Tord-Rikard Söderström

Янтарный криволинейный объем с каплевидной нишей посередине – это на самом деле лишь одно из зданий. «Око» обращено к городу и связывает панорамы центра и пролива Эресунн, а за ним разворачивается целый городок, состоящий из разновысотных построек с озелененными террасами и эффектной облицовкой из разноцветного стекла. Динамичная форма проема, по замыслу архитектора, вторит бегущим по небосклону облакам, которым не дает застояться постоянный ветер с пролива.
Многофункциональный комплекс Emporia © Tord-Rikard Söderström
Многофункциональный комплекс Emporia © Tord-Rikard Söderström

Интерьеры комплекса также решены в подчеркнуто современном и ярком ключе. Торговые павильоны скомпонованы вокруг нескольких атриумов, каждый из которых оформлен в своем собственном цвете.

А. М.
Многофункциональный комплекс Emporia © Tord-Rikard Söderström
Многофункциональный комплекс Emporia © Tord-Rikard Söderström
Многофункциональный комплекс Emporia © Tord-Rikard Söderström
Многофункциональный комплекс Emporia © Tord-Rikard Söderström
Многофункциональный комплекс Emporia © Tord-Rikard Söderström
Многофункциональный комплекс Emporia © Tord-Rikard Söderström
Многофункциональный комплекс Emporia © Tord-Rikard Söderström
Многофункциональный комплекс Emporia © Tord-Rikard Söderström
Многофункциональный комплекс Emporia © Tord-Rikard Söderström
Многофункциональный комплекс Emporia © Tord-Rikard Söderström
Многофункциональный комплекс Emporia © Tord-Rikard Söderström
Многофункциональный комплекс Emporia © Tord-Rikard Söderström
Многофункциональный комплекс Emporia © Tord-Rikard Söderström
Многофункциональный комплекс Emporia © Tord-Rikard Söderström
Многофункциональный комплекс Emporia © Tord-Rikard Söderström
Многофункциональный комплекс Emporia © Tord-Rikard Söderström
Многофункциональный комплекс Emporia © Tord-Rikard Söderström
Многофункциональный комплекс Emporia © Tord-Rikard Söderström
Многофункциональный комплекс Emporia © Tord-Rikard Söderström
Многофункциональный комплекс Emporia © Tord-Rikard Söderström
Многофункциональный комплекс Emporia © Tord-Rikard Söderström
Многофункциональный комплекс Emporia © Tord-Rikard Söderström
Многофункциональный комплекс Emporia © Tord-Rikard Söderström
Многофункциональный комплекс Emporia © Tord-Rikard Söderström
Многофункциональный комплекс Emporia © Tord-Rikard Söderström
Многофункциональный комплекс Emporia © Tord-Rikard Söderström
Многофункциональный комплекс Emporia © Tord-Rikard Söderström
Многофункциональный комплекс Emporia © Tord-Rikard Söderström
Многофункциональный комплекс Emporia © Tord-Rikard Söderström
Многофункциональный комплекс Emporia © Tord-Rikard Söderström
Многофункциональный комплекс Emporia © Tord-Rikard Söderström
Многофункциональный комплекс Emporia © Tord-Rikard Söderström
Многофункциональный комплекс Emporia ©  Wingårdhs
Многофункциональный комплекс Emporia © Wingårdhs
Многофункциональный комплекс Emporia ©  Wingårdhs
Многофункциональный комплекс Emporia © Wingårdhs
Многофункциональный комплекс Emporia ©  Wingårdhs
Многофункциональный комплекс Emporia © Wingårdhs
Многофункциональный комплекс Emporia ©  Wingårdhs
Многофункциональный комплекс Emporia © Wingårdhs
Многофункциональный комплекс Emporia ©  Wingårdhs
Многофункциональный комплекс Emporia © Wingårdhs