Размещено на портале Архи.ру (www.archi.ru)

27.06.2013

Вулканические дома

Объект:
Комплекс вилл Jeju Ball
Адрес:
Южная Корея, None,

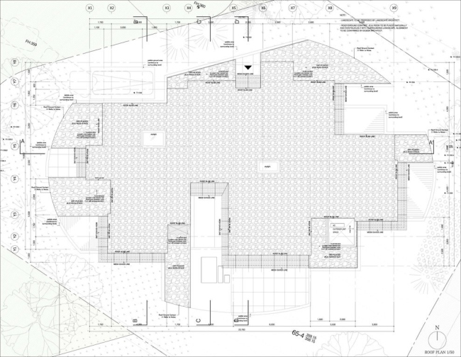
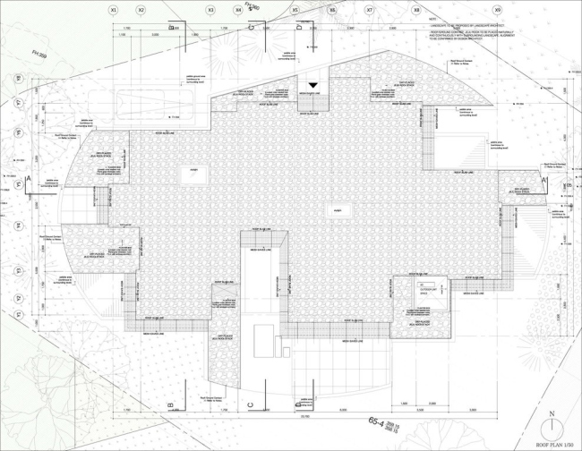
На острове Чеджу Кенго Кума построил комплекс вилл, кровли которых покрыты необработанными камнями.

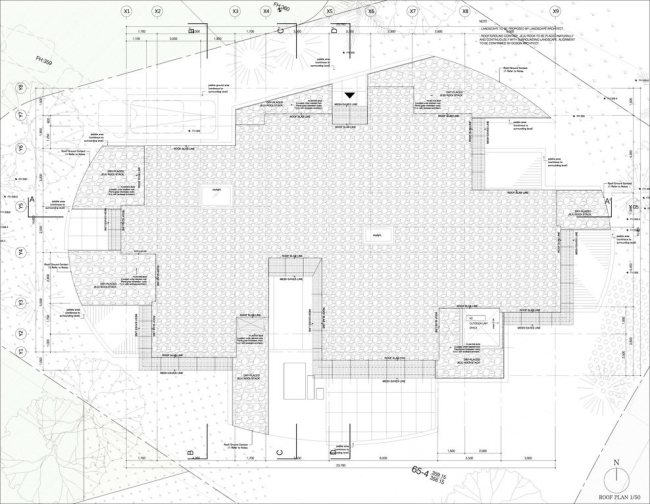
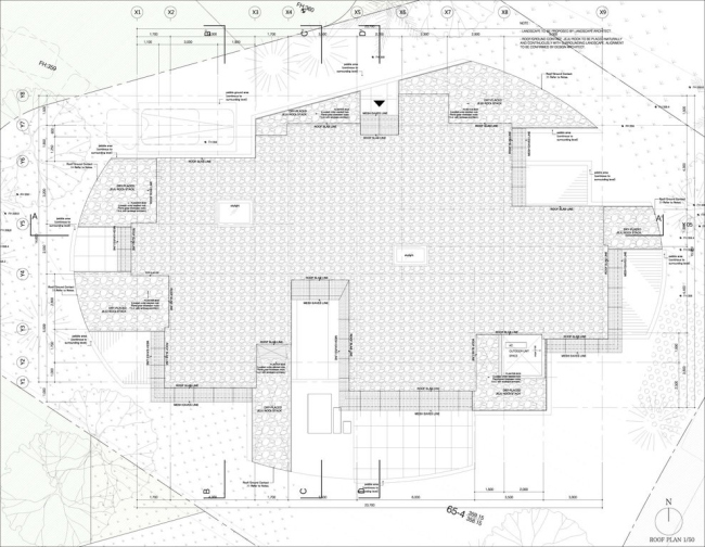
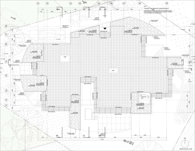
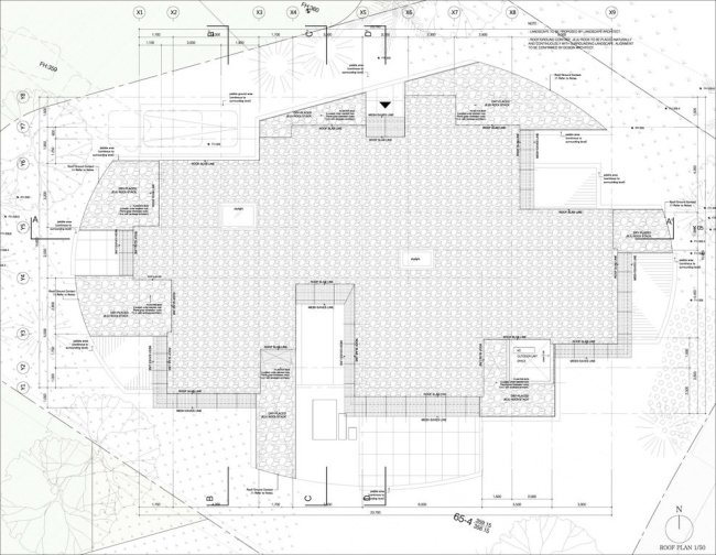
Жилой комплекс Jeju Ball © Kengo Kuma & Associates
Жилой комплекс Jeju Ball © Kengo Kuma & Associates
На строительство столь необычных домов архитектора вдохновил пейзаж острова - одной из главных природных достопримечательностей Южной Кореи. Холмистый рельеф вулканического происхождения и бессчетные россыпи обломков черной пористой лавы так впечатлили Кенго Куму, что он, по его собственным словам, только и ждал случая пересказать эту красоту языком архитектуры. Такой случай представился в 2009, когда компания Lotte Jeju Resort заказала ему строительство небольшого поселка вилл для сдачи в аренду.
Жилой комплекс Jeju Ball © Kengo Kuma & Associates
Жилой комплекс Jeju Ball © Kengo Kuma & Associates

Стремясь к сходству с холмами из валунов, типичными для Чеджу, Кенго Кума спроектировал одноэтажные объемы с скругленными кровлями, отдельные скаты которых достают до земли. Все кровли представляют собой решетку из дерева, ячейки которой заполнены камнями. Для того, чтобы уменьшить нагрузку на несущие конструкции, Кума отдает предпочтение сложным изрезанным планам, фактически дробя каждый дом на несколько почти независимых объемов.
Жилой комплекс Jeju Ball © Kengo Kuma & Associates
Жилой комплекс Jeju Ball © Kengo Kuma & Associates

Часть несущих стен выполнена из такого же вулканического камня: они принимают на себя основной вес кровли; также для ограждающих конструкций использованы дерево и стекло. Масштабное остекление позволяет наполнить виллы дневным светом и сделать границу между жильем и окружающим пейзажем почти условной.

А. М.
Жилой комплекс Jeju Ball © Kengo Kuma & Associates
Жилой комплекс Jeju Ball © Kengo Kuma & Associates
Жилой комплекс Jeju Ball © Kengo Kuma & Associates
Жилой комплекс Jeju Ball © Kengo Kuma & Associates
Жилой комплекс Jeju Ball © Kengo Kuma & Associates
Жилой комплекс Jeju Ball © Kengo Kuma & Associates
Жилой комплекс Jeju Ball © Kengo Kuma & Associates
Жилой комплекс Jeju Ball © Kengo Kuma & Associates
Жилой комплекс Jeju Ball © Kengo Kuma & Associates
Жилой комплекс Jeju Ball © Kengo Kuma & Associates
Жилой комплекс Jeju Ball © Kengo Kuma & Associates
Жилой комплекс Jeju Ball © Kengo Kuma & Associates
Жилой комплекс Jeju Ball © Kengo Kuma & Associates
Жилой комплекс Jeju Ball © Kengo Kuma & Associates
Жилой комплекс Jeju Ball © Kengo Kuma & Associates
Жилой комплекс Jeju Ball © Kengo Kuma & Associates
Жилой комплекс Jeju Ball © Kengo Kuma & Associates
Жилой комплекс Jeju Ball © Kengo Kuma & Associates
Жилой комплекс Jeju Ball © Kengo Kuma & Associates
Жилой комплекс Jeju Ball © Kengo Kuma & Associates