Размещено на портале Архи.ру (www.archi.ru)

07.06.2013

Музей для двух берегов

Нина Фролова
Объект:
Музей цивилизаций Европы и Средиземноморья – MUCEM
Адрес:
Франция, None, Марсель.

В Марселе открылся Музей цивилизаций Европы и Средиземноморья (MUCEM), построенный по проекту Руди Риччотти.

Музей цивилизаций Европы и Средиземноморья - MUCEM © Edmund Sumner
Музей цивилизаций Европы и Средиземноморья - MUCEM © Edmund Sumner
Появление MUCEM – главное, но не единственное событие года в Марселе, выполняющем роль Европейской столицы культуры–2013: кроме него, в Старом порту появились культурный центр Стефано Боэри и павильон Нормана Фостера. Но MUCEM – гораздо более масштабное начинание, задуманное еще в 2000. Это едва ли не первый в мире музей, посвященный Средиземноморью в целом – уникальному по богатству истории и культуры региону.
Музей цивилизаций Европы и Средиземноморья - MUCEM © Edmund Sumner
Музей цивилизаций Европы и Средиземноморья - MUCEM © Edmund Sumner

Музей, стоящий на бывшем пирсе J4, по замыслу архитектора, обращен к горизонту и находящейся за ним Африке и, тем самым, объединяет два берега Средиземноморья.
Музей цивилизаций Европы и Средиземноморья - MUCEM © Edmund Sumner
Музей цивилизаций Европы и Средиземноморья - MUCEM © Edmund Sumner

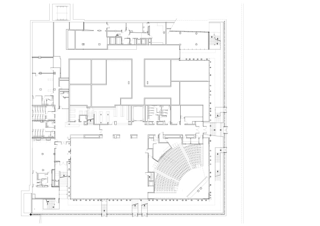
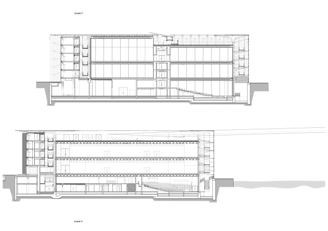
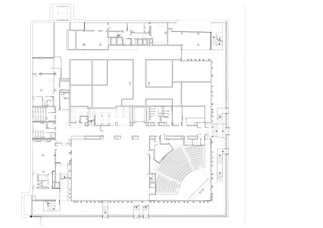
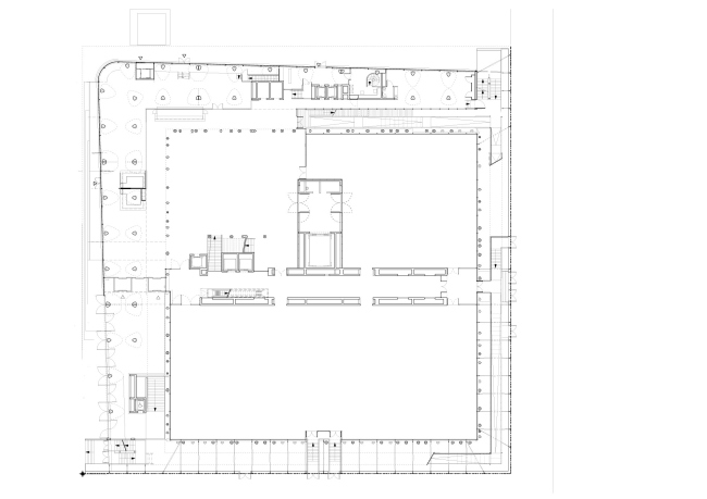
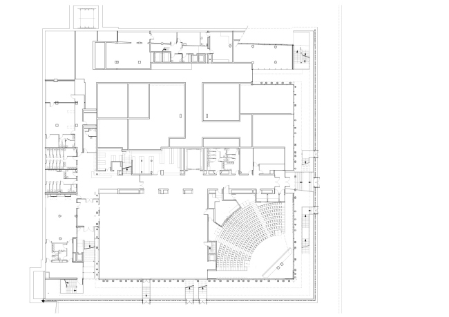
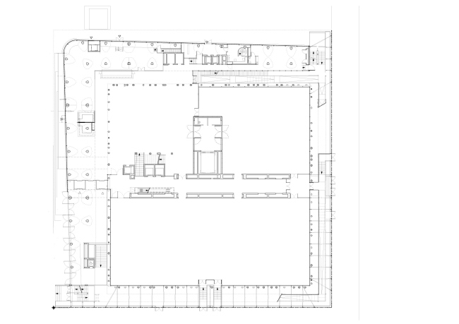
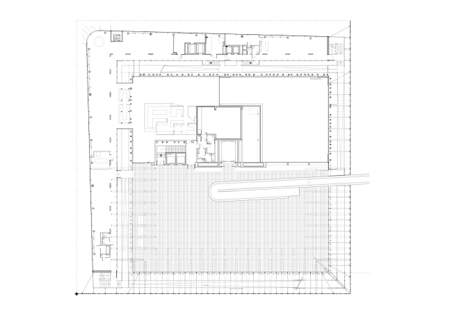
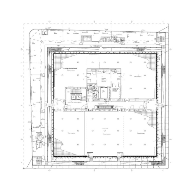
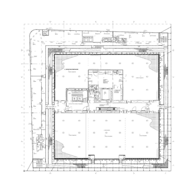
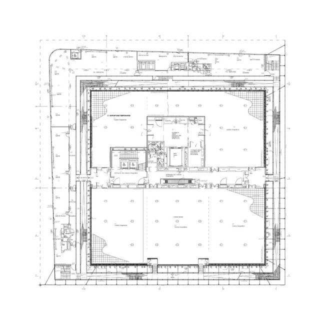
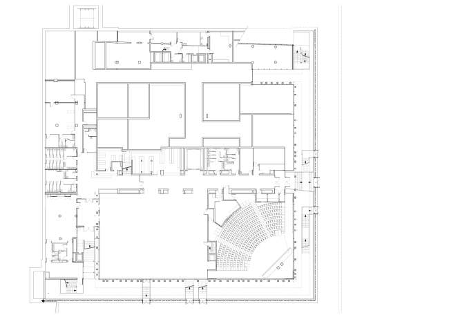
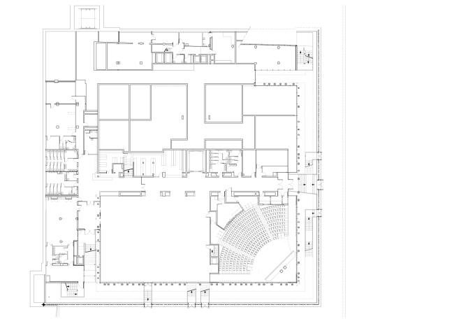
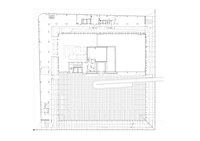
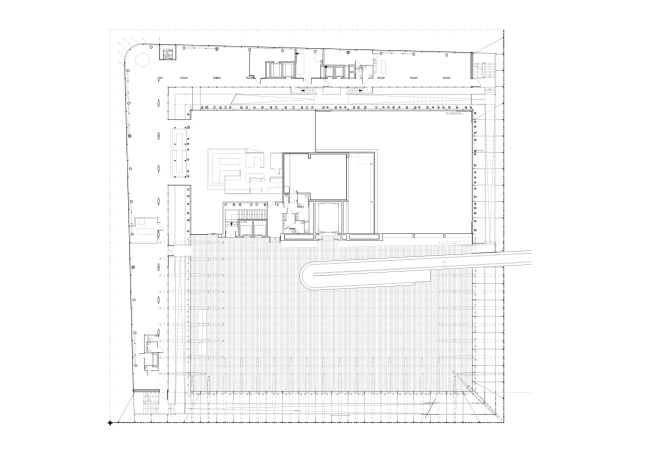
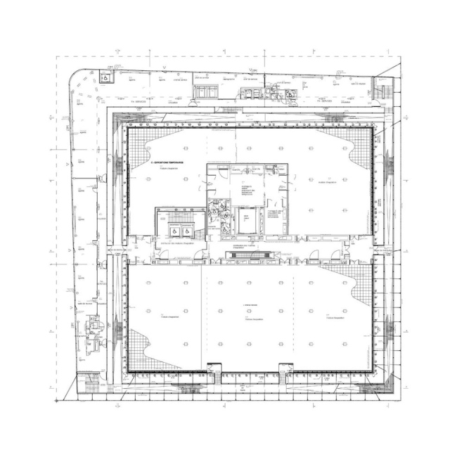
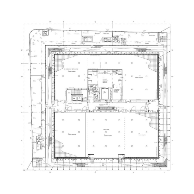
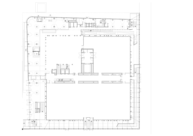
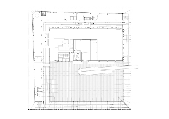
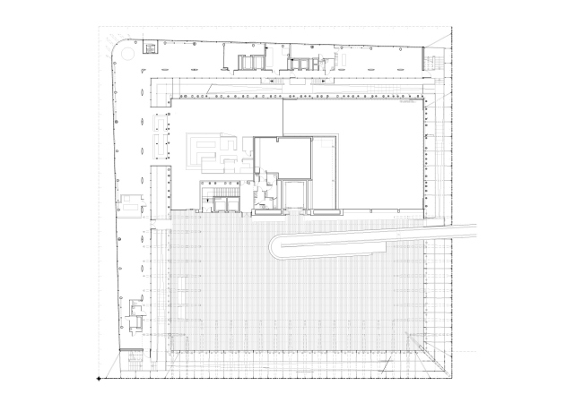
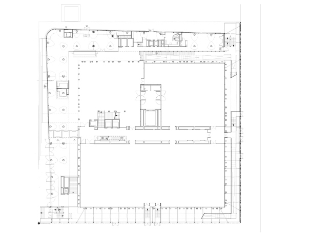
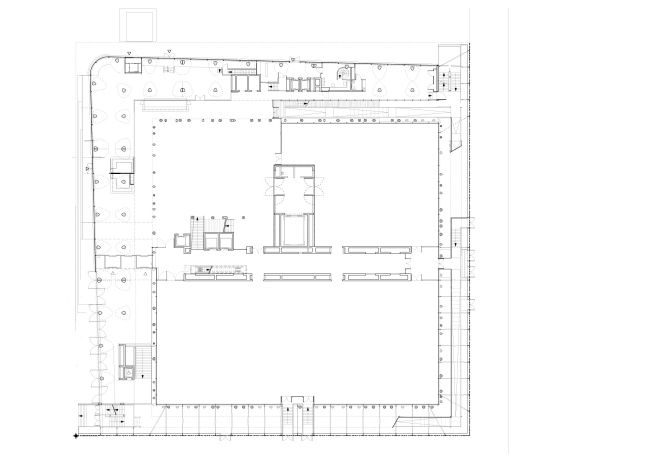
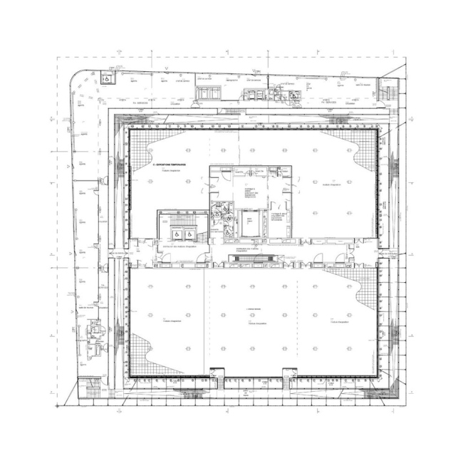
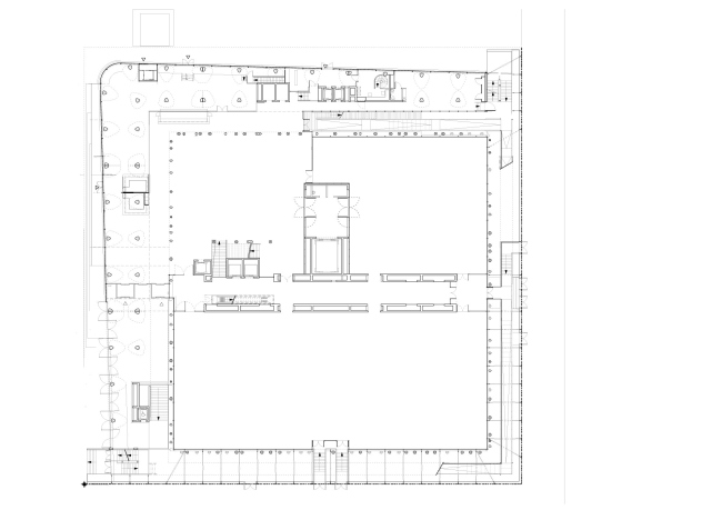
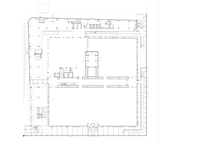
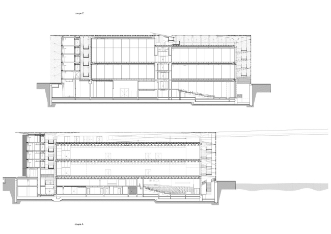
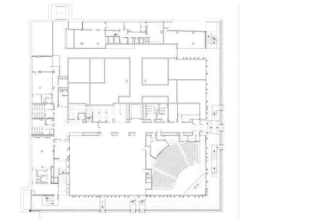
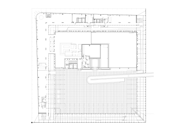
Здание представляет собой квадрат со стороной в 72 м, внутри которого спрятан еще один квадрат, уже со стороной 52 м, где и находятся два уровня выставочных галерей и конференц-зал на 325 человек. В зазоре между фасадом и «ядром» здания расположены лестницы, по которым посетители поднимаются в ходе осмотра. В итоге, они оказываются на крыше, где их ждет проход по пешеходному мостику длиной 115 м (пролет 77 м) в форт Сен-Жан, где располагается вторая часть экспозиции музея. Мостик, закрывающие стеклянную призму здания ажурный фасад и кровля, древовидные структурные опоры – все они выполнены из сверхпрочного фибробетона.
Музей цивилизаций Европы и Средиземноморья - MUCEM © Edmund Sumner
Музей цивилизаций Европы и Средиземноморья - MUCEM © Edmund Sumner

Общая площадь здания составила 15 000 м2, из них на выставочные залы приходится 3600 м2 (там будут показывать постоянную экспозицию, заменяемую раз в 3–5 лет, и временные выставки). Бюджет нового здания, включая оформление экспозиции, составил 113,4 млн евро, а всего на MUCEM, состоящего также из форта Сен-Жан и реставрационного и архивного центра в городе, ушло 191 млн евро.
Музей цивилизаций Европы и Средиземноморья - MUCEM © © Lafarge Media Library – Charles Plumey-Faye (photographer)
Музей цивилизаций Европы и Средиземноморья - MUCEM © © Lafarge Media Library – Charles Plumey-Faye (photographer)
Музей цивилизаций Европы и Средиземноморья - MUCEM © © Lafarge Media Library – Charles Plumey-Faye (photographer)
Музей цивилизаций Европы и Средиземноморья - MUCEM © © Lafarge Media Library – Charles Plumey-Faye (photographer)
Музей цивилизаций Европы и Средиземноморья - MUCEM © © Lafarge Media Library – Charles Plumey-Faye (photographer)
Музей цивилизаций Европы и Средиземноморья - MUCEM © © Lafarge Media Library – Charles Plumey-Faye (photographer)
Музей цивилизаций Европы и Средиземноморья - MUCEM © Lisa Ricciotti
Музей цивилизаций Европы и Средиземноморья - MUCEM © Lisa Ricciotti
Музей цивилизаций Европы и Средиземноморья - MUCEM © Edmund Sumner
Музей цивилизаций Европы и Средиземноморья - MUCEM © Edmund Sumner
Музей цивилизаций Европы и Средиземноморья - MUCEM © Lisa Ricciotti
Музей цивилизаций Европы и Средиземноморья - MUCEM © Lisa Ricciotti
Музей цивилизаций Европы и Средиземноморья - MUCEM © Lisa Ricciotti
Музей цивилизаций Европы и Средиземноморья - MUCEM © Lisa Ricciotti
Музей цивилизаций Европы и Средиземноморья - MUCEM © Edmund Sumner
Музей цивилизаций Европы и Средиземноморья - MUCEM © Edmund Sumner
Музей цивилизаций Европы и Средиземноморья - MUCEM © Edmund Sumner
Музей цивилизаций Европы и Средиземноморья - MUCEM © Edmund Sumner
Музей цивилизаций Европы и Средиземноморья - MUCEM © © Lafarge Media Library – Charles Plumey-Faye (photographer)
Музей цивилизаций Европы и Средиземноморья - MUCEM © © Lafarge Media Library – Charles Plumey-Faye (photographer)
Музей цивилизаций Европы и Средиземноморья - MUCEM © Lisa Ricciotti
Музей цивилизаций Европы и Средиземноморья - MUCEM © Lisa Ricciotti
Музей цивилизаций Европы и Средиземноморья - MUCEM © Lisa Ricciotti
Музей цивилизаций Европы и Средиземноморья - MUCEM © Lisa Ricciotti
Музей цивилизаций Европы и Средиземноморья – MUCEM © Lisa icciotti
Музей цивилизаций Европы и Средиземноморья – MUCEM © Lisa icciotti
Музей цивилизаций Европы и Средиземноморья - MUCEM © © Lafarge Media Library – Charles Plumey-Faye (photographer)
Музей цивилизаций Европы и Средиземноморья - MUCEM © © Lafarge Media Library – Charles Plumey-Faye (photographer)
Музей цивилизаций Европы и Средиземноморья - MUCEM © © Lafarge Media Library – Charles Plumey-Faye (photographer)
Музей цивилизаций Европы и Средиземноморья - MUCEM © © Lafarge Media Library – Charles Plumey-Faye (photographer)
Музей цивилизаций Европы и Средиземноморья - MUCEM © Lisa Ricciotti
Музей цивилизаций Европы и Средиземноморья - MUCEM © Lisa Ricciotti
Музей цивилизаций Европы и Средиземноморья - MUCEM © Lisa Ricciotti
Музей цивилизаций Европы и Средиземноморья - MUCEM © Lisa Ricciotti
Музей цивилизаций Европы и Средиземноморья - MUCEM © Edmund Sumner
Музей цивилизаций Европы и Средиземноморья - MUCEM © Edmund Sumner
Музей цивилизаций Европы и Средиземноморья - MUCEM © © Lafarge Media Library – Charles Plumey-Faye (photographer)
Музей цивилизаций Европы и Средиземноморья - MUCEM © © Lafarge Media Library – Charles Plumey-Faye (photographer)
Музей цивилизаций Европы и Средиземноморья - MUCEM © © Lafarge Media Library – Charles Plumey-Faye (photographer)
Музей цивилизаций Европы и Средиземноморья - MUCEM © © Lafarge Media Library – Charles Plumey-Faye (photographer)
Музей цивилизаций Европы и Средиземноморья - MUCEM © Lisa Ricciotti
Музей цивилизаций Европы и Средиземноморья - MUCEM © Lisa Ricciotti
Музей цивилизаций Европы и Средиземноморья - MUCEM © Lisa Ricciotti
Музей цивилизаций Европы и Средиземноморья - MUCEM © Lisa Ricciotti
Музей цивилизаций Европы и Средиземноморья - MUCEM © Lisa Ricciotti
Музей цивилизаций Европы и Средиземноморья - MUCEM © Lisa Ricciotti
Музей цивилизаций Европы и Средиземноморья - MUCEM © Lisa Ricciotti
Музей цивилизаций Европы и Средиземноморья - MUCEM © Lisa Ricciotti
Музей цивилизаций Европы и Средиземноморья - MUCEM © Lisa Ricciotti
Музей цивилизаций Европы и Средиземноморья - MUCEM © Lisa Ricciotti
Музей цивилизаций Европы и Средиземноморья - MUCEM © Lisa Ricciotti
Музей цивилизаций Европы и Средиземноморья - MUCEM © Lisa Ricciotti
Музей цивилизаций Европы и Средиземноморья - MUCEM © Lisa Ricciotti
Музей цивилизаций Европы и Средиземноморья - MUCEM © Lisa Ricciotti
Музей цивилизаций Европы и Средиземноморья - MUCEM © Lisa Ricciotti
Музей цивилизаций Европы и Средиземноморья - MUCEM © Lisa Ricciotti
Музей цивилизаций Европы и Средиземноморья - MUCEM © Lisa Ricciotti
Музей цивилизаций Европы и Средиземноморья - MUCEM © Lisa Ricciotti
Музей цивилизаций Европы и Средиземноморья - MUCEM © Julie Nicolas/LeMoniteur.fr
Музей цивилизаций Европы и Средиземноморья - MUCEM © Julie Nicolas/LeMoniteur.fr
Музей цивилизаций Европы и Средиземноморья - MUCEM © Lisa Ricciotti
Музей цивилизаций Европы и Средиземноморья - MUCEM © Lisa Ricciotti
Музей цивилизаций Европы и Средиземноморья - MUCEM © © Lafarge Media Library – Charles Plumey-Faye (photographer)
Музей цивилизаций Европы и Средиземноморья - MUCEM © © Lafarge Media Library – Charles Plumey-Faye (photographer)
Музей цивилизаций Европы и Средиземноморья - MUCEM © © Lafarge Media Library – Charles Plumey-Faye (photographer)
Музей цивилизаций Европы и Средиземноморья - MUCEM © © Lafarge Media Library – Charles Plumey-Faye (photographer)
Музей цивилизаций Европы и Средиземноморья - MUCEM © © Lafarge Media Library – Charles Plumey-Faye (photographer)
Музей цивилизаций Европы и Средиземноморья - MUCEM © © Lafarge Media Library – Charles Plumey-Faye (photographer)
Музей цивилизаций Европы и Средиземноморья - MUCEM © Lisa Ricciotti
Музей цивилизаций Европы и Средиземноморья - MUCEM © Lisa Ricciotti
Музей цивилизаций Европы и Средиземноморья - MUCEM © Lisa Ricciotti
Музей цивилизаций Европы и Средиземноморья - MUCEM © Lisa Ricciotti
Музей цивилизаций Европы и Средиземноморья - MUCEM © Lisa Ricciotti
Музей цивилизаций Европы и Средиземноморья - MUCEM © Lisa Ricciotti
Музей цивилизаций Европы и Средиземноморья - MUCEM © Lisa Ricciotti
Музей цивилизаций Европы и Средиземноморья - MUCEM © Lisa Ricciotti
Музей цивилизаций Европы и Средиземноморья - MUCEM © Lisa Ricciotti
Музей цивилизаций Европы и Средиземноморья - MUCEM © Lisa Ricciotti
Музей цивилизаций Европы и Средиземноморья - MUCEM © Lisa Ricciotti
Музей цивилизаций Европы и Средиземноморья - MUCEM © Lisa Ricciotti
Музей цивилизаций Европы и Средиземноморья - MUCEM © © Lafarge Media Library – Charles Plumey-Faye (photographer)
Музей цивилизаций Европы и Средиземноморья - MUCEM © © Lafarge Media Library – Charles Plumey-Faye (photographer)
Музей цивилизаций Европы и Средиземноморья - MUCEM © Lisa Ricciotti
Музей цивилизаций Европы и Средиземноморья - MUCEM © Lisa Ricciotti
Музей цивилизаций Европы и Средиземноморья - MUCEM © Lisa Ricciotti
Музей цивилизаций Европы и Средиземноморья - MUCEM © Lisa Ricciotti
Музей цивилизаций Европы и Средиземноморья - MUCEM © Lisa Ricciotti
Музей цивилизаций Европы и Средиземноморья - MUCEM © Lisa Ricciotti
Музей цивилизаций Европы и Средиземноморья - MUCEM © Rudi Ricciotti
Музей цивилизаций Европы и Средиземноморья - MUCEM © Rudi Ricciotti
Музей цивилизаций Европы и Средиземноморья - MUCEM © Rudi Ricciotti
Музей цивилизаций Европы и Средиземноморья - MUCEM © Rudi Ricciotti
Музей цивилизаций Европы и Средиземноморья - MUCEM © Rudi Ricciotti
Музей цивилизаций Европы и Средиземноморья - MUCEM © Rudi Ricciotti
Музей цивилизаций Европы и Средиземноморья - MUCEM © Rudi Ricciotti
Музей цивилизаций Европы и Средиземноморья - MUCEM © Rudi Ricciotti
Музей цивилизаций Европы и Средиземноморья - MUCEM © Rudi Ricciotti
Музей цивилизаций Европы и Средиземноморья - MUCEM © Rudi Ricciotti
Музей цивилизаций Европы и Средиземноморья - MUCEM © Rudi Ricciotti
Музей цивилизаций Европы и Средиземноморья - MUCEM © Rudi Ricciotti
Музей цивилизаций Европы и Средиземноморья - MUCEM © Rudi Ricciotti
Музей цивилизаций Европы и Средиземноморья - MUCEM © Rudi Ricciotti
Музей цивилизаций Европы и Средиземноморья - MUCEM © Rudi Ricciotti
Музей цивилизаций Европы и Средиземноморья - MUCEM © Rudi Ricciotti