Размещено на портале Архи.ру (www.archi.ru)

07.06.2013

Прозрачная библиотека будущего

Объект:
Филиал Нью-йоркской публичной библиотеки на 53-й улице
Адрес:
США, None, Нью-Йорк.
Мастерская:
TEN Arquitectos

Бюро TEN Arquitectos проектирует новый филиал Нью-йоркской публичной библиотеки.

Филиал Нью-йоркской публичной библиотеки на 53-й улице © TEN Arquitectos
Филиал Нью-йоркской публичной библиотеки на 53-й улице © TEN Arquitectos

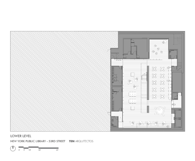
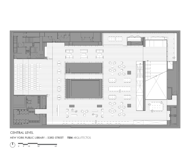
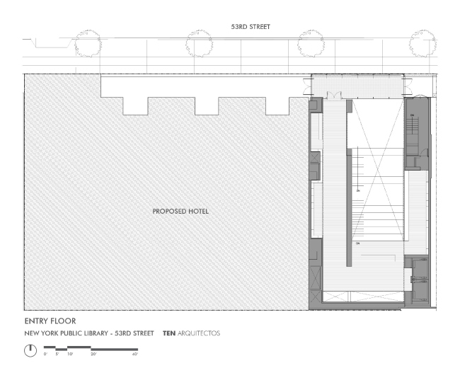
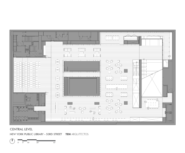
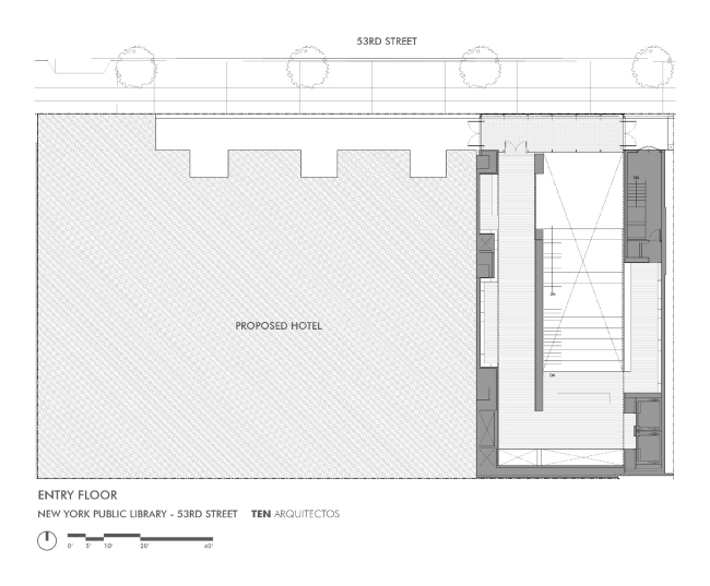
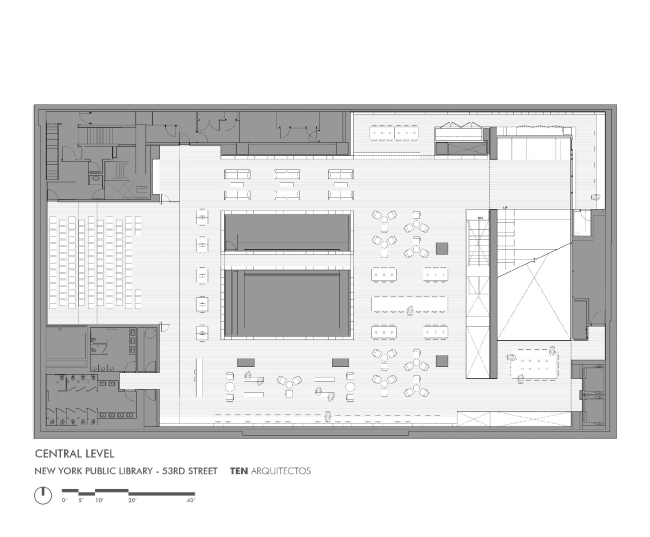
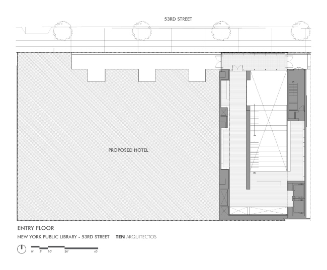
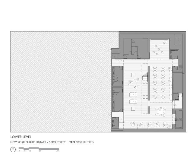
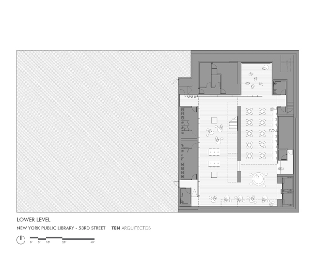
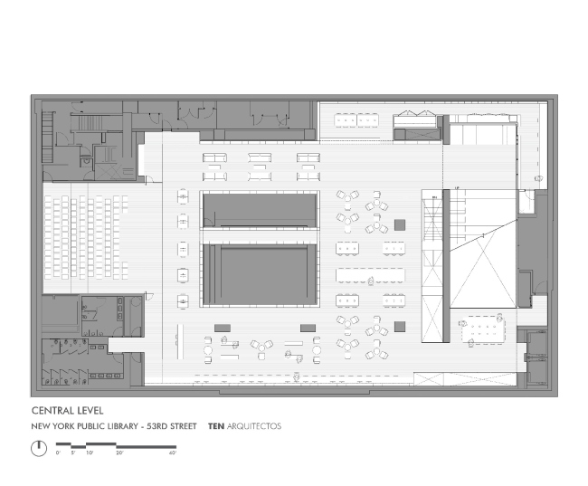
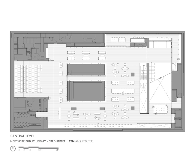
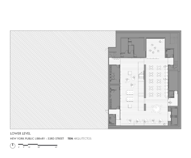
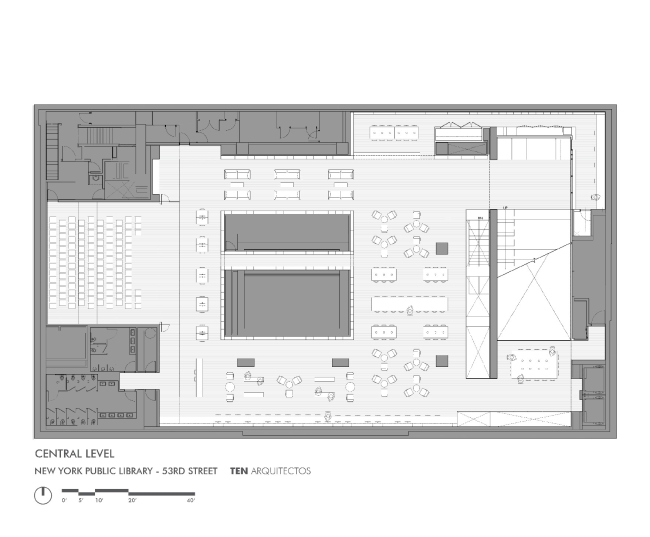
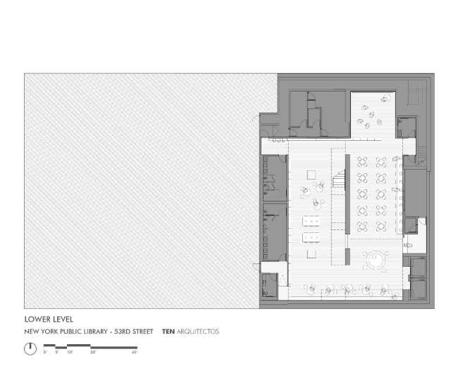
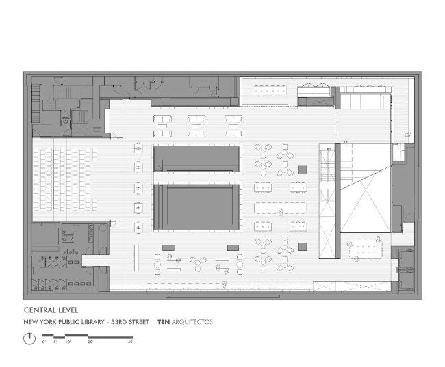
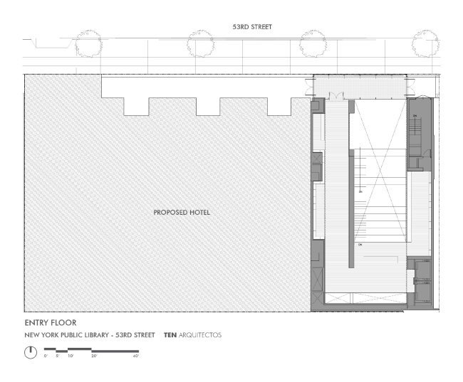
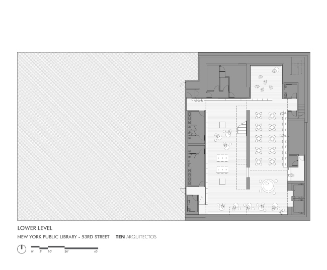
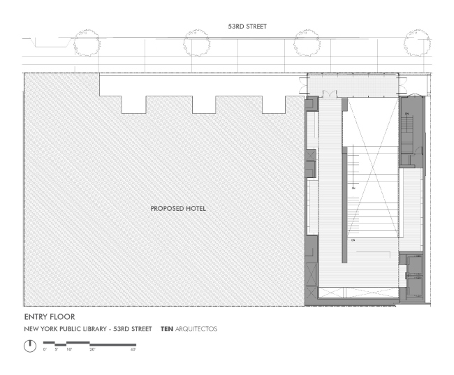
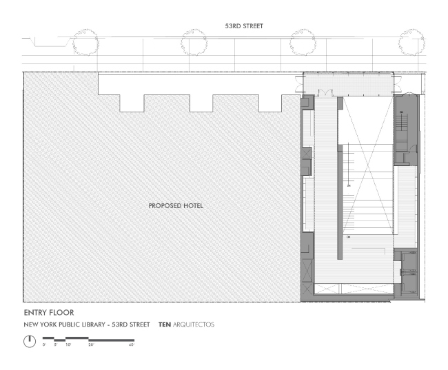
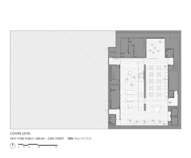
Новая библиотека будет создана в центре Манхэттена, на 53-й улице, в том самом месте, где до 2008 года располагалась популярная Donnell Library. На этой площадке должен строится высотный отель, частью которого и станет новый филиал городской публичной библиотеки, в дополнение к множеству имеющихся в Нью-Йорке. Именно на таком условии администрация города дала инвестору разрешение на строительство. Под создание культурного центра выделены первый этаж будущего отеля, а также 2 подземных. Общая площадь филиала составит 2600 м2, а строительство обойдется примерно в 20 млн долларов.

Филиал Нью-йоркской публичной библиотеки на 53-й улице © TEN Arquitectos
Филиал Нью-йоркской публичной библиотеки на 53-й улице © TEN Arquitectos

Перед архитекторами была поставлена задача создать не традиционную читальню, а современный общественный и медиа-центр, который станет новой точкой притяжения горожан и туристов в манхэттенском Мидтауне. TEN Arquitectos решили, что учреждение такого типа должно говорить само за себя, и отказались от фасада как самодостаточной каменной ширмы: монументальная стена заменена на стеклянную поверхность. Прозрачный фасад не только сделает новую библиотеку неотъемлемой частью города, но и позволит максимально обеспечить ее помещения дневным светом.
Филиал Нью-йоркской публичной библиотеки на 53-й улице © TEN Arquitectos
Филиал Нью-йоркской публичной библиотеки на 53-й улице © TEN Arquitectos

Ключевым элементом интерьера будущей библиотеки станет лестница, которая соединит все три этажа комплекса и создаст множество дополнительных мест для чтения и неформального общения.

А. М.
Филиал Нью-йоркской публичной библиотеки на 53-й улице © TEN Arquitectos
Филиал Нью-йоркской публичной библиотеки на 53-й улице © TEN Arquitectos
Филиал Нью-йоркской публичной библиотеки на 53-й улице © TEN Arquitectos
Филиал Нью-йоркской публичной библиотеки на 53-й улице © TEN Arquitectos
Филиал Нью-йоркской публичной библиотеки на 53-й улице © TEN Arquitectos
Филиал Нью-йоркской публичной библиотеки на 53-й улице © TEN Arquitectos
Филиал Нью-йоркской публичной библиотеки на 53-й улице © TEN Arquitectos
Филиал Нью-йоркской публичной библиотеки на 53-й улице © TEN Arquitectos
Филиал Нью-йоркской публичной библиотеки на 53-й улице © TEN Arquitectos
Филиал Нью-йоркской публичной библиотеки на 53-й улице © TEN Arquitectos
Филиал Нью-йоркской публичной библиотеки на 53-й улице © TEN Arquitectos
Филиал Нью-йоркской публичной библиотеки на 53-й улице © TEN Arquitectos
Филиал Нью-йоркской публичной библиотеки на 53-й улице © TEN Arquitectos
Филиал Нью-йоркской публичной библиотеки на 53-й улице © TEN Arquitectos