|
Неподалеку от знаменитого поселка художников на севере Москвы мастерская T+T Architects проектирует комплекс апартаментов, решенный в эстетике современной европейской дачи.
Апартаменты будут построены неподалеку от Ленинградского проспекта, на территории опытного завода №408. Предприятие, занимающее чуть больше 1 га, уже выведено из города, а его корпуса ожидают реконструкции. Расположение бывшего завода трудно не признать удобным – 10 минут пешком до станции метро «Аэропорт», под боком Ленинградка и ТТК, – так что его перепрофилирование, что называется, было предрешено. Почти сразу инвестор определился и с новой функцией комплекса – стесненность территории и довольно высокая плотность существующей застройки не позволили бы создать здесь ни офисный центр, ни полноценное жилье с обязательной инфраструктурой. Разработать концепцию предстоящей реконструкции компания KR Properties пригласила своих давних партнеров – мастерскую T+T Architects. Правда, одной лишь реновацией дело не ограничилось: перед архитекторами была поставлена амбициозная задача создать новую типологию апартаментов.
 Реновация промышленной территории под лофт-квартал апартаментов Studio #8 © Т+Т Architects
Реновация промышленной территории под лофт-квартал апартаментов Studio #8. Ситуационный план © Т+Т Architects
Придумать нечто оригинальное заказчика заставило отнюдь не (только) тщеславие. Дело в том, что ближайшим соседом бывшего завода является жилой комплекс «Триумф-палас» – 260-метровый небоскреб, претендующий на стилистическое родство с семью сталинскими высотками. Будущие апартаменты отделены от «Триумф-паласа» лишь узким внутриквартальным проездом, и понятно, что габаритами и классом жилья с ним тягаться бессмысленно. Но как-то обозначить, что новый комплекс имеет совершенно иное происхождение, девелоперу хотелось, и именно так он и сформулировал ТЗ для архитекторов – объект должен стать камерным и уютным городским кварталом, по возможности деликатно противостоя эстетике «элитного» и «закрытого» жилого комплекса «Триумф Палас». «Решение напрашивалось само собой: из-за разницы в этажности наш комплекс обращен к «Триумф-паласу» кровлей, поэтому мы превратили ее в пятый фасад», – рассказывает руководитель T+T Architects Сергей Труханов.
За вдохновением архитекторы также обратились к ближайшему окружению – расположенный в пяти минутах езды поселок художников «Сокол» с его двухэтажной застройкой, скатными кровлями и тихими улочками стал одной из главных отправных точек в создании образа нового комплекса. Как поясняет Сергей Труханов, у знаменитого поселка T+T Architects позаимствовали не конкретные приемы и решения, а саму эстетику старых дач и дачного времяпрепровождения. При этом промышленное происхождение объекта подсказало стилистику loft, а решение сделать кровлю пятым фасадом подтолкнуло архитекторов обратиться к современной голландской архитектуре, которая очень любит экспериментировать с формой мансард. Из этих составляющих и родилась идеология комплекса: от «Сокола» авторы берут камерность и сомасштабность человеку, а также ритмику скатных крыш, переосмысляют в новых материалах и дополняют их бережно реконструированной кирпичной кладкой. Так завод №408 превратился в лофт-квартал Studio8: прошлое получает новую жизнь, органично прорастая в будущее.
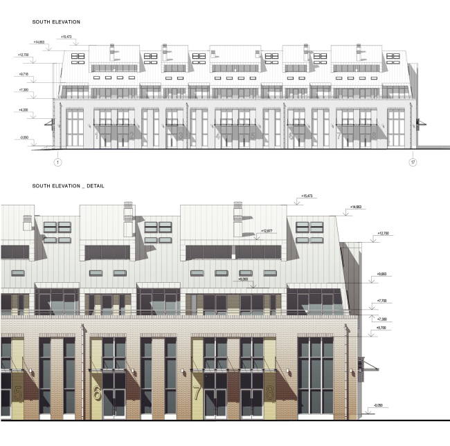
Сложность заключалась еще и в том, что заводские корпуса оказались совершенно разными по своей конфигурации и глубине. Здесь есть и вполне компактные прямоугольные в плане объемы, и узкие вытянутые «вагончики», и очень крупное строение в центре участка с большой глубиной этажа. Поэтому мало было в целом набросать стилистику будущего комплекса – для каждого объема архитекторы искали свое эффективное решение. Часть территории расчищается от старых гаражей и полуразрушенных построек ради создания общественного пространства, внутренней пешеходной площади Studio8 и организации парковки (впрочем, необходимое число машиномест удалось получить только за счет более дорогих автоматизированных паркингов).
Корпуса комплекса формируют самодостаточную композицию, эдакий мини-город в городе, в котором помимо главной площади есть несколько уютных двориков, переулков и проездов. Особую роль играет т.н. корпус Б – узкое здание сильно вытянутой формы, которое фактически служит стеной, отделяющей Studio8 от «Триумф-паласа»: конечно, уйти от прямого визуального контакта с небоскребом нельзя, но на уровне земли это здание позволяет обособить территорию нового комплекса. Похожим образом работает и такой же вытянутый в плане объем многоэтажного паркинга. Расположение на стыке двух принципиально разных стилистик нашло отражение в архитектуре этих объемов: паркинг обращен к соседней высотке нейтральными глухими стенами, а фасад жилого дома почти столь же наглухо защищен спущенной на него алюминиевой кровлей. Наверно, этот объем выглядел бы неприступной оцинкованной стеной, если бы архитекторы не раздробили его на отдельные секции, которые нарочито сместили относительно друг друга. Добавляет внешности здания дружелюбия и масштабное остекление бокового фасада.
Сложнее всего было найти решение для самого габаритного корпуса А, глубина которого составляет почти 50 метров. Для того, чтобы обеспечить комфортную освещенность всех его помещений, а также придвинутого к нему почти вплотную корпуса Г, архитекторы довольно ощутимо сместили коньки обеих кровель и использовали подкровельные витражи. Мансардные окна, решенные как элегантные металлические скобы, многократно усиливают этот динамизм: они похожи на головной убор, который вот-вот съедет на брови, если не держать голову высоко и ровно. Так и этот дом, смотря своим главным фасадом на проезд Аэропорта, не стесняется немного задрать нос: монументальное соседство совсем не смущает его, заставляя разве что чуть более тщательно продумать наряд и аксессуары к нему. Неслучайно на последнем «Золотом сечении» проект Studio8 был отмечен специальным дипломом за «Особо удачные решения в рамках стесненной застройки».
Кстати, про аксессуары – это отнюдь не фигура речи. В своей концепции реконструкции бывшего завода T+T Architects предусмотрели все возможные мелочи: и варианты отделки фасадов, и решения интерьеров, и систему навигации по комплексу. Даже в самой малой детали, будь то парковочный столбик, ограждение мусоросборочных площадок или указатели, авторы тщательно соблюдают выбранный ими стиль loft. Визитной карточкой квартала обещают стать и настенные граффити, которые подчеркнут его промышленное происхождение едва ли не столь же красноречиво, как и брутальные кирпичные стены.
|