Размещено на портале Архи.ру (www.archi.ru)

24.05.2013

Царев сад

Объявлены участники нового закрытого конкурса, проводимого инвестором по инициативе главного архитектора Москвы Сергея Кузнецова.

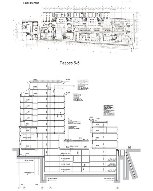
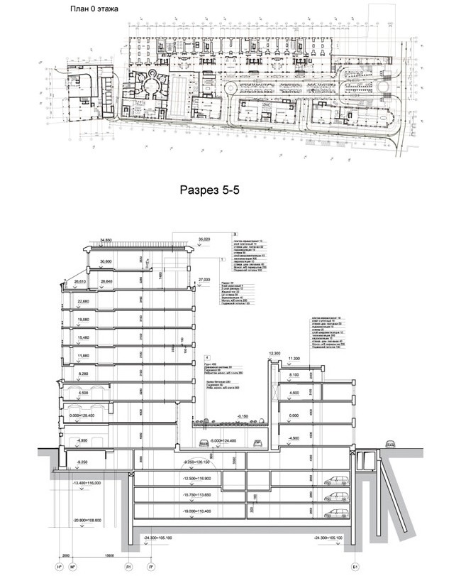
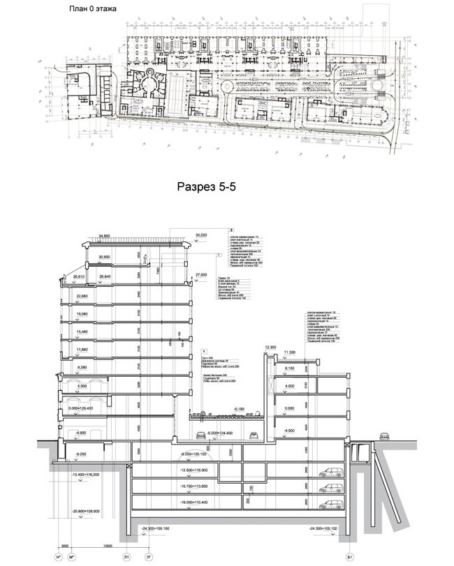
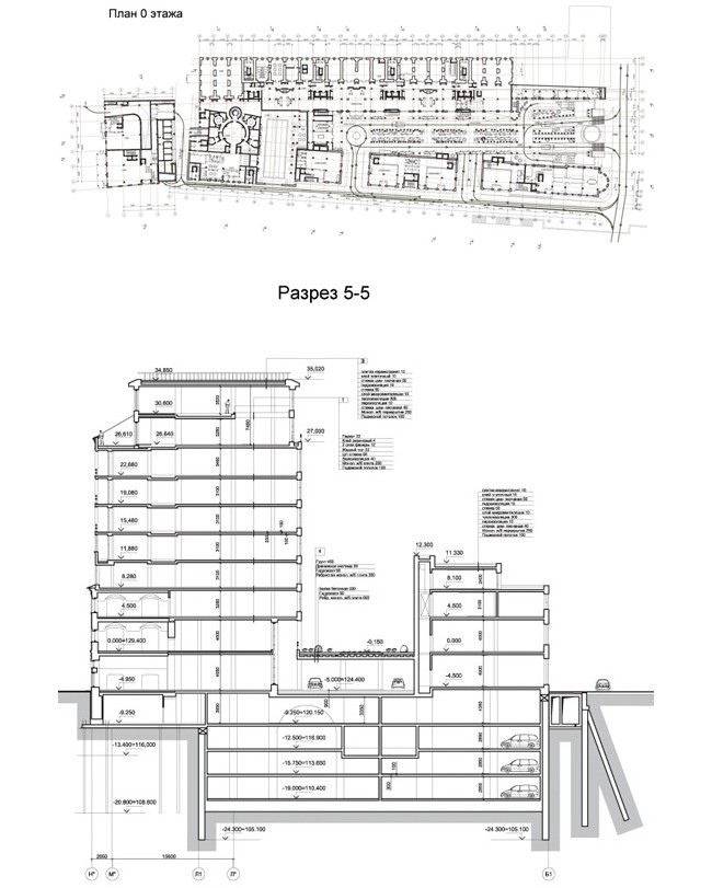
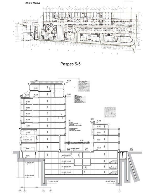
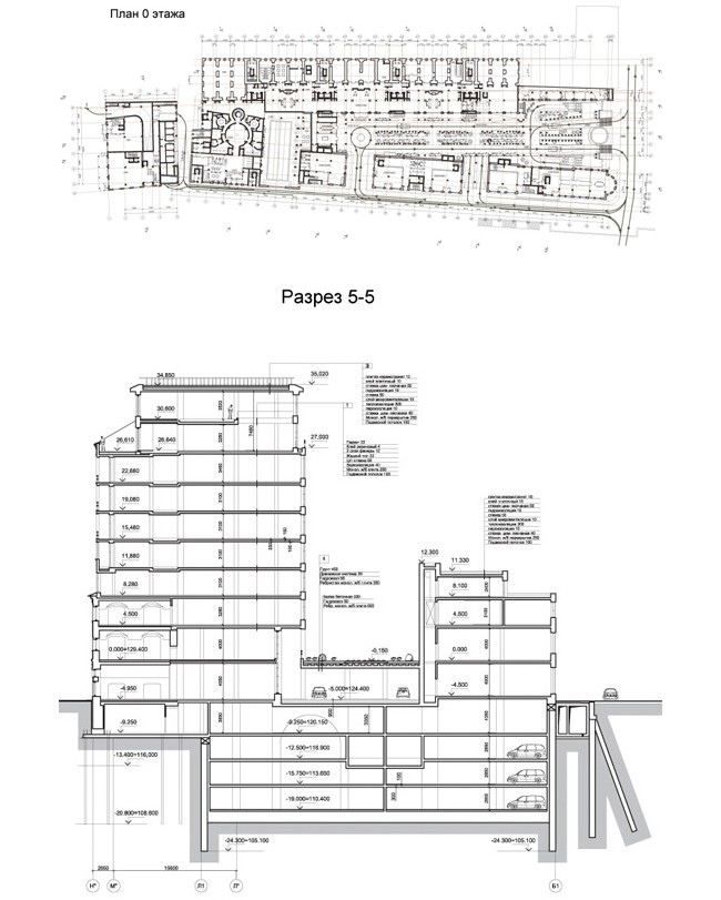
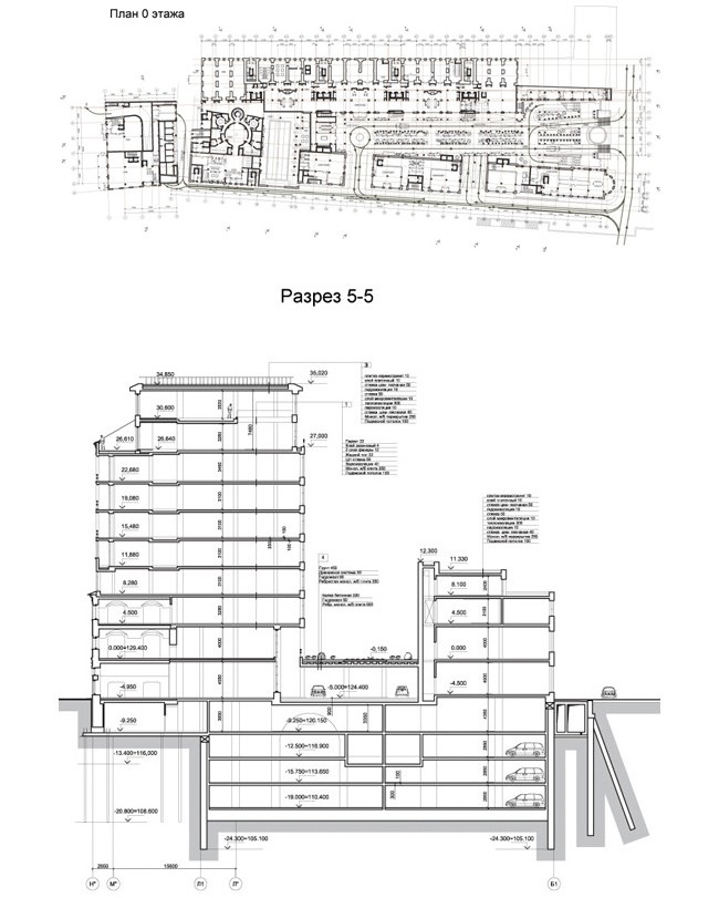
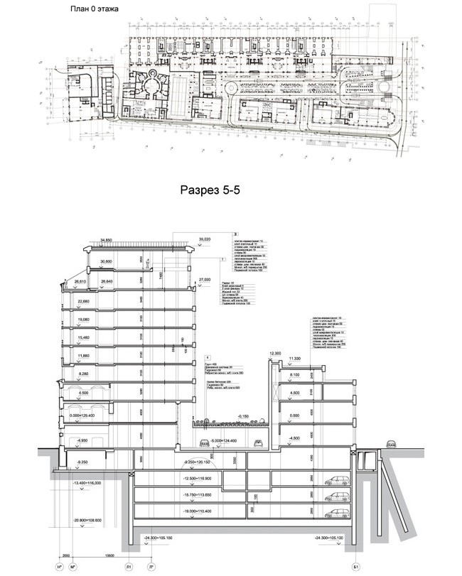
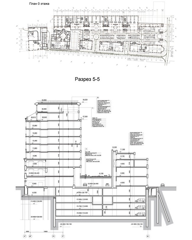
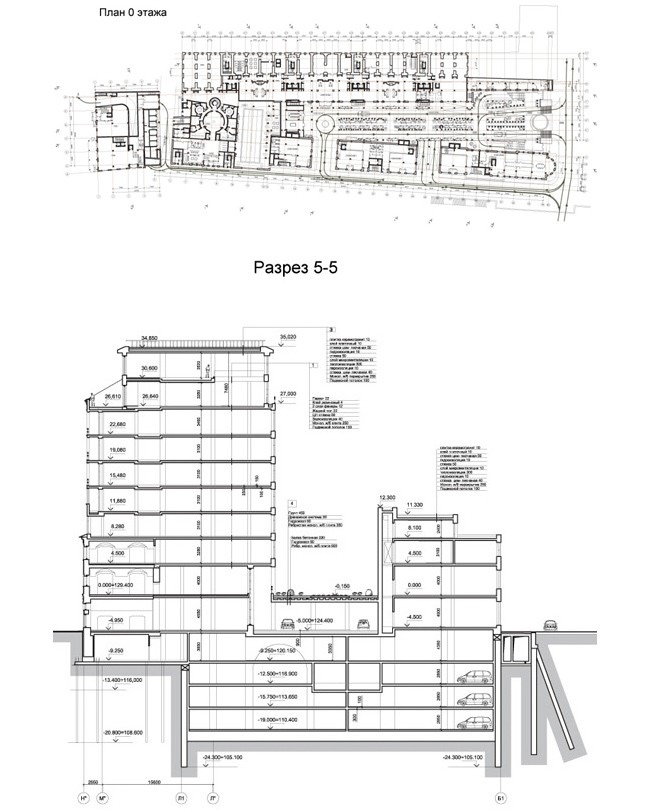
Многофункциональный гостиничный комплекс «Царев сад». Проект ООО «МАО – Среда» (В.А. Осипов, Е.В. Ерошкина, А.В. Сигачев, И.М. Шмакова, А.Ю. Афанасьева, конструктор В.В. Чертов, инженер Н.Н. Муравецкий. © ООО «МАО – Среда», источник - www.zodchestvo.com
Многофункциональный гостиничный комплекс «Царев сад». Проект ООО «МАО – Среда» (В.А. Осипов, Е.В. Ерошкина, А.В. Сигачев, И.М. Шмакова, А.Ю. Афанасьева, конструктор В.В. Чертов, инженер Н.Н. Муравецкий. © ООО «МАО – Среда», источник - www.zodchestvo.com
«Царев сад» – многофункциональный гостиничный комплекс общей площадью немногим больше 80 тыс. кв. м, состоящий из апарт-отеля, wellness-центра и ресторана, планируется построить на участке площадью 1,17 га на Софийской набережной рядом с Большим Москворецким мостом, через реку от Беклемишевской башни московского Кремля и напротив гостиницы «Балчуг». Участком владеет ООО «Сбербанк Капитал», роль технического  заказчика исполняет ООО «Мидланд Девелопмент. История проектирования достаточно сложна, проект приостановили еще в 1999 году, подробности можно узнать, например, здесь или в Википедии.
Многофункциональный гостиничный комплекс «Царев сад». Проект ООО «МАО – Среда». © ООО «МАО – Среда». Ситуационный план, наложенный на карту Яндекс.
Многофункциональный гостиничный комплекс «Царев сад». Проект ООО «МАО – Среда». © ООО «МАО – Среда». Ситуационный план, наложенный на карту Яндекс.

В недавнее время над проектом комплекса работало ООО «МАО – Среда», их проект был показан осенью на фестивале «Зодчество». По словам авторов, одной из первоначальных задач их проекта было «исправить сложившуюся в 2000 годы градостроительную ситуацию методом регенерации визуальных связей». Каждая гостиная в проектируемом апарт-отеле была «визуально раскрыта на храм Василия Блаженного», а на кровлях невысоких объемов первого ряда застройки были запланированы «благоустроенные террасы с максимальным визуальным раскрытием на историческую Москву».
Многофункциональный гостиничный комплекс «Царев сад». Проект ООО «МАО – Среда» (В.А. Осипов, Е.В. Ерошкина, А.В. Сигачев, И.М. Шмакова, А.Ю. Афанасьева, конструктор В.В. Чертов, инженер Н.Н. Муравецкий. © ООО «МАО – Среда», источник - www.zodchestvo.com
Многофункциональный гостиничный комплекс «Царев сад». Проект ООО «МАО – Среда» (В.А. Осипов, Е.В. Ерошкина, А.В. Сигачев, И.М. Шмакова, А.Ю. Афанасьева, конструктор В.В. Чертов, инженер Н.Н. Муравецкий. © ООО «МАО – Среда», источник - www.zodchestvo.com
Многофункциональный гостиничный комплекс «Царев сад». Проект ООО «МАО – Среда» (В.А. Осипов, Е.В. Ерошкина, А.В. Сигачев, И.М. Шмакова, А.Ю. Афанасьева, конструктор В.В. Чертов, инженер Н.Н. Муравецкий. © ООО «МАО – Среда», источник - www.zodchestvo.com
Многофункциональный гостиничный комплекс «Царев сад». Проект ООО «МАО – Среда» (В.А. Осипов, Е.В. Ерошкина, А.В. Сигачев, И.М. Шмакова, А.Ю. Афанасьева, конструктор В.В. Чертов, инженер Н.Н. Муравецкий. © ООО «МАО – Среда», источник - www.zodchestvo.com
Многофункциональный гостиничный комплекс «Царев сад». Проект ООО «МАО – Среда» (В.А. Осипов, Е.В. Ерошкина, А.В. Сигачев, И.М. Шмакова, А.Ю. Афанасьева, конструктор В.В. Чертов, инженер Н.Н. Муравецкий. © ООО «МАО – Среда», источник - www.zodchestvo.com
Многофункциональный гостиничный комплекс «Царев сад». Проект ООО «МАО – Среда» (В.А. Осипов, Е.В. Ерошкина, А.В. Сигачев, И.М. Шмакова, А.Ю. Афанасьева, конструктор В.В. Чертов, инженер Н.Н. Муравецкий. © ООО «МАО – Среда», источник - www.zodchestvo.com
Многофункциональный гостиничный комплекс «Царев сад». Проект ООО «МАО – Среда» (В.А. Осипов, Е.В. Ерошкина, А.В. Сигачев, И.М. Шмакова, А.Ю. Афанасьева, конструктор В.В. Чертов, инженер Н.Н. Муравецкий. © ООО «МАО – Среда», источник - www.zodchestvo.com
Многофункциональный гостиничный комплекс «Царев сад». Проект ООО «МАО – Среда» (В.А. Осипов, Е.В. Ерошкина, А.В. Сигачев, И.М. Шмакова, А.Ю. Афанасьева, конструктор В.В. Чертов, инженер Н.Н. Муравецкий. © ООО «МАО – Среда», источник - www.zodchestvo.com

Сейчас проект предложено переработать восьми архитектурным бюро, включая его авторов, «Мао – Среда», которые при любом исходе конкурса сохраняют за собой функцию генпроектировщика, а победителя конкурса генпроектировщик возьмет на субподряд. Об этом Сергей Кузнецов сообщил на пресс-брифинге 22 мая.

Итак, архитектурные бюро, участвующие в конкурсе:
  • МАО-Среда
  • Герасимов и партнеры
  • ADM
  • Киселев и партнеры
  • Сергей Скуратов Architects
  • Цимайло, Лященко и партнеры
  • Архитектурная мастерская М. Атаянца
  • Студия Уткина
Несложно предугадать, что это будет не только (по словам Сергея Кузнецова) «поиск архитектурных решений для важнейшей на сегодняшний день для города  площадки», но и спор между модернистами и сторонниками классической архитектуры, чьи позиции разделились в списке участников конкурса, скажем так, поровну.