Размещено на портале Архи.ру (www.archi.ru)

17.05.2013

Золото для «Синего всадника»

Объект:
Музей Ленбаххаус
Адрес:
Германия, None, Мюнхен.
Мастерская:
Foster + Partners

В Мюнхене открылся реконструированный Норманом Фостером музей Ленбаххаус.

Музей Ленбаххаус © Nigel Young/Foster + Partners
Музей Ленбаххаус © Nigel Young/Foster + Partners
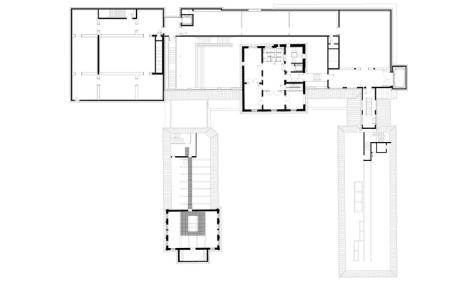
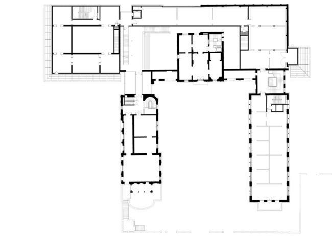
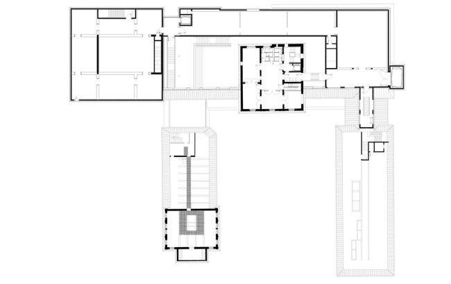
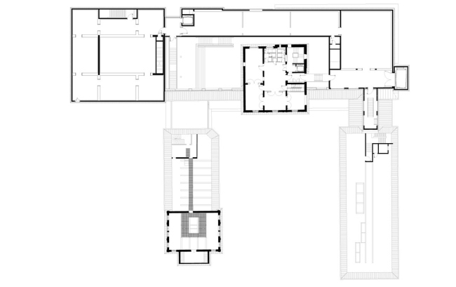
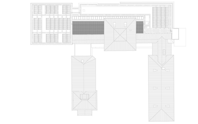
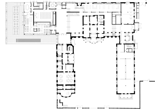
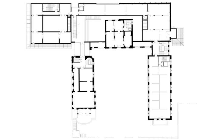
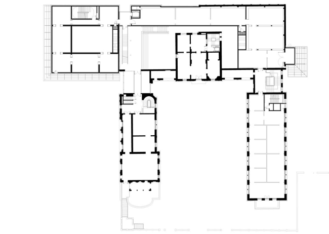
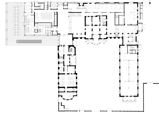
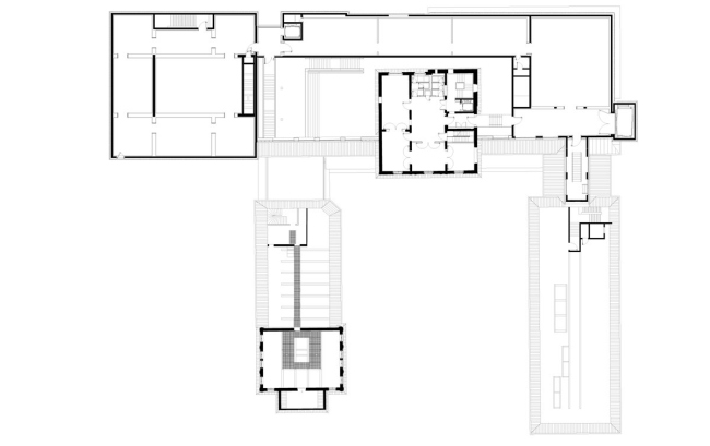
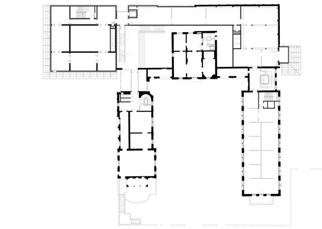
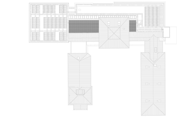
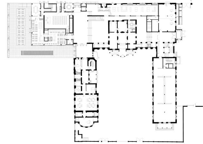
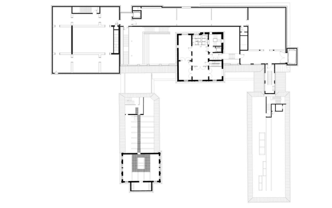
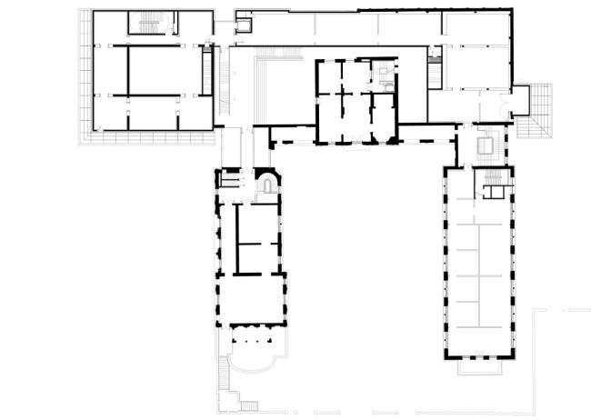
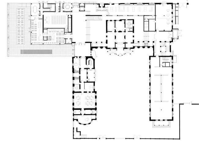
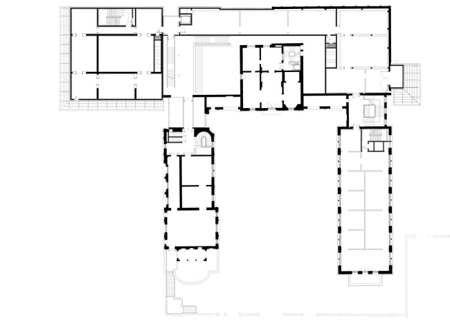
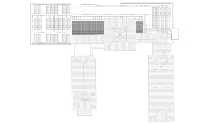
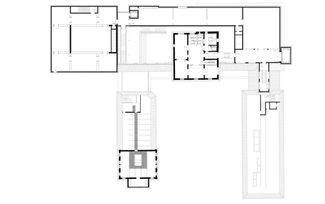
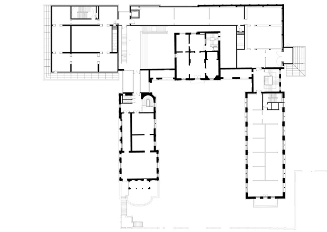
Основу комплекса составляют вилла и мастерская художника Франца фон Ленбаха, построенные в конце 19 в. и в 1920-е годы превращенные в городскую художественную галерею. С течением времени к ним добавлялись новые сооружения, что не всегда украшало музей. В ходе реконструкции был убран корпус 1972 года, вилла тщательно отреставрирована, и появилось 2-этажное новое крыло с выставочными залами.
Музей Ленбаххаус © Nigel Young/Foster + Partners
Музей Ленбаххаус © Nigel Young/Foster + Partners

Это крыло получило фасады из гофрированных панелей TECU, изготовленных из сплава меди и алюминия и напоминающих золото. Они хорошо сочетаются с рыжевато-охристыми фасадами виллы, а также выражают идею «драгоценной шкатулки» для выставленных внутри произведений группы «Синий всадник» – самой важной части коллекции музея. Фасад постройки украшает надпись Lenbahhaus, созданная художником Томасом Демандом.
Музей Ленбаххаус © Nigel Young/Foster + Partners
Музей Ленбаххаус © Nigel Young/Foster + Partners

Как обычно и случается с современными музеями, главным при реконструкции было даже не экспозиционное, а общественное пространство. В Ленбаххаусе появился новый атриум, куда выходит угол виллы: там можно экспонировать крупные произведения искусства, и установлена созданная специально для этого помещения работа Олафура Элиассона Wirbelwerk (2012). Также в музее имеются магазин, кафе, лекторий, образовательный центр для детей и взрослых.
Музей Ленбаххаус. Постоянная инсталляция  Lenbachhaus Томаса Деманда. Фото: Lenbachhaus
Städtische Galerie im Lenbachhaus und Kunstbau, München. VG Bild-Kunst Bonn, 2013
Музей Ленбаххаус. Постоянная инсталляция Lenbachhaus Томаса Деманда. Фото: Lenbachhaus Städtische Galerie im Lenbachhaus und Kunstbau, München. VG Bild-Kunst Bonn, 2013

Выставочные помещения виллы дополнены залами в новом крыле, по масштабу сопоставимыми с жилыми помещениями: именно в таких условиях изначально висели работы мастеров «Синего всадника» – Василия Кандинского, Алексея Явленского, Габриэль Мюнтер. Все залы освещаются экологичными светодиодными светильниками, также используется непрямой солнечный свет.

Н. Ф.
Музей Ленбаххаус © Nigel Young/Foster + Partners
Музей Ленбаххаус © Nigel Young/Foster + Partners
Музей Ленбаххаус © Nigel Young/Foster + Partners
Музей Ленбаххаус © Nigel Young/Foster + Partners
Музей Ленбаххаус © Nigel Young/Foster + Partners
Музей Ленбаххаус © Nigel Young/Foster + Partners
Музей Ленбаххаус. Фото © Städtische Galerie im Lenbachhaus München
Музей Ленбаххаус. Фото © Städtische Galerie im Lenbachhaus München
Музей Ленбаххаус © Nigel Young/Foster + Partners
Музей Ленбаххаус © Nigel Young/Foster + Partners
Музей Ленбаххаус © Nigel Young/Foster + Partners
Музей Ленбаххаус © Nigel Young/Foster + Partners
Музей Ленбаххаус © Nigel Young/Foster + Partners
Музей Ленбаххаус © Nigel Young/Foster + Partners
Музей Ленбаххаус © Nigel Young/Foster + Partners
Музей Ленбаххаус © Nigel Young/Foster + Partners
Музей Ленбаххаус © Nigel Young/Foster + Partners
Музей Ленбаххаус © Nigel Young/Foster + Partners
Музей Ленбаххаус © Nigel Young/Foster + Partners
Музей Ленбаххаус © Nigel Young/Foster + Partners
Музей Ленбаххаус © Nigel Young/Foster + Partners
Музей Ленбаххаус © Nigel Young/Foster + Partners
Музей Ленбаххаус © Nigel Young/Foster + Partners
Музей Ленбаххаус © Nigel Young/Foster + Partners
Музей Ленбаххаус © Nigel Young/Foster + Partners
Музей Ленбаххаус © Nigel Young/Foster + Partners
Музей Ленбаххаус © Nigel Young/Foster + Partners
Музей Ленбаххаус © Nigel Young/Foster + Partners
Музей Ленбаххаус © Nigel Young/Foster + Partners
Музей Ленбаххаус © Nigel Young/Foster + Partners
Музей Ленбаххаус. Постоянная инсталляция  Wirbelwerk Олафура Элиассона. Фото: Studio Olafur Eliasson 
© 2012 Olafur Eliasson
Музей Ленбаххаус. Постоянная инсталляция Wirbelwerk Олафура Элиассона. Фото: Studio Olafur Eliasson © 2012 Olafur Eliasson
Музей Ленбаххаус. Постоянная инсталляция  Wirbelwerk Олафура Элиассона. Фото: Studio Olafur Eliasson 
© 2012 Olafur Eliasson
Музей Ленбаххаус. Постоянная инсталляция Wirbelwerk Олафура Элиассона. Фото: Studio Olafur Eliasson © 2012 Olafur Eliasson
Музей Ленбаххаус © Foster + Partners
Музей Ленбаххаус © Foster + Partners
Музей Ленбаххаус © Foster + Partners
Музей Ленбаххаус © Foster + Partners
Музей Ленбаххаус © Foster + Partners
Музей Ленбаххаус © Foster + Partners
Музей Ленбаххаус © Foster + Partners
Музей Ленбаххаус © Foster + Partners
Музей Ленбаххаус © Foster + Partners
Музей Ленбаххаус © Foster + Partners
Музей Ленбаххаус © Foster + Partners
Музей Ленбаххаус © Foster + Partners
Музей Ленбаххаус © Foster + Partners
Музей Ленбаххаус © Foster + Partners
Музей Ленбаххаус © Foster + Partners
Музей Ленбаххаус © Foster + Partners