Размещено на портале Архи.ру (www.archi.ru)

16.05.2013

Парламент в суде

Объект:
Парламент провинции Наварра
Адрес:
Испания, None, Памплона.
Мастерская:
Otxotorena Arquitectos

Otxotorena Arquitectos завершили более чем 10-летнюю работу над зданием Парламента провинции Наварра в испанской Памплоне.

Парламент провинции Наварра © José Manuel Cutillas
Парламент провинции Наварра © José Manuel Cutillas
Проект, стартовавший еще в 2002 и стоивший порядка 9 млн евро, предусматривал реконструкцию одного из знаковых памятников города — здания суда, построенного еще в конце 19 века архитектором Хулианом Артеагой Саэнсом. Перед архитекторами стояли две почти противоречащие друг другу задачи: как можно более полно сохранить историческое наследие и, одновременно, серьезно трансформировать внутреннюю структуру здания под функции современного парламента.
Парламент провинции Наварра © José Manuel Cutillas
Парламент провинции Наварра © José Manuel Cutillas

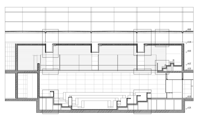
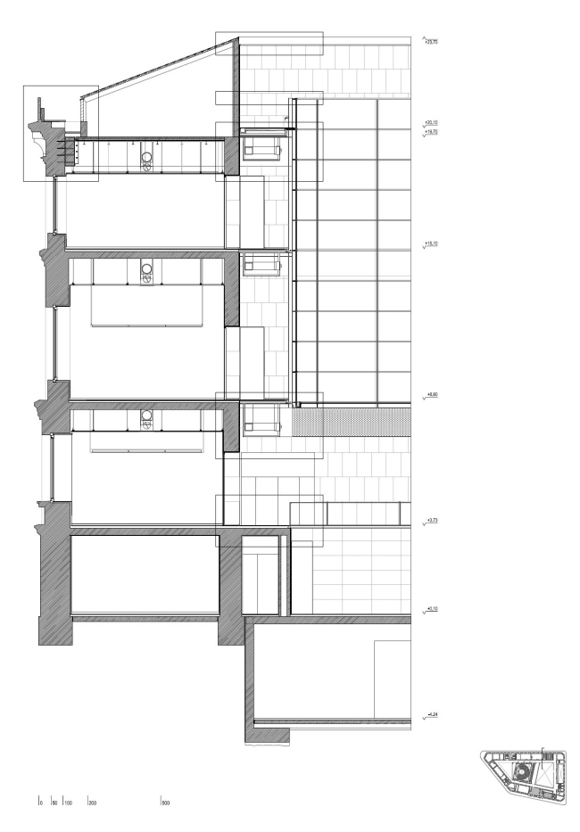
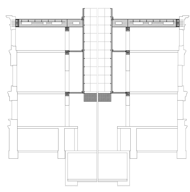
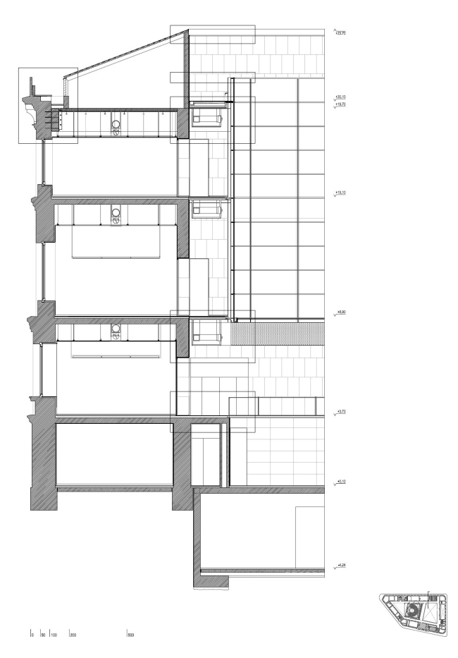
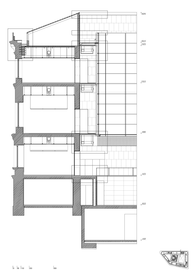
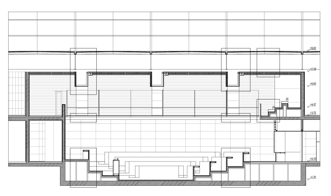
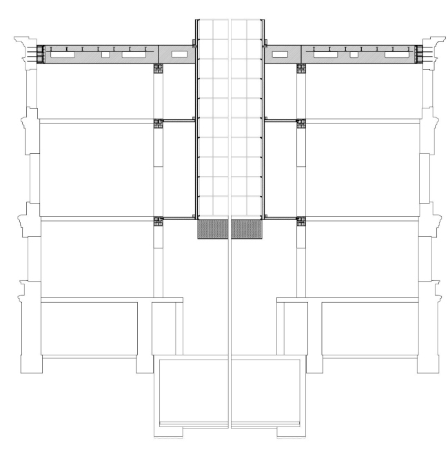
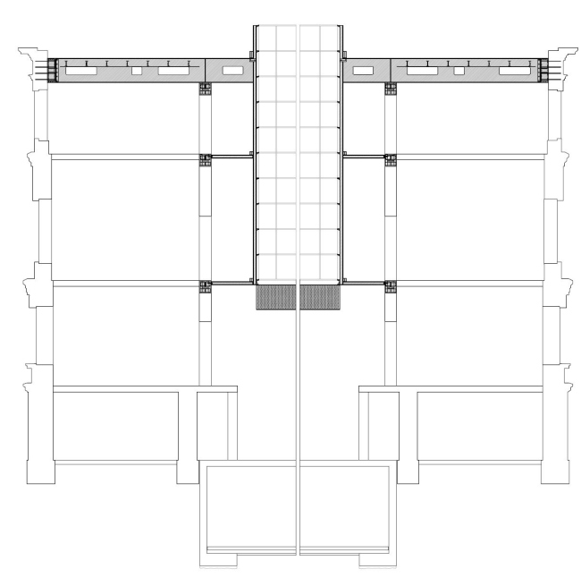
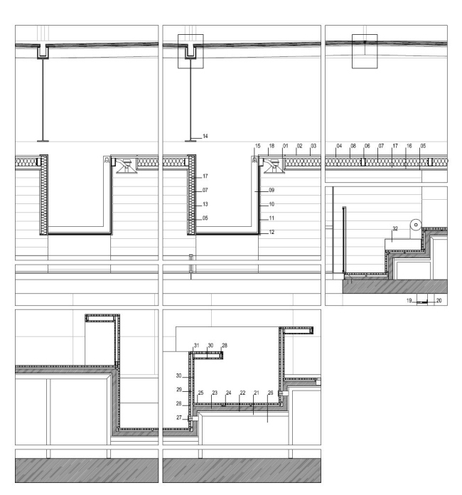
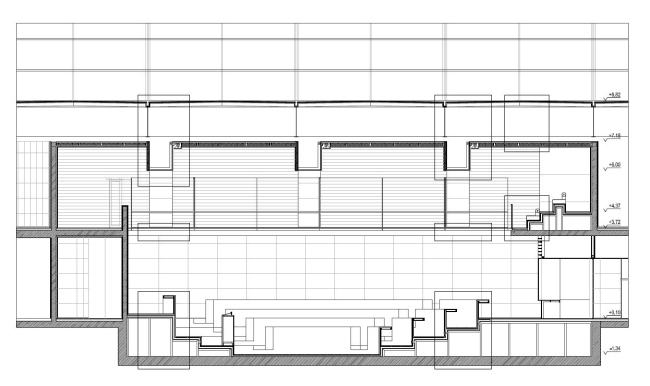
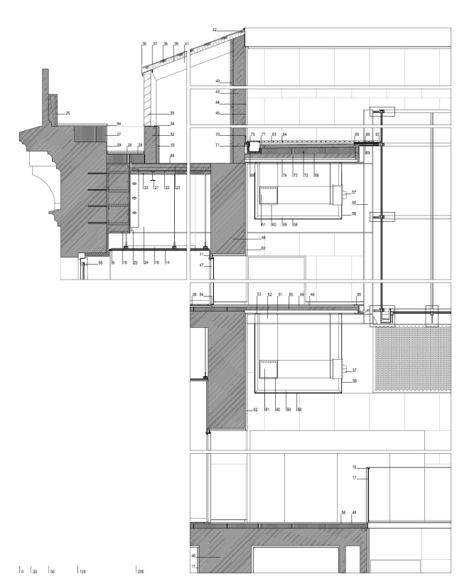
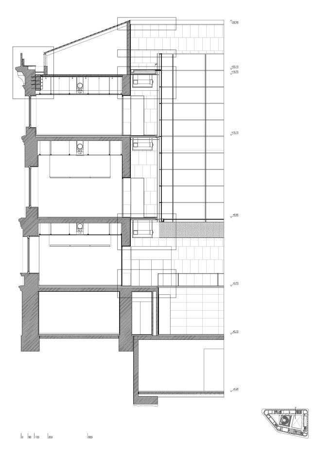
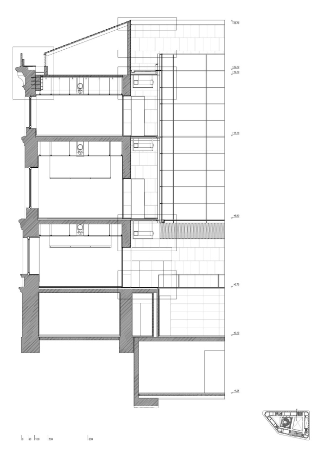
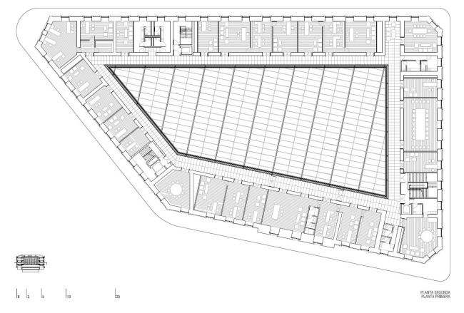
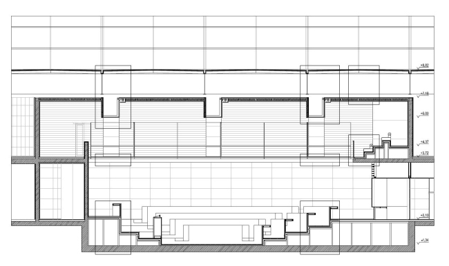
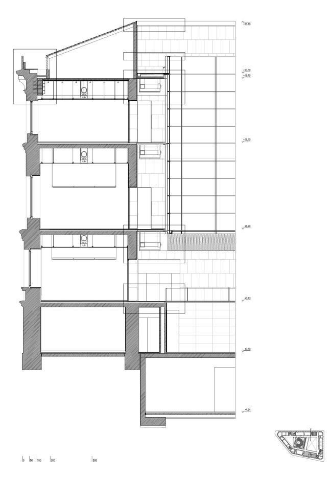
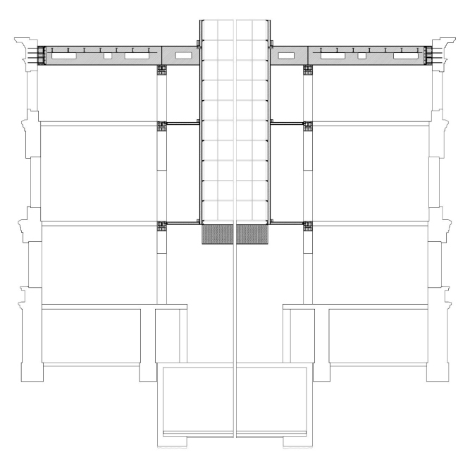
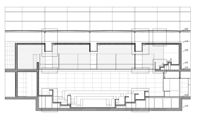
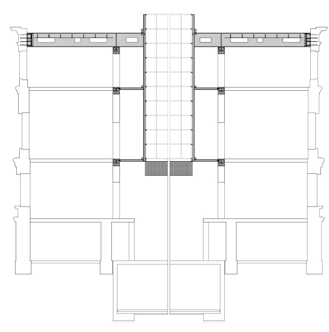
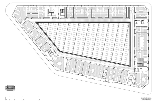
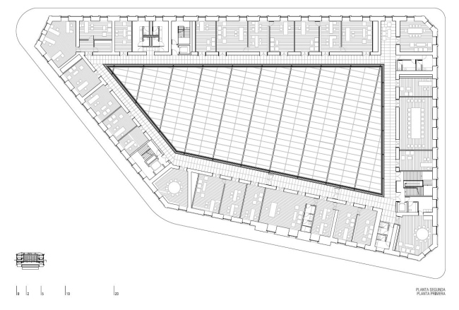
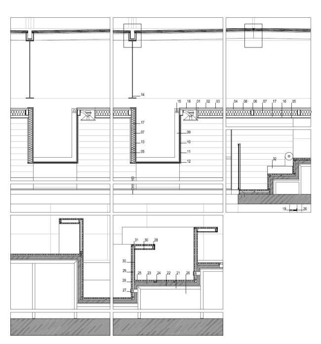
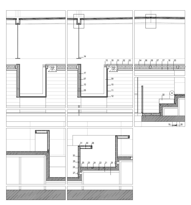
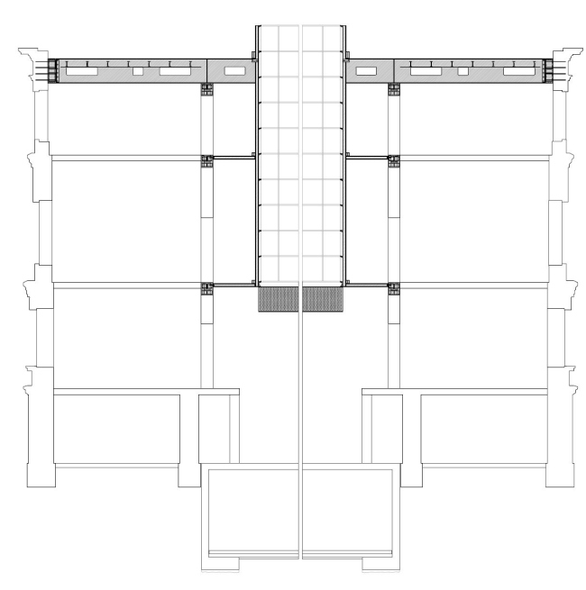
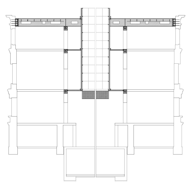
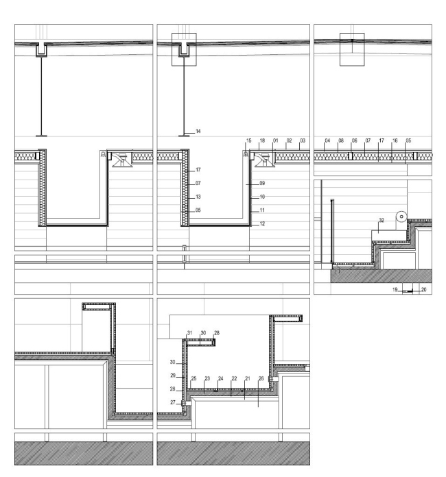
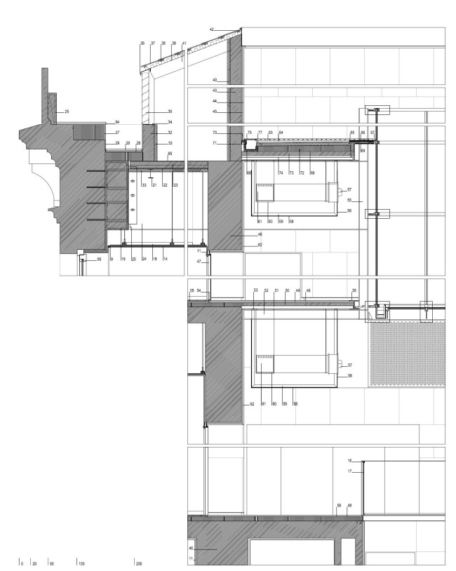
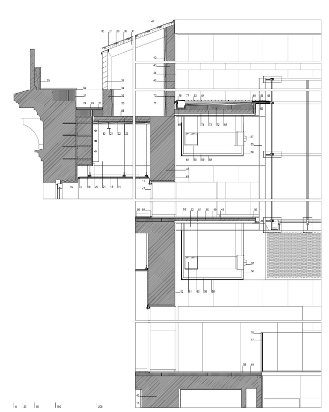
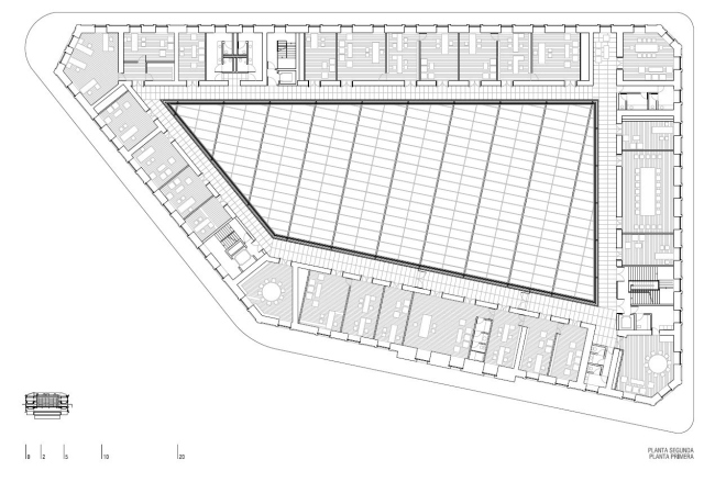
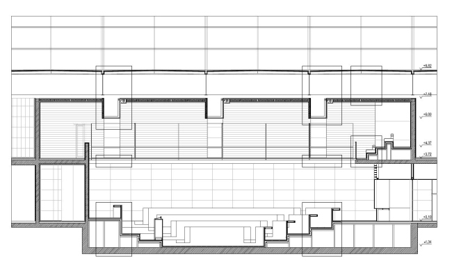
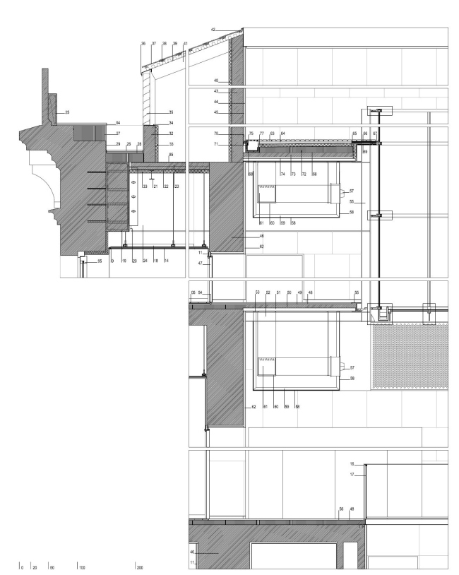
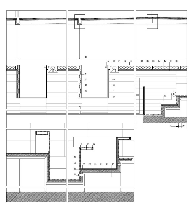
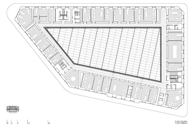
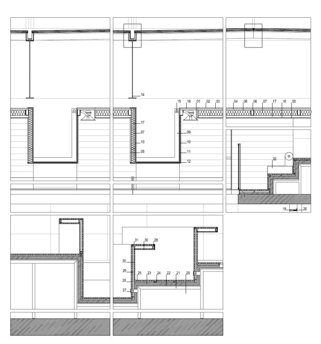
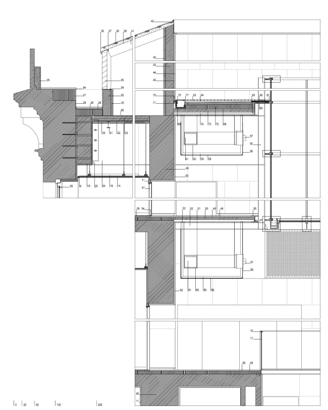
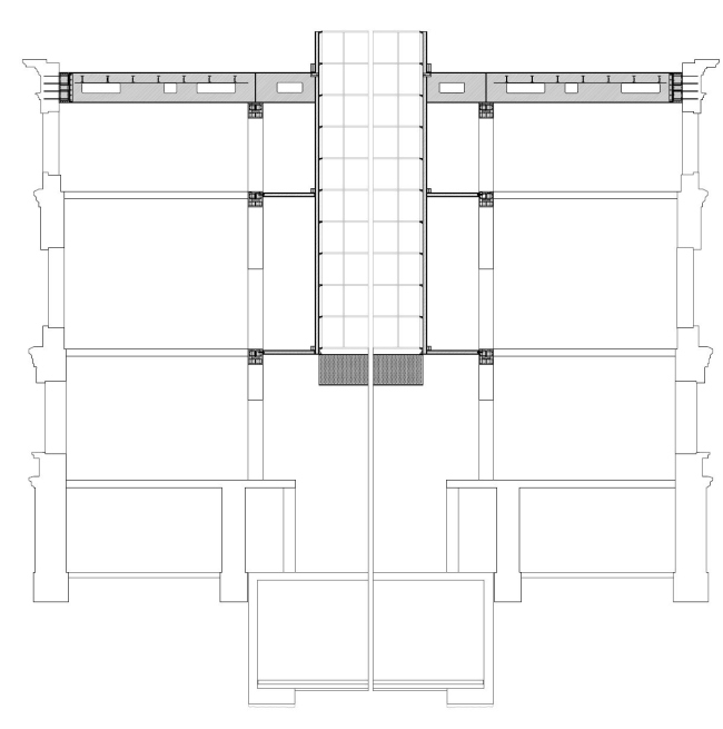
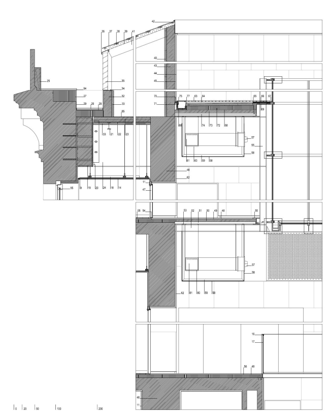
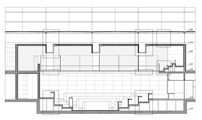
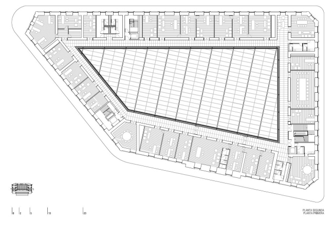
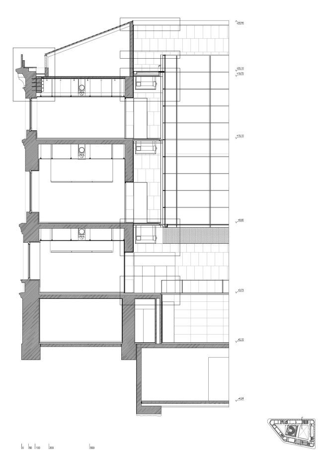
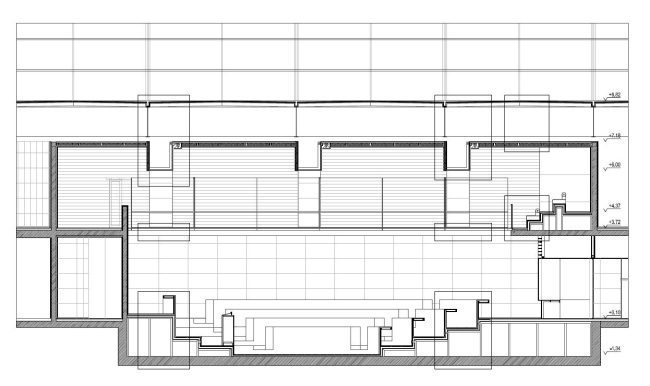
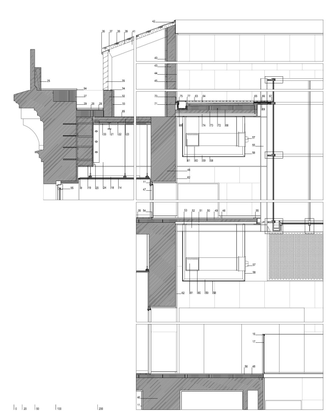
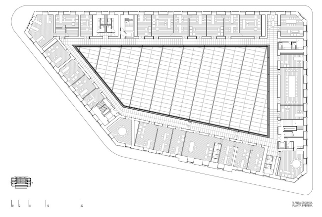
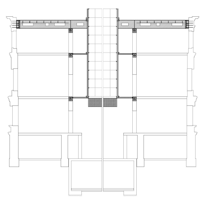
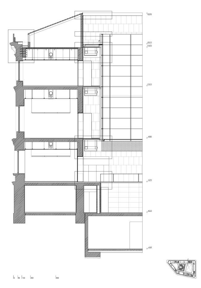
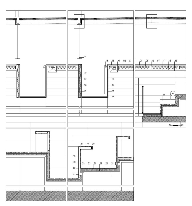
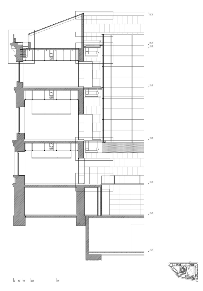
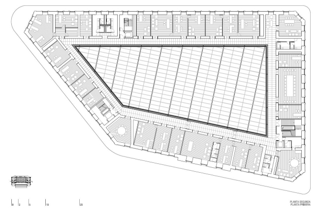
План постройки имеет форму неправильного четырехугольника. Ее внешние фасады просто отреставрировали, а внутренние решено было забрать прозрачными стеклянными панелями. Новая «кожа» держится с помощью сложной системы стальных крепежей и балок, причем некоторые балки имеют перфорацию, что создает более сложную световую игру. Таким образом, архитекторам удалось полностью застеклить и внутренний двор, причем без использования дополнительных опор.
Парламент провинции Наварра © José Manuel Cutillas
Парламент провинции Наварра © José Manuel Cutillas

Реконструированное здание общей площадью более 11 000 м2 имеет четкую вертикальную организацию. Центр нижнего этажа занимают зал заседаний Парламента и просторный атриум, по краям расположены общественные зоны: кафетерий, библиотека, архив, помещение для пресс-конференций, гардеробные, зоны хранения. Второй этаж отдан исполнительной власти, а так же юридическим и социальным институтам. На третьем и четвертом находятся кабинеты депутатов и офисы сотрудников.

Л. М.
Парламент провинции Наварра © José Manuel Cutillas
Парламент провинции Наварра © José Manuel Cutillas
Парламент провинции Наварра © José Manuel Cutillas
Парламент провинции Наварра © José Manuel Cutillas
Парламент провинции Наварра © José Manuel Cutillas
Парламент провинции Наварра © José Manuel Cutillas
Парламент провинции Наварра © José Manuel Cutillas
Парламент провинции Наварра © José Manuel Cutillas
Парламент провинции Наварра © José Manuel Cutillas
Парламент провинции Наварра © José Manuel Cutillas
Парламент провинции Наварра © José Manuel Cutillas
Парламент провинции Наварра © José Manuel Cutillas
Парламент провинции Наварра © José Manuel Cutillas
Парламент провинции Наварра © José Manuel Cutillas
Парламент провинции Наварра © José Manuel Cutillas
Парламент провинции Наварра © José Manuel Cutillas
Парламент провинции Наварра © José Manuel Cutillas
Парламент провинции Наварра © José Manuel Cutillas
Парламент провинции Наварра © José Manuel Cutillas
Парламент провинции Наварра © José Manuel Cutillas
Парламент провинции Наварра © José Manuel Cutillas
Парламент провинции Наварра © José Manuel Cutillas
Парламент провинции Наварра © José Manuel Cutillas
Парламент провинции Наварра © José Manuel Cutillas
Парламент провинции Наварра © José Manuel Cutillas
Парламент провинции Наварра © José Manuel Cutillas
Парламент провинции Наварра © José Manuel Cutillas
Парламент провинции Наварра © José Manuel Cutillas
Парламент провинции Наварра © José Manuel Cutillas
Парламент провинции Наварра © José Manuel Cutillas
Парламент провинции Наварра © José Manuel Cutillas
Парламент провинции Наварра © José Manuel Cutillas
Парламент провинции Наварра © José Manuel Cutillas
Парламент провинции Наварра © José Manuel Cutillas
Парламент провинции Наварра © Otxotorena Arquitectos
Парламент провинции Наварра © Otxotorena Arquitectos
Парламент провинции Наварра © Otxotorena Arquitectos
Парламент провинции Наварра © Otxotorena Arquitectos
Парламент провинции Наварра © Otxotorena Arquitectos
Парламент провинции Наварра © Otxotorena Arquitectos
Парламент провинции Наварра © Otxotorena Arquitectos
Парламент провинции Наварра © Otxotorena Arquitectos
Парламент провинции Наварра © Otxotorena Arquitectos
Парламент провинции Наварра © Otxotorena Arquitectos
Парламент провинции Наварра © Otxotorena Arquitectos
Парламент провинции Наварра © Otxotorena Arquitectos
Парламент провинции Наварра © Otxotorena Arquitectos
Парламент провинции Наварра © Otxotorena Arquitectos
Парламент провинции Наварра © Otxotorena Arquitectos
Парламент провинции Наварра © Otxotorena Arquitectos
Парламент провинции Наварра © Otxotorena Arquitectos
Парламент провинции Наварра © Otxotorena Arquitectos
Парламент провинции Наварра © Otxotorena Arquitectos
Парламент провинции Наварра © Otxotorena Arquitectos
Парламент провинции Наварра © Otxotorena Arquitectos
Парламент провинции Наварра © Otxotorena Arquitectos
Парламент провинции Наварра © Otxotorena Arquitectos
Парламент провинции Наварра © Otxotorena Arquitectos
Парламент провинции Наварра © Otxotorena Arquitectos
Парламент провинции Наварра © Otxotorena Arquitectos
Парламент провинции Наварра © Otxotorena Arquitectos
Парламент провинции Наварра © Otxotorena Arquitectos
Парламент провинции Наварра © Otxotorena Arquitectos
Парламент провинции Наварра © Otxotorena Arquitectos
Парламент провинции Наварра © Otxotorena Arquitectos
Парламент провинции Наварра © Otxotorena Arquitectos
Парламент провинции Наварра © Otxotorena Arquitectos
Парламент провинции Наварра © Otxotorena Arquitectos
Парламент провинции Наварра © Otxotorena Arquitectos
Парламент провинции Наварра © Otxotorena Arquitectos
Парламент провинции Наварра © Otxotorena Arquitectos
Парламент провинции Наварра © Otxotorena Arquitectos
Парламент провинции Наварра © Otxotorena Arquitectos
Парламент провинции Наварра © Otxotorena Arquitectos
Парламент провинции Наварра © Otxotorena Arquitectos
Парламент провинции Наварра © Otxotorena Arquitectos