Размещено на портале Архи.ру (www.archi.ru)

07.05.2013

В духе соцстроительства

Нина Фролова
Объект:
Университет Агостиньо Нето
Адрес:
Ангола, None, Луанда.
Мастерская:
Perkins+Will
Авторский коллектив:
Design Principal: Ralph Johnson, FAIA, LEED AP (registered architect)
Project Director: G. William Doerge (registered architect)
Architectural Design and Technical Team: David Gutierrez (registered architect); Thomas Demetrion; Cengiz Yetken (registered architect); Mark Hartmann (registered architect); Kenneth Soch (registered architect); Marius Ronnett (registered architect); Nathalie Belanger; Bryce de Reynier (registered architect); Todd Snapp (registered architect); Angel Ortiz; Flavia de Almeida; Lori Day; Todd Accardi (registered architect); John Ruthven; Jeffrey Hayner; Michael Weiner (registered architect); Michael McPhail (registered architect)

Бюро Perkins+Will реализовало первую очередь кампуса Университета Агостиньо Нето в столице Анголы Луанде.

Университет Агостиньо Нето © 2012 James Steinkamp, Steinkamp Photography
Университет Агостиньо Нето © 2012 James Steinkamp, Steinkamp Photography
Речь идет о крупном образовательном комплексе для главного вуза страны: власти выделили под его строительство участок в  2000 га к югу от Луанды, и кампус должен стать ключевым элементом развития города в этом направлении. Сначала речь шла о университетском городке на 17 000 студентов, и Perkins+Will разработали соответствующий мастерплан, но затем заказчики попросили увеличить его будущую вместимость до 40 000 учащихся.
Университет Агостиньо Нето © 2012 James Steinkamp, Steinkamp Photography
Университет Агостиньо Нето © 2012 James Steinkamp, Steinkamp Photography

Первая очередь кампуса Университета с общей площадью 32,5 тыс. м2 стоила 175 млн долларов США, вторая, хотя и в 2 раза больше, будет стоить 150 млн. Эта амбициозная программа строительства стала необходимостью потому, что после окончания в 2002 гражданской войны Ангола переживает экономический подъем, быстро растет население, и количество студентов тоже увеличивается, хотя в 2000 их было всего 9100. Университет Агостиньо Нето имеет отделения по всей стране, но именно новый столичный кампус призван стать национальным образовательным центром.
Университет Агостиньо Нето © 2012 James Steinkamp, Steinkamp Photography
Университет Агостиньо Нето © 2012 James Steinkamp, Steinkamp Photography

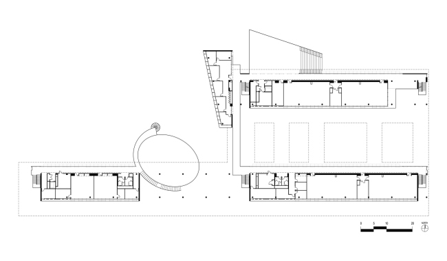
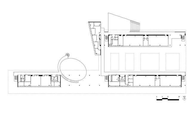
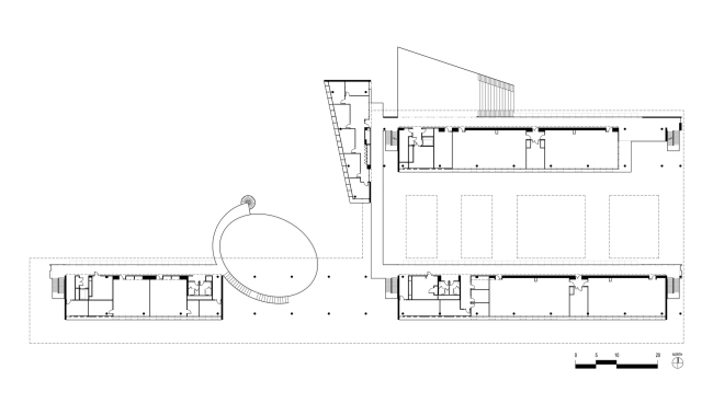
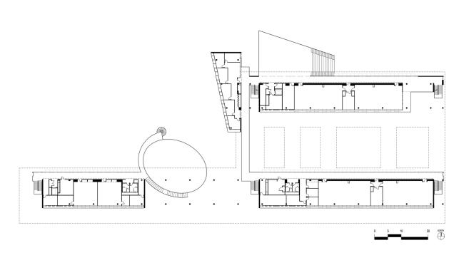
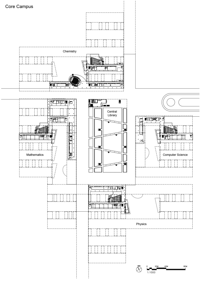
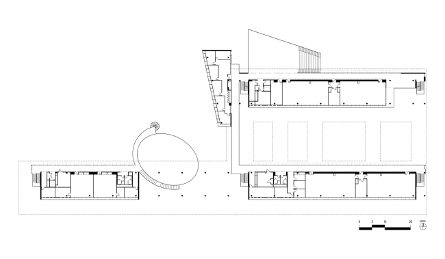
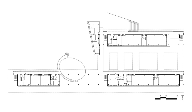
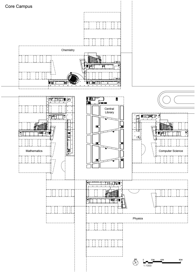
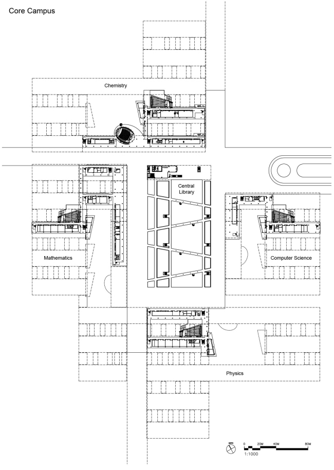
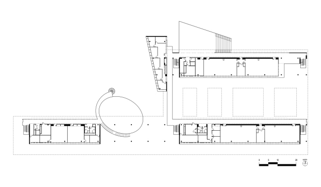
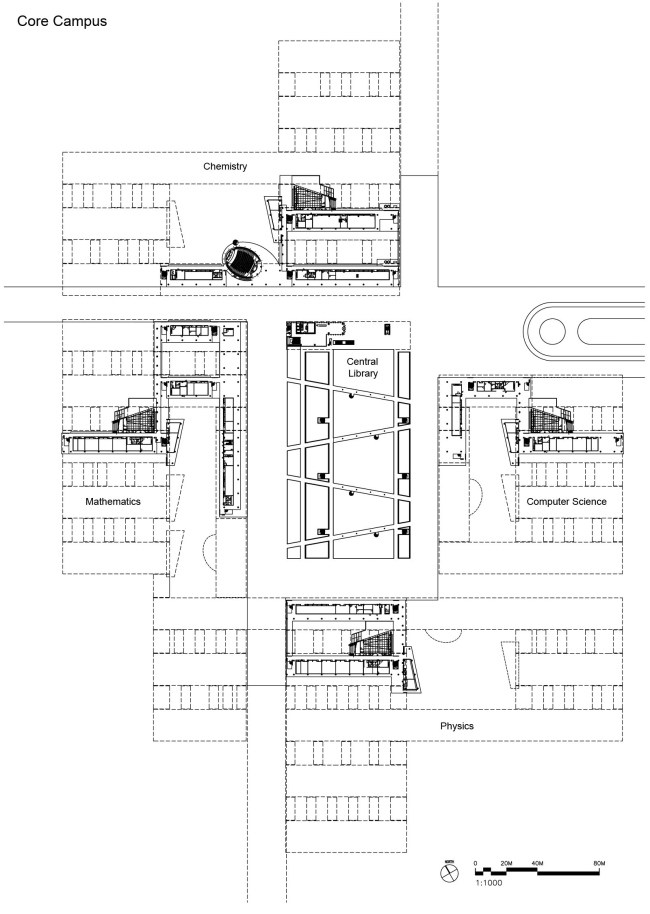
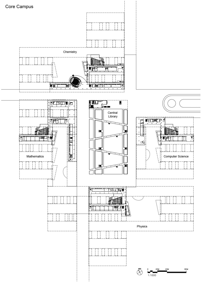
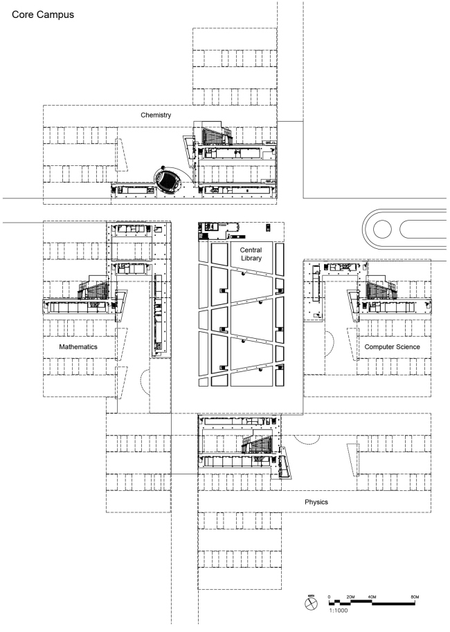
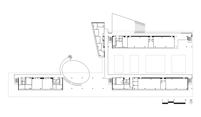
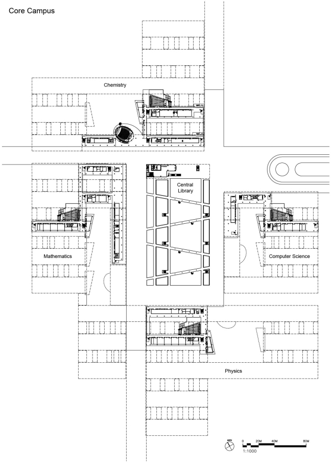
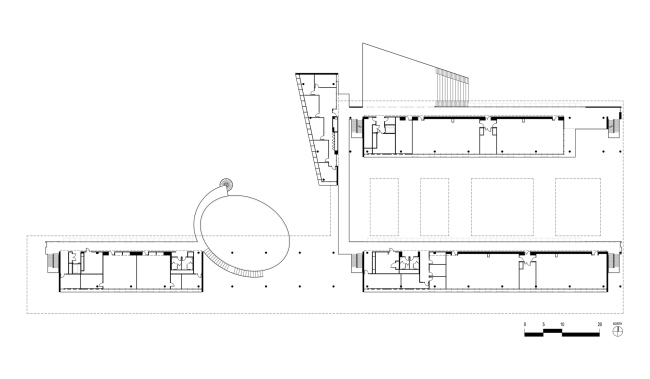
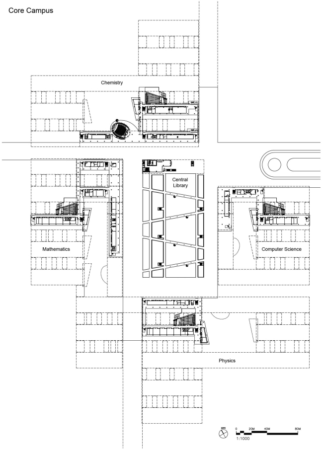
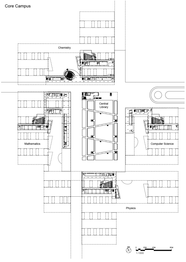
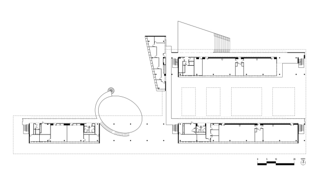
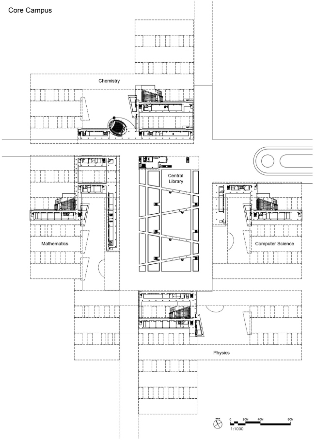
Архитекторы разделили его воплощение на 6 этапов, и строительство второй очереди уже идет. Окончательная реализация проекта еще не близко, а вузу новые площади нужны сейчас, поэтому сданные первыми здания представляют собой кампус в миниатюре. Это так называемое «ядро» из 4 учебных корпусов и библиотеки, напоминающей очертаниями портовый кран. Они окружены овальной кольцевой дорогой и вписаны в треугольник между двумя сливающимися реками. Между шоссе и их берегами запланирована зеленая зона, где планируется сохранить в нетронутом состоянии лес.
Университет Агостиньо Нето © 2012 James Steinkamp, Steinkamp Photography
Университет Агостиньо Нето © 2012 James Steinkamp, Steinkamp Photography

Планировка кампуса, несмотря на наличие «ядра» в месте пересечения его двух осей, подчеркнуто демократична – имеющиеся и будущие постройки расположены свободно, без иерархии. Кроме учебных корпусов, там разместятся исследовательский центр и жилье для студентов и преподавателей. Вся территория связана сетью пешеходных дорожек, а движение машин ограничено. Особая роль отведена дворам и другим общественным пространствам, которые могут служить «аудиториями под открытым небом».
Университет Агостиньо Нето © 2012 James Steinkamp, Steinkamp Photography
Университет Агостиньо Нето © 2012 James Steinkamp, Steinkamp Photography

Заказчикам, руководству вуза и сотрудникам министерства образования, воспитанным в коммунистическом духе – Агостиньо Нето, первый президент независимой Анголы, был большим другом Советского Союза – понравились эти вполне социалистические идеи Perkins+Will. Архитектурное решение корпусов связано с тем же социалистическим периодом: оно напоминает о модернистских постройках Луанды – поднятых над землей на опорах и защищенных солнцерезами.
Университет Агостиньо Нето © 2012 James Steinkamp, Steinkamp Photography
Университет Агостиньо Нето © 2012 James Steinkamp, Steinkamp Photography

Главная цель авторов проекта – с помощью высоких технологий и точных исследований создать «лоу-тек», не требующий больших затрат на строительство и эксплуатацию. Постройки сооружены из модульных элементов, там преобладают бетон, крашенные стальные конструкции, стеклянные навесные стены с алюминиевыми профилями. Кондиционеры установлены только в библиотеке, учебные корпуса полагаются на естественную вентиляцию. Поэтому архитекторы сделали их узкими и длинными, и их продольные фасады расположены перпендикулярно преобладающему направлению ветров – с Атлантики. Чтобы «загнать» свежий воздух внутрь, здания и дворы перекрыты зигзагообразными кровлями, создающими перепад давления по принципу крыла самолета. Кроме того, двор, встречающий ветер, засажен «поясами» деревьев, охлаждающих, обеспыливающих и направляющих воздух в помещения, а во дворе, расположенном с противоположной стороны, сохранена растительность саванны: он всегда разогрет солнцем и «вытягивает» воздух из зданий.
Университет Агостиньо Нето © 2012 James Steinkamp, Steinkamp Photography
Университет Агостиньо Нето © 2012 James Steinkamp, Steinkamp Photography

Также определило решение постройки использование естественного освещения в сочетании с затенением. Для последнего было оптимальным сориентировать здания по оси восток-запад, но это помешало бы улавливанию ветра, поэтому здания обращены на юг и север с отклонением в 19°. Южный и северный фасад закрыты солнцезащитными экранами, так как из-за близости экватора оба сильно освещает и нагревает солнце. Стены окрашены в приглушенные тона, так как яркие цвета быстрее выгорают на солнце.
Университет Агостиньо Нето © 2012 James Steinkamp, Steinkamp Photography
Университет Агостиньо Нето © 2012 James Steinkamp, Steinkamp Photography

Пока кампус готов на 1/6 часть, в библиотеке располагаются столовая, студенческий союз и другие нужные вузу заведения, но в будущем их переведут в другие здания, а эта 5-этажная постройка сохранит свою роль высотной доминанты в центре кампуса. Она окружена плазой и садом, которые служат альтернативным читальным залом.
Университет Агостиньо Нето © 2012 James Steinkamp, Steinkamp Photography
Университет Агостиньо Нето © 2012 James Steinkamp, Steinkamp Photography

В 4 учебных корпусах в 2–3 этажа высотой разместились четыре ключевых отделения университета – математики, физики, химии и компьютерных наук. Там на нижнем этаже расположены семинарские аудитории, а выше – кабинеты преподавателей. Также в каждом корпусе имеются поточная аудитория, административные помещения, учебные лаборатории и «аудитории-ассамблеи» – амфитеатры во дворах. Расположенные крестом корпуса образуют, кроме двух дворов, отвечающих за вентиляцию, еще два – ботанический и питомник.
Университет Агостиньо Нето © 2012 James Steinkamp, Steinkamp Photography
Университет Агостиньо Нето © 2012 James Steinkamp, Steinkamp Photography

Ангола с ее богатыми природными ресурсами, авторитарным режимом и нищим населением не может считаться примером для подражания даже в своем регионе, но нельзя не задуматься: что же позволило ей реализовать этот по любым меркам образцовый проект, если подобные планы часто буксуют и в более благополучных странах, одну из которых мы хорошо знаем.
Университет Агостиньо Нето © 2012 James Steinkamp, Steinkamp Photography
Университет Агостиньо Нето © 2012 James Steinkamp, Steinkamp Photography
Университет Агостиньо Нето © 2012 James Steinkamp, Steinkamp Photography
Университет Агостиньо Нето © 2012 James Steinkamp, Steinkamp Photography
Университет Агостиньо Нето © 2012 James Steinkamp, Steinkamp Photography
Университет Агостиньо Нето © 2012 James Steinkamp, Steinkamp Photography
Университет Агостиньо Нето © 2012 James Steinkamp, Steinkamp Photography
Университет Агостиньо Нето © 2012 James Steinkamp, Steinkamp Photography
Университет Агостиньо Нето © 2012 James Steinkamp, Steinkamp Photography
Университет Агостиньо Нето © 2012 James Steinkamp, Steinkamp Photography
Университет Агостиньо Нето. Предоставлено Perkins+Will
Университет Агостиньо Нето. Предоставлено Perkins+Will
Университет Агостиньо Нето © 2012 James Steinkamp, Steinkamp Photography
Университет Агостиньо Нето © 2012 James Steinkamp, Steinkamp Photography
Университет Агостиньо Нето © 2012 James Steinkamp, Steinkamp Photography
Университет Агостиньо Нето © 2012 James Steinkamp, Steinkamp Photography
Университет Агостиньо Нето © 2012 James Steinkamp, Steinkamp Photography
Университет Агостиньо Нето © 2012 James Steinkamp, Steinkamp Photography
Университет Агостиньо Нето © 2012 James Steinkamp, Steinkamp Photography
Университет Агостиньо Нето © 2012 James Steinkamp, Steinkamp Photography
Университет Агостиньо Нето © 2012 James Steinkamp, Steinkamp Photography
Университет Агостиньо Нето © 2012 James Steinkamp, Steinkamp Photography
Университет Агостиньо Нето © 2012 James Steinkamp, Steinkamp Photography
Университет Агостиньо Нето © 2012 James Steinkamp, Steinkamp Photography
Университет Агостиньо Нето. Предоставлено Perkins+Will
Университет Агостиньо Нето. Предоставлено Perkins+Will
Университет Агостиньо Нето. Предоставлено Perkins+Will
Университет Агостиньо Нето. Предоставлено Perkins+Will
Университет Агостиньо Нето. Предоставлено Perkins+Will
Университет Агостиньо Нето. Предоставлено Perkins+Will
Университет Агостиньо Нето. Предоставлено Perkins+Will
Университет Агостиньо Нето. Предоставлено Perkins+Will
Университет Агостиньо Нето. Предоставлено Perkins+Will
Университет Агостиньо Нето. Предоставлено Perkins+Will
Университет Агостиньо Нето. Предоставлено Perkins+Will
Университет Агостиньо Нето. Предоставлено Perkins+Will
Университет Агостиньо Нето. Предоставлено Perkins+Will
Университет Агостиньо Нето. Предоставлено Perkins+Will
Университет Агостиньо Нето. Предоставлено Perkins+Will
Университет Агостиньо Нето. Предоставлено Perkins+Will
Университет Агостиньо Нето. Предоставлено Perkins+Will
Университет Агостиньо Нето. Предоставлено Perkins+Will
Университет Агостиньо Нето. Предоставлено Perkins+Will
Университет Агостиньо Нето. Предоставлено Perkins+Will
Университет Агостиньо Нето. Предоставлено Perkins+Will
Университет Агостиньо Нето. Предоставлено Perkins+Will
Университет Агостиньо Нето. Предоставлено Perkins+Will
Университет Агостиньо Нето. Предоставлено Perkins+Will
Университет Агостиньо Нето. Предоставлено Perkins+Will
Университет Агостиньо Нето. Предоставлено Perkins+Will
Университет Агостиньо Нето. Предоставлено Perkins+Will
Университет Агостиньо Нето. Предоставлено Perkins+Will
Университет Агостиньо Нето. Предоставлено Perkins+Will
Университет Агостиньо Нето. Предоставлено Perkins+Will
Университет Агостиньо Нето. Предоставлено Perkins+Will
Университет Агостиньо Нето. Предоставлено Perkins+Will
Университет Агостиньо Нето. Предоставлено Perkins+Will
Университет Агостиньо Нето. Предоставлено Perkins+Will
Университет Агостиньо Нето. Предоставлено Perkins+Will
Университет Агостиньо Нето. Предоставлено Perkins+Will
Университет Агостиньо Нето. Предоставлено Perkins+Will
Университет Агостиньо Нето. Предоставлено Perkins+Will