Размещено на портале Архи.ру (www.archi.ru)

08.05.2013

Отель как сад

Анна Мартовицкая
Объект:
Отель Parkroyal on Pickering
Адрес:
Сингапур,
Мастерская:
WOHA

В Сингапуре бюро WOHA построило отель-сад Parkroyal, призванный поднять жанр «зеленой» архитектуры на новую высоту.

Отель Parkroyal on Pickering. Фотография © Patrick Bingham-Hall
Отель Parkroyal on Pickering. Фотография © Patrick Bingham-Hall

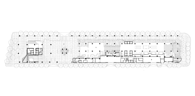
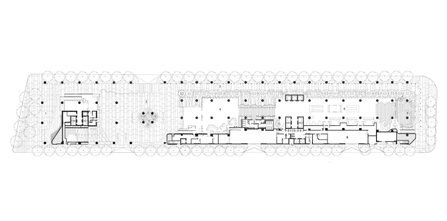
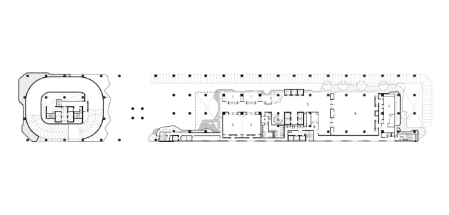
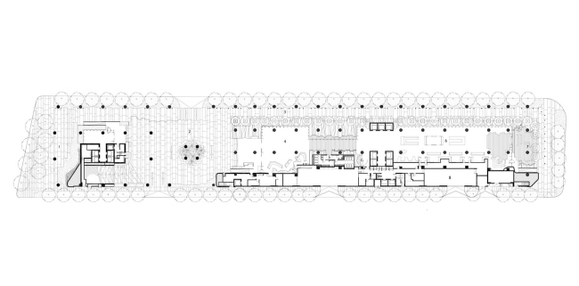
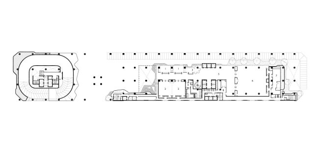
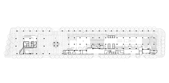
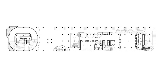
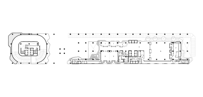
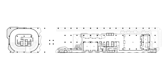
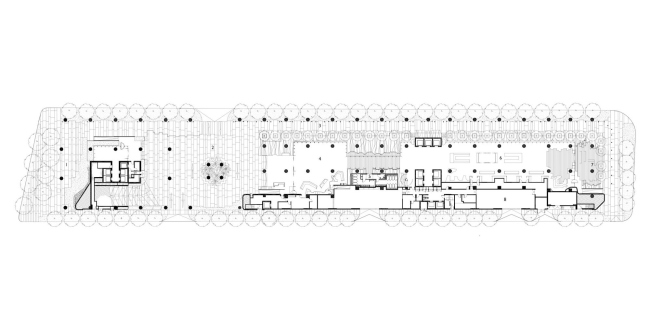
Возводя новый многоэтажный гостиничный комплекс на границе с парком, архитекторы поставили перед собой задачу как минимум удвоить «зеленый потенциал» участка. Добиться этого помогло создание вертикальных садов: зеленые оазисы не только разбиты вокруг отеля, но и интегрированы в здание через каждые четыре этажа.
Отель Parkroyal on Pickering. Фотография © Patrick Bingham-Hall
Отель Parkroyal on Pickering. Фотография © Patrick Bingham-Hall

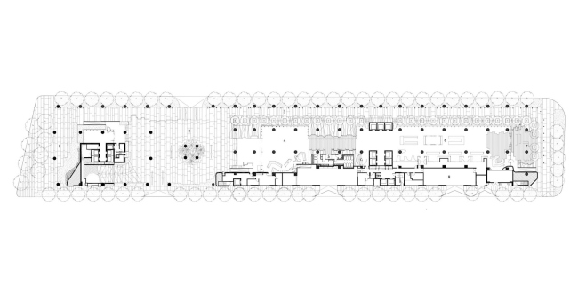
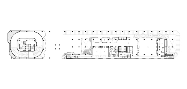
В плане здание представляет собой букву Ш, обращенную к парку. И если сами номера сгруппированы в «перекладинах», имеющих очень подходящую для этого лаконичную геометрию, то между ними архитекторы вживляют платформы нарочито криволинейных очертаний. На этих вставках и размещены сады с буйной растительностью. Помимо вполне традиционных для такого жанра газонов и цветников, здесь также высажены разнообразные кустарники и деревья.
Отель Parkroyal on Pickering. Фотография © Patrick Bingham-Hall
Отель Parkroyal on Pickering. Фотография © Patrick Bingham-Hall

Первые этажи комплекса также представляют собой щедро озелененную проницаемую структуру, отведенные под коммерческие и общественные пространства. Благодаря такому решению отель становится своего рода продолжением парка, словно приподнимая его над землей. По замыслу WOHA, известного своими «зелеными» проектами, отель-сад Parkroyal еще на шаг приблизит превращение каменных джунглей современного мегаполиса в город-сад.
Отель Parkroyal on Pickering. Фотография © Patrick Bingham-Hall
Отель Parkroyal on Pickering. Фотография © Patrick Bingham-Hall
Отель Parkroyal on Pickering. Фотография © Patrick Bingham-Hall
Отель Parkroyal on Pickering. Фотография © Patrick Bingham-Hall
Отель Parkroyal on Pickering. Фотография © Patrick Bingham-Hall
Отель Parkroyal on Pickering. Фотография © Patrick Bingham-Hall
Отель Parkroyal on Pickering. Фотография © Patrick Bingham-Hall
Отель Parkroyal on Pickering. Фотография © Patrick Bingham-Hall
Отель Parkroyal on Pickering. Фотография © Patrick Bingham-Hall
Отель Parkroyal on Pickering. Фотография © Patrick Bingham-Hall
Отель Parkroyal on Pickering. Фотография © Patrick Bingham-Hall
Отель Parkroyal on Pickering. Фотография © Patrick Bingham-Hall
Отель Parkroyal on Pickering. Фотография © Patrick Bingham-Hall
Отель Parkroyal on Pickering. Фотография © Patrick Bingham-Hall
Отель Parkroyal on Pickering. Фотография © Patrick Bingham-Hall
Отель Parkroyal on Pickering. Фотография © Patrick Bingham-Hall
Отель Parkroyal on Pickering. Фотография © Patrick Bingham-Hall
Отель Parkroyal on Pickering. Фотография © Patrick Bingham-Hall
Отель Parkroyal on Pickering. Фотография © Patrick Bingham-Hall
Отель Parkroyal on Pickering. Фотография © Patrick Bingham-Hall
Отель Parkroyal on Pickering. Фотография © Patrick Bingham-Hall
Отель Parkroyal on Pickering. Фотография © Patrick Bingham-Hall
Отель Parkroyal on Pickering. Фотография © Patrick Bingham-Hall
Отель Parkroyal on Pickering. Фотография © Patrick Bingham-Hall
Отель Parkroyal on Pickering. Фотография © Patrick Bingham-Hall
Отель Parkroyal on Pickering. Фотография © Patrick Bingham-Hall
Отель Parkroyal on Pickering. Фотография © Patrick Bingham-Hall
Отель Parkroyal on Pickering. Фотография © Patrick Bingham-Hall
Отель Parkroyal on Pickering. Фотография © Patrick Bingham-Hall
Отель Parkroyal on Pickering. Фотография © Patrick Bingham-Hall
Отель Parkroyal on Pickering. Фотография © Patrick Bingham-Hall
Отель Parkroyal on Pickering. Фотография © Patrick Bingham-Hall
Отель Parkroyal on Pickering. Фотография © Patrick Bingham-Hall
Отель Parkroyal on Pickering. Фотография © Patrick Bingham-Hall
Отель Parkroyal on Pickering. Фотография © Patrick Bingham-Hall
Отель Parkroyal on Pickering. Фотография © Patrick Bingham-Hall
Отель Parkroyal on Pickering. Фотография © Patrick Bingham-Hall
Отель Parkroyal on Pickering. Фотография © Patrick Bingham-Hall
Отель Parkroyal on Pickering. Фотография © Patrick Bingham-Hall
Отель Parkroyal on Pickering. Фотография © Patrick Bingham-Hall
Отель Parkroyal on Pickering. Фотография © Patrick Bingham-Hall
Отель Parkroyal on Pickering. Фотография © Patrick Bingham-Hall
Отель Parkroyal on Pickering. Фотография © Patrick Bingham-Hall
Отель Parkroyal on Pickering. Фотография © Patrick Bingham-Hall
Отель Parkroyal © WOHA
Отель Parkroyal © WOHA
Отель Parkroyal © WOHA
Отель Parkroyal © WOHA
Отель Parkroyal © WOHA
Отель Parkroyal © WOHA
Отель Parkroyal © WOHA
Отель Parkroyal © WOHA
Отель Parkroyal © WOHA
Отель Parkroyal © WOHA