Размещено на портале Архи.ру (www.archi.ru)

26.04.2013

Водная плаза

Объект:
Международный центр Villa Méditerranée
Адрес:
Франция, None, Марсель.

В порту Марселя открылся культурный центр Villa Méditerranée, спроектированный Стефано Боери.

Международный центр Villa Méditerranée © Carlo Alberto Mari
Международный центр Villa Méditerranée © Carlo Alberto Mari
В 2013 Марсель исполняет роль Европейской столицы культуры, и к этой дате в городской гавани появилась серия новых общественных и культурных объектов. О павильоне Нормана Фостера мы уже писали, впереди остается главное событие – открытие музея цивилизаций Европы и Средиземноморья (MUCEM) Руди Риччотти, а располагающийся бок о бок с ним центр Villa Méditerranée был торжественно введен в строй в этом месяце.
Международный центр Villa Méditerranée © Carlo Alberto Mari
Международный центр Villa Méditerranée © Carlo Alberto Mari

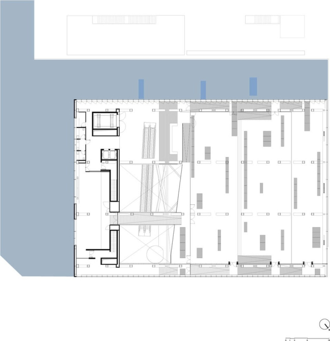
Это здание предназначено для проведения разнообразных конференций и съездов, а также выставок. Все они посвящены Средиземноморью как общности, где море издревле объединяет разные континенты, страны и народы, его древним культурам и современным проблемам и перспективам развития. Двойная программа — конгрессы и экспозиция — получила выражение в двухчастной структуре здания. Аудитория и сопутствующие помещения расположены в подземной части площадью 2500 м2, а галереи (1500 м2) — в 36-метровом консольном выносе.
Международный центр Villa Méditerranée © Carlo Alberto Mari
Международный центр Villa Méditerranée © Carlo Alberto Mari

Формально объединяет их атриум, но смысловую связь осуществляет небольшой, связанный с морем бассейн. Эта «водная плаза» находится под выставочным залом и над подземным ярусом, в его дне устроены остекленные проемы для освещения конференц-центра, а на нижней поверхности консоли также сделаны глядящие на воду окна. Этот водоем можно использовать как плавательный бассейн, причал для маленьких лодок и даже для рыбалки. Это вовсе не излишне, несмотря на близость «настоящей воды» (Villa Méditerranée расположена у основания мыса Туретт): здесь Боери предлагает горожанам эту стихию в более камерном и «обжитом» варианте.
Международный центр Villa Méditerranée © Carlo Alberto Mari
Международный центр Villa Méditerranée © Carlo Alberto Mari

Консоль над водой напоминает о портовых кранах и других промышленных сооружениях: для архитектора это далеко не новые тема и мотив, достаточно вспомнить его комплекс на острове Маддалена близ Сардинии. Здесь вынос поддерживают 4 фермы, за стабилизацию которых отвечают тяжелые бетонные панели морского и городского фасадов, поверхность которых прорезана лишь узкими лентами окон. Зато торцевые стены полностью остеклены, обеспечивая, наряду с проемами в кровле, освещение интерьера.

Н. Ф.
Международный центр Villa Méditerranée © Carlo Alberto Mari
Международный центр Villa Méditerranée © Carlo Alberto Mari
Международный центр Villa Méditerranée © Paolo Rosselli
Международный центр Villa Méditerranée © Paolo Rosselli
Международный центр Villa Méditerranée © Paolo Rosselli
Международный центр Villa Méditerranée © Paolo Rosselli
Международный центр Villa Méditerranée © Paolo Rosselli
Международный центр Villa Méditerranée © Paolo Rosselli
Международный центр Villa Méditerranée © Paolo Rosselli
Международный центр Villa Méditerranée © Paolo Rosselli
Международный центр Villa Méditerranée © Carlo Alberto Mari
Международный центр Villa Méditerranée © Carlo Alberto Mari
Международный центр Villa Méditerranée © Carlo Alberto Mari
Международный центр Villa Méditerranée © Carlo Alberto Mari
Международный центр Villa Méditerranée © Carlo Alberto Mari
Международный центр Villa Méditerranée © Carlo Alberto Mari
Международный центр Villa Méditerranée © Paolo Rosselli
Международный центр Villa Méditerranée © Paolo Rosselli
Международный центр Villa Méditerranée © Paolo Rosselli
Международный центр Villa Méditerranée © Paolo Rosselli
Международный центр Villa Méditerranée © Carlo Alberto Mari
Международный центр Villa Méditerranée © Carlo Alberto Mari
Международный центр Villa Méditerranée © Paolo Rosselli
Международный центр Villa Méditerranée © Paolo Rosselli
Международный центр Villa Méditerranée © Carlo Alberto Mari
Международный центр Villa Méditerranée © Carlo Alberto Mari
Международный центр Villa Méditerranée © Paolo Rosselli
Международный центр Villa Méditerranée © Paolo Rosselli
Международный центр Villa Méditerranée © Carlo Alberto Mari
Международный центр Villa Méditerranée © Carlo Alberto Mari
Международный центр Villa Méditerranée © Paolo Rosselli
Международный центр Villa Méditerranée © Paolo Rosselli
Международный центр Villa Méditerranée © Paolo Rosselli
Международный центр Villa Méditerranée © Paolo Rosselli
Международный центр Villa Méditerranée © Carlo Alberto Mari
Международный центр Villa Méditerranée © Carlo Alberto Mari
Международный центр Villa Méditerranée © Carlo Alberto Mari
Международный центр Villa Méditerranée © Carlo Alberto Mari
Международный центр Villa Méditerranée © © Boeri Studio
Международный центр Villa Méditerranée © © Boeri Studio
Международный центр Villa Méditerranée © © Boeri Studio
Международный центр Villa Méditerranée © © Boeri Studio
Международный центр Villa Méditerranée © © Boeri Studio
Международный центр Villa Méditerranée © © Boeri Studio
Международный центр Villa Méditerranée © © Boeri Studio
Международный центр Villa Méditerranée © © Boeri Studio
Международный центр Villa Méditerranée © © Boeri Studio
Международный центр Villa Méditerranée © © Boeri Studio
Международный центр Villa Méditerranée © © Boeri Studio
Международный центр Villa Méditerranée © © Boeri Studio
Международный центр Villa Méditerranée © © Boeri Studio
Международный центр Villa Méditerranée © © Boeri Studio