Размещено на портале Архи.ру (www.archi.ru)

23.04.2013

Офис с пропеллером

Анна Мартовицкая
Объект:
Штаб-квартира компании Statoil в Осло
Адрес:
Норвегия, None, Осло.
Мастерская:
A-lab
ЮЭМСИ РУССИЯ \ UMC

По проекту архитектурного бюро a-lab в пригороде Осло построена новая штаб-квартира Statoil, крупнейшей нефтяной компании Норвегии.

Штаб-квартира компании Statoil © Luis Fonseca
Штаб-квартира компании Statoil © Luis Fonseca
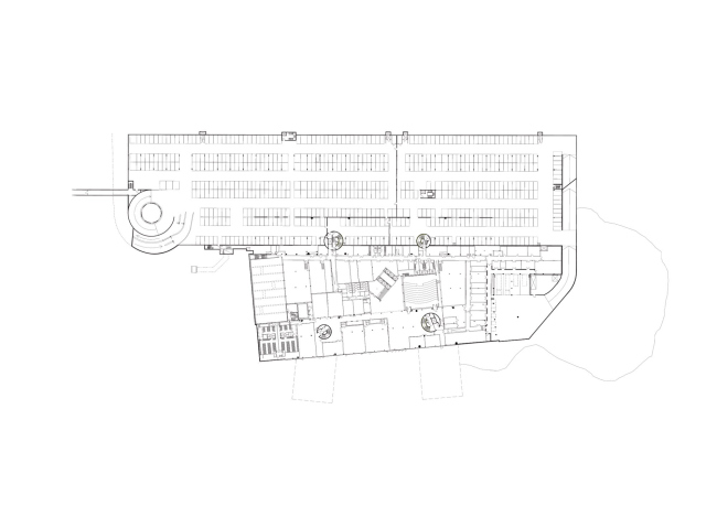
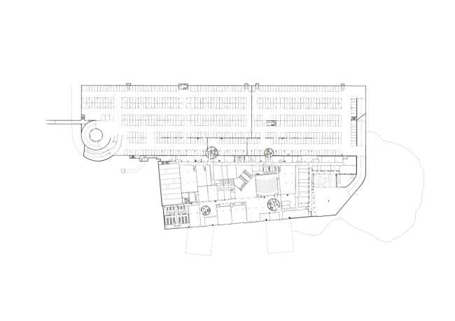
Новая штаб-квартира построена в пригороде Осло Форнебю, более всего известном тем, что именно там до 1998 располагался главный аэропорт норвежской столицы. После того, как в Осло был сдан в эксплуатацию новый аэропорт Гардермуэн, Форнебю стал обслуживать лишь некоторые внутренние рейсы, и большая часть его территории была высвобождена под реконструкцию. Строительство штаб-квартиры Statoil стало одним из этапов редевелопмента бывших земель аэропорта: участок под ее создание был выделен на месте многоуровневого паркинга, предназначавшегося под снос. Главным требованием к авторам проекта стало строгое следование существующему пятну застройки, так как большую часть участка планировали превратить в зеленое общественное пространство.
Штаб-квартира компании Statoil © Luis Fonseca
Штаб-квартира компании Statoil © Luis Fonseca

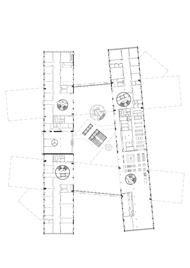
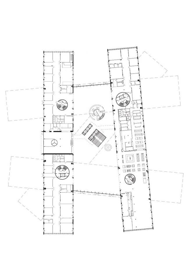
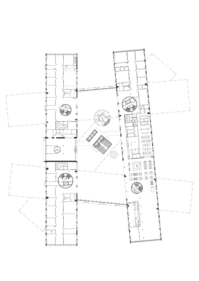
Проектируя штаб-квартиру, архитекторы вряд ли могли ограничиться стандартным блоком, каким был паркинг, поэтому они искали максимально выразительную форму при существующих ограничения. Решением этой задачи стала композиция из пяти параллелепипедов, поставленных друг на друга. Фактически здание приобретает три яруса: два нижних «бруска» размещены параллельно дороге, два средних положены на них перпендикулярно проезжей части, а пятый накрывает их по диагонали. Возникающие за счет такого композиционного решения консоли не только задают экспрессивный архитектурный образ здания, но и служат созданию уютных общественных пространств. Дополнительным средством оформления этих небольших плаз становятся видеоинсталляции: в нижнюю часть консолей архитекторы вмонтировали LED-экраны.
Штаб-квартира компании Statoil © Ivan Brodey
Штаб-квартира компании Statoil © Ivan Brodey

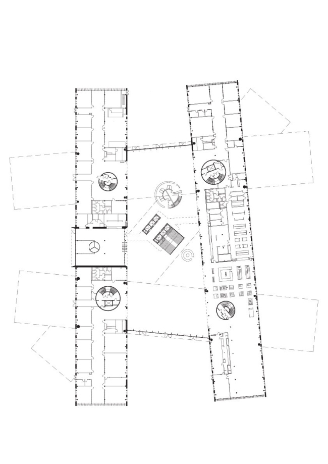
Габариты у всех параллелепипедов одинаковые: длина составляет 140 метров, ширина – 23 метра, высота – 3 этажа. Между собой они соединены лифтами и лестницами, а также центральным атриумом, созданным с помощью криволинейных полностью остекленных стен, которым архитекторы придали сходство с лопастями гигантского пропеллера. Выгороженное таким образом пространство между параллелепипедами превращено в еще одну пешеходную плазу, из которой в любой из корпусов можно попасть по эффектной металлической башне-лестнице.
Штаб-квартира компании Statoil © Luis Fonseca
Штаб-квартира компании Statoil © Luis Fonseca

Лаконичность очертания каждого из корпусов компенсирована не только с помощью динамичной композиции, но и за счет рисунка оконных проемов. Высота окон здесь сильно варьируется, благодаря чему каждый этаж приобретает выразительную «кардиограмму», особенно хорошо читаемую в темное время суток при включенном освещении офисов.
Штаб-квартира компании Statoil © Ivan Brodey
Штаб-квартира компании Statoil © Ivan Brodey
Штаб-квартира компании Statoil © Ivan Brodey
Штаб-квартира компании Statoil © Ivan Brodey
Штаб-квартира компании Statoil © Luis Fonseca
Штаб-квартира компании Statoil © Luis Fonseca
Штаб-квартира компании Statoil © Ivan Brodey
Штаб-квартира компании Statoil © Ivan Brodey
Штаб-квартира компании Statoil © Luis Fonseca
Штаб-квартира компании Statoil © Luis Fonseca
Штаб-квартира компании Statoil © Ivan Brodey
Штаб-квартира компании Statoil © Ivan Brodey
Штаб-квартира компании Statoil © Luis Fonseca
Штаб-квартира компании Statoil © Luis Fonseca
Штаб-квартира компании Statoil © Ivan Brodey
Штаб-квартира компании Statoil © Ivan Brodey
Штаб-квартира компании Statoil © a-lab
Штаб-квартира компании Statoil © a-lab
Штаб-квартира компании Statoil © Luis Fonseca
Штаб-квартира компании Statoil © Luis Fonseca
Штаб-квартира компании Statoil © Ivan Brodey
Штаб-квартира компании Statoil © Ivan Brodey
Штаб-квартира компании Statoil © Luis Fonseca
Штаб-квартира компании Statoil © Luis Fonseca
Штаб-квартира компании Statoil © Luis Fonseca
Штаб-квартира компании Statoil © Luis Fonseca
Штаб-квартира компании Statoil © Ivan Brodey
Штаб-квартира компании Statoil © Ivan Brodey
Штаб-квартира компании Statoil © a-lab
Штаб-квартира компании Statoil © a-lab
Штаб-квартира компании Statoil © Ivan Brodey
Штаб-квартира компании Statoil © Ivan Brodey
Штаб-квартира компании Statoil © Ivan Brodey
Штаб-квартира компании Statoil © Ivan Brodey
Штаб-квартира компании Statoil © a-lab
Штаб-квартира компании Statoil © a-lab
Штаб-квартира компании Statoil © Ivan Brodey
Штаб-квартира компании Statoil © Ivan Brodey
Штаб-квартира компании Statoil © a-lab
Штаб-квартира компании Statoil © a-lab
Штаб-квартира компании Statoil © Ivan Brodey
Штаб-квартира компании Statoil © Ivan Brodey
Штаб-квартира компании Statoil © a-lab
Штаб-квартира компании Statoil © a-lab
Штаб-квартира компании Statoil © Ivan Brodey
Штаб-квартира компании Statoil © Ivan Brodey
Штаб-квартира компании Statoil © Ivan Brodey
Штаб-квартира компании Statoil © Ivan Brodey
Штаб-квартира компании Statoil © a-lab
Штаб-квартира компании Statoil © a-lab
Штаб-квартира компании Statoil © a-lab
Штаб-квартира компании Statoil © a-lab
Штаб-квартира компании Statoil © a-lab
Штаб-квартира компании Statoil © a-lab
Штаб-квартира компании Statoil © a-lab
Штаб-квартира компании Statoil © a-lab
Штаб-квартира компании Statoil © a-lab
Штаб-квартира компании Statoil © a-lab
Штаб-квартира компании Statoil © a-lab
Штаб-квартира компании Statoil © a-lab
Штаб-квартира компании Statoil © a-lab
Штаб-квартира компании Statoil © a-lab
Штаб-квартира компании Statoil © a-lab
Штаб-квартира компании Statoil © a-lab
Штаб-квартира компании Statoil © a-lab
Штаб-квартира компании Statoil © a-lab
Штаб-квартира компании Statoil © a-lab
Штаб-квартира компании Statoil © a-lab
Штаб-квартира компании Statoil © a-lab
Штаб-квартира компании Statoil © a-lab
Штаб-квартира компании Statoil © a-lab
Штаб-квартира компании Statoil © a-lab
Штаб-квартира компании Statoil © a-lab
Штаб-квартира компании Statoil © a-lab
Штаб-квартира компании Statoil © a-lab
Штаб-квартира компании Statoil © a-lab
Штаб-квартира компании Statoil © a-lab
Штаб-квартира компании Statoil © a-lab
Штаб-квартира компании Statoil © a-lab
Штаб-квартира компании Statoil © a-lab
Штаб-квартира компании Statoil © a-lab
Штаб-квартира компании Statoil © a-lab