Размещено на портале Архи.ру (www.archi.ru)

23.04.2013

Велопрорыв

Настя Маврина

Объявлены победители студенческого конкурса Trimo Urban Crash 2013, участники которого в этом году разрабатывали автономную велобазу.

Гран-при 2013 + 2-е место по версии жюри. Проект SHIFT. Авторы: Manus Leung, Kacper Krywult. Иллюстрация: www.trimo-urbancrash.com
Гран-при 2013 + 2-е место по версии жюри. Проект SHIFT. Авторы: Manus Leung, Kacper Krywult. Иллюстрация: www.trimo-urbancrash.com
Международный конкурс «Городской прорыв» Trimo Urban Crash проводится раз в два года, и соревнование 2013 года стало уже четвертым по счету. Перед участниками поставили задачу по разработке модульного павильона с применением продуктов компании Trimo, где можно было бы отдохнуть после вело-прогулки, подзарядить гаджеты и электробайк, а также провести техническое обслуживание велосипеда. Конечно, особое внимание участников при проектировании уделялось экологической «устойчивости» павильона и оригинальности дизайнерского решения. 

Из 31 проекта, вошедшего в шорт-лист, были выбраны три проекта, занявшие призовые места по результатам оценки жюри, победитель зрительского голосования на сайте конкурса, а также несколько проектов, победивших в специальных номинациях.

Гран-при конкурса 2013 взяли Manus Leung из Университета Нового Южного Уэльса, Австралия, и Kacper Krywult из Варшавского технологического университета. Их проект под названием SHIFT получил не только высокую оценку профессионального жюри – по версии экспертов работа заняла 2-е место, но также и признание общественности во время голосования на сайте. Набрав по результатам двух голосований (экспертного и зрительского) самое большое количество баллов, работа получила главный приз конкурса: проект павильона будет реализован в Любляне.
Гран-при 2013 + 2-е место по версии жюри. Проект SHIFT. Авторы: Manus Leung, Kacper Krywult. Иллюстрация: www.trimo-urbancrash.com
Гран-при 2013 + 2-е место по версии жюри. Проект SHIFT. Авторы: Manus Leung, Kacper Krywult. Иллюстрация: www.trimo-urbancrash.com

Гран-при 2013 + 2-е место по версии жюри
Павильон SHIFT расположен в зеленой парковой зоне, окруженной  многополосными дорогами. Таким образом, велобаза находится в «контрастной» среде: с одной стороны – урбанистический пейзаж, с другой – пышная растительность. Это взаимодействие между «городским» и «природным» и было положено в основу концепции павильона.
Гран-при 2013 + 2-е место по версии жюри. Проект SHIFT. Авторы: Manus Leung, Kacper Krywult. Иллюстрация: www.trimo-urbancrash.com
Гран-при 2013 + 2-е место по версии жюри. Проект SHIFT. Авторы: Manus Leung, Kacper Krywult. Иллюстрация: www.trimo-urbancrash.com
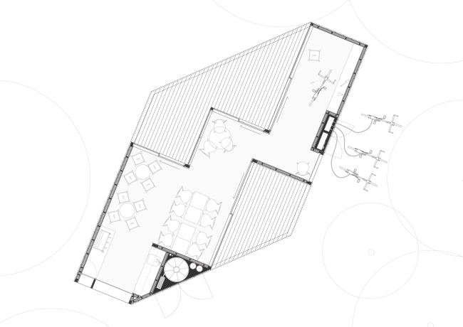
В объемно-пространственном плане велоцентр представляет собой три модульных блока, сдвинутых друг относительно друга. Такое решение позволяет увеличить внутреннее пространство и площадь крыши, на которой расположены солнечные батареи и система сбора дождевой воды. По замыслу авторов проекта, павильон универсален: его модули можно комбинировать различным образом в зависимости от обстоятельств его конкретного месторасположения.
Гран-при 2013 + 2-е место по версии жюри. Проект SHIFT. Авторы: Manus Leung, Kacper Krywult. Иллюстрация: www.trimo-urbancrash.com
Гран-при 2013 + 2-е место по версии жюри. Проект SHIFT. Авторы: Manus Leung, Kacper Krywult. Иллюстрация: www.trimo-urbancrash.com
Гран-при 2013 + 2-е место по версии жюри. Проект SHIFT. Авторы: Manus Leung, Kacper Krywult. Иллюстрация: www.trimo-urbancrash.com
Гран-при 2013 + 2-е место по версии жюри. Проект SHIFT. Авторы: Manus Leung, Kacper Krywult. Иллюстрация: www.trimo-urbancrash.com
Внутри велобазы центральное место занимает просторное кафе, в которое посетитель попадает, пройдя через небольшую открытую террасу. Так внутреннее решение павильона продолжает заданную местоположением тему игры на контрасте: большие пространства противопоставлены маленьким, открытые – закрытым, темные помещения – хорошо освещенным. Также в павильоне есть мини-мастерская и зоны отдыха – терраса, раскрытая в парк. В целом, планировочное решение позволяет при небольшой общей площади совместить в здании велобазы несколько функций, поместив их при этом в разные зоны.
Гран-при 2013 + 2-е место по версии жюри. Проект SHIFT. Авторы: Manus Leung, Kacper Krywult. Иллюстрация: www.trimo-urbancrash.com
Гран-при 2013 + 2-е место по версии жюри. Проект SHIFT. Авторы: Manus Leung, Kacper Krywult. Иллюстрация: www.trimo-urbancrash.com


1-е место по версии жюри
Компетентное жюри выбрало в качестве победителя проект команды студентов из Кельнского университета (Jorge Lopez Sacristan, Christina Codjambopoulo, Beatriz Gomez Martin, Jorge Lopez Sacristan, Sara Rebollo), проект велобазы которых носит название Bike-Connect-Chill. Участники также сделали ставку на контраст между трассой и парком, подчеркивая взаимосвязь между динамикой и расслабленным темпом, автомобилями и природой, работой и отдыхом.
1-е место по версии жюри. Bike-Connect-Chill. Авторы: Jorge Lopez Sacristan, Christina Codjambopoulo, Beatriz Gomez Martin, Jorge Lopez Sacristan and Sara Rebollo. Иллюстрация:www.trimo-urbancrash.com
1-е место по версии жюри. Bike-Connect-Chill. Авторы: Jorge Lopez Sacristan, Christina Codjambopoulo, Beatriz Gomez Martin, Jorge Lopez Sacristan and Sara Rebollo. Иллюстрация:www.trimo-urbancrash.com
1-е место по версии жюри. Bike-Connect-Chill. Авторы: Jorge Lopez Sacristan, Christina Codjambopoulo, Beatriz Gomez Martin, Jorge Lopez Sacristan and Sara Rebollo. Иллюстрация:www.trimo-urbancrash.com
1-е место по версии жюри. Bike-Connect-Chill. Авторы: Jorge Lopez Sacristan, Christina Codjambopoulo, Beatriz Gomez Martin, Jorge Lopez Sacristan and Sara Rebollo. Иллюстрация:www.trimo-urbancrash.com
Павильон состоит из трех модульных блоков, расположенных на разной высоте. Первый блок – Bike – помещен на уровне тротуара и включает в себя мастерскую и устройства для подзарядки электровелосипедов. Внутри находится лестница, ведущая на второй уровень. Второй блок – Connect – расположен на втором этаже и служит своеобразным соединительным элементом между улицей и парком. В нем авторы устроили кафе, приглашающее прохожих заглянуть внутрь. Третий блок – Chill – раскрыт в парковую зону. Здесь посетили смогут поработать, выпить чашечку кофе или спокойно пообщаться, любуясь окружающей природой.
1-е место по версии жюри. Bike-Connect-Chill. Авторы: Jorge Lopez Sacristan, Christina Codjambopoulo, Beatriz Gomez Martin, Jorge Lopez Sacristan and Sara Rebollo. Иллюстрация:www.trimo-urbancrash.com
1-е место по версии жюри. Bike-Connect-Chill. Авторы: Jorge Lopez Sacristan, Christina Codjambopoulo, Beatriz Gomez Martin, Jorge Lopez Sacristan and Sara Rebollo. Иллюстрация:www.trimo-urbancrash.com
1-е место по версии жюри. Bike-Connect-Chill. Авторы: Jorge Lopez Sacristan, Christina Codjambopoulo, Beatriz Gomez Martin, Jorge Lopez Sacristan and Sara Rebollo. Иллюстрация:www.trimo-urbancrash.com
1-е место по версии жюри. Bike-Connect-Chill. Авторы: Jorge Lopez Sacristan, Christina Codjambopoulo, Beatriz Gomez Martin, Jorge Lopez Sacristan and Sara Rebollo. Иллюстрация:www.trimo-urbancrash.com


Победитель зрительского голосования
По мнению общественности, лучшим проектом стал павильон команды студентов из Испании: Ignacio Chavero García, Roberto Baños Pantoja и Alvaro Borrego Plata. Девизом их проекта под кодовым названием CG2BP стал слоган «Заряди свой байк, заряди свой мир, заряди себя». 
Победитель зрительского голосования. Проект CG2BP. Авторы: Ignacio Chavero Garcia, Roberto Banos Pantoja и Alvaro Borrego Plata. Иллюстрация: www.trimo-urbancrash.com
Победитель зрительского голосования. Проект CG2BP. Авторы: Ignacio Chavero Garcia, Roberto Banos Pantoja и Alvaro Borrego Plata. Иллюстрация: www.trimo-urbancrash.com
Победитель зрительского голосования. Проект CG2BP. Авторы: Ignacio Chavero Garcia, Roberto Banos Pantoja и Alvaro Borrego Plata. Иллюстрация: www.trimo-urbancrash.com
Победитель зрительского голосования. Проект CG2BP. Авторы: Ignacio Chavero Garcia, Roberto Banos Pantoja и Alvaro Borrego Plata. Иллюстрация: www.trimo-urbancrash.com
Павильон также представляет собой три модульных блока, расположенные в двух уровнях. Многослойные фасадные панели навешаны вне остова павильона. Такая конструкция позволяет сделать часть панелей трансформируемыми: они могут откидываться в сторону, делая внутреннее пространство более открытым, а в некоторые из панелей «спрятана» мобильная мебель, которая может использоваться как в интерьере, так и на улице. Например, в верхнем блоке ставни окна откидываются, превращаясь в столик, а в блоках нижнего уровня стеновые панели становятся барными стойками, за которыми можно попить кофе, находясь на улице.
Победитель зрительского голосования. Проект CG2BP. Авторы: Ignacio Chavero Garcia, Roberto Banos Pantoja и Alvaro Borrego Plata. Иллюстрация: www.trimo-urbancrash.com
Победитель зрительского голосования. Проект CG2BP. Авторы: Ignacio Chavero Garcia, Roberto Banos Pantoja и Alvaro Borrego Plata. Иллюстрация: www.trimo-urbancrash.com
Победитель зрительского голосования. Проект CG2BP. Авторы: Ignacio Chavero Garcia, Roberto Banos Pantoja и Alvaro Borrego Plata. Иллюстрация: www.trimo-urbancrash.com
Победитель зрительского голосования. Проект CG2BP. Авторы: Ignacio Chavero Garcia, Roberto Banos Pantoja и Alvaro Borrego Plata. Иллюстрация: www.trimo-urbancrash.com
Панели велоцентра перфорированы. При этом перфорация имитирует деревья, окружающие павильон, а плотность расположения отверстий зависит от помещения, которое скрывается за панелями. Ночью павильон подсвечивается скрытыми за перфорацией светодиодными лампами, превращая велобазу в сказочный фонарик.

3-е место по версии жюри

Жюри присудило третье место проекту 14034 автора Malgorzata Wawrzyniak из Словении.
3-место по версии жюри. Проект 14034. Автор: Malgorzata Wawrzyniak. Иллюстрация: www.trimo-urbancrash.com
3-место по версии жюри. Проект 14034. Автор: Malgorzata Wawrzyniak. Иллюстрация: www.trimo-urbancrash.com
3-место по версии жюри. Проект 14034. Автор: Malgorzata Wawrzyniak. Иллюстрация: www.trimo-urbancrash.com
3-место по версии жюри. Проект 14034. Автор: Malgorzata Wawrzyniak. Иллюстрация: www.trimo-urbancrash.com


Специальная премия от компании Akripol
Компания Akripol, спонсор конкурса, отметила 2 проекта: проект dNAMO авторов Jose Bernal и  Iuliia Fomina из Университета Флориды, США и проект 20436, авторами которого являются студенты Joseph Goodwin, Nick Bastow и Richard Breen из Великобритании.
Специальная премия Akripol. Проект dNAMO. Авторы: Jose Bernal, Iuliia Fomina. Иллюстрация: www.trimo-urbancrash.com
Специальная премия Akripol. Проект dNAMO. Авторы: Jose Bernal, Iuliia Fomina. Иллюстрация: www.trimo-urbancrash.com
Специальная премия Akripol. Проект 20436. Авторы: Joseph Goodwin, Nick Bastow, Richard Breen. Иллюстрация: www.trimo-urbancrash.com
Специальная премия Akripol. Проект 20436. Авторы: Joseph Goodwin, Nick Bastow, Richard Breen. Иллюстрация: www.trimo-urbancrash.com


Поощрительная премия. Минимализм
Поощрительную премию в номинации «Минимализм» получил проект Bike Stop. Авторы проекта – студенты из Польши: Piotr Woldan, Michal Romanski, Justyna Turowska.
Поощрительная премия. Минимализм. Проект Bike Stop. Авторы: Piotr Woldan, Michal Romanski, Justyna Turowska. Иллюстрация: www.trimo-urbancrash.com
Поощрительная премия. Минимализм. Проект Bike Stop. Авторы: Piotr Woldan, Michal Romanski, Justyna Turowska. Иллюстрация: www.trimo-urbancrash.com


Поощрительная премия. Интерьер
Поощрительная премия в номинации «Интерьер» досталась студенту из Великобритании по имени Alexandr Valakh за проект Рixel.
Поощрительная премия. Интерьер. Проект  pixel. Автор: Alexandr Valakh. Иллюстрация: www.trimo-urbancrash.com
Поощрительная премия. Интерьер. Проект pixel. Автор: Alexandr Valakh. Иллюстрация: www.trimo-urbancrash.com
Поощрительная премия. Интерьер. Проект  pixel. Автор: Alexandr Valakh. Иллюстрация: www.trimo-urbancrash.com
Поощрительная премия. Интерьер. Проект pixel. Автор: Alexandr Valakh. Иллюстрация: www.trimo-urbancrash.com


Поощрительная премия. Уникальная схема
Премию в номинации «Уникальная схема» получил проект LJUbo мексиканских студентов: Luis Fernando Osorio Lua, Jose Abraham, Buenrostro Valadez
Поощрительная премия. Уникальная схема. Проект LJUbo. Авторы: Luis Fernando Osorio Lua, Jose Abraham, Buenrostro Valadez. Иллюстрация: www.trimo-urbancrash.com
Поощрительная премия. Уникальная схема. Проект LJUbo. Авторы: Luis Fernando Osorio Lua, Jose Abraham, Buenrostro Valadez. Иллюстрация: www.trimo-urbancrash.com
Поощрительная премия. Уникальная схема. Проект LJUbo. Авторы: Luis Fernando Osorio Lua, Jose Abraham, Buenrostro Valadez. Иллюстрация: www.trimo-urbancrash.com
Поощрительная премия. Уникальная схема. Проект LJUbo. Авторы: Luis Fernando Osorio Lua, Jose Abraham, Buenrostro Valadez. Иллюстрация: www.trimo-urbancrash.com


Поощрительная премия. Работа с контекстом
За «работу с местом» был отмечен проект G4804 студента из Сербии по имени Dusan Lilic.
Поощрительная премия. Работа с местом. Проект G4804. Автор: Dusan Lilic. Иллюстрация: www.trimo-urbancrash.com
Поощрительная премия. Работа с местом. Проект G4804. Автор: Dusan Lilic. Иллюстрация: www.trimo-urbancrash.com
Поощрительная премия. Работа с местом. Проект G4804. Автор: Dusan Lilic. Иллюстрация: www.trimo-urbancrash.com
Поощрительная премия. Работа с местом. Проект G4804. Автор: Dusan Lilic. Иллюстрация: www.trimo-urbancrash.com


Поощрительная премия. Пространство для общения
За лучшее решение «Пространства для общения» поощрительную премию получила Petra Karlova, студентка из Чехии.
Поощрительная премия. Пространство для общения. Проект A6841. Автор: Petra Karlova. Иллюстрация: www.trimo-urbancrash.com
Поощрительная премия. Пространство для общения. Проект A6841. Автор: Petra Karlova. Иллюстрация: www.trimo-urbancrash.com