Размещено на портале Архи.ру (www.archi.ru)

16.04.2013

На зыбкой почве

Нина Фролова
Объект:
Рейксмузеум – реконструкция
Адрес:
Нидерланды, None, Амстердам.
Мастерская:
Cruz y Ortiz

В Амстердаме открылся после 10-летней реконструкции Рейксмузеум — главный музей Нидерландов.

Рейксмузеум - реконструкция © Iwan Baan
Рейксмузеум - реконструкция © Iwan Baan
Авторами проекта перестройки стали испанцы Cruz y Ortiz, дизайн экспозиции выполнил Жан-Мишель Вильмотт, а за реставрацию отвечало бюро Van Hoogevest Architecten. Задачей архитекторов было приспособить громоздкое здание в русле эклектизма, построенное в 1885 Петрусом (Пьером) Кёйперсом, под нужды музея 21 века. Пышные интерьеры отвлекали внимание от экспонатов, не хватало места как для выставок, так и для сопутствующей им программы, постоянную экспозицию было невозможно разместить по единой системе, и так далее.
Рейксмузеум - реконструкция © Myra May
Рейксмузеум - реконструкция © Myra May

Теперь же все экспонаты от 12 до 20 века расположены в строгом хронологическом порядке, по этажам снизу вверх, причем хронология поддержана цветовым решением: краска стен постепенно светлеет при движении вверх, в залах современного искусства достигая почти белого цвета. При этом все произведения расположились по-новому, за исключением самого главного – «Ночного дозора» Рембрандта, вернувшегося на свое прежнее место в «Галерее почета», где выставлены произведения Золотого века голландского искусства.
Рейксмузеум - реконструкция © Pedro Pegenaute
Рейксмузеум - реконструкция © Pedro Pegenaute

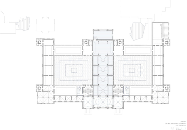
Архитекторы по уже устоявшейся в музейном строительстве схеме перекрыли два двора здания стеклянными кровлями, а также углубили их до уровня -1 этажа, предварительно убрав занимавшие их позднейшие пристройки. Затем расположили под одним двором аудиторию, под другим – музейный магазин и кафе. Сами же дворы превратились в просторные общественные пространства, куда можно попасть даже без покупки билета. Их стены образуют дворовые фасады музея, а новые поверхности облицованы светлым камнем. Антонио Крус и Антонио Ортис учли ошибку Нормана Фостера, в чьем дворе Британского музея любой звук хорошо слышен и даже отдается эхом, поэтому в Рейксмузеуме шумы приглушены подвешенными к перекрытиями белыми решетками со звукопоглощающим материалом.



Рейксмузеум - реконструкция © Rijksmuseum
Рейксмузеум - реконструкция © Rijksmuseum

Но главной проблемой для архитекторов стало объединение двух дворов в единое целое. В историческом здании по центру фасада расположен коридор для пешеходов и велосипедистов, позволяющий быстро пройти сквозь здание. Проект реконструкции предусматривал превращение его в главный вход в музей, объединяющий оба двора, но горожане взбунтовались, и сейчас коридор сохранен в прежнем виде, в музей можно попасть через четыре малых входа, а под ним проложен подземный проход, соединяющий дворы друг с другом.
Рейксмузеум - реконструкция © Cruz y Ortiz Arquitectos
Рейксмузеум - реконструкция © Cruz y Ortiz Arquitectos

Музей закрыли на реконструкцию в 2003 и собирались открыть уже в 2008. 10-летний срок работ объясняется тем, что для устройства подземных ярусов в напоенной водой почве Амстердама пришлось приложить титанические усилия, а также для такого сложного проекта никак не находился подрядчик. Инженеры Arcadis сделали новые подземные части здания конструктивно независимыми от исторической постройки, так как она медленно оседает. Поэтому расположенные над подземным проходом между дворами наземный коридор и «Галерея почета» теперь превращены в нависающий над ним «мост». Вырытые котлованы тут же наполнились водой, поэтому их заливали специальным бетоном для подводных работ, а процесс контролировали ныряльщики.
Рейксмузеум - реконструкция © Pedro Pegenaute
Рейксмузеум - реконструкция © Pedro Pegenaute

Бюджет проекта составил 375 млн евро, но он также включает в себя строительство отдельного павильона азиатского искусства, помещенного в центр пруда, приспособление парка под сад скульптур по проекту Copijn Landschapsarchitecten (14 500 м2), устройство служебного входного корпуса, реконструкцию исторической Школы рисунка (Teekenschool) как музейного образовательного центра, а также строительство поблизости от Рейксмузеума здания музейных мастерских, слитого с еще одной постройкой Кёйперса – бывшим Институтом охраны труда.
Рейксмузеум - реконструкция © Pedro Pegenaute
Рейксмузеум - реконструкция © Pedro Pegenaute

Но работы по обновлению музея еще не завершены: остававшееся на время реконструкции открытым крыло Philips теперь превратят в современное пространство для временных выставок. Авторами проекта также выступили Cruz y Ortiz.
Рейксмузеум - реконструкция © Jannes Linders
Рейксмузеум - реконструкция © Jannes Linders
Рейксмузеум - реконструкция © Jannes Linders
Рейксмузеум - реконструкция © Jannes Linders
Рейксмузеум - реконструкция © Jannes Linders
Рейксмузеум - реконструкция © Jannes Linders
Рейксмузеум - реконструкция © Jannes Linders
Рейксмузеум - реконструкция © Jannes Linders
Рейксмузеум - реконструкция © Pedro Pegenaute
Рейксмузеум - реконструкция © Pedro Pegenaute
Рейксмузеум - реконструкция © Iwan Baan
Рейксмузеум - реконструкция © Iwan Baan
Рейксмузеум - реконструкция © Iwan Baan
Рейксмузеум - реконструкция © Iwan Baan
Рейксмузеум - реконструкция © Iwan Baan
Рейксмузеум - реконструкция © Iwan Baan
Рейксмузеум - реконструкция © Iwan Baan
Рейксмузеум - реконструкция © Iwan Baan
Рейксмузеум - реконструкция © Iwan Baan
Рейксмузеум - реконструкция © Iwan Baan
Рейксмузеум - реконструкция © Iwan Baan
Рейксмузеум - реконструкция © Iwan Baan
Рейксмузеум - реконструкция © Iwan Baan
Рейксмузеум - реконструкция © Iwan Baan
Рейксмузеум - реконструкция © Iwan Baan
Рейксмузеум - реконструкция © Iwan Baan
Рейксмузеум - реконструкция © Iwan Baan
Рейксмузеум - реконструкция © Iwan Baan
Рейксмузеум - реконструкция. Павильон азиатского искусства © Eric Smits
Рейксмузеум - реконструкция. Павильон азиатского искусства © Eric Smits
Рейксмузеум - реконструкция © Cruz y Ortiz Arquitectos
Рейксмузеум - реконструкция © Cruz y Ortiz Arquitectos
Рейксмузеум - реконструкция © Cruz y Ortiz Arquitectos
Рейксмузеум - реконструкция © Cruz y Ortiz Arquitectos
Рейксмузеум - реконструкция © Cruz y Ortiz Arquitectos
Рейксмузеум - реконструкция © Cruz y Ortiz Arquitectos
Рейксмузеум - реконструкция © Cruz y Ortiz Arquitectos
Рейксмузеум - реконструкция © Cruz y Ortiz Arquitectos
Рейксмузеум - реконструкция © Cruz y Ortiz Arquitectos
Рейксмузеум - реконструкция © Cruz y Ortiz Arquitectos
Рейксмузеум - реконструкция © Cruz y Ortiz Arquitectos
Рейксмузеум - реконструкция © Cruz y Ortiz Arquitectos
Рейксмузеум - реконструкция © Cruz y Ortiz Arquitectos
Рейксмузеум - реконструкция © Cruz y Ortiz Arquitectos
Рейксмузеум - реконструкция © Cruz y Ortiz Arquitectos
Рейксмузеум - реконструкция © Cruz y Ortiz Arquitectos