Размещено на портале Архи.ру (www.archi.ru)

09.04.2013

Среди сосен и берез

Объект:
Музей – место памяти Пальмиры
Адрес:
Польша, None,
Мастерская:
WXCA
Авторский коллектив:
ГАП: Zbigniew Wroński
Архитекторы: Szczepan Wroński, Wojciech Conder

В селе Пальмиры близ Варшавы бюро WXCA построило музей-мемориал жертв нацистского террора.

Музей – место памяти Пальмиры
Музей – место памяти Пальмиры
Фото © Rafał Kłos
Музей находится на территории национального парка Кампинос, леса из берез и сосен, где в 1939–1941 фашистами были казнены тысячи человек. Вскоре после войны там было создано кладбище, где перезахоронили тела жертв. Расположенный рядом с ним музей посвящен как хронике террора, так и истории создания мемориала.
Музей – место памяти Пальмиры
Музей – место памяти Пальмиры
Фото © Rafał Kłos

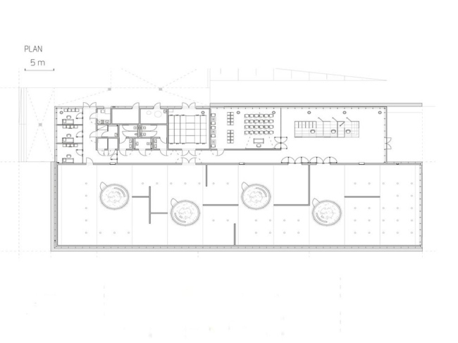
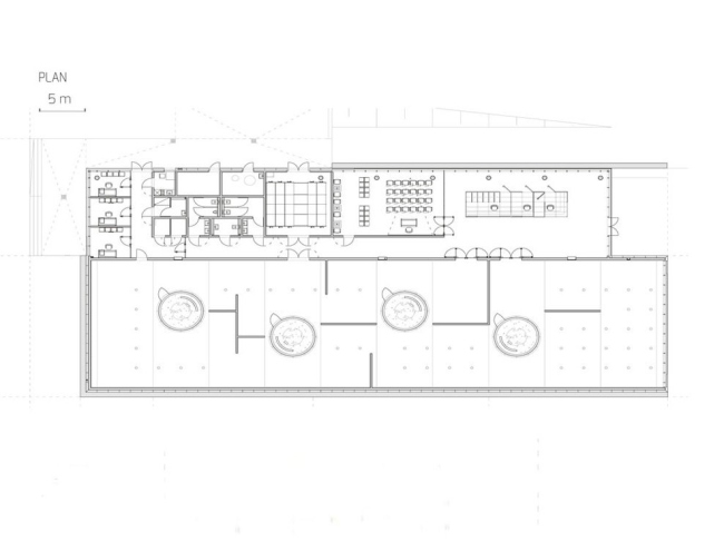
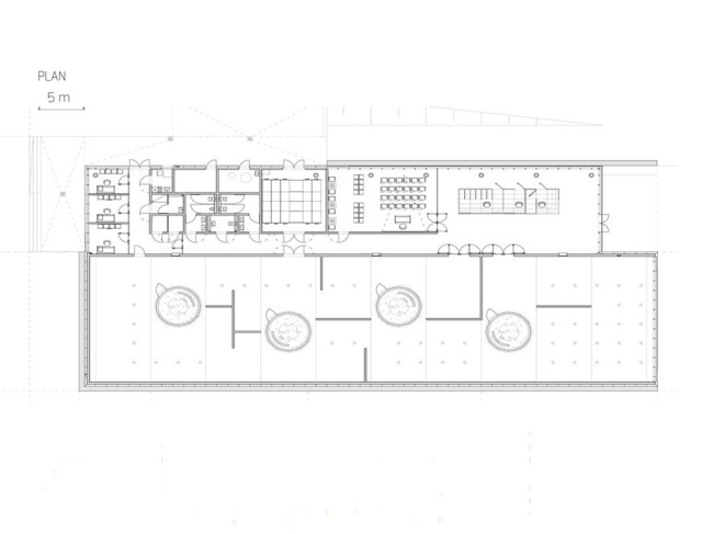
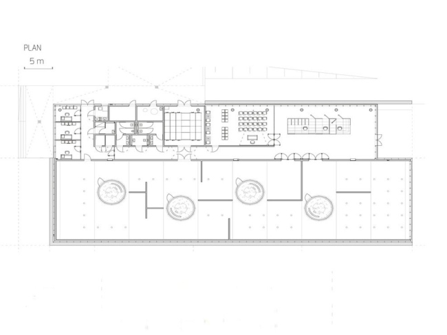
Здание расположено в природном окружении: расстояние от его фасадов до леса составляет меньше 12 м. Деревья даже «впустили» внутрь постройки: в выставочном зале в круглых остекленных двориках–световых колодцах высажены сосны. Однако зона экспозиции лишена окон, а панорамное остекление устроено только со стороны кладбища, где устроен главный вход: оттуда виден мемориал — три креста.
Музей – место памяти Пальмиры
Музей – место памяти Пальмиры
Фото © Rafał Kłos

Стены из грубого бетона определяют облик и интерьера, и экстерьера здания, хотя снаружи они частично обшиты сталью кортен. Музей расположен между парковкой и кладбищем, поэтому он также оформляет путь к мемориалу, который пролегает между боковым фасадом постройки и высокой подпорной стенкой из бетона, укрепляющей склон холма.

Н. Ф.
Музей – место памяти Пальмиры
Музей – место памяти Пальмиры
Фото © Rafał Kłos
Музей – место памяти Пальмиры
Музей – место памяти Пальмиры
Фото © Rafał Kłos
Музей – место памяти Пальмиры
Музей – место памяти Пальмиры
Фото © Rafał Kłos
Музей – место памяти Пальмиры
Музей – место памяти Пальмиры
Фото © Rafał Kłos
Музей – место памяти Пальмиры
Музей – место памяти Пальмиры
Фото © Rafał Kłos
Музей – место памяти Пальмиры
Музей – место памяти Пальмиры
Фото © Rafał Kłos
Музей – место памяти Пальмиры
Музей – место памяти Пальмиры
Фото © Rafał Kłos
Музей – место памяти Пальмиры
Музей – место памяти Пальмиры
Фото © Rafał Kłos
Музей – место памяти Пальмиры
Музей – место памяти Пальмиры
© WXCA
Музей – место памяти Пальмиры
Музей – место памяти Пальмиры
© WXCA
Музей – место памяти Пальмиры
Музей – место памяти Пальмиры
© WXCA
Музей – место памяти Пальмиры
Музей – место памяти Пальмиры
© WXCA
Музей – место памяти Пальмиры
Музей – место памяти Пальмиры
© WXCA
Музей – место памяти Пальмиры
Музей – место памяти Пальмиры
© WXCA
Музей – место памяти Пальмиры
Музей – место памяти Пальмиры
© WXCA